Version: 8.25.1Navigation überspringen
749.000 €
3 Zimmer  •  85,5 m²  •  2. Geschoss
Immowelt logo

Wohnung zum Kauf - Erstbezug
749000 €
8.760 €/m²
3 Zimmer  •  85,5 m²  •  2. Geschoss

Groß denken, groß wohnen: 3-Zimmer-Wohnung mit imposantem 11m²-Balkon || Sandleitengasse 68

Sandleitengasse 68 - wo Hernals von seiner schönsten Seite wohnt

Im aufstrebenden 17. Wiener Gemeindebezirk entsteht mit der Sandleitengasse 68 ein Neubauprojekt, das höchste Ansprüche an Wohnqualität, Ausstattung und Nachhaltigkeit erfüllt. 29 exklusive Eigentumswohnungen verteilen sich auf fünf Ober- und zwei Dachgeschosse - vom cleveren 2-Zimmer-Apartment bis zur großzügigen 4-Zimmer-Penthouse-Wohnung mit über 130 m² Wohnfläche.

 

Nachhaltig & zukunftssicher

Die Energieversorgung erfolgt über eine zentrale Luft-Wasser-Wärmepumpe, die sowohl Heizung als auch Warmwasser klimafreundlich bereitstellt. Eine Photovoltaikanlage mit rund 10 kWp am Dach ergänzt das System und kommt den Allgemeinbereichen zugute. Alle Wohnräume, Küchen und Bäder sind mit Fußbodenheizung ausgestattet.

 

Stilvolle Ausstattung auf Markenniveau

Die Innenausstattung wurde mit größter Sorgfalt ausgewählt und überzeugt in jeder Hinsicht:

* Eichenparkett "Landhausdiele" in allen Wohn-, Schlaf- und Essbereichen sowie Küche und Gang
* Feinsteinzeug-Fliesen in sämtlichen Bädern und WCs
* Sanitärkeramik von Laufen (Kartell-Serie), Kaldewei-Badewannen & Hansgrohe-Regenduschen
* Wandhängende, spülrandlose TECE-WCs & Armaturen von Laufen Lua Eco+
* 3-fach Wärmeschutzverglasung mit Aluminiumdeckschale in Bronze
* Elektrisch bedienbare Außenraffstores in Bronze an allen Fenstern
* Einbruchshemmende Sicherheitstür WK III & Video-Gegensprechanlage mit App-Steuerung (Comelit)

 

Leben drinnen & draußen

Nahezu alle Einheiten verfügen über private Außenbereiche - sei es ein sonniger Balkon, eine geschützte Loggia, eine weitläufige Terrasse oder ein eigener Gartenanteil. Ein barrierefreier OTIS-Aufzug erschließt alle Geschosse bis in die Tiefgarage, wo 13 Stellplätze auf zwei Ebenen zum Kaufpreis von je € 45.000 verfügbar sind.

 

Preise

Die Kaufpreise beginnen bei € 349.000 für eine 2-Zimmer-Wohnung und reichen bis € 1.633.000 für die exklusive Penthouse-Einheit im zweiten Dachgeschoss - ein Projekt, das für anspruchsvolle Eigennutzer und renditeorientierte Anleger gleichermaßen attraktiv ist.

 

Wir freuen uns auf Ihre Anfrage und stehe bei Fragen sowie zur Vereinbarung eines Besichtigungstermins jederzeit zur Verfügung.

office@wolfundsohn.com

Tel: +43 660 383 15 66 [tel:+436603831566]

Wolf & Sohn Immobilien GmbH

www.wolfundsohn.com

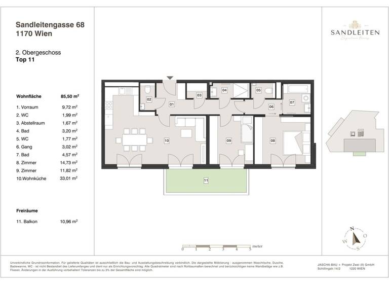
TOP 11 - 2. OBERGESCHOSS | 3 ZIMMER | 85,50 M² WOHNFLÄCHE | BALKON 10,96 M²

Hier wohnt man groß - Top 11 zählt zu den großzügigsten Einheiten im Haus. Fast 86 m² Wohnfläche plus ein beeindruckender Balkon von knapp 11 m² schaffen ein Raumgefühl, das seinesgleichen sucht. Für Familien und alle, die Platz und Qualität in einem haben wollen.

Highlights

* 3 Zimmer, 85,50 m² Wohnfläche + großer Balkon 10,96 m²
* Üppiger Balkon - perfekt für Outdoor-Dining und Relaxen
* Eichenparkett "Landhausdiele" durchgehend in allen Räumen
* Fußbodenheizung + energiesparende Luft-Wasser-Wärmepumpe
* Erstklassige Bäder: Laufen, Kaldewei, TECE, Hansgrohe
* Sicherheitstür WK III + Video-Gegensprechanlage mit App
* Lift, Einlagerungsraum, Tiefgaragenstellplatz (optional)

 

Kosten

Kaufpreis: € 749.000,-

Die Nebenkosten betragen ca. 10% des Kaufpreises und setzen sich wie folgt zusammen:

 
 

Vertragserstellung & Treuhandschaft
1,5% zzgl. 20% USt.

Maklerprovision
3,0% zzgl. 20% USt.

Grunderwerbsteuer
3,5%

Grundbucheintragungsgebühr
1,1%

Notarielle Beglaubigung & Barauslagen
nach Aufwand

_Vertragserrichter: Mag. Stefan Prochaska (vorgegeben)_

 

Ich freue mich auf Ihre Anfrage und stehe bei Fragen sowie zur Vereinbarung eines Besichtigungstermins jederzeit zur Verfügung.
Mit freundlichen Grüßen,
Amir Tarab, BA
Mail: at@wolfundsohn.com
Tel: +43 660 383 15 66
Wolf & Sohn Immobilien GmbH
www.wolfundsohn.com [http://www.wolfundsohn.com]

Der Vermittler ist als Doppelmakler tätig.

Infrastruktur / Entfernungen

Gesundheit
Arzt <500m
Apotheke <500m
Klinik <1.500m
Krankenhaus <1.000m

Kinder & Schulen
Schule <500m
Kindergarten <500m
Universität <2.000m
Höhere Schule <2.000m

Nahversorgung
Supermarkt <500m
Bäckerei <500m
Einkaufszentrum <500m

Sonstige
Geldautomat <500m
Bank <500m
Post <500m
Polizei <1.000m

Verkehr
Bus <500m
U-Bahn <1.000m
Straßenbahn <500m
Bahnhof <1.000m
Autobahnanschluss <5.000m

Angaben Entfernung Luftlinie / Quelle: OpenStreetMap

Merkmale

  • Bezug: 2026
  • 2. Geschoss
  • offene Küche
  • Personenaufzug
  • Gäste-WC
  • Balkon

Grundrisse

Grundrisse
1 / 1

Realisiere Dein Projekt

Bausubstanz und Energie

Heizwärmebedarf (HWB)

A

Gesamtenergieeffizienz (fGEE)

A
  • Baujahr2026
  • Zustand der ImmobilieNeubau, Massivhaus, Erstbezug
  • HeizungsartFußbodenheizung
  • EnergieträgerLuft-/Wasser-Wärmepumpe
Immowelt logo

Preisdetails

Kaufpreis
749000 €
8.760,23 €/m²
Provision für Käufer
3% des Kaufpreises zzgl. 20% USt.

Lage

address-icon
Wien,Hernals (1170)
Die Sandleitengasse 68 liegt im lebendigen Hernals, einem der grünsten und beliebtesten Bezirke Wiens. Die Lage verbindet das Beste aus zwei Welten: urbane Infrastruktur auf der einen, Ruhe und Grün auf der anderen Seite.

Öffentliche Anbindung: U-Bahn (U6), Straßenbahn & Bus direkt vor der Tür

Umfangreiches Angebot an Schulen, Kindergärten & Einkaufsmöglichkeiten in unmittelbarer Nähe

Nahe Naherholungsgebiete: Sandleitenpark, Wilhelminenberg & Wienerwald schnell erreichbar

Rasche Anbindung an die Wiener Innenstadt - in rund 15 Minuten im Zentrum

Weitere Informationen

Stichworte Süd-Balkon/Terrasse, Fahrradraum, Anzahl der Badezimmer: 2, Anzahl der separaten WCs: 2, Anzahl Balkone: 1, Balkon-Terrassen-Fläche: 10,96 m², Kellerfläche: 1,21 m², Bundesland: Wien, 7 Etagen

Weitere Services

Lust auf eine Besichtigung?
Eine Frage zur Immobilie?
Nachricht hinzufügen
Mit der Nutzung der oben angegebenen Telefonnummer oder durch Klicken auf „Kontaktieren“ akzeptierst Du die Allgemeinen Nutzungsbedingungen, denen Du jederzeit widersprechen kannst. Weitere Informationen zum Datenschutz

Über den Anbieter

Herbeckstrasse 57/4, 1180 WIEN
partner badge
Partnerschaft
Herr Amir Oliver TarabDein Kontakt
Online-ID: 263SZQGD7YFV
Referenznummer: OBGC20260126100437381bd53ad370d
WOLF & SOHN Immobilien GmbH
Nachricht hinzufügen
Mit der Nutzung der oben angegebenen Telefonnummer oder durch Klicken auf „Kontaktieren“ akzeptierst Du die Allgemeinen Nutzungsbedingungen, denen Du jederzeit widersprechen kannst. Weitere Informationen zum Datenschutz
Wie zufrieden bist du mit dieser Seite (nicht mit der Immobilie selbst)?