Version: 8.24.0Navigation überspringen
895.000 €
8 Zimmer  •  250 m²  •  1. Geschoss
Immowelt logo

Wohnung zum Kauf
895000 €
3.580 €/m²
8 Zimmer  •  250 m²  •  1. Geschoss

Luxuriöse Eigentumswohnung an der Werre !

Im ersten Obergeschoss eines stadtbildprägenden Hauses aus dem
Baujahr 1890 in der Herforder City liegt diese repräsentative ca. 250 m²
(auch teilbar) große Wohnung. Helle, leuchtende Räume, wertig aufgearbeitete
Holzböden, neue Holzfenster in originaler Optik, ein kostbares Interieur und
eine großzügige Deckenhöhe von 3,30 Metern verleihen dem Wohntraum
an der Werre seinen einzigartigen Charme. Ein Aufzug führt direkt in die
Wohnung. Modernste Schallschutzfenster halten störende Geräusche fern.

Unmittelbar hinter dem Haus beginnt ein sehr schön angelegter Park, die
sogenannte Spatzenwiese mit Blick auf die Werre.

In den vergangenen Jahren wurde das gesamte Haus mit seinen
8 Wohneinheiten aufwändig innen und außen saniert.
Das Haus steht unter Denkmalschutz.

Bereits im Treppenhaus lässt sich erkennen, mit wie viel Liebe
zum Detail das Haus restauriert wurde. Aufwändig aufgearbeitete
Türen mit ihren großen Oberlichtern, die breite Holztreppe und
eine freundliche Wandbeleuchtung laden förmlich dazu ein,
hereinzukommen und sich näher umzusehen.

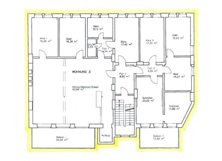
Herzstück der Wohnung ist der zentrale Raum mit seiner langen
Fensterfront, in dem die frei stehende Küche (Design: Porsche),
der Wohnraum mit Kamin und Ofenbank sowie ein geräumiger
Essbereich harmonisch ineinander übergehen und in ihrer
Gesamtheit eine geschmackvolle Einheit bilden.
Stuckelemente an der Decke verleihen dem Raum das
Flair der alten Zeit. Ein großer Balkon mit Blick auf die alten Villen
in der Umgebung und die Grünanlage oberhalb der Werre
lädt zu gemütlichen Stunden im Freien ein.

Vom zentralen Raum aus gelangt man links in den Fitness-
und Gym-Bereich und rechts in das Heimkino mit seiner
einzigartigen Surround-Akustik. Eine weitere Tür führt in den
Flur und von dort aus zum Schlaf- und Ankleideraum,
dem Kinderzimmer mit einem solide gebauten Hochbett, einem
Büroraum, einem weiteren Schlafraum, zum Hauswirtschaftsraum
sowie dem Bad mit Whirlpool und dem Gäste-WC.
Vom Schlafzimmer gibt es einen Zugang zu einem zweiten Balkon,
ebenfalls mit Blick auf die Spatzenwiese, wie der Park
oberhalb des Werreufers genannt wird.

Hinter dem Haus liegt ein schöner, vielseitig nutzbarer Garten, der zur
Wohnung gehört und deren Bewohnern zur alleinigen Nutzung zugeordnet wurde.

Für sein besonderes Engagement bei der Gestaltung und
Bewahrung dieses Herforder Kulturdenkmals wurde der
Eigentümer vor einigen Jahren mit der Pöppelmann-Medaille
des Herforder Geschichtsvereins ausgezeichnet.

Die Wohnung ist baulich (Heizung, Wasser, Abwasser, Strom)
so vorbereitet, dass sie geteilt werden kann. Im Ergebnis
gäbe es dann eine Wohnung von ca. 110 m² und eine Wohnung
von ca. 130 m² sowie einen dazwischen liegenden Flur.

Zur jetzt bestehenden Wohnetage gehören zwei Kellerräume
mit einer Gesamtfläche von ca. 35 m². Diese beiden Kellerräume
würden im Falle einer Teilung dann einzeln den neu entstandenen
Wohnungen zugeordnet werden.

Parkmöglichkeiten sind in der Umgebung reichlich vorhanden. Auch
kann in verschiedenen Liegenschaften in der Nachbarumgebung
Parkraum zum günstigen Preis zugemietet werden.

Die jetzigen Eigentümer nutzen eine 100-Mbit-Leitung für das Internet.
Es ist eine 1-Gbit-Leitung möglich.

Merkmale

  • 1. Geschoss
  • Einbauküche
  • Kelleranteil
  • Gäste-WC
  • Balkon
  • Badezimmer: Badewanne, Bad mit Dusche, Bad mit Fenster
Einfach schön....
- nach Denkmalschutzaspekten saniertes Gebäude
- neu errichteter Aufzug direkt in die Wohnung
- historische Eingangstüren und Treppenhaus
- Video-Sprechanlage
- zwei Balkone mit Blick in die Grünanlagen
- Bad mit Dusche und Whirlpool
- Gäste-WC mit Dusche
- großzügiger Ankleideraum
- Fußböden aus Massivholz
- neue Holzfenster mit 3-fach Schallschutzverglasung
- neue Holztüren in der Wohnung
- Kamin im zentralen Raum
- Küche - Design: Porsche
- Heimkino mit Surround-Akustik
- Internet derzeit 100 Mbit, 1 Gbit möglich
- modern gestalteter Hauswirtschaftsraum
- Fahrrad-Abstellraum im Hauseingangsbereich
- Denkmalgeschütztes Gebäude kein Energieausweis da nicht erforderlich.

Grundrisse

Grundrisse
1 / 1

Realisiere Dein Projekt

Bausubstanz und Energie

Energieausweis

Ein Energieausweis ist für diesen Gebäudetyp nicht notwendig.
  • Baujahr1890
  • Zustand der ImmobilieAltbau (bis 1945)
  • EnergieträgerGas
Immowelt logo

Preisdetails

Kaufpreis
895000 €
3.580 €/m²
Provision für Käufer
Käuferprovision 3,57 % vom Kaufpreis, zahlbar nach Beurkundung.
Geschätzte Gesamtkosten
1.003.026 €1
Kaufpreis
895.000 €
Notarkosten (1,5%)
13.425 €
Grunderwerbsteuer (6,5%)
58.175 €
Provision für Käufer (3,57%)
31.951 €
Grundbucheintrag (0,5%)
4.475 €
1Der angezeigte Wert ist eine automatisch berechnete Schätzung von immowelt.
2Bei den Angaben handelt es sich um ortsübliche Werte. Individuelle Kosten können abweichen.

Lage

address-icon
InnenstadtHerford (32052)
Der Anbieter hat die genaue Adresse nicht freigegeben
Herford-City
Die repräsentative Wohnung befindet sich im Zentrum
Herfords oberhalb des Werreufers. Auf der gegenüberliegenden
Straßenseite beginnt die historische Herforder Altstadt.

Im nächsten Umfeld liegen alle Geschäfte für den täglichen Bedarf, Gaststätten,
Schulen, Kindergärten, Arztpraxen, Apotheken sowie öffentliche Einrichtungen.

Die Entfernung zum Herforder Rathaus beträgt 10, zum
Bahnhof 15 Gehminuten. Durch ihre günstige Lage ist die
Wohnung sehr gut an den öffentlichen Nahverkehr angebunden.

Die Entfernung zur Autobahn 2 beträgt etwa 10 Minuten,
zur Autobahn 30 etwa 20 Minuten.

Weitere Informationen

Sonstiges Ansprechpartner
Thomas Landau
Frank Tippelt
Tel. 0521 - 92 37 80
www.DIT-OWL.de
Alle Angaben vom Eigentümer, daher übernehmen wir keine Haftung und Garantie. Stichworte Anzahl der Schlafzimmer: 8, Anzahl der Badezimmer: 2, Anzahl Balkone: 2, 1 Etagen, modernisiert: 2024, modernisiert

Weitere Services

Lust auf eine Besichtigung?
Eine Frage zur Immobilie?
Nachricht hinzufügen
Mit der Nutzung der oben angegebenen Telefonnummer oder durch Klicken auf „Kontaktieren“ akzeptierst Du die Allgemeinen Nutzungsbedingungen, denen Du jederzeit widersprechen kannst. Weitere Informationen zum Datenschutz

Über den Anbieter

Johanneswerkstr. 18 A, 33611 Bielefeld
partner badge
Partnerschaft
Herr Thomas Landau
Herr Thomas LandauDein Kontakt
Online-ID: 2k6sc5c
Referenznummer: 672 (1/672)
Das Immo Team - OWL
title
Das Immo Team - OWL
Nachricht hinzufügen
Mit der Nutzung der oben angegebenen Telefonnummer oder durch Klicken auf „Kontaktieren“ akzeptierst Du die Allgemeinen Nutzungsbedingungen, denen Du jederzeit widersprechen kannst. Weitere Informationen zum Datenschutz
Wie zufrieden bist du mit dieser Seite (nicht mit der Immobilie selbst)?