Moderne 3-Zi.-Dachgeschosswohnung mit guter Anbindung!
Objektnr: 1069176
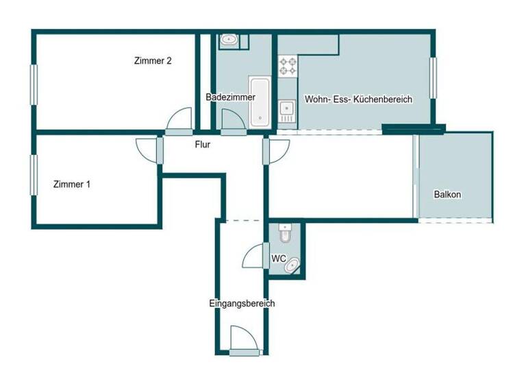
Diese charmante 3-Zimmer-Wohnung befindet sich im Dachgeschoss eines gepflegten Mehrparteienhauses und wurde 2009 vollständig neu ausgebaut. Auf rund 73 m² Wohnfläche erwartet Sie ein praktisches Raumkonzept. Der Parkettboden wurde erst in diesem Jahr erneuert und verleiht der Wohnung ein besonders modernes Wohngefühl.
Beim Betreten der Wohnung gelangen Sie in den einladenden Eingangsbereich mit Platz für eine Garderobe. Rechts befindet sich das separate Gäste-WC mit Waschbecken. Geradeaus öffnet sich das großzügige Badezimmer mit Badewanne und Waschmaschinenanschluss. Links entlang erreichen Sie zwei helle, gut geschnittene Zimmer, ideal als Schlafzimmer, Kinder- oder Arbeitszimmer. Beide verfügen über große Velux-Fenster mit Beschattungsrollos.
Herzstück der Wohnung ist der großzügige Wohn-, Ess- und Küchenbereich mit moderner Einbauküche. Diese ist ausgestattet mit Cerankochfeld, Backofen, Spülmaschine, Mikrowelle, Apothekerschrank sowie einer Dunstabzugshaube mit Abluft nach außen. Elektrisch bedienbare Velux-Fenster und eine große Fensterfront sorgen für ein lichtdurchflutetes Ambiente. Vom Wohnbereich aus gelangen Sie auf den großzügigen Balkon mit herrlichem Weitblick perfekt zum Entspannen.
Die Beheizung erfolgt über eine Gasheizung. Das Hausgeld beträgt 375 Euro pro Monat. Zur Wohnung gehören ein Kellerraum und ein Personenaufzug im Haus. In den kommenden Monaten wird zudem die Außenfassade des Gebäudes neu gestrichen.
Ein ideales Zuhause für alle, die modernen Komfort, Helligkeit und Ruhe schätzen.
Merkmale
Bezug: nach Absprache
4. Geschoss
Personenaufzug
Einbauküche
Badewanne
Gäste-WC
Keller
Balkon
+ Attraktive Lage - in ca. 10 min zu Fuß am Schloss Schönbrunn, diverse Einkaufsmöglichkeiten und öffentliche Verkehrsanbindung in direkter Nähe + Lichtdurchflutetes Dachgeschoss mit großen Fensterfronten und großen Velux-Fenster, ein Velux-Fenster elektrisch Steuerbar + Durchdachter Grundriss mit idealer Raumaufteilung - zwei separate Zimmer und offener Wohn- Essbereich + Lift, eigener Kellerraum, elektrisches Velux-Fenster für komfortablen und hohen Wohnkomfort + Großer Balkon mit Weitblick und ruhiger, rückwärtiger Ausrichtung
Grundrisse
Grundrisse
1 / 1
Virtueller Rundgang
3D tour
Bausubstanz und Energie
Heizwärmebedarf (HWB)
B
Gesamtenergieeffizienz (fGEE)
B
Baujahr2009
Zustand der ImmobilieGepflegt
HeizungsartZentralheizung
EnergieträgerGas
Preisdetails
Kaufpreis
435000 €435.000 €
5.958,90 €/m²
Provision für Käufer
Die Courtage i.H.v. 3,60 % inkl. MwSt. ist bei Kaufvertragsabschluss verdient und fällig.
Lage
Wien (1140)
Der Anbieter hat die genaue Adresse nicht freigegeben
Lage: Attraktive Citylage in Wien-Penzing mit diversen Anlaufmöglichkeiten für den täglichen Bedarf Bildung und Betreuung: Familien profitieren von Kindergarten und Schule in naher Umgebung Nahversorgung: Supermarkt, Apotheke, Drogerien, Ärzte, Post, u.v.m. in direkter Nachbarschaft Anbindung: Straßenbahn 10, 49, 52 vor der Tür, U-Bahn und Autobahn komfortabel erreichbar
Weitere Informationen
Sonstiges
Vereinbaren Sie noch heute einen Besichtigungstermin! _____________________________________________________
Alle Angaben sind ohne Gewähr und basieren ausschließlich auf Informationen, die uns von unserem Auftraggeber zur Verfügung gestellt wurden. Wir übernehmen keine Gewähr für die Vollständigkeit, Richtigkeit und Aktualität der Angaben.
Stichworte
Gesamtfläche: 73,00 m², Anzahl der Schlafzimmer: 1, Anzahl der Badezimmer: 1, Anzahl Balkone: 1, 4 Etagen