

Reihenmittelhaus zum Kauf - Erstbezug793000 €7.187 €/m²4 Zimmer • 110,3 m²
793000 €
7.187 €/m²
4 Zimmer • 110,3 m²
Nur noch 2 Einheiten frei! Traumhafte Reihenhäuser in Völs - Ihr neues Zuhause für die Familie
Merkmale
- 2 Stellplätze: 2 Außen-Stellplätze
- Terrasse
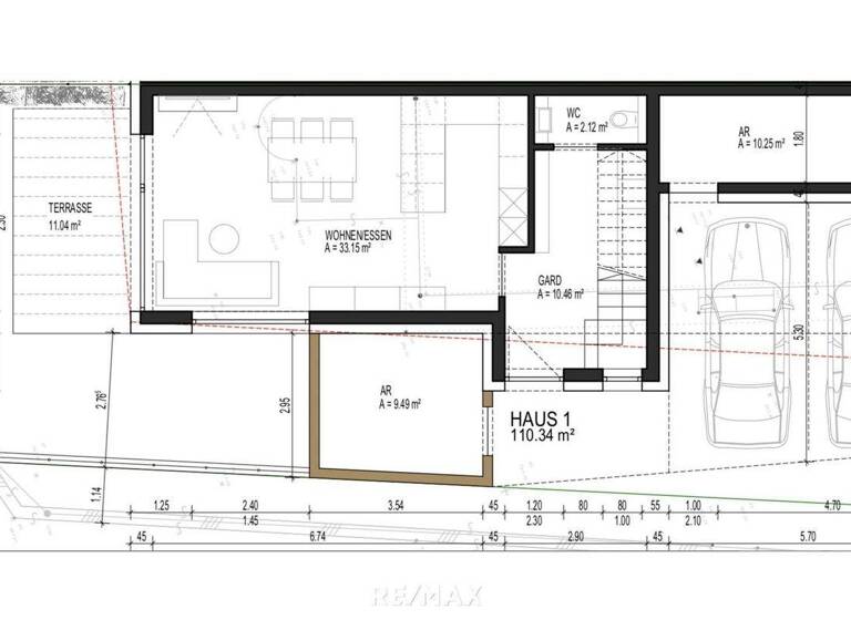
Grundrisse
Grundrisse
1 / 4
Realisiere Dein Projekt
Bausubstanz und Energie
Heizwärmebedarf (HWB)
B
Gesamtenergieeffizienz (fGEE)
- Baujahrca. 2027
- Zustand der ImmobilieErstbezug
- EnergieträgerErdwärme
Preisdetails
Kaufpreis
793000 €
7.186,88 €/m²
Provision für Käufer
3.00 % zzgl. MwSt.
Weitere Preisinformationen
2 Stellplätze
Lage

Völs (6176)
Der Anbieter hat die genaue Adresse nicht freigegeben
Weitere Informationen
Weitere Services
Lust auf eine Besichtigung?
Eine Frage zur Immobilie?
Über den Anbieter
Amraser Straße 85, 6020 INNSBRUCK
Frau Nicola DertnigDein Kontakt
Weitere Unterlagen
Online-ID: 2461ZA56FR67
Referenznummer: 1613/10938

RE/MAX Recon - Grünauer Immobilien GmbH & Conterra Immobilien GmbH
Wie zufrieden bist du mit dieser Seite (nicht mit der Immobilie selbst)?

