Version: 8.24.1Navigation überspringen
SCHYREN IMMOBILIEN
199.000 €
3 Zimmer  •  86 m²

Wohnung zum Kauf
199000 €
2.314 €/m²
3 Zimmer  •  86 m²

Sonniger Rückzugsort im OG

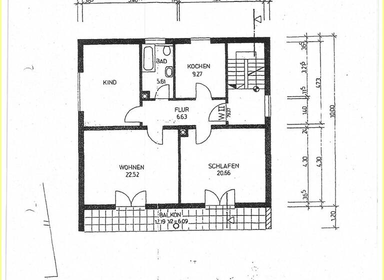
Diese großzügige 3-Zimmer-Wohnung im Obergeschoss eines gepflegten 3-Parteienhauses in Reichertshausen-Langwaid überzeugt durch eine durchdachte Raumaufteilung, angenehme Helligkeit und einen sonnigen Balkon mit Blick ins Grüne.

Auf ca. 86?m² Wohnfläche verteilen sich ein großes Wohnzimmer mit Zugang zum Südbalkon, ein separates Schlafzimmer, ein Kinder-/Arbeitszimmer, eine abgeschlossene Küche mit Fenster sowie ein Tageslichtbad mit Badewanne.

Die Wohnung ist langfristig vermietet und eignet sich daher ideal als Kapitalanlage. Eine Einbauküche ist Bestandteil des Objekts.

Zwei Kfz-Stellplätze (einer fest, einer vermietet) bieten zusätzlichen Komfort. Zudem gehören ein eigenes Kellerabteil und die Nutzung eines Waschraums zur Wohnung.

???? Nutzen Sie diese Gelegenheit und fordern Sie jetzt das vollständige Exposé an oder vereinbaren Sie gleich einen Besichtigungstermin!

Merkmale

  • Bezug: nach Vereinbarung
  • vermietet
  • Haustiere erlaubt
  • Einbauküche
  • Kelleranteil
  • 2 Stellplätze: 2 Außen-Stellplätze
  • Balkon
  • offener Kamin

Grundrisse

Grundrisse
1 / 1

Realisiere Dein Projekt

Bausubstanz und Energie

Energieausweis

C
  • Baujahr1964
  • Zustand der ImmobilieGepflegt
  • EnergieträgerÖl
MediumRectangleTop

Preisdetails

Kaufpreis
199000 €
2.313,95 €/m²
Preis pro Stellplatz
5000 €
Provision für Käufer
3,57%
Weitere Preisinformationen
2 Stellplätze, Kaufpreis je: 5.000,00 EUR
Geschätzte Gesamtkosten
217.049 €1
Kaufpreis
199.000 €
Notarkosten (1,5%)
2.985 €
Grunderwerbsteuer (3,5%)
6.965 €
Provision für Käufer (3,57%)
7.104 €
Grundbucheintrag (0,5%)
995 €
1Der angezeigte Wert ist eine automatisch berechnete Schätzung von immowelt.
2Bei den Angaben handelt es sich um ortsübliche Werte. Individuelle Kosten können abweichen.

Lage

address-icon
LangwaidReichertshausen / Langwaid (85293)
Der Anbieter hat die genaue Adresse nicht freigegeben
Ruhig, grün und gut angebunden: Die Wohnung liegt im idyllischen Ortsteil Langwaid von Reichertshausen. Die Nachbarschaft ist geprägt von gepflegten Häusern und viel Natur. Einkaufsmöglichkeiten, Bahnanschluss, Kindergärten und Schulen sind in Reichweite.

Über die nahegelegene B13 sowie die A9 erreichen Sie München, Ingolstadt oder Pfaffenhofen in kurzer Zeit - ideal für Berufspendler mit Wunsch nach naturnahem Wohnen.

Weitere Informationen

Sonstiges Alle Angaben sind ohne Gewähr und basieren ausschließlich auf Informationen, die uns von unserem Auftraggeber übermittelt wurden. Wir übernehmen keine Gewähr für die Vollständigkeit, Richtigkeit und Aktualität dieser Angaben. Irrtum und Zwischenverkauf oder Zwischenvermietung vorbehalten. Aufgrund des Geldwäschegesetzes (GwG) sind wir verpflichtet, spätestens bei Kaufinteresse Ihre Personalien zu überprüfen und dies auch nachzuweisen. Bitte haben Sie daher Verständnis, dass wir eine Kopie Ihres Personalausweises anfertigen müssen, sowie sämtliche Daten werden durch uns selbstverständlich streng vertraulich behandelt. Erfüllungsort für alle Verpflichtungen des Kunden ist der Sitz unserer Firma. Ist der Kunde Kaufmann im Sinne des HGB, ist Gerichtsstand der Sitz unserer Firma.
Dieses Exposé ist eine Vorabinformation und wurde mit Hilfe von KI erstellt. Als Rechtsgrundlage gilt allein der notariell abgeschlossene Kaufvertrag. Stichworte Grundstücksfläche: 621,00 m², Anzahl der Schlafzimmer: 1, Anzahl der Badezimmer: 1, Anzahl Balkone: 1, 3 Etagen, Distanz zum Kindergarten: 2.44, Distanz zur Grundschule: 2.46, Distanz zur Realschule: 3.75, Distanz zum Gymnasium: 8.14, Distanz zur Autobahn: 10.10, Distanz vom Zentrum: 2.38

Weitere Services

Lust auf eine Besichtigung?
Eine Frage zur Immobilie?
Nachricht hinzufügen
Mit der Nutzung der oben angegebenen Telefonnummer oder durch Klicken auf „Kontaktieren“ akzeptierst Du die Allgemeinen Nutzungsbedingungen, denen Du jederzeit widersprechen kannst. Weitere Informationen zum Datenschutz

Über den Anbieter

Schulstr. 9, 85276 Pfaffenhofen an der Ilm
partner badge
Partnerschaft
Herr Michael PetschikDein Kontakt
Online-ID: 2mm5t5b
Referenznummer: SI-25-0027-OG
SCHYREN IMMOBILIEN
SCHYREN IMMOBILIEN
Bewertung: 4,8 von 5 Sternen
Nachricht hinzufügen
Mit der Nutzung der oben angegebenen Telefonnummer oder durch Klicken auf „Kontaktieren“ akzeptierst Du die Allgemeinen Nutzungsbedingungen, denen Du jederzeit widersprechen kannst. Weitere Informationen zum Datenschutz
MediumRectangleTop
MediumRectangleBottom
MediumRectangleTop
Wie zufrieden bist du mit dieser Seite (nicht mit der Immobilie selbst)?