Wohnen im Sarntal: Ihr Bauernhof in Traumlage, Nähe zu Bozen
Dieser idyllische Hof im Sarntal, umgeben von 9 Hektar Wald, 3 Hektar Wiesen und 1 Hektar Weidefläche, bietet eine einzigartige Gelegenheit, inmitten der Natur zu leben und gleichzeitig die Nähe zu Bozen zu genießen.
Der Hof umfasst ein Wohnhaus, welches 2007 erbaut wurde, eine große Garage und einen Stadel. Das Wohnhaus ist wie folgt eingeteilt:
Erdgeschoss: (ca. 110 m²) bestehend zwei gemütlichen Schlafzimmern, einem Arbeitsraum, einer einladenden Stube und einer voll ausgestatteten Küche mit Speisekammer. Das geräumige Badezimmer mit Eckbadewanne lädt zum Entspannen ein, und das separate WC mit Dusche bietet zusätzliche Bequemlichkeit. Besonders hervorzuheben ist der sonnige, südwestlich ausgerichtete Balkon, der sowohl von der Stube als auch von einem Schlafzimmer zugänglich ist - hier können Sie den beeindruckenden Ausblick auf die umliegende Bergwelt genießen.
Dachgeschoss (ca. 100 m² im Rohbau): Individuell gestaltbar mit bis zu 4 Zimmern und 2 Bädern. Zugang zu einem weiteren Balkon.
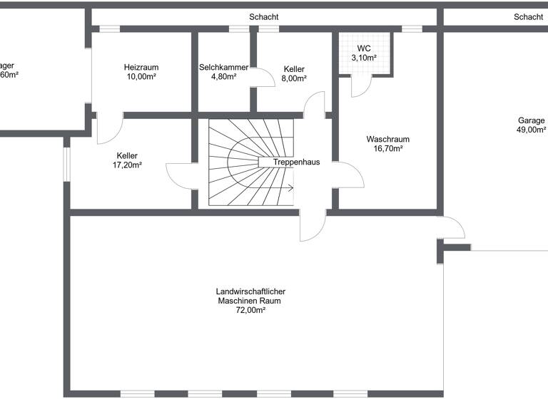
Untergeschoss: stehen Ihnen eine große Garage (49 m²), ein Maschinenraum (72 m²), ein Waschraum mit zusätzlicher Dusche und WC sowie zwei praktische Keller und der Heizraum zur Verfügung. Die umweltfreundliche Heiztechnik wird durch ein Hackschnitzellager und Sonnenkollektoren unterstützt, die im Sommer das Warmwasser liefern und im Winter zur Beheizung beitragen.
Ein weiteres Highlight: Der Hof verfügt über eine eigene Quelle mit Wasserkonzession sowie eine Bewässerungsmöglichkeit für die Wiesen. Außerdem profitieren Sie von Miteigentumsrechten an verschiedenen Bau- und Grundparzellen im Sarntal.
Der Hof bietet zudem hervorragende Freizeitmöglichkeiten, darunter direkten Zugang zum nahegelegenen Skigebiet Reinswald mit Quad oder Schneemobil oder klassisch ist man mit dem Auto in 7 Minuten bei der Talstatio der Bergbahnen.
Mit der Möglichkeit zur Erweiterung und der Nähe zu Bozen (weniger als 40 Minuten), eignet sich dieser Hof ideal als neues Zuhause. Ein perfekter Rückzugsort für Naturliebhaber und all jene, die Ruhe und Natur genießen möchten.