


1 / 13



1 / 13
Wohnung zum Kauf - Erstbezug524000 €524.000 €6.907 €/m²3 Zimmer • 75,9 m²
524000 €524.000 €
6.907 €/m²
3 Zimmer • 75,9 m²
Hochwertiger, sonniger Neubau als Familienhit: Gartenwohnung Top W01
Hochwertiges Wohnprojekt, das sowohl Eigennutzer als auch Anleger anspricht: 6 Neubauwohnungen in Schönberg
Investieren Sie in eine zukunftssichere Immobilie! In Schönberg im Stubaital entsteht ein hochwertiges Neubauprojekt mit nur sechs Einheiten, das Eigennutzer und Anleger gleichermaßen begeistert.
Ihre Vorteile auf einen Blick:
. Hochwertige Ausführung: Die Massivbauweise mit modernem Pultdach und Wärmedämmverbundsystem sorgt für Langlebigkeit und Energieeffizienz. Kunststofffenster mit 3-Scheiben-Isolierverglasung bieten besten Wärmeschutz.
. Nachhaltige Technik: Die Fußbodenheizung wird von einer effizienten Luft-Wasser-Wärmepumpe gespeist, unterstützt durch eine Photovoltaikanlage am Dach. Jede Einheit verfügt über einen eigenen Warmwasserboiler.
. Exklusive Ausstattung: Wohnräume erhalten edlen Klebeparkett aus Eiche mit passenden Sockelleisten, während Bäder und Gänge mit elegantem Feinsteinzeug gestaltet werden. Ein Waschmaschinenanschluss im Bad und eine Video-Türsprechanlage bieten zusätzlichen Komfort.
. Individuelle Stellplatzwahl: Wählen Sie zwischen freien Stellplätzen oder überdachten Carport-Stellplätzen (gegen Aufpreis).
Zeitplan:
Der Bau ist bereits im Gange, und die Fertigstellung ist für Juli 2025 geplant. Profitieren Sie von der Möglichkeit, individuelle Wünsche frühzeitig vorzubringen!
. Bis Dezember 2024: Fertigstellung des Wärmedämmverbundsystems (WDVS) und je nach Witterung Beginn der Verputzarbeiten.
. Ab Jänner 2025: Start der Fliesenlegerarbeiten.
. Ab Februar 2025: Malerarbeiten, Parkettverlegung und Schlosserarbeiten.
. Ab März 2025: Installation der Sanitäranlagen.
. Ab April 2025: Abschlussarbeiten, wie Plattenlegen und letzte Details.
Exklusive 3-Zimmer-Wohnung auf 75,86 m² Wohnfläche
In Schönberg im Stubaital erwartet Sie eine exklusive Neubau-Gartenwohnung. Mit einer Wohnfläche von 75,86 m², einer großzügigen Terrasse von 23,12 m² und einem privaten Garten mit 48,98 m² bietet diese Neubauwohnung höchsten Wohnkomfort und eine ideale Gelegenheit, in moderne Lebensqualität zu investieren. Die Wohnung wird im Untergeschoss eines kleinen, modernen Wohngebäudes errichtet, dessen Fertigstellung voraussichtlich im Juli 2025 erfolgt. Die Verfügbarkeit erfolgt nach individueller Vereinbarung.
Die Raumaufteilung umfasst drei Zimmer, die vielfältige Nutzungsmöglichkeiten eröffnen, von einem geräumigen Wohnzimmer bis hin zu privaten Rückzugsorten. Die hochwertigen Bodenbeläge aus Eichenparkett und Feinsteinzeug verleihen der Wohnung eine zeitlose Eleganz, während die Fußbodenheizung für wohlige Wärme sorgt. Das Badezimmer ist mit modernen, sanitären Einrichtungen ausgestattet und erfüllt höchste Ansprüche an Design und Funktionalität.
Die nachhaltige Befeuerung durch eine Luftwärmepumpe in Kombination mit einer Photovoltaikanlage sorgt für niedrige Energiekosten und einen umweltfreundlichen Betrieb.
Nutzen Sie diese Gelegenheit, in eine zukunftsorientierte Immobilie in der idyllischen Lage des Stubaitals zu investieren!
ECKDATEN:
Objekttyp Gartenwohnung
Zimmer 3
Wohnfläche 75,86 qm
Terrasse 23,12 qm
Garten 48,98 qm
Zustand Neubau | Erstbezug
Baujahr 2023-2025
Fertigstellung voraussichtlich Juli 2025
Verfügbarkeit nach Vereinbarung
Etage Untergeschoß
Personenaufzug Nein
Barrierefreiheit Nein
Bodenbeläge Eichenparkett + Feinsteinzeug
Ausstattung Sanitäre Badezimmer
Heizung Fußbodenheizung
Befeuerung Luftwärmepumpe + PV-Anlage
HWB Ref, SK 48,8 kWh/m²a (Klasse B)
fGEE, SK 0,67 (Klasse A+)
Kaufpreis Eigennutzer:
Wohnung W01: € 524.000,00 brutto
PKW-Abstellplatz Eigennutzer ab € 16.000 brutto
Kaufpreis Anleger:
Wohnung W01: € 461.000,00 netto zzgl. 20 % USt
PKW-Abstellplatz ab € 14.000 netto zzgl. 20 % USt
Die Übergabe erfolgt schlüsselfertig, sodass Sie Ihre Immobilie unverzüglich beziehen oder zur Vermietung bereitstellen können.
Nutzen Sie diese einzigartige Gelegenheit, in einem der schönsten Täler Tirols zu investieren! Kontaktieren Sie uns noch heute für weitere Informationen oder einen Besichtigungstermin vor Ort.
IHR ANSPRECHPARTNER:
Herr Dipl.-Ing. (FH) Ing. Simon Brugger, BA
Mobil: +43 664 5251685
E-Mail: s.brugger@perfektimmo.at
www.perfektimmo.at [http://www.perfektimmo.at]
NEBENKOSTEN:
Maklerhonorar: 3,6% inkl. USt
Vertragserrichtungskosten: ca. 1,8% zzgl. USt und Barauslagen
Grunderwerbssteuer: 3,5%
Grundbuchseintragung: 1,1% Unter Umständen könnte hier eine Befreiung gemäß dem Beschluss der Österreichischen Bundesregierung für die Eintragung des Eigentumsrechts sowie die Eintragung einer eventuellen Pfandurkunde möglich sein.
Alle Angaben nach bestem Wissen. Irrtum und Zwischenverkauf vorbehalten. Dieses Exposé ist eine Vorinformation, als Rechtsgrundlage gilt alleine der abgeschlossene Kaufvertrag. §15 der Maklerverordnung gilt als vereinbart.
Weitere tolle Angebote finden Sie unter:
https://www.perfektimmo.at/angebote
Der Vermittler ist als Doppelmakler tätig.
Infrastruktur / Entfernungen
Gesundheit
Arzt <2.000m
Apotheke <3.000m
Klinik <4.500m
Krankenhaus <6.500m
Kinder & Schulen
Schule <500m
Kindergarten <500m
Universität <4.500m
Höhere Schule <7.500m
Nahversorgung
Supermarkt <500m
Bäckerei <1.000m
Einkaufszentrum <8.500m
Sonstige
Bank <500m
Geldautomat <500m
Post <5.000m
Polizei <1.000m
Verkehr
Bus <500m
Straßenbahn <1.500m
Bahnhof <1.500m
Autobahnanschluss <500m
Flughafen <9.000m
Angaben Entfernung Luftlinie / Quelle: OpenStreetMap
Investieren Sie in eine zukunftssichere Immobilie! In Schönberg im Stubaital entsteht ein hochwertiges Neubauprojekt mit nur sechs Einheiten, das Eigennutzer und Anleger gleichermaßen begeistert.
Ihre Vorteile auf einen Blick:
. Hochwertige Ausführung: Die Massivbauweise mit modernem Pultdach und Wärmedämmverbundsystem sorgt für Langlebigkeit und Energieeffizienz. Kunststofffenster mit 3-Scheiben-Isolierverglasung bieten besten Wärmeschutz.
. Nachhaltige Technik: Die Fußbodenheizung wird von einer effizienten Luft-Wasser-Wärmepumpe gespeist, unterstützt durch eine Photovoltaikanlage am Dach. Jede Einheit verfügt über einen eigenen Warmwasserboiler.
. Exklusive Ausstattung: Wohnräume erhalten edlen Klebeparkett aus Eiche mit passenden Sockelleisten, während Bäder und Gänge mit elegantem Feinsteinzeug gestaltet werden. Ein Waschmaschinenanschluss im Bad und eine Video-Türsprechanlage bieten zusätzlichen Komfort.
. Individuelle Stellplatzwahl: Wählen Sie zwischen freien Stellplätzen oder überdachten Carport-Stellplätzen (gegen Aufpreis).
Zeitplan:
Der Bau ist bereits im Gange, und die Fertigstellung ist für Juli 2025 geplant. Profitieren Sie von der Möglichkeit, individuelle Wünsche frühzeitig vorzubringen!
. Bis Dezember 2024: Fertigstellung des Wärmedämmverbundsystems (WDVS) und je nach Witterung Beginn der Verputzarbeiten.
. Ab Jänner 2025: Start der Fliesenlegerarbeiten.
. Ab Februar 2025: Malerarbeiten, Parkettverlegung und Schlosserarbeiten.
. Ab März 2025: Installation der Sanitäranlagen.
. Ab April 2025: Abschlussarbeiten, wie Plattenlegen und letzte Details.
Exklusive 3-Zimmer-Wohnung auf 75,86 m² Wohnfläche
In Schönberg im Stubaital erwartet Sie eine exklusive Neubau-Gartenwohnung. Mit einer Wohnfläche von 75,86 m², einer großzügigen Terrasse von 23,12 m² und einem privaten Garten mit 48,98 m² bietet diese Neubauwohnung höchsten Wohnkomfort und eine ideale Gelegenheit, in moderne Lebensqualität zu investieren. Die Wohnung wird im Untergeschoss eines kleinen, modernen Wohngebäudes errichtet, dessen Fertigstellung voraussichtlich im Juli 2025 erfolgt. Die Verfügbarkeit erfolgt nach individueller Vereinbarung.
Die Raumaufteilung umfasst drei Zimmer, die vielfältige Nutzungsmöglichkeiten eröffnen, von einem geräumigen Wohnzimmer bis hin zu privaten Rückzugsorten. Die hochwertigen Bodenbeläge aus Eichenparkett und Feinsteinzeug verleihen der Wohnung eine zeitlose Eleganz, während die Fußbodenheizung für wohlige Wärme sorgt. Das Badezimmer ist mit modernen, sanitären Einrichtungen ausgestattet und erfüllt höchste Ansprüche an Design und Funktionalität.
Die nachhaltige Befeuerung durch eine Luftwärmepumpe in Kombination mit einer Photovoltaikanlage sorgt für niedrige Energiekosten und einen umweltfreundlichen Betrieb.
Nutzen Sie diese Gelegenheit, in eine zukunftsorientierte Immobilie in der idyllischen Lage des Stubaitals zu investieren!
ECKDATEN:
Objekttyp Gartenwohnung
Zimmer 3
Wohnfläche 75,86 qm
Terrasse 23,12 qm
Garten 48,98 qm
Zustand Neubau | Erstbezug
Baujahr 2023-2025
Fertigstellung voraussichtlich Juli 2025
Verfügbarkeit nach Vereinbarung
Etage Untergeschoß
Personenaufzug Nein
Barrierefreiheit Nein
Bodenbeläge Eichenparkett + Feinsteinzeug
Ausstattung Sanitäre Badezimmer
Heizung Fußbodenheizung
Befeuerung Luftwärmepumpe + PV-Anlage
HWB Ref, SK 48,8 kWh/m²a (Klasse B)
fGEE, SK 0,67 (Klasse A+)
Kaufpreis Eigennutzer:
Wohnung W01: € 524.000,00 brutto
PKW-Abstellplatz Eigennutzer ab € 16.000 brutto
Kaufpreis Anleger:
Wohnung W01: € 461.000,00 netto zzgl. 20 % USt
PKW-Abstellplatz ab € 14.000 netto zzgl. 20 % USt
Die Übergabe erfolgt schlüsselfertig, sodass Sie Ihre Immobilie unverzüglich beziehen oder zur Vermietung bereitstellen können.
Nutzen Sie diese einzigartige Gelegenheit, in einem der schönsten Täler Tirols zu investieren! Kontaktieren Sie uns noch heute für weitere Informationen oder einen Besichtigungstermin vor Ort.
IHR ANSPRECHPARTNER:
Herr Dipl.-Ing. (FH) Ing. Simon Brugger, BA
Mobil: +43 664 5251685
E-Mail: s.brugger@perfektimmo.at
www.perfektimmo.at [http://www.perfektimmo.at]
NEBENKOSTEN:
Maklerhonorar: 3,6% inkl. USt
Vertragserrichtungskosten: ca. 1,8% zzgl. USt und Barauslagen
Grunderwerbssteuer: 3,5%
Grundbuchseintragung: 1,1% Unter Umständen könnte hier eine Befreiung gemäß dem Beschluss der Österreichischen Bundesregierung für die Eintragung des Eigentumsrechts sowie die Eintragung einer eventuellen Pfandurkunde möglich sein.
Alle Angaben nach bestem Wissen. Irrtum und Zwischenverkauf vorbehalten. Dieses Exposé ist eine Vorinformation, als Rechtsgrundlage gilt alleine der abgeschlossene Kaufvertrag. §15 der Maklerverordnung gilt als vereinbart.
Weitere tolle Angebote finden Sie unter:
https://www.perfektimmo.at/angebote
Der Vermittler ist als Doppelmakler tätig.
Infrastruktur / Entfernungen
Gesundheit
Arzt <2.000m
Apotheke <3.000m
Klinik <4.500m
Krankenhaus <6.500m
Kinder & Schulen
Schule <500m
Kindergarten <500m
Universität <4.500m
Höhere Schule <7.500m
Nahversorgung
Supermarkt <500m
Bäckerei <1.000m
Einkaufszentrum <8.500m
Sonstige
Bank <500m
Geldautomat <500m
Post <5.000m
Polizei <1.000m
Verkehr
Bus <500m
Straßenbahn <1.500m
Bahnhof <1.500m
Autobahnanschluss <500m
Flughafen <9.000m
Angaben Entfernung Luftlinie / Quelle: OpenStreetMap
Merkmale
- Bezug: nach Vereinbarung
- Garten
- Terrasse
- Badewanne
- Bodenbelag: Fliesen, Parkett
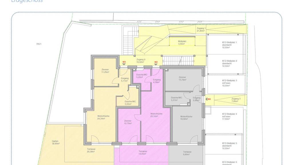
Grundrisse
Grundrisse
1 / 4
Realisiere Dein Projekt
Bausubstanz und Energie
Heizwärmebedarf (HWB)
B
Gesamtenergieeffizienz (fGEE)
A+
- Baujahr2024
- Zustand der ImmobilieNeubau, Massivhaus, Erstbezug
- HeizungsartFußbodenheizung
- EnergieträgerLuft-/Wasser-Wärmepumpe
Preisdetails
Kaufpreis
524000 €524.000 €
6.907,46 €/m²
Provision für Käufer
3% des Kaufpreises zzgl. 20% USt.
Lage

Schönberg im Stubaital (6141)
Als Tor zum Stubaital verbindet Schönberg die Ruhe der Natur mit der Nähe zur Landeshauptstadt Innsbruck, die in ca. 15 Autominuten erreichbar ist. Für Naturliebhaber ist die Region ideal: Ob Wandern, Klettern, Mountainbiken oder Skifahren - das Stubaital bietet eine Vielzahl an Aktivitäten und die atemberaubende Berglandschaft sorgt für ein unvergleichliches Freizeiterlebnis. Zusätzlich bietet das Freizeitcenter StuBay das ganze Jahr über ein tolles Schwimmbad mit Wellness- und Fitnessmöglichkeiten.
Weitere Informationen
Stichworte
West-Balkon/Terrasse, Anzahl der Badezimmer: 1, Anzahl der separaten WCs: 1, Anzahl Terrassen: 1, Balkon-Terrassen-Fläche: 23,12 m², Gartenfläche: 48,98 m², Bundesland: Tirol, 3 Etagen
Weitere Services
Lust auf eine Besichtigung?
Eine Frage zur Immobilie?
Über den Anbieter
Online-ID: 244PPACN5V8P
Referenznummer: OBGC202411221130438757fc0f15901


Perfekt Immo GmbH
5/5Bewertung: 5 von 5 Sternen
Wie zufrieden bist du mit dieser Seite (nicht mit der Immobilie selbst)?