hochwertiges Einfamilienhaus (KfW 70) mit Nebengebäude, Doppelgarage und riesigem Grundstück
5-2/2-Zimmer-Einfamilienhaus in bevorzugter Wohnlage in Jork.
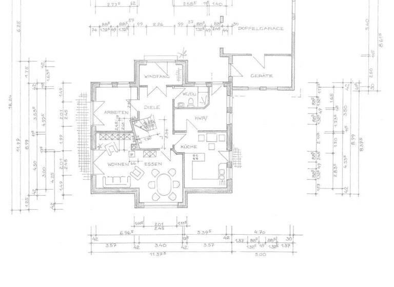
Flächenaufteilung:
– Ca. 164 m² – Einfamilienhaus (Wohnfläche)
– Ca. 200 m² – Nebengebäude (Nutzfläche)
– Ca. 50 m² – Doppelgarage mit Abstellraum (Nutzfläche)
– Ca. 40 m² – Wohnmobilcarport (Nutzfläche)
– Ca. 4.335 m² – Gesamtgrundstück (real geteilt)
davon: ca. 1.750 m² – Bauland / ca. 2.585 m² – Grünland
– Baujahr 2012
– angelegter Vorgarten
– gefliester Windfang mit Garderobenplatz
– gefliester Erdgeschossflur mit Telefon-Anschluss
– modern gefliestes Badezimmer I mit ebenerdiger Dusche, Fußbodenerwärmung, Handtuchheizung sowie Fenster inkl. elektrischem Außenrollladen
– modern gefliester Hauswirtschaftsraum (ca. 10 m²) mit Außeneingang, Abstellfläche, elektrischen Außenrollläden sowie Waschmaschinen- und Trockner-Anschluss
– geflieste Wohnküche (ca. 17 m²) mit gepflegter Einbauküche in U-Form (Geschirrspüler, Induktionsfeld, Backofen in Stehhöhe etc.), Terrassenausgang, Essbereich, elektrischen Außenrollläden sowie TV-, Telefon- und LAN-Anschluss
– kleine Ost-Terrasse
– großes Wohn-/Esszimmer (ca. 29 m²) mit Parkettfußboden, Terrassenausgang, Kaminofen, elektrischen Außenrollläden sowie TV- und Telefon-Anschluss
– teilweise überdachte Süd-/West-Terrasse mit Sichtschutz
– liebevoll angelegtes Grundstück
– gefliestes Arbeitszimmer (ca. 12 m²) mit TV-Anschluss, Hofzugang und elektrischen Außenrollläden
– geschlossene Holztreppe zum Dachgeschoss
– großer Dachgeschossflur mit Laminatfußboden und Telefon-Anschluss
– Schlafzimmer (ca. 14 m²) mit Laminatfußboden, elektrischen Außenrollläden, TV- und LAN-Anschluss sowie angrenzendem Badezimmer II & Ankleidezimmer
– Ankleidezimmer (ca. 7 m², ½ Zimmer) mit Laminatfußboden, elektrischem Außenrollladen und Einbauschrank
– modern gefliestes Badezimmer II mit Fußbodenerwärmung, zwei Waschtischen, freistehender Badewanne, großer ebenerdiger Duschbereich inkl. Regendusche, Handtuchheizung, Fenster inkl. elektrischen Außenrollläden und LAN-Anschluss
– Kinderzimmer I (ca. 17 m²) mit Laminatfußboden, elektrischen Außenrollläden, Einbauschrank und TV-Anschluss
– Kinderzimmer II (ca. 11 m²) mit Laminatfußboden elektrischen Außenrollläden und LAN-Anschluss
– Gästezimmer (ca. 8 m² – 1/2 Zimmer) mit Laminatfußboden und elektrischem Außenrollladen
– Abstellfläche auf dem (ausbaufähigen) Dachboden
– 3-fach verglaste Kunststofffenster
– Viessmann-Gasbrennwertheizung mit Warmwasseraufbereitung
– Photovoltaikanlage mit 4 Modulen auf dem Dach
– großer, separater unbeheizter Wintergarten (ca. 15 m²) inkl. Markise
– große Doppelgarage inkl. elektrischer Tore und angrenzendem Heizung-/Anschlussraum
– großer Carport (für Wohncamper) vorhanden
– SAT-Anlage vorhanden
Nebengebäude:
– Abstellfläche
– Dacheindeckung – 2014 –
– 2-fach verglaste Kunststofffenster – 2014 –
– Photovoltaikanlage (7,40 kWp) mit 29 Modulen – 2014 –
Anmerkungen:
– das Haus befindet sich in einem gepflegten Zustand
– KfW-70-Effizenshaus
– aus Diskretionsgründen veröffentlichen wir keine Innenaufnahmen vom Kinderzimmer II, Hauswirtschaftsraum und dem Nebengebäude
– Verbrauchsausweis, Endenergieverbrauch 54,1 kWh/(m²*a), Gas, Gebäudebaujahr 2013, Energieeffizienzklasse B
Besonderheiten:
– Ca. 5.600 Liter Regenwasserzisterne
– Laut Bebauungsplan besteht die Möglichkeit einer Bebauung im vorderen Grundstücksbereich