Version: 8.24.1Navigation überspringen
FALC Real Estate
489.000 €
4 Zimmer  •  93 m²  •  13. Geschoss

Wohnung zum Kauf • provisionsfrei
489000 €
3.147 €/m²
4 Zimmer  •  93 m²  •  13. Geschoss

Über den Wolken Meer Natur als Kulisse für Ihr neues Leben.

Genießen Sie das Meer, den Golfsport und das Leben in Benidorm - alles an einem Ort.
In privilegierter Lage direkt am Las Rejas Golfplatz, nur 1 km vom Playa de Poniente entfernt, entsteht der Eagle Tower - ein moderner Wohnturm mit ausgezeichneter Anbindung an die N-332 und die AP-7.

Der Eagle Tower bietet eine Vielzahl an Wohnungstypen mit 1, 2, 3 oder 4 Schlafzimmern, jeweils mit eigenem Parkplatz und großzügigen Terrassen mit Glasgeländern - für maximale Helligkeit und traumhafte Ausblicke.

Die Wohnanlage beeindruckt mit über 5.400 m² hochwertig gestalteten Gemeinschaftsbereichen, darunter:

ein großer Pool für Erwachsene

ein separates Kinderbecken

zwei Whirlpools

ein moderner Fitnessraum

ein Paddle-Tennisplatz

ein Multisportfeld

Spielplätze für Kinder

weitläufige Grünflächen

mehrere Fahrradabstellplätze

Eagle Tower - Ihr neues Zuhause zwischen Meer und Natur.
Wählen Sie Ihre Traumwohnung mit 2, 3 oder 4 Schlafzimmern in einer der gefragtesten Strandlagen von Benidorm.

Merkmale

  • 13. Geschoss
  • Personenaufzug
  • Kelleranteil
  • Balkon
  • Garten
  • Terrasse
  • Meerblick

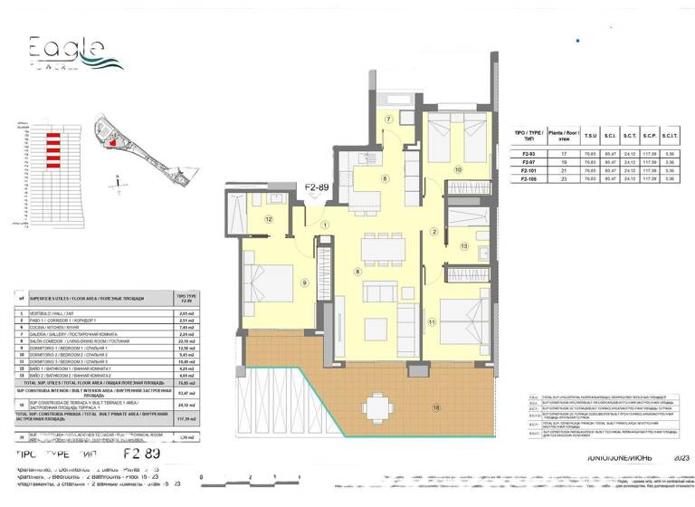
Grundrisse

Grundrisse
1 / 1

Realisiere Dein Projekt

Bausubstanz und Energie

Der Anbieter hat keine Informationen zum Energieverbrauch bereit gestellt.
  • Baujahr2024
  • Zustand der Immobilieneuwertig
  • EnergieträgerSolar
MediumRectangleTop

Preisdetails

Kaufpreis
489000 €
3.147,44 €/m²
Provision für Käufer
provisionsfrei

Lage

address-icon
Benidorm (03502)
Lage & Umgebung - Leben, wo andere Urlaub machen
Traumhafte Strände - nur wenige Minuten entfernt
Benidorm bietet eine beeindruckende Küstenlandschaft mit kristallklarem Wasser. Der über 3 Kilometer lange Playa de Poniente, nur 5 Autominuten vom Eagle Tower entfernt, lädt zum Sonnenbaden und Schwimmen ein.

Weitere beliebte Strände in der Umgebung:

Playa de Levante - lebhaft und zentral

Playa del Mal Pas - ein kleines Juwel mit einem geschützten Meeresgebiet, ideal zum Tauchen

Cala del Tío Ximo & Cala de la Almadrava - ruhige Buchten, perfekt zum Entspannen oder Schnorcheln

Freizeit & Kultur - Vielfalt für jeden Geschmack
Benidorm begeistert mit einem breiten Freizeitangebot - ob tagsüber oder abends:

Shopping in vielfältigen Einkaufszonen

Zahlreiche Bars, Restaurants, Pubs, Tanzlokale und Diskotheken

Die charmante Altstadt, das beliebte englische Viertel, der elegante Benidorm Palace oder das moderne Casino Mediterráneo

Der malerische Balcón del Mediterráneo mit atemberaubendem Blick über die Bucht

Erlebnis pur - Freizeitparks für die ganze Familie
Benidorm ist berühmt für seine Themen- und Wasserparks:

Aqualandia - größter Wasserpark Europas

Terra Mítica - Vergnügungspark mit antiken Welten

Terra Natura - Tierpark mit naturnaher Umgebung

Aqua Natura - Wasserpark für jedes Alter

Mundomar - exotischer Meeres- und Tierpark mit Shows und Interaktionen

Ein idealer Ort für Familien und Abenteurer - erleben Sie unvergessliche Tage in den Freizeitparks von Benidorm!

Golf - direkt vor Ihrer Haustür
Für Golfbegeisterte ist Eagle Tower ein wahrer Glücksgriff. Direkt neben der Wohnanlage liegt der 9-Loch-Golfplatz Las Rejas, der sich harmonisch in die Stadtstruktur einfügt.

Weitere Golfplätze in der Umgebung:

Villaitana Golf (Nicklaus Design) - zwei Premiumplätze, nur 10 Autominuten entfernt

Club de Golf Don Cayo (Altea Hills)

Club de Golf Bonalba (Mutxamel)

Club de Golf Ifach (Benissa)

Alle innerhalb von 30 Minuten bequem erreichbar - für abwechslungsreiche Golfrunden in mediterranem Ambiente.

Weitere Informationen

Sonstiges
FALC Exposé Homepage - https://www.falcimmo.de/immobilie/intern-1843642.html Stichworte Nutzfläche: 104,00 m², Gesamtfläche: 117,00 m², Anzahl der Schlafzimmer: 3, Anzahl der Badezimmer: 2, Anzahl Balkone: 1, Anzahl Terrassen: 1, Balkon-Terrassen-Fläche: 24,00 m², Bundesland: Valencia, Wohnungsnr.: 26, Distanz zum Flughafen: 40.0 Sonstiges: EDV-Verkabelung

Weitere Services

Lust auf eine Besichtigung?
Eine Frage zur Immobilie?
Nachricht hinzufügen
Mit der Nutzung der oben angegebenen Telefonnummer oder durch Klicken auf „Kontaktieren“ akzeptierst Du die Allgemeinen Nutzungsbedingungen, denen Du jederzeit widersprechen kannst. Weitere Informationen zum Datenschutz

Über den Anbieter

FALC Real Estate
FALC Real EstateMaklerbüro
Calle Marbella 53, 07610 Palma de Mallorca
partner badge
Partnerschaft
Herr Sven Robespierré HansenDein Kontakt
Online-ID: 2g94g5x
Referenznummer: FALC-SvHa-42304
FALC Real Estate
FALC Real Estate
Bewertung: 3,2 von 5 Sternen
Nachricht hinzufügen
Mit der Nutzung der oben angegebenen Telefonnummer oder durch Klicken auf „Kontaktieren“ akzeptierst Du die Allgemeinen Nutzungsbedingungen, denen Du jederzeit widersprechen kannst. Weitere Informationen zum Datenschutz
MediumRectangleTop
MediumRectangleTop
Wie zufrieden bist du mit dieser Seite (nicht mit der Immobilie selbst)?