Version: 8.25.1Navigation überspringen
ohne-makler.net - Immobilien selbst vermarkten
420.000 €
5 Zimmer  •  137 m²  •  156 m² Grundstück

Reihenmittelhaus zum Kauf • provisionsfrei
420000 €
3.066 €/m²
5 Zimmer  •  137 m²  •  156 m² Grundstück

Familienglück auf drei Etagen - Ihr neues Zuhause in Ludwigsfelde

Dieses gepflegte Reihenmittelhaus aus dem Baujahr 2002 bietet auf ca. 137 m² Wohnfläche und drei Etagen großzügigen Raum für die ganze Familie. Fünf Zimmer verteilen sich intelligent über Erdgeschoss, Obergeschoss und ein voll ausgebautes Dachgeschoss.
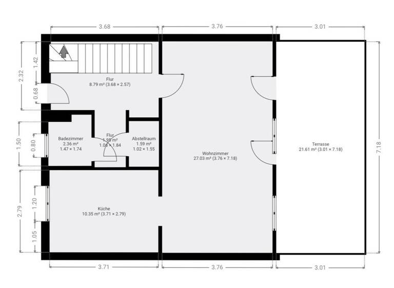
Im Erdgeschoss empfängt Sie ein heller Wohn- und Essbereich mit direktem Zugang zur südwestlich ausgerichteten Terrasse. Die separate Küche ist vollständig ausgestattet und im Kaufpreis enthalten. Ein Bad mit Dusche, ein praktischer Abstellraum und der Flur mit der einladenden Holztreppe komplettieren das Erdgeschoss.

Im Obergeschoss befinden sich drei Zimmer ideal als Elternschlafzimmer und Kinderzimmer nutzbar, sowie ein Bad mit Badewanne. Über eine weitere Holztreppe erreichen Sie das ausgebaute Dachgeschoss mit einem großzügigen Raum, der sich hervorragend als Jugendzimmer, Homeoffice oder Hobbyraum eignet. Ein separates WC und ein zusätzlicher Abstellraum runden das Raumangebot ab.

Das Highlight des Hauses: der liebevoll gestaltete Garten mit Holzterrasse, Rasenfläche und einem Pool perfekt für entspannte Sommertage. Die Süd-West-Ausrichtung sorgt für Sonne bis in den Abend hinein.

Zum Haus gehören eine Garage mit elektrischem Sektionaltor und ein Carport, sodass zwei Fahrzeuge bequem untergebracht werden können.

Das Objekt ist sofort verfügbar und wird provisionsfrei angeboten.

Merkmale

  • Bezug: sofort
  • 156 m² Grundstück
  • Badezimmer: Badewanne, Bad mit Dusche
  • Bodenbelag: Fliesen, Laminat
  • Terrasse
  • Garten
  • Carport, Garage, Außen-Stellplatz
  • Swimmingpool
Terrasse, Garten, Vollbad, Duschbad, Pool · Schwimmbad, Gäste-WC, Laminat, Fliesen

Bemerkungen:
Das Haus befindet sich in einem gepflegten Zustand und wurde seit dem Bau in mehreren Bereichen modernisiert.

In den Schlafräumen wurden Klimaanlagen nachgerüstet, die für angenehme Temperaturen auch an heißen Sommertagen sorgen. Die Böden wurden teilweise erneuert, in den Wohnräumen liegt modernes Laminat, in Küche, Bädern und Flur hochwertiger Fliesenboden.
Die Fenster sind durchgehend zweifach verglast mit Kunststoffrahmen. Außenjalousien, die teilweise elektrisch bedient werden, bieten Sonnen- und Sichtschutz.

Die offene Holztreppe aus hellem Naturholz verbindet die drei Etagen und verleiht dem Haus einen warmen, einladenden Charakter.

Das Erdgeschoss verfügt über ein Bad mit bodengleicher Dusche, das Obergeschoss über ein Bad mit Badewanne, eine praktische Aufteilung für den Familienalltag. Im Dachgeschoss befindet sich ein zusätzliches WC.

Die Einbauküche mit Holzfronten, Backofen, Ceranfeld, Spüle und ausreichend Stauraum ist im Kaufpreis inbegriffen.

Der Außenbereich wurde umgestaltet: Die Holzterrasse mit dem fest installierten Pool bildet das Herzstück des Gartens.

Die Garage ist mit einem elektrischen Sektionaltor ausgestattet, der überdachte Carport bietet einen weiteren Stellplatz.

Die Beheizung erfolgt über eine Erdgasheizung. Der Energieverbrauchsausweis weist einen Endenergieverbrauch von 136,32 kWh/(m²·a) bei Energieeffizienzklasse E aus.

Grundrisse

Grundrisse
1 / 3

Realisiere Dein Projekt

Bausubstanz und Energie

Energieausweis

E
  • Baujahr2002
  • Zustand der ImmobilieGepflegt
  • HeizungsartZentralheizung
  • EnergieträgerGas
MediumRectangleTop

Preisdetails

Kaufpreis
420000 €
3.065,69 €/m²
Provision für Käufer
provisionsfrei; keine Provision, courtagefrei
Weitere Preisinformationen
1 Carportplatz
1 Stellplatz
1 Garagenstellplatz
Geschätzte Gesamtkosten
455.700 €1
Kaufpreis
420.000 €
Notarkosten (1,5%)
6.300 €
Grunderwerbsteuer (6,5%)
27.300 €
Grundbucheintrag (0,5%)
2.100 €
1Der angezeigte Wert ist eine automatisch berechnete Schätzung von immowelt.
2Bei den Angaben handelt es sich um ortsübliche Werte. Individuelle Kosten können abweichen.

Lage

address-icon
Ludwigsfelde (14974)
Der Anbieter hat die genaue Adresse nicht freigegeben
Das Haus liegt in einer ruhigen Wohnstraße in Ludwigsfelde, einer wachsenden Stadt mit rund 25.000 Einwohnern im Landkreis Teltow-Fläming, südlich von Berlin.

Die Nachbarschaft ist geprägt von Einfamilien- und Reihenhäusern, ein familienfreundliches Umfeld mit kurzen Wegen.
Einkaufsmöglichkeiten sind fußläufig erreichbar: Ein Rewe-Supermarkt befindet sich in etwa zehn Gehminuten. In unmittelbarer Nähe liegt zudem eine Kindertagesstätte, und eine neue Grundschule wird derzeit in der Umgebung gebaut, ein klares Zeichen für die wachsende Familienfreundlichkeit des Viertels.

Die Verkehrsanbindung ist ein großer Pluspunkt dieser Lage. Mit der Regionalbahn erreichen Sie den Berliner Flughafen in nur etwa 10 Minuten. Über die nahegelegenen Auffahrten zur Autobahn A10 (Berliner Ring) und die Bundesstraße B101 sind Sie schnell in Berlin oder Potsdam. Auch das innerstädtische Busnetz ist gut ausgebaut.

Ludwigsfelde selbst bietet eine vollständige Infrastruktur mit mehreren Kitas, Schulen aller Stufen, einer Musik- und Kunstschule, Ärzten, Apotheken und einem vielfältigen Vereinsangebot. Gleichzeitig profitiert die Stadt als Regionaler Wachstumskern von einem starken Arbeitsmarkt, insbesondere in den Bereichen Automotive, Logistik und Handwerk. Wer im Berliner Umland wohnen möchte, ohne auf städtische Infrastruktur zu verzichten, findet hier einen idealen Standort.
Infrastruktur (im Umkreis von 5 km):
Apotheke, Lebensmittel-Discount, Allgemeinmediziner, Kindergarten, Grundschule, Hauptschule, Realschule, Gymnasium, Gesamtschule, Öffentliche Verkehrsmittel

Weitere Informationen

Sonstiges Heizungsart: Zentralheizung
Energieträger: Gas


Makleranfragen nicht erwünscht. Nach § 7 UWG sind unaufgeforderte Kontaktaufnahmen durch Makler ohne ausdrückliche Einwilligung des Empfängers verboten!

ohne-makler (OM) ist weder Anbieter noch Vermittler der Immobilie. OM betreibt eine Plattform für Immobilieneigentümer, die unter anderem die gleichzeitige Veröffentlichung einzelner Inserate auf mehreren Immobilienportalen ermöglicht. Die Inhalte dieser Inserate werden ausschließlich von Dritten verantwortet. Für die Richtigkeit, Vollständigkeit oder Rechtmäßigkeit der Angaben übernimmt OM keine Haftung. Hinweise auf mögliche Rechtsverstöße können jederzeit gemeldet werden und werden nach Prüfung umgehend bearbeitet. Stichworte Garage vorhanden, Stellplatz vorhanden, Carport vorhanden, Nutzfläche: 4,19 m², Anzahl der Schlafzimmer: 4, Anzahl der Badezimmer: 3, Anzahl der separaten WCs: 1, Anzahl Terrassen: 1, Bundesland: Brandenburg, 3 Etagen

Weitere Services

Lust auf eine Besichtigung?
Eine Frage zur Immobilie?
Nachricht hinzufügen
Mit der Nutzung der oben angegebenen Telefonnummer oder durch Klicken auf „Kontaktieren“ akzeptierst Du die Allgemeinen Nutzungsbedingungen, denen Du jederzeit widersprechen kannst. Weitere Informationen zum Datenschutz

Über den Anbieter

Humboldtstr. 25 A, 21509 Glinde
partner badge
Partnerschaft
Privat von NitzlerDein Kontakt
Keine Telefonnummer hinterlegt
Keine Telefonnummer hinterlegt
Online-ID: 26NFNCXZ1VKG
Referenznummer: 441939
ohne-makler.net - Immobilien selbst vermarkten
ohne-makler.net - Immobilien selbst vermarkten
Nachricht hinzufügen
Mit der Nutzung der oben angegebenen Telefonnummer oder durch Klicken auf „Kontaktieren“ akzeptierst Du die Allgemeinen Nutzungsbedingungen, denen Du jederzeit widersprechen kannst. Weitere Informationen zum Datenschutz
MediumRectangleTop
MediumRectangleBottom
MediumRectangleTop
Wie zufrieden bist du mit dieser Seite (nicht mit der Immobilie selbst)?