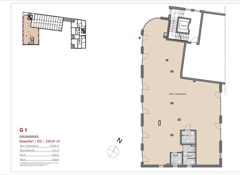
Die Gewerbeeinheit mit ca. 235 qm Nutzfläche liegt im Erdgeschoß des Wohn- und Gewerbehauses. Die Nutzung dieser Einheit ist noch offen. Büro, Praxis oder ähnliche Nutzung ist denkbar. Nachdem die Gewerbeeinheit sich derzeit noch in der Rohbauphase befindet kann die Ausstattung sowie der Grundriss der Gewerbeeinheit noch flexibel gestaltet werden. Vor dem Objekt befinden sich ausreichend Stellplätze. Die Mietkalkulation liegt bei 11 € je qm Mietfläche zzgl. ges. MWSt. Kann sich jedoch je nach Ausbauwunsch des Mieters noch verändern.
Die Wohneinheiten im Objekt sind bereits fertiggestellt.
Die Firma HD Bau aus Michelfeld blieb ihrer Linie treu und brachte das nächste Neubauvorhaben in Pegnitz auf dem Weg. Nachdem bereits ungenutzte Grundstücke in der Nürnberger Straße mit dem "Posthalter" und in der Milchhofstraße mit dem "Mühlwegcarré" revitalisiert wurden, kam nun ein leerstehendes ehemaliges Autohaus in der Sauerbruchstraße an die Reihe.
In Punkto Qualität wurden keine Kompromisse gemacht. Die Ausführungskonzepte mit Ausstattungsmerkmalen wie Fußbodenheizung, 3-fach Isolierverglasung, bodentiefe Duschen, geräumigen Aufzug, energieeffiziente Gesamtbauweise wurden beibehalten. Die HD Bau griff wieder auf ihren regionalen Handwerkerstamm zurück und sorgt somit für langfristige Qualität am Bau.
Pegnitz gewinnt als Wohn- und Arbeitsstandort von Jahr zu Jahr mehr an Beachtung und wird von allen Altersgruppen nachgefragt. Durch die Anbindung an die A 9 und den regionalen gut ausgelegten Bahnnahverkehr sind die beiden Regionen Bayreuth und Nürnberg schnell erreichbar.
Der Standort innerhalb von Pegnitz liegt ebenfalls sehr günstig. Alle benötigen Einkaufsmöglichkeiten des täglichen Bedarfs sind fußläufig erreichbar. Den Marktplatz erreicht man bei einem gemütlichen Spaziergang ebenfalls in wenigen Minuten.
Merkmale
Personenaufzug
Barrierefrei
Bodenbelag: Kunststoff
Das Gebäude verfügt über einen geräumigen Personenaufzug Kunststofffenster mit 3-fach Isolierverglasung Energieeffiziente Holzpelletheizung mit dezentraler Warmwasseraufbereitung Fußbodenheizung mit individueller Temperaturregelung Vinyldesignböden Bad, WC mit modernen Fliesen Dachbegrünung Gewerbeeinheit ist barrierefrei erreichbar und flexibel nutzbar
Grundrisse
Grundrisse
1 / 3
Realisiere Dein Projekt
Bausubstanz und Energie
Energieausweis
Endenergiebedarf (Wärme)
Baujahr2024
Zustand der ImmobilieErstbezug
Mietkosten
Miete auf Anfrage
Provision für Mieter
Bitte beachte, das Angebot kann bei Vertragsabschluss die Zahlung einer Provision beinhalten. Weitere Informationen erhältst Du vom Anbieter.
Kaution
keine Angabe
Lage
Pegnitz (91257)
Der Anbieter hat die genaue Adresse nicht freigegeben
Die Stadt Pegnitz ist ein wirtschaftlich gut aufgestellter Knotenpunkt im südlichen Landkreis Bayreuths, auch das "Tor zur Fränkischen Schweiz" genannt. Durch die direkte Angrenzung an den Veldensteiner Forst liegt die Stadt Pegnitz inmitten einer idyllischen Umgebung und verleiht ihr einen liebenswerten Charakter und hohe Lebensqualität. Die umliegende Landschaft bietet etliche Freizeitmöglichkeiten. Auch durch die verkehrsgünstige Lage und Anbindung an die A9 gibt es zahlreiche, nahegelegene Ausflugsziele. Nürnberg liegt nur etwa 50 km von Pegnitz entfernt und ist mit dem Auto schnell erreichbar. Vom Pegnitzer Bahnhof gibt es halbstündlich Anschluss an die Bahnverbindung Nürnberg - Hof - Berlin. Der 60 Kilometer entfernte Flughafen Nürnberg ist in einer Stunde erreichbar. Auch in die nahegelegene Universitätsstadt Bayreuth fahren Züge im Abstand einer halben Stunde. In Pegnitz selbst verkehrt die Stadtbuslinie Pegomobil. Die aufstrebende Stadt mit guten Wirtschaftsdaten hat außerdem eine hohe Anziehungskraft auf die Wirtschaft. Sie ist Standort international tätiger Unternehmen wie der KSB SE & Co. KGaA oder der BAIER + KÖPPEL GmbH + Co. KG. Pegnitz hat ein komplett erschlossenes Gewerbegebiet, Pegnitz/West, welches direkt an der Autobahn A9 liegt. Gut ausgebaute Kinderbetreuungs- und Bildungsangebote, wie das örtliche Gymnasium, machen Pegnitz zu einem modernen Schulstandort. Ein Netzwerk an Hilfen für alle Lebenslagen macht die Stadt zu einem erstrebenswerten Umfeld. Pegnitz bietet, als landschaftliches Goldstück, Heimatgefühl und alle zum Leben notwendigen Einrichtungen. Die Qualitäten des modernen Wirtschafts- und Bildungsstandorts, sind nicht nur gute Voraussetzungen zum Wohlfühlen, sondern schenken auch hohe Lebensqualität.