Version: 8.26.0Navigation überspringen
39.000 €
3 Zimmer  •  60,8 m²  •  3. Geschoss  •  frei ab sofort
Immowelt logo

Wohnung zum Kauf
39000 €
641 €/m²
3 Zimmer  •  60,8 m²  •  3. Geschoss  •  frei ab sofort

Renovierungsbedürftige 3-Raum-Eigentumswohnung mit großem Balkon in Weißenborn

In angenehmer Wohnlage von Weißenborn/Erzgebirge präsentiert sich diese gepflegte Eigentumswohnung in einer ruhigen und grünen Wohnanlage. Das Mehrfamilienhaus im Forstweg 10–14 überzeugt durch seine solide Bauweise, eine freundliche Fassadengestaltung sowie eine harmonische Einbindung in die umliegende Natur. Die Wohnanlage befindet sich in leichter Hanglage und bietet dadurch ein offenes, luftiges Wohnumfeld mit viel Grünfläche direkt vor der Haustür – ideal für alle, die Ruhe und Erholung schätzen. Das Mehrfamilienhaus erstreckt sich über mehrere Etagen und wurde optisch ansprechend modernisiert. Helle Fassadenfarben und großzügige Balkonanlagen verleihen dem Objekt ein freundliches Erscheinungsbild. Die gepflegten Außenanlagen mit Rasenflächen und Sträuchern unterstreichen den angenehmen Gesamteindruck der Wohnanlage. Ausreichend Platz rund um das Gebäude sorgt für ein offenes Wohngefühl ohne enge Bebauung.

Merkmale

  • frei ab sofort
  • 3. Geschoss
  • Badezimmer: Badewanne, Bad mit Fenster
  • Balkon
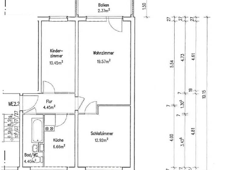
Die Wohnung befindet sich im 2. Obergeschoss und ist mit einem Badezimmer inklusive Badewanne , einer Küche sowie einem Wohnzimmer, einem Schlafzimmer sowie einem Kinder-/Arbeitszimmer ausgestattet. Alle Fenster sind mit Rollläden ausgestattet. Angrenzend an das Wohnzimmer befindet sich ein großer Balkon in richtung Süden mit bereits vorhandener Markise. Das Gemeinschaftseigentum ist in einem sanierten Zustand. Lediglich die Wohnung müsste komplett renoviert werden. Die Wohnung kann als Kapitalanlage sowie als Eigennutzung verwendet werden. Realistische Kaltmieten sind 6-7 €/m² anzusehen.

Grundrisse

Grundrisse
1 / 1

Bausubstanz und Energie

Energieausweis

C
  • Baujahr1972
  • HeizungsartZentralheizung
  • EnergieträgerGas
Immowelt logo

Preisdetails

Kaufpreis
39000 €
641,24 €/m²
Hausgeld
204 €
Provision für Käufer
3 % zzgl. MWSt.
Geschätzte Gesamtkosten
43.095 €1
Kaufpreis
39.000 €
Notarkosten (1,5%)
585 €
Grunderwerbsteuer (5,5%)
2.145 €
Provision für Käufer (3%)
1.170 €
Grundbucheintrag (0,5%)
195 €
1Der angezeigte Wert ist eine automatisch berechnete Schätzung von immowelt.
2Bei den Angaben handelt es sich um ortsübliche Werte. Individuelle Kosten können abweichen.

Lage

address-icon
Forstweg 10WeißenbornWeißenborn/Erzgebirge (09600)
Weißenborn/Erzgebirge (PLZ 09600) ist eine idyllische Gemeinde im Landkreis Mittelsachsen in Sachsen und liegt am nördlichen Rand des Osterzgebirges – nur etwa 6 km von der traditionsreichen Universitäts- und Bergstadt Freiberg entfernt. Die rund 2.400 Einwohner zählende Gemeinde vereint ländliche Ruhe mit einer guten infrastrukturellen Anbindung und bietet damit ideale Voraussetzungen für ein entspanntes und zugleich gut erreichbares Wohnen. Das Objekt befindet sich in der Nähe zahlreicher Unternehmen, welche in Weißenborn ansässig sind. Außerdem sind der Kindergarten, die Grundschule sowie Einkaufsmöglichkeiten fußläufig gut zuerreichen.

Weitere Informationen

Sonstiges Besichtigungstermine können mit unserem Büro Berthelsdorfer Straße 53 in 09599 Freiberg, per Telefon 03731 26190 oder per E-Mail: info@wis-freiberg.de vereinbart werden. Heizungsart: Heizkoerper

Weitere Services

Lust auf eine Besichtigung?
Eine Frage zur Immobilie?
Nachricht hinzufügen
Mit der Nutzung der oben angegebenen Telefonnummer oder durch Klicken auf „Kontaktieren“ akzeptierst Du die Allgemeinen Nutzungsbedingungen, denen Du jederzeit widersprechen kannst. Weitere Informationen zum Datenschutz

Über den Anbieter

Berthelsdorfer Str. 53, 09599 Freiberg
partner badgepartner badge
6 Jahre Partnerschaft + Diamond Partner
Herr Peter Georgi
Herr Peter GeorgiDein Kontakt
Online-ID: 26V4FNXYYHKQ
Referenznummer: G022/06
Wie zufrieden bist du mit dieser Seite (nicht mit der Immobilie selbst)?