Version: 8.24.0Navigation überspringen
295.000 €
3,5 Zimmer  •  83,8 m²  •  416 m² Grundstück
Immowelt logo

Einfamilienhaus zum Kauf
295000 €
3.522 €/m²
3,5 Zimmer  •  83,8 m²  •  416 m² Grundstück

Doppelhaushälfte mit Potenzial in Waldenau - Sanierungsobjekt auf 416 m² mit Garage & Abstellraum

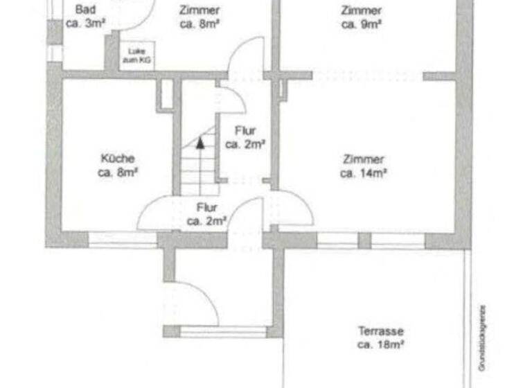
Diese Doppelhaushälfte aus dem Jahr 1951 bietet auf ca. 84 m² Wohnfläche und einem 416 m² großen Grundstück eine ideale Grundlage für alle, die sich den Traum vom Eigenheim nach eigenen Vorstellungen verwirklichen möchten. Die Immobilie ist sanierungsbedürftig und eröffnet somit viel Gestaltungsspielraum für individuelle Wohnideen.

Im Erdgeschoss empfängt Sie ein Windfang mit Zugang zum Flur. Von hier aus erreichen Sie die Einbauküche, ein Gäste-WC mit Dusche sowie ein weiteres Zimmer, das flexibel als Arbeits-, Gäste- oder Schlafzimmer genutzt werden kann. Das Wohn- und Esszimmer mit Zugang zur ummauerten Terrasse bildet den zentralen Lebensmittelpunkt des Hauses und bietet Potenzial für eine moderne Neugestaltung.

Im Obergeschoss befinden sich zwei Zimmer sowie ein Vollbad. Die vorhandene Raumaufteilung entspricht teilweise nicht mehr heutigen Wohnansprüchen, lässt sich jedoch im Rahmen einer Sanierung zeitgemäß optimieren.

Ein Kellerraum bietet zusätzliche Abstellmöglichkeiten. Die Garage mit angegliedertem Abstellraum sorgt für komfortables Parken und weiteren praktischen Stauraum.

Das großzügige Grundstück eröffnet vielfältige Nutzungsmöglichkeiten und ausreichend Platz für Gartenliebhaber oder Familien. Mit handwerklichem Geschick, Kreativität und einer umfassenden Modernisierung kann hier ein echtes Schmuckstück entstehen.

Eine Immobilie für Käufer mit Vision - nutzen Sie die Chance, dieses Haus zu neuem Leben zu erwecken. Auf Wunsch kann eine Sanierung des Hauses vermittelt werden.

Wir freuen uns auf Ihre Kontaktaufnahme, damit Sie mit uns eine individuelle Besichtigung vereinbaren können.

Merkmale

  • Bezug: sofort
  • 1 Geschoss
  • 416 m² Grundstück
  • Einbauküche
  • Kelleranteil
  • Garage
  • Gäste-WC
  • Garten

Grundrisse

Grundrisse
1 / 2

Realisiere Dein Projekt

Bausubstanz und Energie

Energieausweis

F
  • Baujahr1951
  • Zustand der Immobilierenovierungsbedürftig / sanierungsbedürftig
  • HeizungsartZentralheizung
  • EnergieträgerGas
Immowelt logo

Preisdetails

Kaufpreis
295000 €
3.521,97 €/m²
Provision für Käufer
3,25 % inkl. MwSt. vom Kaufpreis, zahlbar jeweils vom Verkäufer & Käufer, bei Abschluss des notariellen Kaufvertrags.
Weitere Preisinformationen
1 Garagenstellplatz
Geschätzte Gesamtkosten
329.663 €1
Kaufpreis
295.000 €
Notarkosten (1,5%)
4.425 €
Grunderwerbsteuer (6,5%)
19.175 €
Provision für Käufer (3,25%)
9.588 €
Grundbucheintrag (0,5%)
1.475 €
1Der angezeigte Wert ist eine automatisch berechnete Schätzung von immowelt.
2Bei den Angaben handelt es sich um ortsübliche Werte. Individuelle Kosten können abweichen.

Lage

address-icon
Pinneberg (25421)
Der Anbieter hat die genaue Adresse nicht freigegeben
- Pinneberg Waldenau
- ruhige Wohnstraße
- Eckgrundstück
- 5 Minuten zur Stadtgrenze Hamburg
- wenige Minuten zur BAB 23, Anschlussstelle Halstenbek-Rellingen
- wenige Minuten zu sämtlichen Schulen (Gymnasium/ Grundschule/ Schulzentrum)

Weitere Informationen

Sonstiges Sie möchten Ihre Immobilie verkaufen? Unsere umfangreiche Kundenkartei birgt sicher einen passenden Käufer für Ihre Immobilie. Sprechen Sie uns an! Stichworte Nutzfläche: 8,00 m², Anzahl der Badezimmer: 2, Anzahl der separaten WCs: 1, Anzahl Terrassen: 1, 1 Etagen Sonstiges: frei werdend

Weitere Services

Lust auf eine Besichtigung?
Eine Frage zur Immobilie?
Nachricht hinzufügen
Mit der Nutzung der oben angegebenen Telefonnummer oder durch Klicken auf „Kontaktieren“ akzeptierst Du die Allgemeinen Nutzungsbedingungen, denen Du jederzeit widersprechen kannst. Weitere Informationen zum Datenschutz

Über den Anbieter

Gärtnerstraße 94, 25469 Halstenbek
partner badge
Partnerschaft
Herr Sven Dressler
Herr Sven DresslerDein Kontakt
Online-ID: 2nlue5p
Referenznummer: 367
ImmobilienTeam Dressler & Heringlake eGbR
title
ImmobilienTeam Dressler & Heringlake eGbR
Bewertung: 4,4 von 5 Sternen
Nachricht hinzufügen
Mit der Nutzung der oben angegebenen Telefonnummer oder durch Klicken auf „Kontaktieren“ akzeptierst Du die Allgemeinen Nutzungsbedingungen, denen Du jederzeit widersprechen kannst. Weitere Informationen zum Datenschutz
Wie zufrieden bist du mit dieser Seite (nicht mit der Immobilie selbst)?