Version: 8.25.1Navigation überspringen
149.000 €
311 m² Grundstück
Immowelt logo

Grundstück zum Kauf
149000 €
479 €/m²
311 m² Grundstück

Idyllische Wohnlage

Dieses herrliche Grundstück im Herzen von St. Leon-Rot, genauer
gesagt in Rot selbst, wartet nur auf einen neuen Eigentümer. Das
gesamte Grundstück verfügt über 589 m² Fläche. Dieses soll nun
wie folgt geteilt werden. Zukünftig entfallen ca. 196 m² für die,
linksseitig angeordnete, gemeinsame Zufahrtsstraße, welche zur
Hälfte Ihrem Grundstück unterstellt ist. Auf der rechten Seite des
Grundstückes, zur Straßenseite hin, befindet sich ein 2-
Familienhaus auf ca. 180 m², zu welchem die zweite Hälfte der
Straße gehört. Nach Passieren des selbigen gelangen Sie zum
hier angebotenen Grundstück mit 213 m². Ob die
Grundstücksteilung über Miteigentumsanteile oder einer realen
Teilung erfolgt, kann gemeinsam mit dem neuen Käufer
beschlossen werden. Die Kostenübernahme der Teilung ist
bereits im Kaufpreis berücksichtigt und wird vom Verkäufer
übernommen. Das hier angebotene und unbebaute Grundstück
befindet sich in zweiter Reihe und verfügt über eine
Gesamtfläche inklusive der Zufahrt von ca. 311 m². Die Zufahrt des
Grundstückes wird über eine private Zufahrtsstraße gesichert, an
welchem jeder Grundstückseigentümer Anteile in gleichem Maß
besitzt. Somit erhalten Sie weitere ca. 98 m² Grundstücksfläche
in Form der Zufahrt inklusive. Nach Auskunft der zuständigen
Behörden ist das gesamte Grundstück altlastenfrei und verfügt
über keine eingetragenen Baulasten. Der Bauplatz liegt in
keinem Geltungsbereich eines Bebauungsplans. Für eine
bessere Planung in Bezug auf eine spätere Bebauung hat der
jetzige Eigentümer bereits eine Bauvoranfrage, für ein kleines
Einfamilienhaus, gestellt. Diese kann, muss man aber nicht
übernommen werden. In Verlängerung der Zufahrtsstraße wurde
vom Architekt die zu Ihrem neuen Haus gehörige Garage
geplant. Rechts davon könnten Sie einen weiteren Stellplatz
anordnen, sowie eine Fläche für Mülltonne und Fahrräder. Im
dahinterliegenden Grundstücksteil betreten sie einen Ort der
Ruhe und Erholung. Hier grenzt die Fläche direkt an einen
kleinen Bachlauf. Unter Einhaltung der 5 Meter Grenzabstand zur
Böschungsoberkante und der restlichen Grenzabstände nach
LBO, konnte der Eigentümer, gemeinsam mit einem
Architektenbüro, einen kleinen Wohntraum aufs Papier bringen.
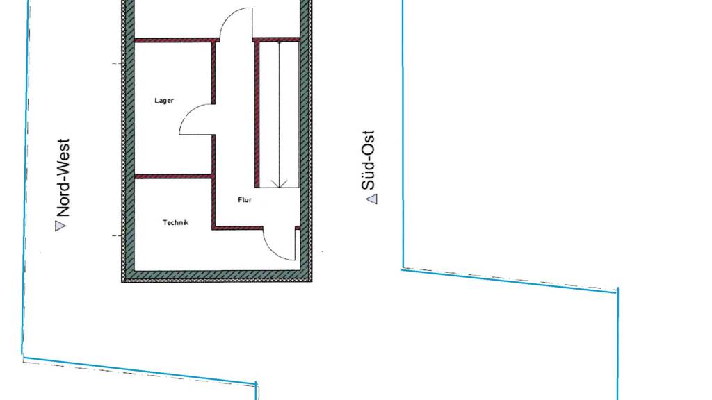
Das vom Eigentümer geplante Haus verteilt sich auf 2
Vollgeschosse und Keller mit Satteldach. Mit einer Gesamtfläche
von ca. 148,09 m² auf 3 Geschossen haben Sie alles, was man zum
Leben braucht. Die Wohnfläche verteilt sich mit ca. 72,44 m² auf
3,5 Zimmern. Hinzukommend mit weiteren ca. 75 m² Nutzfläche,
verteilt auf Speicher und Keller, haben Sie ausreichend Platz für
Ihr Hab und Gut. Die Garage mit ca. 19 m² kommt separiert hinzu.
Egal ob als Kapitalanlage oder zur Selbstnutzung, die Wahl bleibt
bei Ihnen. Das Grundstück spiegelt, durch seine Größe und
Bebaubarkeit, perfekt die Bedürfnisse unserer Zeit wieder. Das
Haus an sich, wird Ihnen viel Platz, die Möglichkeit ein modernes
Raumkonzept zu verwirklichen und lichtdurchflutete Räume,
bieten. Der Außenbereich ist groß genug, um Ihr eigenes grünes
Paradies zu erschaffen, aber nicht zu weitläufig, um Ihre gesamte
Freizeit, dem Erhalt und der Pflege desselben zu opfern.
Hierdurch können Sie sich Ihren Traum vom Neubau erfüllen und
Ihre Zukunft neu beginnen. Ganz getreu nach dem Motto „Raum
fürs Leben“, bieten wir Ihnen hier den passenden Raum für Ihr
Leben. Daher zögern Sie nicht und kontaktieren Sie uns, damit
wir einen Besichtigungstermin vereinbaren können. Wir freuen
uns auf Sie. Gerne beraten wir Sie zu den zahlreichen
Möglichkeiten der Bebaubarkeit und stellen Ihnen alle
relevanten Unterlagen zur Verfügung.

Merkmale

  • 311 m² Grundstück
  • teilweise erschlossen

Grundrisse

Verschaffe dir einen genauen Überblick über die Raumaufteilung.selection_property_house-icon

Realisiere Dein Projekt

Bausubstanz und Energie

Möchtest du Details zum Energieverbrauch?info_energy_calculation-icon
Immowelt logo

Preisdetails

Kaufpreis
149000 €
479,10 €/m²
Provision für Käufer
3,57% inkl. 19 % gesetzlicher
MwSt.
Geschätzte Gesamtkosten
154.319 €1
Kaufpreis
149.000 €
Provision für Käufer (3,57%)
5.319 €
1Der angezeigte Wert ist eine automatisch berechnete Schätzung von immowelt.
2Bei den Angaben handelt es sich um ortsübliche Werte. Individuelle Kosten können abweichen.

Lage

address-icon
St LeonSt. Leon-Rot (68789)
Der Anbieter hat die genaue Adresse nicht freigegeben
St. Leon-Rot ist eine Gemeinde des Rhein-Neckar-Kreises im
Bundesland Baden-Württemberg und ist Teil der Metropolregion
Rhein-Neckar. Rund 18 Kilometer südlich von Heidelberg
gelegen verfügt die Gemeinde über eine ausgezeichnete
Verkehrsanbindung und strategische Lage. Die beiden
Universitätsstädte Heidelberg und Mannheim bilden zusammen
mit Ludwigshafen die drei Oberzentren des Rhein-Neckar-
Kreises und gleichzeitig das wirtschaftliche, kulturelle und
administrative Zentrum der Metropolregion. Die Immobilie
befindet sich in Sankt-Leon-Rot. In unmittelbarer Umgebung des
Objekts verkehren einige Buslinien. In Laufnähe gibt es mehrere
Restaurants, zwei Bäckereien und ein Café. Auch verschiedene
Grün- und Parkanlagen, Fitnessstudios, Postannahmestellen, ein
Modegeschäft und ein Schuhladen sind fußläufig gut zu
erreichen. Weiter entfernt finden Sie außerdem diverse
Einkaufsmöglichkeiten. Verschiedene Museen, gute
Ausgehmöglichkeiten und einen Arzt erreichen Sie schließlich
ebenfalls im größeren Umkreis.

Weitere Informationen

Sonstiges Verehrte Interessenten,
bitte beachten Sie, dass nur Anfragen mit vollständiger Angabe
Ihres Namens und Ihrer Telefonnummer beantwortet werden
können.
Innerhalb der nächsten 1-3 Werktage erhalten Sie von uns
automatisch eine Antwort.
+++++++++++++++++++++++++
Alle Angaben in diesem Exposé beruhen auf uns überlassenen
Unterlagen bzw. uns gegenüber getroffenen Aussagen. Wir
überprüfen jede Information im Rahmen unserer Möglichkeiten
sorgfältig. Dennoch können wir das Vorhandensein von Fehlern
nicht ausschließen. Sämtliche Angaben in diesem Exposé
erfolgen daher ohne Gewähr.
Soweit in diesem Exposé Grundrisse und / oder andere Grafiken
enthalten sind, weisen wir darauf hin, dass diese und
insbesondere auch die darin evtl. dargestellten
Einrichtungsgegenstände nicht immer maßstabgetreu sind.
Maßgeblich sind ausschließlich die mit unserem
Verkaufsmitarbeiter im persönlichen Gespräch getroffenen
Aussagen. Preisänderungen bleiben vorbehalten.
+++++++++++++++++++++++++
Vielen Dank für Ihr Interesse an unserem Angebot. Sehr gerne
helfen Ihnen unsere Immobilienberater dabei, Ihre Träume zu
verwirklichen – rufen Sie uns an...
+++++++++++++++++++++++++
Der Maklervertrag mit uns und unserem Beauftragten kommt
durch schriftliche Vereinbarung oder durch die Inanspruchnahme unserer Maklertätigkeit auf der Basis des
Objekt-Exposés und seiner Bedingungen zustande. Die
Käufercourtage in Höhe von 3,57 % auf den Kaufpreis
einschließlich gesetzlicher Mehrwertsteuer ist bei notariellem
Vertragsabschluss verdient und fällig. Die Höhe der
Bruttocourtage unterliegt einer Anpassung bei
Steuersatzänderung. Die Firma Sylvia Ams Immobilien und
Vermietungen erhalten einen unmittelbaren Zahlungsanspruch
gegenüber dem Käufer (Vertrag zugunsten Dritter, § 328 BGB).
Grunderwerbssteuer, Notar- und Gerichtskosten trägt der
Käufer.
Widerrufsbelehrung: Widerrufsrecht für Verbraucher. Sie haben
das Recht, binnen vierzehn Tagen ohne Angabe von Gründen
diesen Vertrag zu widerrufen. Die Widerrufsfrist beträgt
vierzehn Tage ab dem Tag des Vertragsabschlusses. Um Ihr
Widerrufsrecht auszuüben, müssen Sie uns Sylvia Ams Immobilien
und Vermietungen mittels einer eindeutigen Erklärung (z. B. ein
mit der Post versandter Brief, Telefax oder E-Mail) über Ihren
Entschluss, diesen Vertrag zu widerrufen, informieren. Falls dies
Ihr Wunsch sein sollte könne wir Ihnen gerne ein Muster
Widerrufsformular zur Verfügung stellen, wozu wir allerdings
nicht verpflichtet sind. Zur Wahrung der Widerrufsfrist reicht es
aus, dass Sie die Mitteilung über die Ausübung des
Widerrufsrechts vor Ablauf der Widerrufsfrist absenden.
Der Sachverhalt kann erst nach Verzicht oder abgelaufener Frist
bearbeitet werden.

Weitere Services

Lust auf eine Besichtigung?
Eine Frage zur Immobilie?
Nachricht hinzufügen
Mit der Nutzung der oben angegebenen Telefonnummer oder durch Klicken auf „Kontaktieren“ akzeptierst Du die Allgemeinen Nutzungsbedingungen, denen Du jederzeit widersprechen kannst. Weitere Informationen zum Datenschutz

Über den Anbieter

Lanzstraße 2a, 68794 Oberhausen-Rheinhausen
Frau Sylvia AmsDein Kontakt
Online-ID: 245ZFGYMJ3JZ
Referenznummer: 5149
Sylvia Ams Immobilien + Vermietungen
Sylvia Ams Immobilien + Vermietungen
Bewertung: 5 von 5 Sternen
Nachricht hinzufügen
Mit der Nutzung der oben angegebenen Telefonnummer oder durch Klicken auf „Kontaktieren“ akzeptierst Du die Allgemeinen Nutzungsbedingungen, denen Du jederzeit widersprechen kannst. Weitere Informationen zum Datenschutz
Wie zufrieden bist du mit dieser Seite (nicht mit der Immobilie selbst)?