Version: 8.22.4Navigation überspringen
335.000 €
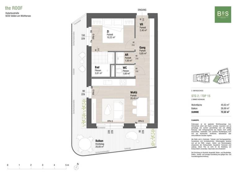
2 Zimmer  •  45,6 m²  •  2. Geschoss
Immowelt logo

Wohnung zum Kauf - Erstbezug
335000 €
7.342 €/m²
2 Zimmer  •  45,6 m²  •  2. Geschoss

Großartige Terrassenwohnung mit Grünblick!

"The Roof" - Ihre exklusive Wohnadresse in Velden am Wörthersee

Mit _"The Roof"_ entsteht im Herzen von Velden ein einzigartiges Wohnbauprojekt, das modernes Design und nachhaltige Architektur harmonisch vereint. 25 hochwertig ausgestattete Wohnungen bieten Ihnen höchsten Wohnkomfort und eine ideale Verbindung von Eleganz, Funktionalität und Naturverbundenheit - perfekt für alle, die ein Zuhause mit dem gewissen Extra suchen.

Durchdachte Architektur für gehobene Ansprüche

Die Wohnungen von _"The Roof"_ zeichnen sich durch klare Linien, großzügige Raumkonzepte und eine hochwertige Ausstattung aus. Die offen gestalteten Grundrisse schaffen ein lichtdurchflutetes Ambiente, das für modernes Wohnen steht. Balkone und Terrassen erweitern Ihren Lebensraum ins Freie und bieten Raum für Erholung und Rückzug inmitten einer ruhigen Umgebung.

Das Highlight des Wohnbauprojekts ist das begehbare Gründach. Diese grüne Oase bietet speziell gestaltete Ruhezonen und eine Outdoor-Küche, die zu geselligen Momenten oder entspanntem Verweilen einlädt. Das Gründach ist ein Paradebeispiel für die innovative und nachhaltige Planung, die _"The Roof"_ auszeichnet.

Nachhaltigkeit als Lebensprinzip

_Das Wohnbauprojekt_ setzt ein starkes Zeichen für umweltbewusstes Bauen und Leben. Die begrünten Dachflächen fördern die Biodiversität und sorgen für ein angenehmes Mikroklima. Eine integrierte Photovoltaikanlage liefert nachhaltige Energie, und durch den Einsatz regionaler Pflanzenarten wird ein Beitrag zur Erhaltung der heimischen Flora geleistet.

Für eine aktive, emissionsfreie Mobilität stehen den Bewohnern moderne E-Bikes zur Verfügung. Mit ihnen können Sie die malerischen Rad- und Wanderwege rund um Velden erkunden und die idyllische Natur genießen - ohne dabei die Umwelt zu belasten.

Velden - Lebensqualität im Herzen Kärntens

_"The Roof"_ besticht nicht nur durch seine moderne Architektur, sondern auch durch seine hervorragende Lage. Velden am Wörthersee bietet eine einzigartige Kombination aus Natur, Freizeitmöglichkeiten und urbanem Flair. Die zentrale Position des Projekts ermöglicht Ihnen eine schnelle Erreichbarkeit der charmanten Ortsmitte mit ihrer Flaniermeile, erstklassigen Restaurants, Boutiquen und Cafés - ein beliebter Treffpunkt für Jung und Alt.

Die Region rund um Velden lädt das ganze Jahr über zu vielfältigen Aktivitäten ein. Im Sommer locken Rad- und Wanderwege sowie zahlreiche Freizeitmöglichkeiten in der Natur. In den kühleren Monaten genießen Sie Golf, entspannte Herbstspaziergänge oder Ausflüge in die umliegenden Wälder.

Im Winter verwandelt sich Velden in ein malerisches Winterwunderland. Der stimmungsvolle Adventmarkt rund um die Uferpromenade und den Weihnachtsengelpfad zieht Besucher aus der ganzen Region an. Genießen Sie das festliche Ambiente bei Glühwein und kulinarischen Spezialitäten oder stöbern Sie nach handgefertigten Geschenken. Wintersportliebhaber erreichen in kurzer Zeit die umliegenden Skigebiete, die ideale Bedingungen für Ski- und Snowboardausflüge bieten. Auch Eislaufen auf zugefrorenen Seen, Schlittenfahren und Winterwanderungen machen die kalte Jahreszeit zu einem Erlebnis.

Ihr neues Zuhause wartet auf Sie!

_"The Roof"_ vereint modernes Wohnen, Nachhaltigkeit und eine erstklassige Lage zu einem Wohnkonzept, das begeistert.

Dieses Projekt ist mehr als ein Zuhause - es ist eine Investition in Lebensqualität, die keine Wünsche offenlässt.

Sichern Sie sich jetzt Ihre Traumwohnung bei _"The Roof"_ und erleben Sie Wohnen neu - stilvoll, zukunftsorientiert und mitten in einer der schönsten Regionen Österreichs.

Verkauf und Beratung:
Kristina Ageljic
ageljic@dp-immo.at
+43 664 231 941 3

 

 

Für weitere Informationen steht Ihnen Frau Kristina Ageljic, MSc unter +43 664 231 941 3 sehr gerne zur Verfügung.

Dieses Projekt wird in Kooperation mit Sternad & Paulitsch Immobilien vermarktet.

Infrastruktur / Entfernungen

Gesundheit
Arzt <250m
Apotheke <500m

Kinder & Schulen
Schule <500m
Kindergarten <500m

Nahversorgung
Supermarkt <750m
Bäckerei <1.250m

Sonstige
Bank <750m
Geldautomat <750m
Post <750m
Polizei <500m

Verkehr
Bus <250m
Autobahnanschluss <1.750m
Bahnhof <1.500m

Angaben Entfernung Luftlinie / Quelle: OpenStreetMap

Merkmale

  • 2. Geschoss
  • Personenaufzug
  • Garage
  • Gäste-WC
  • Balkon
  • Barrierefrei
  • Badewanne
  • Waschraum

Grundrisse

Grundrisse
1 / 5

Realisiere Dein Projekt

Bausubstanz und Energie

Heizwärmebedarf (HWB)

B

Gesamtenergieeffizienz (fGEE)

A+
  • Zustand der ImmobilieNeubau, Massivhaus, Erstbezug
  • HeizungsartFußbodenheizung
  • EnergieträgerFernwärme, Solar
Immowelt logo

Preisdetails

Kaufpreis
335000 €
7.341,66 €/m²
Provision für Käufer
Bitte beachte, das Angebot kann bei Vertragsabschluss die Zahlung einer Provision beinhalten. Weitere Informationen erhältst Du vom Anbieter.
Weitere Preisinformationen
1 Garagenstellplatz

Lage

address-icon
HubertusstraßeVelden am Wörther See (9220)

Weitere Informationen

Stichworte Tiefgarage vorhanden, Süd-West-Balkon/Terrasse, Fahrradraum, Rolladen, Anzahl der Badezimmer: 1, Anzahl der separaten WCs: 1, Anzahl Balkone: 1, Balkon-Terrassen-Fläche: 26,69 m², Bundesland: Kärnten, 3 Etagen, Wohnungsnr.: 15

Weitere Services

Lust auf eine Besichtigung?
Eine Frage zur Immobilie?
Nachricht hinzufügen
Mit der Nutzung der oben angegebenen Telefonnummer oder durch Klicken auf „Kontaktieren“ akzeptierst Du die Allgemeinen Nutzungsbedingungen, denen Du jederzeit widersprechen kannst. Weitere Informationen zum Datenschutz

Über den Anbieter

Dr.-Arthur-Lemisch-Platz 7, 9020 KLAGENFURT
partner badge
Partnerschaft
Frau Kristina AgeljicDein Kontakt
Online-ID: 2jqsf52
Referenznummer: OBGC2023091915000524038705ac16c
Bednarzek & Schnitzer  Immobilienprojektentwicklung GmbH
Bednarzek & Schnitzer Immobilienprojektentwicklung GmbH
Nachricht hinzufügen
Mit der Nutzung der oben angegebenen Telefonnummer oder durch Klicken auf „Kontaktieren“ akzeptierst Du die Allgemeinen Nutzungsbedingungen, denen Du jederzeit widersprechen kannst. Weitere Informationen zum Datenschutz
Wie zufrieden bist du mit dieser Seite (nicht mit der Immobilie selbst)?