Wohnung zum Kauf • provisionsfrei • als Kapitalanlage geeignet
349900 €349.900 €
6.941 €/m²
2 Zimmer • 50,4 m²
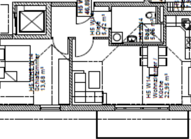
2 Zimmer DG Wohnung mit großzügigem Balkon
Diese helle Wohnung befindet sich im DG eines Mehrfamilienhauses im Wohnpark Tegernau. Die Wohnung bietet Ihnen einen hell gefliesten Flur, ein Badezimmer mit Dusche, Waschbecken, spülrandloser Toilette und Anschlussmöglichkeiten für Waschmaschine und Trockner. Das Schlafzimmer, als auch das Wohnzimmer mit Zugang zur offenen Küche und zu einen großzügigen Balkon, sind nach Westen ausgelegt. Zu der Wohnung gehört auch ein 5 m² großer Keller. Ein TG-Stellplatz kann für 28.500 € dazu erworben werden.
Wohnfläche: ca. 50,41 m², Nutzfläche: ca. 55,21 m²
Die Wohnung ist vermietet: Kaltmiete: 740 € Nebenkosten: 200 €
Merkmale
Bezug: nach Absprache
vermietet
Dachgeschoss, 3. Geschoss
offene Küche
Personenaufzug
Kelleranteil
Tiefgarage
Balkon
Grundrisse
Grundrisse
1 / 1
Bausubstanz und Energie
Energieausweis
A
Baujahr2021
Zustand der ImmobilieGepflegt
HeizungsartFußbodenheizung
EnergieträgerGas
Preisdetails
Kaufpreis
349900 €349.900 €
6.941,08 €/m²
Preis pro Stellplatz
28500 €28.500 €
Provision für Käufer
provisionsfrei
Geschätzte Gesamtkosten
369.146 €1
Kaufpreis
349.900 €
Kaufnebenkosten
19.246 €
2
Notarkosten (1,5%)
5.249 €
Grunderwerbsteuer (3,5%)
12.247 €
Grundbucheintrag (0,5%)
1.750 €
1Der angezeigte Wert ist eine automatisch berechnete Schätzung von immowelt.
2Bei den Angaben handelt es sich um ortsübliche Werte. Individuelle Kosten können abweichen.
Lage
Pfarrer-Neumair-Str. 1, Burgerfeld, Wasserburg am Inn (83512)
Das Objekt befindet sich im Ortsteil Tegernau oberhalb der Altstadt, zu der es nur wenige Geh- und Fahrminuten sind, die auch bequem mit dem Stadtbus zurück gelegt werden können. In unmittelbarer Umgebung befinden sich verschiedene Einkaufsmöglichkeiten des täglichen Bedarfs, eine Apotheke, Gastronomiebetriebe, das bekannte Bade- und Freizeitzentrum Badria, sowie ein Fitnesscenter. Die historische Altstadt mit den gotischen Arkaden, zahlreichen Straßencafes und vielen über die Stadtgrenzen bekannten Festlichkeiten und kulturellen Veranstaltungen bietet ebenso einen hohen Freizeitwert. Auch der Chiemsee und das Chiemgauer Land laden zur Erholung und Entspannung ein. Der Stadtbus hält in ca. 200 m Entfernung und bringt Sie in die Altstadt und nach Wasserburg / Reitmehring, von dort fährt Sie die Bahn in alle Richtungen. Eine S-Bahnverbindung nach München ist in Planung.
Weitere Informationen
Besichtigungstermine
Bitte um eine aussagekräftiges Anschreiben per E-Mail, telefonisch können Sie uns unter der Tel. Nr. 08071-9 211 431 erreichen.
Stichworte
Versorgung: Städtische Wasserversorgung, Städtische Stromversorgung
Serviceleistungen: Hausmeister