Version: 8.24.0Navigation überspringen
499.000 €
5 Zimmer  •  141 m²  •  540 m² Grundstück  •  frei ab 02.01.2027
Immowelt logo

Einfamilienhaus zum Kauf - Erstbezug • provisionsfrei
499000 €
3.539 €/m²
5 Zimmer  •  141 m²  •  540 m² Grundstück  •  frei ab 02.01.2027

Mit Mietkauf II Plus sorgenfrei ab 1.750,00 EUR zum Eigentum.

Ihr ökologisches Fertighaus, energieeffizient, nachhaltig ein Leben lang...WOLF-Haus...
Wir machen Sie zum Eigenheimbesitzer, mit einer individuellen Architekturplanung genauso wie Sie es sich wünschen. Als Familienunternehmen in vierter Generation bauen wir ökologisch und wohngesund mit dem natürlichen Rohstoff Holz. Dabei verbauen wir in unserer Konstruktion ausschließlich Holz aus nachhaltiger Forstwirtschaft, das stärker ist, als es nach dem Gesetz der Statik erforderlich wäre.Das macht unsere Außenwände nicht nur äußerst stabil, sondern in hohem Maße energieeffizient und damit förderfähig.

Ihr WOLF-HAUS sorgt für ein angenehmes Raumklima und Wohlbefinden und ist für Generationen gebaut! Objektbeschreibung FF / SF Mehr als nur ein Dach und 4 Wände!
Mit dem Bau eines Hauses stellen Sie die Weichen für Ihre Zukunft.
Ein individuell auf Ihre Anforderung und Wünsche zugeschnittenes „Ihr gutes Zuhause“ soll auf Ihrem Grundstück entstehen, so dass dieses abgebildete Haus nur ein Beispiel für die unzähligen Möglichkeiten darstellt.
Dieses Haus wird in bekannter WOLF-Haus Qualität "Fast Fertig" angeboten. Das bedeutet Sie können Ihr neues Zuhause mit einem geringen Umfang an Eigenleistung beziehen.

Natürlich ist auch eine Lieferung in der Ausstattungsvariante Schlüsselfertig gegen Kostenanpassung möglich dann sind z. B. folgende Ausstattungen zusätzlich enthalten …
Inkl. im EG hochwertiges Parkett (außer Küche und Bäder)
Inkl. EG und OG wird in der Qualitätsstufe Q 3 (malerfertig) gespachtelt und Spritzputz in der Farbe weiß
… und vieles mehr..
Gerne beraten wir Sie mit unserem unabhängigen Finanzierungsspezialisten!
Sonstiges Die hier gezeigten Hausversionen können Sonderausstattungen zeigen, die nicht in dem abgebildeten Preis enthalten sind (z. B. Erker, Gauben, Veranda, Holzverschalung, o. ä.) die Einrichtungsgegenstände sind nicht enthalten, Grundrisse sowie das äußere Erscheinungsbild können gegen Preisanpassung Ihren Wünschen und Anforderungen angepasst werden.

Merkmale

  • frei ab 02.01.2027
  • 540 m² Grundstück
  • offene Küche
  • Kein Keller
  • Carport, Außen-Stellplatz
  • Bad/WC getrennt, Gäste-WC
  • Terrasse
  • DSL-Anschluss

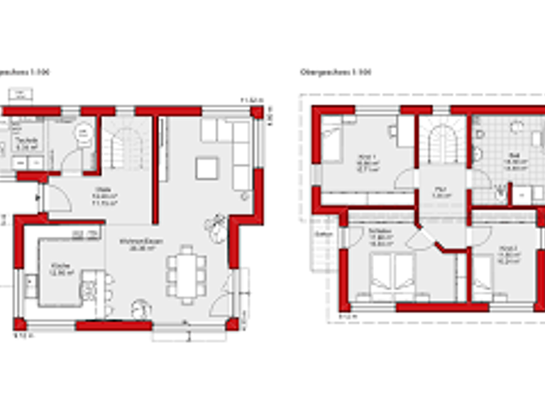
Grundrisse

Grundrisse
1 / 1

Realisiere Dein Projekt

Bausubstanz und Energie

Der Anbieter hat keine Informationen zum Energieverbrauch bereit gestellt.
  • Baujahr2026
  • Zustand der ImmobilieErstbezug
  • HaustypKfW 40
  • HeizungsartZentralheizung: Fußbodenheizung
  • EnergieträgerElektro, Luft-/Wasser-Wärmepumpe
Immowelt logo

Preisdetails

Kaufpreis
499000 €
3.539,01 €/m²
Provision für Käufer
provisionsfrei
Geschätzte Gesamtkosten
538.920 €1
Kaufpreis
499.000 €
Notarkosten (1,5%)
7.485 €
Grunderwerbsteuer (6%)
29.940 €
Grundbucheintrag (0,5%)
2.495 €
1Der angezeigte Wert ist eine automatisch berechnete Schätzung von immowelt.
2Bei den Angaben handelt es sich um ortsübliche Werte. Individuelle Kosten können abweichen.

Lage

address-icon
GroßseelheimKirchhain (35274)
Der Anbieter hat die genaue Adresse nicht freigegeben
Sonniges Grundstück in optimaler Lage im Neubaugebiet Großseelheim.

Weitere Informationen

Stichworte Sonstiges: ISDN

Weitere Services

Lust auf eine Besichtigung?
Eine Frage zur Immobilie?
Nachricht hinzufügen
Mit der Nutzung der oben angegebenen Telefonnummer oder durch Klicken auf „Kontaktieren“ akzeptierst Du die Allgemeinen Nutzungsbedingungen, denen Du jederzeit widersprechen kannst. Weitere Informationen zum Datenschutz

Über den Anbieter

Wiesenstraße 32, 35315 Homberg (Ohm)
partner badge
Partnerschaft
Alexander Reichhardt
Alexander ReichhardtDein Kontakt
Online-ID: 2ntfy5j
Wolf-Haus-GmbH Alexander Reichhardt
title
Wolf-Haus-GmbH Alexander Reichhardt
Nachricht hinzufügen
Mit der Nutzung der oben angegebenen Telefonnummer oder durch Klicken auf „Kontaktieren“ akzeptierst Du die Allgemeinen Nutzungsbedingungen, denen Du jederzeit widersprechen kannst. Weitere Informationen zum Datenschutz
Wie zufrieden bist du mit dieser Seite (nicht mit der Immobilie selbst)?