Version: 8.25.1Navigation überspringen
199.000 €
5 Zimmer  •  151 m²  •  600 m² Grundstück  •  frei ab 01.08.2026
Immowelt logo

Einfamilienhaus zum Kauf
199000 €
1.318 €/m²
5 Zimmer  •  151 m²  •  600 m² Grundstück  •  frei ab 01.08.2026

Modernisiertes Einfamilienhaus in bester Lage von Esterwegen

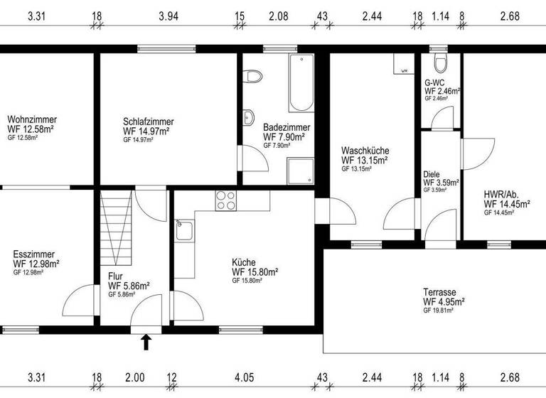
Das Wohnhaus wurde ca. 1959 errichtet und bietet eine solide Bausubstanz mit zeitgemäßer Modernisierung. Im Jahr 2019 wurde die Immobilie größtenteils renoviert und befindet sich heute in einem gepflegten Zustand. Im Erdgeschoss erwartet Sie ein Küchenraum mit neuwertiger Einbauküche (2020 im Kaufpreis mit enthalten). Das separate Esszimmer mit angrenzendem, gemütlichem Wohnzimmer schafft eine angenehme Wohnatmosphäre. Ergänzt wird diese Ebene durch ein altersgerecht ausgestattetes Badezimmer, eine praktische Nebenküche sowie einen Abstellraum bzw. Hauswirtschaftsraum. Die Raumaufteilung ermöglicht komfortables Wohnen auf einer Ebene. Das Obergeschoss verfügt über zwei weitere Zimmer, die flexibel als Kinderzimmer, Schlafzimmer oder Home-Office genutzt werden können. Auch eine Verwendung als Hobby- oder Spielzimmer ist problemlos möglich. Zusätzlich steht ein nostalgisch erhaltenes Badezimmer zur Verfügung. Zusätzliche Informationen: - Alle Fenster sind mit Isolierverglasung versehen - Küche aus dem Jahr 2020 - Badezimmer Erdgeschoss von 2005, Obergeschoss aus 2024 - Gasheizungsanlage 1992 -Glasfaseranschluss Energieausweis in Bearbeitung.

Merkmale

  • frei ab 01.08.2026
  • 600 m² Grundstück
  • Einbauküche, separate Küche
  • Keller (gesamt 20 m²)
  • 3 Außen-Stellplätze
  • 3 Bad/WC getrennt, Gäste-WC
  • Garten
  • 2 Terrassen (gesamt 25 m²)

Grundrisse

Grundrisse
1 / 2

Realisiere Dein Projekt

Bausubstanz und Energie

Energieausweis

Der Energieausweis wird bei Besichtigung nachgereicht.
  • Baujahr1959
  • Letzte Modernisierung2019
  • Zustand der ImmobilieModernisiert
  • Haustypk.A.
  • HeizungsartZentralheizung
  • EnergieträgerGas, fossile Brennstoffe
Immowelt logo

Preisdetails

Kaufpreis
199000 €
1.317,88 €/m²
Provision für Käufer
Die Käufercourtage beträgt 3,57 % inkl. MwSt. des notariellen Kaufpreises.
Geschätzte Gesamtkosten
220.034 €1
Kaufpreis
199.000 €
Notarkosten (1,5%)
2.985 €
Grunderwerbsteuer (5%)
9.950 €
Provision für Käufer (3,57%)
7.104 €
Grundbucheintrag (0,5%)
995 €
1Der angezeigte Wert ist eine automatisch berechnete Schätzung von immowelt.
2Bei den Angaben handelt es sich um ortsübliche Werte. Individuelle Kosten können abweichen.

Lage

address-icon
Esterwegen (26897)
Der Anbieter hat die genaue Adresse nicht freigegeben
Dieses Einfamilienhaus befindet sich in ausgezeichneter, ruhiger Wohnlage von Esterwegen und überzeugt durch ein angenehmes Umfeld sowie ein ca. 600 m² großes Eigentumsgrundstück. Dieses tolle Wohnhaus wurde in einer schönen und ruhigen Straße in Esterwegen errichtet. Trotz der ruhigen Lage befinden sich mehrere Einkaufsmöglichkeiten, Bäckereien und Restaurants in der näheren Umgebung. Ärzte und Apotheken sind ebenfalls bequem zu erreichen. Der Schulweg für die Kinder beläuft sich mit Fahrrad auf unter zehn Minuten. Der Esterweger Kindergarten befindet sich 400 m von der Immobilie entfern. Nicht nur die Schulen sind für die Kinder unmittelbar zu erreichen, ebenfalls sind der Sportplatz und der Erikasee in unmittelbarer Nähe.

Weitere Services

Lust auf eine Besichtigung?
Eine Frage zur Immobilie?
Nachricht hinzufügen
Mit der Nutzung der oben angegebenen Telefonnummer oder durch Klicken auf „Kontaktieren“ akzeptierst Du die Allgemeinen Nutzungsbedingungen, denen Du jederzeit widersprechen kannst. Weitere Informationen zum Datenschutz

Über den Anbieter

Börgerstraße 9, 26903 Surwold
partner badge
Partnerschaft
Herr Conring KlaasDein Kontakt
Online-ID: 2615J9ZUCVBU
Referenznummer: 202034
Gebrüder Klaas Immobilien
Gebrüder Klaas Immobilien
Bewertung: 5 von 5 Sternen
Nachricht hinzufügen
Mit der Nutzung der oben angegebenen Telefonnummer oder durch Klicken auf „Kontaktieren“ akzeptierst Du die Allgemeinen Nutzungsbedingungen, denen Du jederzeit widersprechen kannst. Weitere Informationen zum Datenschutz
Wie zufrieden bist du mit dieser Seite (nicht mit der Immobilie selbst)?