Version: 8.24.1Navigation überspringen
625.000 €
407 m²  •  656 m² Grundstück
Immowelt logo

Mehrfamilienhaus zum Kauf
625000 €
1.536 €/m²
407 m²  •  656 m² Grundstück

MEHRPARTEIENHAUS MIT GUTER RENDITE

Zum Verkauf gelangt ein gepflegtes Zinshaus in verkehrsberuhigter Siedlungslage in Traun.
Das Anlageobjekt überzeugt durch eine stabile Mieterstruktur, eine solide Rendite von 5,5 % sowie eine gefragte Wohnlage mit ausgezeichneter Infrastruktur.
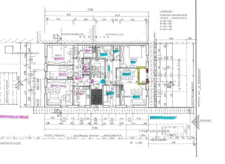
Das Gebäude umfasst sechs Wohneinheiten mit Wohnflächen zwischen ca. 65 m² und 73 m². Alle Wohnungen sind gut geschnitten und bieten funktionale Grundrisse, die eine langfristig hohe Vermietbarkeit gewährleisten.
Zu jeder Einheit gehören ein eigenes Kellerabteil sowie ein zugeordneter Parkplatz.
Die Wohnungen sind aktuell befristet auf drei Jahre vermietet, wodurch dem zukünftigen Eigentümer Flexibilität bei der weiteren Vermietungsstrategie geboten wird.

Der Garten steht den Bewohnern als Allgemeinfläche zur Verfügung und bietet zusätzlichen Erholungsraum im Grünen. Die ruhige Umgebung sorgt für eine hohe Wohnqualität und trägt zur langfristigen Attraktivität des Objektes bei.

Investment-Highlights
.Attraktive Rendite von ca. 5,5 %
.Sechs gut vermietbare Wohneinheiten
.Befristete Mietverträge (3 Jahre) - Flexibilität für Eigentümer
.Parkplatz und Kellerabteil pro Einheit
.Ruhige Siedlungslage
.Nähe zu Linz mit perfekter Infrastruktur
.Langfristig stabile Nachfrage nach Mietwohnungen

Merkmale

  • Bezug: sofort
  • vermietet
  • 656 m² Grundstück
  • 6 Stellplätze: 6 Außen-Stellplätze

Grundrisse

Grundrisse
1 / 5

Realisiere Dein Projekt

Bausubstanz und Energie

Heizwärmebedarf (HWB)

C

Gesamtenergieeffizienz (fGEE)

  • Baujahr1995
  • Zustand der ImmobilieGepflegt
Immowelt logo

Preisdetails

Kaufpreis
625000 €
1.535,63 €/m²
Provision für Käufer
3,60% inkl. USt.
Weitere Preisinformationen
6 Stellplätze

Lage

address-icon
Traun (4050)
Der Anbieter hat die genaue Adresse nicht freigegeben
Das Objekt befindet sich in einer ruhigen, verkehrsberuhigten Siedlungslage in Traun mit hervorragender Infrastruktur. Einkaufsmöglichkeiten, Schulen, Ärzte, öffentliche Verkehrsmittel sowie Freizeitmöglichkeiten sind in wenigen Minuten erreichbar.
Durch die Nähe zur Landeshauptstadt Linz sowie die sehr gute Verkehrsanbindung stellt der Standort eine besonders gefragte Wohnlage dar.

Weitere Informationen

Stichworte Nutzfläche: 540,00 m², Kellerfläche: 133,00 m², Bundesland: Oberösterreich, 3 Etagen

Weitere Services

Lust auf eine Besichtigung?
Eine Frage zur Immobilie?
Nachricht hinzufügen
Mit der Nutzung der oben angegebenen Telefonnummer oder durch Klicken auf „Kontaktieren“ akzeptierst Du die Allgemeinen Nutzungsbedingungen, denen Du jederzeit widersprechen kannst. Weitere Informationen zum Datenschutz

Über den Anbieter

Pfarrgasse 8, 4400 STEYR
partner badge
Partnerschaft
Herr Roland SüssDein Kontakt
Online-ID: 26MR2QQ91E2J
Referenznummer: SÜSSREAL-2026-1342
SÜSS REAL Immobilien
SÜSS REAL Immobilien
Nachricht hinzufügen
Mit der Nutzung der oben angegebenen Telefonnummer oder durch Klicken auf „Kontaktieren“ akzeptierst Du die Allgemeinen Nutzungsbedingungen, denen Du jederzeit widersprechen kannst. Weitere Informationen zum Datenschutz
Wie zufrieden bist du mit dieser Seite (nicht mit der Immobilie selbst)?