Version: 8.24.0Navigation überspringen
430.000 €
3 Zimmer  •  89 m²  •  300 m² Grundstück
Immowelt logo

Reihenendhaus zum Kauf - Erstbezug
430000 €
4.831 €/m²
3 Zimmer  •  89 m²  •  300 m² Grundstück

Attraktives Neubau-Reihenendhaus unweit der Ostsee!

Mit dem Projekt "Ostseeresidenzen Mechelsdorf" entstehen insgesamt sechs moderne Reihenhäuser in ruhiger, naturnaher Lage und in unmittelbarer Nähe zur Ostsee. Das Neubauensemble verbindet nachhaltige Bauweise mit zeitgemäßem Wohnkomfort und hoher Energieeffizienz - ideal für Eigennutzer wie auch Kapitalanleger.

Die Häuser wurden in Holzrahmenbauweise errichtet und erfüllen den KfW-40-Effizienzstandard. In Kombination mit einer Erdwärmepumpe sowie einer Photovoltaikanlage profitieren zukünftige Eigentümer von besonders niedrigen Energiekosten und einem zukunftssicheren, nachhaltigen Energiekonzept.

Für ein angenehmes Wohnklima sorgen hochwertige Holz-Aluminium-Fenster sowie integrierte Textilscreens als effektiver sommerlicher Wärmeschutz. Ergänzt wird der Wohnkomfort durch einen Balkon, der zusätzlichen Freiraum bietet und zum Entspannen im Freien einlädt.

Der Bau ist im Wesentlichen fertiggestellt, der Innenausbau hat begonnen. Aktuell sind noch zwei von insgesamt sechs Reihenhäusern verfügbar. Käufer haben die Möglichkeit, bei der Innenausstattung ihre individuellen Wünsche einzubringen - von Materialien über Oberflächen bis hin zu ausgewählten Sanitärobjekten und Ausstattungsdetails. So entsteht ein Zuhause, das perfekt auf die persönlichen Vorstellungen abgestimmt ist.

Die Ostseeresidenzen Mechelsdorf vereinen moderne Architektur, energieeffizientes Wohnen und attraktive Küstennähe - ein ideales Zuhause für Menschen, die Wert auf Qualität, Nachhaltigkeit und Wohnkomfort legen.

Merkmale

  • Bezug: nach Absprache
  • 300 m² Grundstück
  • Außen-Stellplatz
  • Gäste-WC
  • Balkon
  • Garten
  • Badezimmer: Bad mit Dusche, Bad mit Fenster
. Reihenendhaus mit 3 Zimmern
. KfW-40-Effizienzstandard
. Erdwärmepumpe
. Fußbodenheizung
. Holz-Aluminium-Fenster mit 3-fach-Verglasung
. Wärmeschutz Textilscreens
. Ökologische Holzrahmenbauweise
. Lehmputz im Innenbereich
. Fußböden nach Wahl
. Individuell wählbare Sanitärobjekte
. Balkon
. PKW-Stellplatz

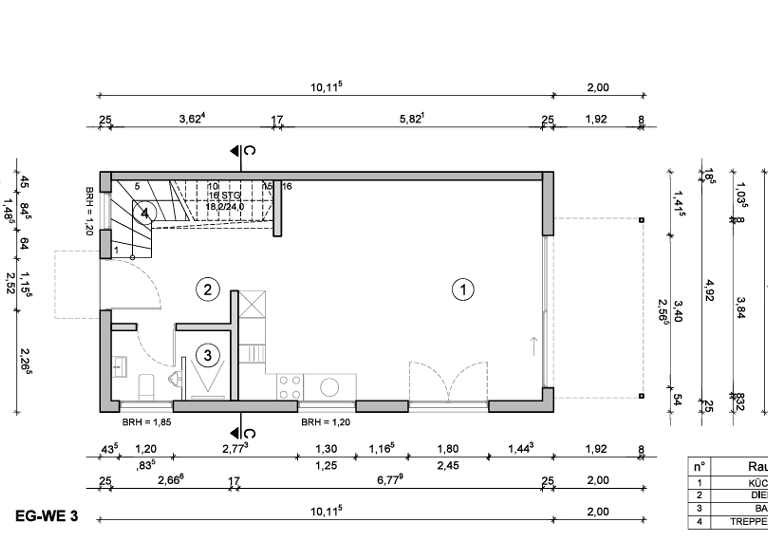
Grundrisse

Grundrisse
1 / 2

Realisiere Dein Projekt

Bausubstanz und Energie

Energieausweis

A+
  • Baujahr2023
  • Zustand der ImmobilieErstbezug
  • EnergieträgerErdwärme
Immowelt logo

Preisdetails

Kaufpreis
430000 €
4.831,46 €/m²
Provision für Käufer
3,57 % inkl. gesetzlicher MwSt..
Die Angaben zum Objekt stammen vom Verkäufer. Für die Richtigkeit und Vollständigkeit wird keine Haftung übernommen. Weitere Informationen siehe Provisionshinweis.
Weitere Preisinformationen
1 Stellplatz
Geschätzte Gesamtkosten
479.751 €1
Kaufpreis
430.000 €
Notarkosten (1,5%)
6.450 €
Grunderwerbsteuer (6%)
25.800 €
Provision für Käufer (3,57%)
15.351 €
Grundbucheintrag (0,5%)
2.150 €
1Der angezeigte Wert ist eine automatisch berechnete Schätzung von immowelt.
2Bei den Angaben handelt es sich um ortsübliche Werte. Individuelle Kosten können abweichen.

Lage

address-icon
MechelsdorfBastorf (18230)
Der Anbieter hat die genaue Adresse nicht freigegeben
Das Objekt liegt in ruhiger, dörflicher Wohnlage in Mechelsdorf bietet ein naturnahes Umfeld mit viel Grün und Weitblick. Die Dorfstraße ist die zentrale Ortsstraße und geprägt von Einfamilienhäusern sowie landwirtschaftlich geprägter Umgebung - ideal für alle, die entspanntes Wohnen abseits des Trubels schätzen.

Die Ostseebäder Kühlungsborn und Rerik sind in kurzer Fahrzeit erreichbar und bieten eine sehr gute Infrastruktur mit Einkaufsmöglichkeiten, medizinischer Versorgung, Schulen, Gastronomie und vielfältigen Freizeitangeboten. Auch Bad Doberan und Rostock sind gut angebunden und erweitern das Angebot an Arbeit, Bildung und Kultur.

Die Nähe zur Ostsee sowie zur typisch mecklenburgischen Landschaft macht die Lage besonders attraktiv für Natur- und Erholungsliebhaber. Rad- und Wanderwege, Felder und Wiesen prägen das direkte Umfeld.

Weitere Informationen

Provisionshinweis 3,57 % inkl. gesetzlicher MwSt..
Die Angaben zum Objekt stammen vom Verkäufer. Für die Richtigkeit und Vollständigkeit wird keine Haftung übernommen. Der Käufer zahlt im Erfolgsfall an die Firma Immobilienhaus Wagner GmbH eine Käufer-Maklerprovision in Höhe von 3,57 % inkl. gesetzlicher MwSt.. Die Provision errechnet sich aus dem beurkundeten Kaufpreis. Dieses Exposé ist eine Vorinformation, als Rechtsgrundlage gilt allein der notariell abgeschlossene Kaufvertrag. Sonstiges Sie kennen jemanden der eine Immobilie veräußern möchte?

Sprechen Sie uns gerne an & sichern Sie sich auf unkompliziertem Weg die attraktive Tippgeberprovision bei Immobilienhaus Wagner! Stichworte Stellplatz vorhanden, Anzahl der Schlafzimmer: 2, Anzahl der Badezimmer: 2, Anzahl Balkone: 1, Balkon-Terrassen-Fläche: 8,00 m², Bundesland: Mecklenburg-Vorpommern, 2 Etagen, Distanz zum Flughafen: 69.6, Distanz zum Hauptbahnhof: 11.8, Distanz zur Autobahn: 25.3, Distanz zum Bus: 0.55

Weitere Services

Lust auf eine Besichtigung?
Eine Frage zur Immobilie?
Nachricht hinzufügen
Mit der Nutzung der oben angegebenen Telefonnummer oder durch Klicken auf „Kontaktieren“ akzeptierst Du die Allgemeinen Nutzungsbedingungen, denen Du jederzeit widersprechen kannst. Weitere Informationen zum Datenschutz

Über den Anbieter

Baumwallsweg 10, 17034 Neubrandenburg
partner badge
3 Jahre Partnerschaft
Herr Eric LucygaDein Kontakt
Online-ID: 2n5275p
Referenznummer: 3045
Immobilienhaus Wagner GmbH
Immobilienhaus Wagner GmbH
Bewertung: 4,3 von 5 Sternen
Nachricht hinzufügen
Mit der Nutzung der oben angegebenen Telefonnummer oder durch Klicken auf „Kontaktieren“ akzeptierst Du die Allgemeinen Nutzungsbedingungen, denen Du jederzeit widersprechen kannst. Weitere Informationen zum Datenschutz
Wie zufrieden bist du mit dieser Seite (nicht mit der Immobilie selbst)?