Wohnung 101m2 zum Kauf - Zadar, Vrsi
Neubau Zweizimmerwohnung mit Pool, 101 m, Vrsi, Zadar
Wir bieten eine Zweizimmerwohnung im Erdgeschoss eines neu errichteten Wohngebäudes in Vrsi an.
Das Gebäude befindet sich derzeit in der Endphase der Bauarbeiten, die Fertigstellung und der Einzug sind für Frühjahr/Sommer 2026 geplant.
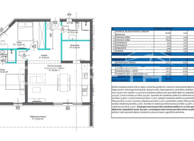
Die Wohnung besteht aus einem Flur, Badezimmer, Abstellraum (5 m), zwei Schlafzimmern, wobei das Hauptschlafzimmer (16 m) über ein eigenes Badezimmer (5 m) verfügt, sowie einem offenen Wohn-, Ess- und Küchenbereich mit insgesamt 27 m. Vom Wohnbereich gelangt man auf eine überdachte Terrasse von 23 m. Die Terrasse ist von einem 53 m großen Garten umgeben, in dem ein Swimmingpool errichtet wird.
Jeder Raum ist mit einer Klimaanlage zum Heizen und Kühlen ausgestattet, während im Wohnzimmer und in den Badezimmern zusätzlich eine elektrische Heizung vorhanden ist. Die gesamte Fenster- und Türanlage ist aus Aluminium mit Insektenschutzgittern und integrierten elektrischen Rollläden. Die Eingangstür ist einbruch- und feuerhemmend.
Besichtigungen sind nach vorheriger Vereinbarung an allen Tagen der Woche möglich.
Vrsi ist ein ruhiger dalmatinischer Ort mit angenehmer Küstenlage, sauberem Meer und gepflegten Stränden, geeignet sowohl für Urlaub als auch für dauerhaftes Wohnen. Die Nähe zu Zadar sowie die gute Anbindung an nahegelegene attraktive Orte wie Nin und Privlaka steigern zusätzlich den Wert und ziehen zahlreiche Touristen an. Der Kauf einer Immobilie in Vrsi stellt aufgrund der steigenden Nachfrage, der touristischen Entwicklung und der langfristigen Perspektiven der Region eine solide Investition dar.