Version: 8.24.0Navigation überspringen
950.000 €
8.351 m² Grundstück
Immowelt logo

Grundstück zum Kauf
950000 €
114 €/m²
8.351 m² Grundstück

Traumhaftes Baugrundstück für 1 bis 7 Einfamilienhäusern!

ACHTUNG BAUTRÄGER AUFGEPASST!

Bei diesem Verkaufsobjekt handelt es sich um ein rand erschlossenes Areal, welches sich in bester Wohnlage von Meißen, dirket am Schottenberg, am Ende einer Sackgasse befindet. Von unserem Filetstück genießen Sie künftig einen herrlich Panoramablick bis zur Albrechtsburg.
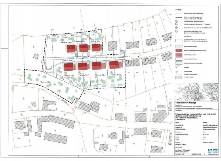
Das gesamte Grundstücksareal besitzt eine Größe von cirka 8.351 m² und kann mit einem bzw. bis zu 7 Einfamilienhäusern bebaut werden. Die eventuell zukünftig entstehenden Bauplatzgrößen sowie Grünflächen sind im sogenanntes "Städtebauliches Konzept" einsehrbar. Die "innere Gliederung des Gesamtgrundstückes" ist ein Vorschlag der Verkäuferschaft und ist baurechtlich gesichert. Eine detaillierte Aufgliederung der Bau-Parzellen kann der Käufer selbst bestimmen.

Es handelt sich hier um ein sonniges Südhanggrundstück. Durch die optimale Ausnutzung der vorhandenen Hanglage ist eine Bebauung mit einem lichtreichen Garten- bzw. Souterrrainbereich möglich. Es können herrliche mediterrane Terrassenflächen mit Panoramablick zudem angegliedert werden.

Des Weiteren ist das Grundstück straßenseitig voll erschlossen. Es liegen Ver- und Entsorgungsanschlüsse für Wasser, Abwasser und Strom am Grundstück an. Die Erschließung ist gesichert und sollte über das eigene Grundstück erfolgen. Das Abwasser muss über sogenannte Abstützschächte Zum Lehmberg geleitet werden. Der Erschließungsvertrag mit der Stadt Meißen ist vorbereitet. Der Käufer ist verpflichtet diesen vorgenannten Vertrag abzuschließen.
Höhenlage von Meißen mit Fernblick in das schöne Elbtal und auf den Meißner Dom!

Merkmale

  • 8.351 m² Grundstück
  • unerschlossen

Grundrisse

Grundrisse
1 / 6

Realisiere Dein Projekt

Bausubstanz und Energie

Der Anbieter hat keine Informationen zu Energieverbrauch oder Zustand der Immobilie bereit gestellt.
Immowelt logo

Preisdetails

Kaufpreis
950000 €
113,76 €/m²
Provision für Käufer
provisionsfrei
Geschätzte Gesamtkosten
950.000 €1
Kaufpreis
950.000 €
1Der angezeigte Wert ist eine automatisch berechnete Schätzung von immowelt.

Lage

address-icon
Meißen (01662)
Der Anbieter hat die genaue Adresse nicht freigegeben
Das in einer Höhenlage von Meißen befindliche Baugrundstück liegt in einer absolut ruhigen Anliegerstraße, fernab von Lärm und Alltagsstreß.

Unser Grundstücksareal liegt in einer beliebten Wohngegend von Meißen, Obermeisa. Sie und Ihre Bauherren, Familien dürfen einen herrlichen Ausblick auf die Burg von Meißen genießen. Das Grundstück ist ideal nach Süden ausgerichtet.

Des Weiteren ist der Grund infrastrukturell gut angeschlossen. Schulen aller Art, Dinge des täglichen Bedarfs sowie Ärzte aller Fachrichtungen befinden sich in unmittelbarer Nähe. Die nächste Busanbindung in das Meißner Zentrum ist fußläufig erreichbar.
Bestlage von Meißen / Obermeisa gelegen / absolut ruhige Anliegerstraße

Weitere Services

Lust auf eine Besichtigung?
Eine Frage zur Immobilie?
Nachricht hinzufügen
Mit der Nutzung der oben angegebenen Telefonnummer oder durch Klicken auf „Kontaktieren“ akzeptierst Du die Allgemeinen Nutzungsbedingungen, denen Du jederzeit widersprechen kannst. Weitere Informationen zum Datenschutz

Über den Anbieter

Auerweg 5, 01689 Weinböhla
partner badge
3 Jahre Partnerschaft
Herr Henry KienzleDein Kontakt
Online-ID: 2nue754
Referenznummer: BG 11605
Kienzle IMMOBILIEN
Kienzle IMMOBILIEN
Nachricht hinzufügen
Mit der Nutzung der oben angegebenen Telefonnummer oder durch Klicken auf „Kontaktieren“ akzeptierst Du die Allgemeinen Nutzungsbedingungen, denen Du jederzeit widersprechen kannst. Weitere Informationen zum Datenschutz
Wie zufrieden bist du mit dieser Seite (nicht mit der Immobilie selbst)?