Version: 8.22.4Navigation ĂĽberspringen
999.000 €
5 Zimmer  â€˘  120,1 m²  â€˘  frei ab 01.04.2026
Immowelt logo

Doppelhaushälfte zum Kauf - Erstbezug
999000 €
8.322 €/m²
5 Zimmer  â€˘  120,1 m²  â€˘  frei ab 01.04.2026

. NEU! . TOP-LAGE . ZIEGELMASSIVHÄUSER . KELLER . ERDGESCHOSS . OBERGESCHOSS . GARTEN . TERRASSE . PKW-STELLPLATZ .

* PROJEKT:

Zum Verkauf gelangen 6 Doppelhaushälften, welche SCHLĂśSSELFERTIG und in TOP Baumeisterqualität (100% Zigelmassiv!) hergestellt sind!

Die unverwechselbaren Doppelhäuser (Baujahr: 2024-2025) erfĂĽllen alle technischen und konstruktiven Standards zeitgemäßen Bauens, bieten durchdachte Grundrisse und entsprechen allen BedĂĽrfnissen des modernen Wohnens! 

______

* KELLER + ERDGESCHOSS + OBERGESCHOSS + GARTEN + TERRASSE + PKW STELLPLATZ:

______

HAUS 1: Gesamtfläche: ca. 292,57 m2

* Wohnnutzfläche: ca.121,32 m², 5 ZIMMER
* Gartenfläche: ca. 98,10 m²  
* Terrassenfläche (EG): ca. 18,15 m²
* Terrassenfläche (DG): ca. 11,63 m² 
* PKW Garagenplatz: ca. 28 m²
* AR 5,69 m²
* Technikraum ca. 10 m²
* Kaufpreis: EUR 999.000 (SchlĂĽsselfertig!)

______

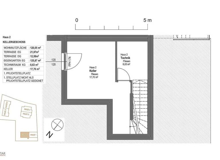
HAUS 2: Gesamtfläche: ca. 307 m2

* Wohnnutzfläche: ca.120,05 m², 5 ZIMMER + KELLER mit FuĂźbodenheizung
* Gartenfläche: ca. 126 m²  
* Terrasse EG: ca. 22 m²
* Terrasse DG: ca. 12,58 m² 
* PKW Parkplatz ca. 12,50 m²
* Keller: ca. 18 m²
* Technikraum: ca. 8,63 m²
* Kaufpreis: EUR 999.000 (SchlĂĽsselfertig!)

______

HAUS 3: Gesamtfläche: ca. 231 m2

* Wohnnutzfläche: ca.135 m², 5 ZIMMER
* Gartenfläche: ca. 48,40 m²  
* Terrasse EG: ca. 14,57 m2
* Terrassen DG: ca. 14,24 m² + 6,60 m² 
* PKW Parkplatz ca. 12,50 m²
* Kaufpreis: EUR 919.000 (SchlĂĽsselfertig!)

______

HAUS 4: Gesamtfläche: ca. 255,65 m2

* Wohnnutzfläche: ca. 139,09 m², 5 ZIMMER
* Gartenfläche: ca. 67,22 m2 
* Terrassenfläche (EG): ca. 16,22 m²
* Terrassenfläche (DG): ca. 20,62 m² 
* PKW Parkplatz ca. 12,50 m²
* Kaufpreis: EUR 919.000 (SchlĂĽsselfertig!)

______

HAUS 5: Gesamtfläche: ca. 308,30 m2

* Wohnnutzfläche: ca.111,08 m², 4 ZIMMER + KELLER mit FuĂźbodenheizung
* Keller ca. 56 m²
* Gartenfläche: ca. 87,19 m2 
* Terrassen EG: ca. 18,03 m2
* Terrasse DG: ca. 11 m² 
* PKW Parkplatz ca. 25 m²
* Kaufpreis: EUR 899.000 (SchlĂĽsselfertig!)

______

HAUS 6: Gesamtfläche: ca. 336 m2

* Wohnnutzfläche: ca. 111,78 m², 4 ZIMMER + 49,11 m² KELLER (mit FuĂźbodenheizung)!
* Keller ca. 49,11 m²
* Gartenfläche: ca. 116 m2 
* Terrassen EG: ca. 23,35 m2
* Terrasse DG: ca. 11 m² 
* PKW Parkplatz ca. 25 m²
* Kaufpreis: EUR 899.000 (SchlĂĽsselfertig!)

______

* 6 PKW STELLPLÄTZE:

FĂĽr jedes Haus, steht ein PKW STELLPLATZ zu VerfĂĽgung (Eigentum!) und ist bereits im Kaufpreis inkludiert!

______

* KEIN BAURECHT, KEINE PACHT:

Sie erwerben hier IHR EIGENHEIM und EIGENTUMSGRUND!

______

* GEMĂśTLICH UND HOCHWERTIG:

FĂĽr ein gemĂĽtliches Raumklima sorgt eine FuĂźbodenheizung, welche von einer höchst effizienten LUFT/WASSER WĂ„RMEPUMPE (Warmwasseraufbereitung ohne SchadstoffausstoĂź!) versorgt wird.

So gibt keine sperrigen und störenden Heizkörper und somit steht Ihnen für die Gestaltung Ihrer Wohnbereiche mehr Platz zur Verfügung!

Weiters zählen zur hochwertigen Ausstattung: KLIMAANLAGE, Eichenparkettböden, keramischer Fliesen-Belag/Feinsteinzeug, Garten mit Rollrasen, etc.

______

* ZIEGELMASSIV - QUALITÄT, DIE GENERATIONEN ÜBERDAUERT!

Die Ziegelbauweise kombiniert Tradition mit modernen Vorteilen. Dank ihrer hohen Wärmespeicherkapazität und den speziellen Eigenschaften von Ziegeln, wie Poren und Luftkammern, wird ein herausragender Wärmeschutz mit Top U-Werten erreicht. Dies sorgt für ein stets angenehmes Raumklima, wobei Ziegel überschüssige Feuchtigkeit aufnehmen und wieder abgeben können. Die Beschaffenheit des Ziegels bietet zudem exzellenten Schallschutz und Brandsicherheit.

Im Vergleich zu trendigen, "exotischen" Materialien ist die Ziegelmassivbauweise deutlich langlebiger und stellt somit eine ĂĽberlegene Geldanlage und Investition fĂĽr die Zukunft dar.

______

TOP LAGE:

Ein detailliertes LAGEEXPOSÉ (65 Seiten!) erfolgt umgehend nach Anfrage!

______

*
VERMITTLUNGSPROVISION / DOPPELMAKLERTÄTIGKEIT:

Der Ordnung halber wird darauf hingewiesen, dass die Vermittlungsprovision 3 % des Kaufpreises zuzüglich 20 % USt. (insgesamt 3,6 %) beträgt und mit Zustandekommen des vermittelten Rechtsgeschäfts (Annahme des Kaufanbots ohne aufschiebende Bedingungen durch den Verkäufer) fällig wird. Der Makler ist als Doppelmakler tätig.

* . NEU! . TOP-LAGE . ZIEGELMASSIVHÄUSER . KELLER . ERDGESCHOSS . OBERGESCHOSS . GARTEN . TERRASSE . PKW-STELLPLATZ .

Hinweis gemäß Energieausweisvorlagegesetz: Ein Energieausweis wurde vom Eigentümer bzw. Verkäufer, nach unserer Aufklärung über die generell geltende Vorlagepflicht, sowie Aufforderung zu seiner Erstellung noch nicht vorgelegt. Daher gilt zumindest eine dem Alter und der Art des Gebäudes entsprechende Gesamtenergieeffizienz als vereinbart. Wir übernehmen keinerlei Gewähr oder Haftung für die tatsächliche Energieeffizienz der angebotenen Immobilie.

Wir weisen darauf hin, dass zwischen dem Vermittler und dem zu vermittelnden Dritten ein familiäres oder wirtschaftliches Naheverhältnis besteht.

Der Vermittler ist als Doppelmakler tätig.

Merkmale

  • frei ab 01.04.2026
  • AuĂźen-Stellplatz
  • Terrasse
  • voll klimatisiert
  • Bodenbelag: Fliesen, Parkett

Grundrisse

Grundrisse
1 / 4

Realisiere Dein Projekt

Bausubstanz und Energie

Der Anbieter hat keine Informationen zum Energieverbrauch bereit gestellt.
  • Baujahr2024
  • Zustand der ImmobilieNeubau, Massivhaus, Erstbezug
  • HeizungsartFuĂźbodenheizung
  • EnergieträgerLuft-/Wasser-Wärmepumpe
Immowelt logo

Preisdetails

Kaufpreis
999000 €
8.321,53 €/m²
Provision für Käufer
3% des Kaufpreises zzgl. 20% USt.
Weitere Preisinformationen
1 Stellplatz

Lage

address-icon
Klosterneuburg (3400)

Weitere Informationen

Stichworte Stellplatz vorhanden, Nord-West-Ost-Süd-West-West-Balkon/Terrasse, Rolladen, Nutzfläche: 307,00 m², Anzahl Terrassen: 2, Balkon-Terrassen-Fläche: 34,55 m², Kellerfläche: 18,00 m², Bundesland: Niederösterreich, 4 Etagen, Wohnungsnr.: 2

Weitere Services

Lust auf eine Besichtigung?
Eine Frage zur Immobilie?
Nachricht hinzufĂĽgen
Mit der Nutzung der oben angegebenen Telefonnummer oder durch Klicken auf „Kontaktieren“ akzeptierst Du die Allgemeinen Nutzungsbedingungen, denen Du jederzeit widersprechen kannst. Weitere Informationen zum Datenschutz

Ăśber den Anbieter

Lerchenfelder StraĂźe 158/1-2, 1080 WIEN
partner badge
6 Jahre Partnerschaft
TRISTAR ImmobilienDein Kontakt
Online-ID: 2muj35x
Referenznummer: OBGC202407302113470588400acafec
TRISTAR Immobilien GmbH & Co KG
Nachricht hinzufĂĽgen
Mit der Nutzung der oben angegebenen Telefonnummer oder durch Klicken auf „Kontaktieren“ akzeptierst Du die Allgemeinen Nutzungsbedingungen, denen Du jederzeit widersprechen kannst. Weitere Informationen zum Datenschutz
Wie zufrieden bist du mit dieser Seite (nicht mit der Immobilie selbst)?