

RE/MAX Prime Immobilien | Baldur Immobilien GmbH
Frau Kristina Kühn
089 ···
Nr. anzeigenPreise & Kosten
Provision für Käufer
provisionsfrei
Lage
Diese exklusive Wohnimmobilie befindet sich im prestigeträchtigen Stadtteil Bogenhausen, direkt am Arabellapark - einer der begehrtesten Wohnlagen Münchens. Die Umgebung zeichnet sich durch eine exzellente Infrastruktur aus und bietet eine optimale Anbindung an öffentliche Verkehrsmittel, die Münchner Innenstadt sowie...
Die Wohnung
Derzeitige Nutzung
vermietet
Wohnanlage
Energie & Heizung
Warum sehe ich diese Anzeige? – Du siehst diese Anzeige basierend auf Ihrer Navigation auf unserer Website und den Suchkriterien, die du verwendet hast.
Energieausweistyp
Verbrauchsausweis
Gebäudetyp
Wohngebäude
Baujahr laut Energieausweis
1967
Wesentliche Energieträger
FERN
Gültigkeit
bis 19.11.2027
Effizienzklasse
F
Endenergieverbrauch
196,00 kWh/(m²·a)
Weitere Energiedaten
Heizungsart
Fußbodenheizung, Zentralheizung
Details
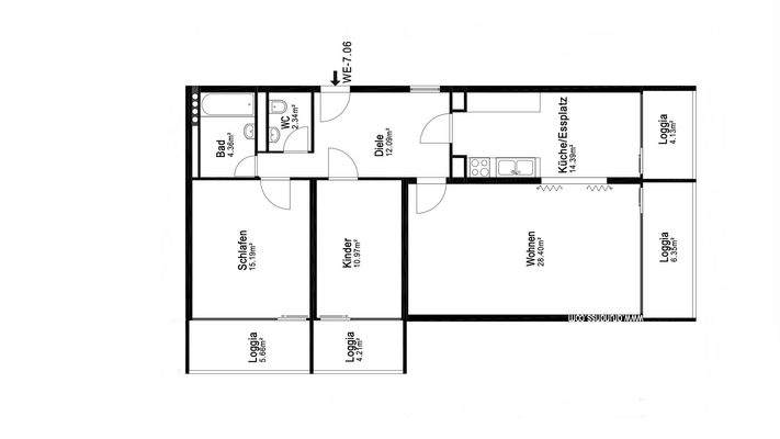
Objektbeschreibung
Diese 3-Zimmer-Wohnung im 7. Obergeschoss eines gepflegten Mehrparteienhauses vereint stilvolle Großzügigkeit, ästhetische Eleganz und eine durchdachte Raumkonzeption. Mit vier Balkonen in idealer Süd- und Westausrichtung eröffnet sich ein spektakulärer Panoramablick, der bei klarer Sicht bis zu den Alpen reicht - ein...
Ausstattung
Highlights der Immobilie
- Stockwerk: 7. Obergeschoss, bequem erreichbar über einen modernen Aufzug
- Balkone-Loggien: Vier großzügige überdachte Balkone mit Süd- und Westausrichtung, die außergewöhnliche Ausblicke bieten
- Aussicht: Atemberaubender Panoramablick - bei gutem Wetter bis zu den Alpen
- Fenster...
Preisinformation
1 Tiefgaragenstellplatz, Kaufpreis: 25.000,00 EUR
Weitere Informationen
Sonstiges
Rechtlicher Hinweis:
Maklercourtage: Ohne zusätzliche Käuferprovision.
Wir haben die Wohnfläche durch Ansicht der Pläne über einen spezialisierten, externen Anbieter Wohnflächenberechnung überprüfen lassen. Wir übernehmen keine Haftung für Angaben Dritter.
Die Angaben zum Baujahr konnten wir...
Anbieter der Immobilie
RE/MAX Prime Immobilien | Baldur Immobilien GmbH
Semmelweisstraße 8, 82152 Planegg - Steinkirchen

Online-ID: 2lam25p
Referenznummer: 1000-1
Finde Angebote wie dieses
Hier geht es zu unserem Impressum, den Allgemeinen Geschäftsbedingungen, den Hinweisen zum Datenschutz und nutzungsbasierter Online-Werbung.