




1 / 35



1 / 35

Einfamilienhaus zum Kauf1189000 €1.189.000 €6.370 €/m²5,5 Zimmer • 186,7 m² • 517 m² Grundstück
1189000 €1.189.000 €
6.370 €/m²
5,5 Zimmer • 186,7 m² • 517 m² Grundstück
ZAUBERHAFTER WALDBLICK ERSTBEZUG - FERNBLICK - WALDIDYLLE - FAMILIENTRAUM
IDYLL AM WIENERWALD: ERSTBEZUG NACH KERNSANIERUNG - UNIKAT MIT TRAUMHAFTEM FERNBLICK
In absoluter Ruhelage am Waldrand, kurz vor dem Ende einer kaum befahrenen Sackgasse, gelangt dieses komplett kernsanierte Einfamilienhaus zum Verkauf - ein echtes Juwel für Naturliebhaber, Ruhesuchende und anspruchsvolle Familien, die das Besondere suchen.
Das Haus mit ursprünglichem Baujahr aus 1977 ist ein echtes Unikat und besticht vor allem mit seiner durchdachten Planung, einer Fusion aus modernem energieeffizientem Leben und flexibel nutzbaren Wohnflächen.
Die rundum erneuerte Immobilie wird schlüsselfertig mit Bädern übergeben und präsentiert sich in hochwertigster Ausführung.
Carport ist bereits bewilligt.
LAGE - NATURIDYLL MIT WEITBLICK:
*
Absolute Ruhelage, kaum Verkehr, sehr privat, am Ende einer Sackgasse
*
Direkt an der Natur - Umgeben vom Wald, am Rande des Wiener Walds
*
eingebettet in einen Südhang, die Ausrichtung bietet ganzjährig Sonne
*
Top-Anbindung an die Stadt durch nahe gelegene Bushaltestellen und Infrastruktur
AUSSTATTUNG - ERSTBEZUG NACH SANIERUNG MIT MODERNSTEM WOHNKOMFORT:
Das ca. 1977 errichtete Haus wurde grundlegend erneuert - technisch wie optisch - und erfüllt alle Anforderungen an modernes, nachhaltiges Wohnen:
*
Thermische Sanierung auf Niedrigenergiestandard
*
Neue Luft-Wärmepumpe mit Fußbodenheizung
*
Hochwertige 3-fach verglaste Alu-Holz-Fenster, mit Fliegengittern & Außenjalousien
*
18 cm Steinwolle-Dämmung an der Fassade
*
Dachboden wurde von innen neu isoliert
*
Neue Sanitäranlagen, Elektrik und Türen
*
Installationen für eine offene Wohnküche
*
Hochwertige spanische Designer Fliesen, absolutes Unikat und Blickfang! Schafft optisch die perfekte Verbindung zwischen idyllischer Umgebung inmitten der Natur und einem modernen Zuhause!
*
Parken direkt vor dem Haus, Bewilligung für ein Carport ist bereits vorhanden!
*
großzügiger Einlagerungsraum, Extra Keller, bietet ausreichend Stauraum außerhalb der Wohnfläche
*
Lifteinbau ist möglich
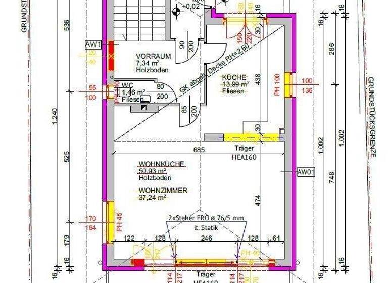
WOHNEN AUF DREI EBENEN - HELL, FUNKTIONAL & GEMÜTLICH:
Die Wohnfläche von rund 186 m² ist durch die Hanglage optimal verteilt:
Erdgeschoss (Eingangsebene):
*
Repräsentativer Eingangsbereich, dem großzügig gestalteten Wohnzimmer angrenzend mit Zugang zum Balkon und traumhaftem Grünblick
*
offene Wohnküche, Wohnzimmer mit romantischem Kamin, 12 m² Balkon mit grandiosem Ausblick, Windfang mit Garderobennische, Gäste-WC
Mittelgeschoss:
*
Zwei ruhige ca. 16 m2 große Schlafzimmer, mit bodentiefen Fenstern und französischem Balkon sorgen für besonders viel Licht
*
Kleines Büro / Arbeitszimmer
*
Badezimmer mit Tageslicht Fenster und Gartenblick, Badewanne, Regendusche
*
WC separat
*
Wäschezimmer
Gartengeschoss mit traumhafter Terrasse und direktem Gartenzugang:
Dieses Stockwerk wurde als eigene Einheit geplant, wie eine kleine Suite im Haus mit eigener ca. 24 m2 Terrasse und Gartenzugang!!
*
Vorraum
*
Heizraum
*
Badezimmer mit Schrankraum en Suite, WC separat
*
Das Badezimmer ist beidseitig von Flur und Master Bedroom aus begehbar
*
Ein Extra "Wohnsalon" mit Terrasse und Gartenzugang und traumhaftem idyllischem Blick, dieser Raum ist flexibel nutzbar, auch als Sommerküche, und könnte noch mit einem romantischen offenen Kamin ausgestattet werden.
*
Abstell- und Lagerraum, Archiv mit Echtholzboden und nachträglich eingesetztem Tageslichtfenster!
GRUNDSTÜCK & GARTEN:
*
Grundstücksgröße: ca. 517 m²
*
Davon ca. 382 m² Garten in Hanglage mit direktem Zugang vom Haus
*
Grüner Rückzugsort - mit viel Potenzial, terrassenartiger Hanggarten mit Südausrichtung, bietet unzählige träumerische Wohlfühlplätzchen
*
Eine kleine versteckte Laube lädt zum Verweilen ein im Garten, bis in den Herbst/ Frühling hinein
*
Der Garten umringt das Haus, mit vielen besonderen Plätzchen, die nur darauf warten entdeckt zu werden!
INFRASTRUKTUR & UMGEBUNG:
*
Bushaltestelle "Campingplatz Wien West 2" in ca. 8 Gehminuten erreichbar (Linien 43B, 52A, 52B)
*
Nähe zu Restaurants, Cafés und Nahversorgern
*
Wanderwege, Radstrecken und Natur pur - direkt vor der Haustüre
FAZIT:
Ein einzigartiges Wohnjuwel, das höchsten Wohnkomfort mit unvergleichlicher Naturlage verbindet.
Erstbezug nach hochwertigster Sanierung - alles ist bereit für den neuen Eigentümer.
Hier wohnen Sie ruhig, sonnig und naturverbunden, ohne auf Infrastruktur zu verzichten.
Jetzt besichtigen - und verlieben.
Wir weisen darauf hin, dass zwischen dem Vermittler und dem zu vermittelnden Dritten ein familiäres oder wirtschaftliches Naheverhältnis besteht.
Der Vermittler ist als Doppelmakler tätig.
DECUS Immobilien GmbH - Wir beleben Räume
Für weitere Informationen und Besichtigungen steht Ihnen gerne Herr Ing. Nicolas Putzlager unter der Mobilnummer +43 660 302 61 70 und per E-Mail unter putzlager@decus.at persönlich zur Verfügung.
www.decus.at | office@decus.at
Wichtige Informationen
Bitte beachten Sie, dass per 13.06.2014 eine neue Richtlinie für Fernabsatz- und Auswärtsgeschäfte in Kraft getreten ist.
Ab 1.4.2024 entfallen die Grundbuchs- und Pfandrechtseintragungsgebühren vorübergehend für Eigenheime bis zu einer Bemessungsgrundlage von EUR 500.000,-. Voraussetzung ist das dringende Wohnbedürfnis, ausgenommen davon sind vererbte oder geschenkte Immobilien. Die Befreiung ist jedoch für den Einzelfall zu prüfen, DECUS Immobilien übernimmt hierzu keine Haftung.
Ab 01.07.2023 gilt das Erstauftraggeber-Prinzip bei Wohnungsmietverträgen, ausgenommen davon sind Dienst-/Natural-/Werkswohnungen. Wir dürfen gem. § 17 Maklergesetz darauf hinweisen, dass wir auf die Doppelmaklertätigkeit gem. § 5 Maklergesetz bei Wohnungsmietverträgen verzichten und nur noch einseitig tätig sind (bei den restlichen Vermittlungsarten nicht) und ein wirtschaftliches Naheverhältnis zu unseren Auftraggebern besteht.
Im Falle eines Abschlusses mit Ihnen oder einem von Ihnen namhaft gemachten Dritten bzw. bei beidseitiger Willensübereinstimmung beträgt unser Honorar (lt. Honorarverordnung für Immobilienmakler) 2 Bruttomonatsmieten (BMM) bei Dienst-/Natural-/Werkwohnungen sowie Suchaufträgen, 3 BMM bei Gewerbe-, PKW-, Keller- und Lagermietverträgen sowie bei Kaufobjekten 3 % des Kaufpreises, zuzüglich der gesetzlichen Umsatzsteuer.
Dieses Objekt wird Ihnen unverbindlich und freibleibend angeboten. Oben angeführte Angaben basieren auf Informationen und Unterlagen des Eigentümers und sind unsererseits ohne Gewähr.
Nähere Informationen sowie unsere AGBs und die Nebenkostenübersichtsblatt finden Sie auf unserer Homepage www.decus.at unter "Service" - "Rechtliches zum FAGG" sowie im Anhang der zugesendeten Objekt-Exposés!
Infrastruktur / Entfernungen
Gesundheit
Arzt <1.750m
Apotheke <1.500m
Klinik <2.500m
Krankenhaus <1.750m
Kinder & Schulen
Schule <1.250m
Kindergarten <500m
Universität <1.000m
Höhere Schule <5.000m
Nahversorgung
Supermarkt <500m
Bäckerei <1.750m
Einkaufszentrum <2.750m
Sonstige
Geldautomat <1.500m
Bank <1.500m
Post <3.000m
Polizei <1.750m
Verkehr
Bus <250m
U-Bahn <2.000m
Straßenbahn <1.500m
Bahnhof <1.750m
Autobahnanschluss <2.750m
Angaben Entfernung Luftlinie / Quelle: OpenStreetMap
In absoluter Ruhelage am Waldrand, kurz vor dem Ende einer kaum befahrenen Sackgasse, gelangt dieses komplett kernsanierte Einfamilienhaus zum Verkauf - ein echtes Juwel für Naturliebhaber, Ruhesuchende und anspruchsvolle Familien, die das Besondere suchen.
Das Haus mit ursprünglichem Baujahr aus 1977 ist ein echtes Unikat und besticht vor allem mit seiner durchdachten Planung, einer Fusion aus modernem energieeffizientem Leben und flexibel nutzbaren Wohnflächen.
Die rundum erneuerte Immobilie wird schlüsselfertig mit Bädern übergeben und präsentiert sich in hochwertigster Ausführung.
Carport ist bereits bewilligt.
LAGE - NATURIDYLL MIT WEITBLICK:
*
Absolute Ruhelage, kaum Verkehr, sehr privat, am Ende einer Sackgasse
*
Direkt an der Natur - Umgeben vom Wald, am Rande des Wiener Walds
*
eingebettet in einen Südhang, die Ausrichtung bietet ganzjährig Sonne
*
Top-Anbindung an die Stadt durch nahe gelegene Bushaltestellen und Infrastruktur
AUSSTATTUNG - ERSTBEZUG NACH SANIERUNG MIT MODERNSTEM WOHNKOMFORT:
Das ca. 1977 errichtete Haus wurde grundlegend erneuert - technisch wie optisch - und erfüllt alle Anforderungen an modernes, nachhaltiges Wohnen:
*
Thermische Sanierung auf Niedrigenergiestandard
*
Neue Luft-Wärmepumpe mit Fußbodenheizung
*
Hochwertige 3-fach verglaste Alu-Holz-Fenster, mit Fliegengittern & Außenjalousien
*
18 cm Steinwolle-Dämmung an der Fassade
*
Dachboden wurde von innen neu isoliert
*
Neue Sanitäranlagen, Elektrik und Türen
*
Installationen für eine offene Wohnküche
*
Hochwertige spanische Designer Fliesen, absolutes Unikat und Blickfang! Schafft optisch die perfekte Verbindung zwischen idyllischer Umgebung inmitten der Natur und einem modernen Zuhause!
*
Parken direkt vor dem Haus, Bewilligung für ein Carport ist bereits vorhanden!
*
großzügiger Einlagerungsraum, Extra Keller, bietet ausreichend Stauraum außerhalb der Wohnfläche
*
Lifteinbau ist möglich
WOHNEN AUF DREI EBENEN - HELL, FUNKTIONAL & GEMÜTLICH:
Die Wohnfläche von rund 186 m² ist durch die Hanglage optimal verteilt:
Erdgeschoss (Eingangsebene):
*
Repräsentativer Eingangsbereich, dem großzügig gestalteten Wohnzimmer angrenzend mit Zugang zum Balkon und traumhaftem Grünblick
*
offene Wohnküche, Wohnzimmer mit romantischem Kamin, 12 m² Balkon mit grandiosem Ausblick, Windfang mit Garderobennische, Gäste-WC
Mittelgeschoss:
*
Zwei ruhige ca. 16 m2 große Schlafzimmer, mit bodentiefen Fenstern und französischem Balkon sorgen für besonders viel Licht
*
Kleines Büro / Arbeitszimmer
*
Badezimmer mit Tageslicht Fenster und Gartenblick, Badewanne, Regendusche
*
WC separat
*
Wäschezimmer
Gartengeschoss mit traumhafter Terrasse und direktem Gartenzugang:
Dieses Stockwerk wurde als eigene Einheit geplant, wie eine kleine Suite im Haus mit eigener ca. 24 m2 Terrasse und Gartenzugang!!
*
Vorraum
*
Heizraum
*
Badezimmer mit Schrankraum en Suite, WC separat
*
Das Badezimmer ist beidseitig von Flur und Master Bedroom aus begehbar
*
Ein Extra "Wohnsalon" mit Terrasse und Gartenzugang und traumhaftem idyllischem Blick, dieser Raum ist flexibel nutzbar, auch als Sommerküche, und könnte noch mit einem romantischen offenen Kamin ausgestattet werden.
*
Abstell- und Lagerraum, Archiv mit Echtholzboden und nachträglich eingesetztem Tageslichtfenster!
GRUNDSTÜCK & GARTEN:
*
Grundstücksgröße: ca. 517 m²
*
Davon ca. 382 m² Garten in Hanglage mit direktem Zugang vom Haus
*
Grüner Rückzugsort - mit viel Potenzial, terrassenartiger Hanggarten mit Südausrichtung, bietet unzählige träumerische Wohlfühlplätzchen
*
Eine kleine versteckte Laube lädt zum Verweilen ein im Garten, bis in den Herbst/ Frühling hinein
*
Der Garten umringt das Haus, mit vielen besonderen Plätzchen, die nur darauf warten entdeckt zu werden!
INFRASTRUKTUR & UMGEBUNG:
*
Bushaltestelle "Campingplatz Wien West 2" in ca. 8 Gehminuten erreichbar (Linien 43B, 52A, 52B)
*
Nähe zu Restaurants, Cafés und Nahversorgern
*
Wanderwege, Radstrecken und Natur pur - direkt vor der Haustüre
FAZIT:
Ein einzigartiges Wohnjuwel, das höchsten Wohnkomfort mit unvergleichlicher Naturlage verbindet.
Erstbezug nach hochwertigster Sanierung - alles ist bereit für den neuen Eigentümer.
Hier wohnen Sie ruhig, sonnig und naturverbunden, ohne auf Infrastruktur zu verzichten.
Jetzt besichtigen - und verlieben.
Wir weisen darauf hin, dass zwischen dem Vermittler und dem zu vermittelnden Dritten ein familiäres oder wirtschaftliches Naheverhältnis besteht.
Der Vermittler ist als Doppelmakler tätig.
DECUS Immobilien GmbH - Wir beleben Räume
Für weitere Informationen und Besichtigungen steht Ihnen gerne Herr Ing. Nicolas Putzlager unter der Mobilnummer +43 660 302 61 70 und per E-Mail unter putzlager@decus.at persönlich zur Verfügung.
www.decus.at | office@decus.at
Wichtige Informationen
Bitte beachten Sie, dass per 13.06.2014 eine neue Richtlinie für Fernabsatz- und Auswärtsgeschäfte in Kraft getreten ist.
Ab 1.4.2024 entfallen die Grundbuchs- und Pfandrechtseintragungsgebühren vorübergehend für Eigenheime bis zu einer Bemessungsgrundlage von EUR 500.000,-. Voraussetzung ist das dringende Wohnbedürfnis, ausgenommen davon sind vererbte oder geschenkte Immobilien. Die Befreiung ist jedoch für den Einzelfall zu prüfen, DECUS Immobilien übernimmt hierzu keine Haftung.
Ab 01.07.2023 gilt das Erstauftraggeber-Prinzip bei Wohnungsmietverträgen, ausgenommen davon sind Dienst-/Natural-/Werkswohnungen. Wir dürfen gem. § 17 Maklergesetz darauf hinweisen, dass wir auf die Doppelmaklertätigkeit gem. § 5 Maklergesetz bei Wohnungsmietverträgen verzichten und nur noch einseitig tätig sind (bei den restlichen Vermittlungsarten nicht) und ein wirtschaftliches Naheverhältnis zu unseren Auftraggebern besteht.
Im Falle eines Abschlusses mit Ihnen oder einem von Ihnen namhaft gemachten Dritten bzw. bei beidseitiger Willensübereinstimmung beträgt unser Honorar (lt. Honorarverordnung für Immobilienmakler) 2 Bruttomonatsmieten (BMM) bei Dienst-/Natural-/Werkwohnungen sowie Suchaufträgen, 3 BMM bei Gewerbe-, PKW-, Keller- und Lagermietverträgen sowie bei Kaufobjekten 3 % des Kaufpreises, zuzüglich der gesetzlichen Umsatzsteuer.
Dieses Objekt wird Ihnen unverbindlich und freibleibend angeboten. Oben angeführte Angaben basieren auf Informationen und Unterlagen des Eigentümers und sind unsererseits ohne Gewähr.
Nähere Informationen sowie unsere AGBs und die Nebenkostenübersichtsblatt finden Sie auf unserer Homepage www.decus.at unter "Service" - "Rechtliches zum FAGG" sowie im Anhang der zugesendeten Objekt-Exposés!
Infrastruktur / Entfernungen
Gesundheit
Arzt <1.750m
Apotheke <1.500m
Klinik <2.500m
Krankenhaus <1.750m
Kinder & Schulen
Schule <1.250m
Kindergarten <500m
Universität <1.000m
Höhere Schule <5.000m
Nahversorgung
Supermarkt <500m
Bäckerei <1.750m
Einkaufszentrum <2.750m
Sonstige
Geldautomat <1.500m
Bank <1.500m
Post <3.000m
Polizei <1.750m
Verkehr
Bus <250m
U-Bahn <2.000m
Straßenbahn <1.500m
Bahnhof <1.750m
Autobahnanschluss <2.750m
Angaben Entfernung Luftlinie / Quelle: OpenStreetMap
Merkmale
- Bezug: ab sofort
- 517 m² Grundstück
- offene Küche
- Außen-Stellplatz
- Bidet, Gäste-WC
- Balkon
Grundrisse
Grundrisse
1 / 7
Realisiere Dein Projekt
Bausubstanz und Energie
Heizwärmebedarf (HWB)
B
Gesamtenergieeffizienz (fGEE)
A++
- Baujahr1977
- Zustand der ImmobilieNeubau, Massivhaus, renoviert / saniert
- HaustypNiedrigenergiehaus
- HeizungsartFußbodenheizung
- EnergieträgerHolz, Luft-/Wasser-Wärmepumpe
Preisdetails
Kaufpreis
1189000 €1.189.000 €
6.369,87 €/m²
Provision für Käufer
3% des Kaufpreises zzgl. 20% USt.
Weitere Preisinformationen
1 Stellplatz
Lage

Wien (1140)
Der Anbieter hat die genaue Adresse nicht freigegeben
Siedlung "Am Kordon", Hüttelbergstraße
Weitere Informationen
Stichworte
Stellplatz vorhanden, Ost-Süd-Süd-Ost-Süd-West-Balkon/Terrasse, Gesamtfläche: 218,76 m², Anzahl der Badezimmer: 2, Anzahl der separaten WCs: 3, Anzahl Balkone: 1, Anzahl Terrassen: 1, Balkon-Terrassen-Fläche: 36,62 m², Gartenfläche: 382,00 m², Bundesland: Wien, 3 Etagen, modernisiert: 2025
Weitere Services
Lust auf eine Besichtigung?
Eine Frage zur Immobilie?
Über den Anbieter
Decus Immobilien GmbHMaklerbüro
Kärtner Straße 39/Annagasse 1, 1010 WIEN
Partnerschaft
Herr Nicolas PutzlagerDein Kontakt
Online-ID: 25HLCDJJYZVF
Referenznummer: OBGC20260113153549220990ec82ef8
Wie zufrieden bist du mit dieser Seite (nicht mit der Immobilie selbst)?


