Version: 8.22.4Navigation überspringen
3.750.000 €
12 Zimmer  •  391,3 m²  •  1.302 m² Grundstück
Immowelt logo

Villa zum Kauf - Erstbezug
3750000 €
9.584 €/m²
12 Zimmer  •  391,3 m²  •  1.302 m² Grundstück

Exklusive Villa zwischen Wien und den Weingärten

EIN HAUS FÜR MENSCHEN, DIE KLARHEIT SCHÄTZEN.

WEINGÄRTEN, WEINSTRASSE UND ABSOLUTE RUHE - EINE LAGE, DIE MAN NICHT ERKLÄREN MUSS.

-------------------------

ERLEBEN SIE DIE VILLA IN BEWEGUNG - VIDEO [https://www.youtube.com/watch?v=aB2DmONomUU]
EIN EXKLUSIVES OBJEKTVIDEO VERMITTELT IHNEN EIN ERSTES RAUMGEFÜHL UND ZEIGT DIE ATMOSPHÄRE DIESER BESONDEREN IMMOBILIE IM HERZEN WIENS.

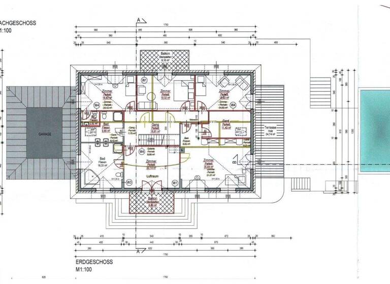
Klarheit auf einen Blick - der Grundrissplan [https://storage.justimmo.at/file/3zEn2pFC5Sl4HKrPfuwfpY.jpg]
Der übersichtliche Grundriss gibt Ihnen einen strukturierten Eindruck der Raumaufteilung und des großzügigen Zuschnitts dieser stilvollen Altbauwohnung.

Erste Eindrücke, die bleiben [https://storage.justimmo.at/file/2bStmm6qRoipbFxZ86kqiu.jpg]
Hochwertige Fotografien fangen die Lichtstimmung, die architektonischen Feinheiten und die besondere Wohnqualität dieser Altbauperle eindrucksvoll ein.

-------------------------

Diese Villa in Hagenbrunn verbindet großzügiges, lichtdurchflutetes Wohnen mit der Ruhe und Qualität des Weinviertels - eingebettet in eine der begehrtesten Lagen entlang der Weinstraße.

Bereits beim Betreten des Hauses zeigt sich der Anspruch: ein repräsentatives Entrée mit Marmorboden und Säulen, klare Raumachsen und ein außergewöhnliches Maß an Helligkeit. Große Fensterflächen sorgen ganztägig für Sonne und eröffnen weite Blicke ins Grüne.

Der zentrale Wohn- und Essbereich öffnet sich fließend zur hochwertig ausgestatteten Küche. Maßgefertigte Einbauten, Natursteinoberflächen und moderne Technik treffen hier auf klassische Proportionen. Ein offener Kamin ergänzt das Ambiente auf zurückhaltende Weise.

Im gesamten Haus sorgen Fußbodenheizung, Holz-Alu-Fenster und hochwertige Materialien wie Nussholzböden und Steinbeläge für nachhaltigen Wohnkomfort. Die privaten Rückzugsbereiche im Obergeschoss sind ruhig, hell und mit Terrassenflächen ausgestattet.

Der Garten ist eben, sonnig und großzügig angelegt. Mittelpunkt ist der elegant integrierte Swimmingpool, ergänzt durch weitläufige Terrassen im Erdgeschoss - ein privater Rückzugsort mit ganztägiger Sonne.

Garage, Sicherheitstechnik und moderne Haustechnik sind vorhanden - unaufgeregt integriert, funktional gedacht.

EIN ZUHAUSE FÜR MENSCHEN, DIE BEWUSST WOHNEN - NICHT REPRÄSENTIEREN WOLLEN.

-------------------------

ÜBERGABE AB KAUFVERTRAG

Schauen Sie sich das Objektvideo zu dieser Immobilie an: Zum Objektvideo [https://www.youtube.com/watch?v=aB2DmONomUU]

-------------------------

LEINER KUNDEN HABEN'S BESSER! EIN GRATIS ÜBERSIEDLUNGSAUTO STEHT FÜR IHREN UMZUG BEREIT.

-------------------------

KONTAKTIEREN SIE UNS |  PAUL HANIFL - 0664 125 11 11 [tel:+436641251111]

Immobilientreuhänder | Immobilienmakler, Immobilienverwalter & Bauträger

Alleinbeauftragte Immobilienkanzlei

Unser Erfolgshonorar beträgt 3% zuzüglich 20% Umsatzsteuer

Ihre Anfrage ist uns wichtig und wertvoll!

In Entsprechung des FAGG (Fern- und Auswärtsgeschäfte-Gesetz) und des VRUG (Verbraucherrechte-Richtlinie-Umsetzungsgesetz) ist es uns nur möglich, Termine nach Erhalt einer schriftlichen Anfrage mit vollständigen Kontaktangaben (Name, Adresse, Telefon, Email) zu vereinbaren. Dies gilt auch für die Weitergabe relevanter Informationen des Objektes. Wir danken für Ihr Verständnis und freuen uns, Sie bald als Kunde begrüßen zu dürfen.

Infrastruktur / Entfernungen

Gesundheit
Arzt <1.000m
Apotheke <3.000m
Klinik <7.500m
Krankenhaus <5.000m

Kinder & Schulen
Schule <1.000m
Kindergarten <2.000m
Universität <4.500m
Höhere Schule <8.500m

Nahversorgung
Supermarkt <3.000m
Bäckerei <3.000m
Einkaufszentrum <4.500m

Sonstige
Bank <1.000m
Geldautomat <1.000m
Post <3.000m
Polizei <1.000m

Verkehr
Bus <500m
Straßenbahn <4.500m
U-Bahn <7.500m
Bahnhof <4.500m
Autobahnanschluss <3.500m

Angaben Entfernung Luftlinie / Quelle: OpenStreetMap

Merkmale

  • 1.302 m² Grundstück
  • Einbauküche
  • Garage
  • Gäste-WC
  • Balkon
  • Terrasse
  • Badezimmer: Badewanne, Bad mit Dusche, Bad mit Fenster
  • Bodenbelag: Marmor, Parkett

Grundrisse

Grundrisse
1 / 5

Realisiere Dein Projekt

Bausubstanz und Energie

Der Anbieter hat keine Informationen zum Energieverbrauch bereit gestellt.
  • Baujahr2017
  • Zustand der ImmobilieNeubau, Massivhaus, Erstbezug
  • HeizungsartFußbodenheizung
  • EnergieträgerGas
Immowelt logo

Preisdetails

Kaufpreis
3750000 €
9.584,42 €/m²
Provision für Käufer
Bitte beachte, das Angebot kann bei Vertragsabschluss die Zahlung einer Provision beinhalten. Weitere Informationen erhältst Du vom Anbieter.
Weitere Preisinformationen
1 Garagenstellplatz

Lage

address-icon
Hagenbrunn (2102)

Weitere Informationen

Stichworte Stellplatz vorhanden, Garage vorhanden, Süd-West-Balkon/Terrasse, Nutzfläche: 125,07 m², Anzahl der Badezimmer: 3, Anzahl der separaten WCs: 4, Anzahl Balkone: 1, Anzahl Terrassen: 1, Balkon-Terrassen-Fläche: 136,15 m², Gartenfläche: 740,30 m², Kellerfläche: 125,07 m², Bundesland: Niederösterreich, 3 Etagen

Weitere Services

Lust auf eine Besichtigung?
Eine Frage zur Immobilie?
Nachricht hinzufügen
Mit der Nutzung der oben angegebenen Telefonnummer oder durch Klicken auf „Kontaktieren“ akzeptierst Du die Allgemeinen Nutzungsbedingungen, denen Du jederzeit widersprechen kannst. Weitere Informationen zum Datenschutz

Über den Anbieter

Himberger Straße 1, 2320 SCHWECHAT
partner badge
Partnerschaft
Herr Paul Hanifl
Herr Paul HaniflDein Kontakt
Online-ID: 2nw6a59
Referenznummer: OBGC20251107093641067eff03449cd
Schwechater Wohnbau GmbH
title
Schwechater Wohnbau GmbH
Nachricht hinzufügen
Mit der Nutzung der oben angegebenen Telefonnummer oder durch Klicken auf „Kontaktieren“ akzeptierst Du die Allgemeinen Nutzungsbedingungen, denen Du jederzeit widersprechen kannst. Weitere Informationen zum Datenschutz
Wie zufrieden bist du mit dieser Seite (nicht mit der Immobilie selbst)?