


1 / 8



1 / 8
Doppelhaushälfte zum Kauf - Erstbezug • provisionsfrei450000 €450.000 €3.756 €/m²4 Zimmer • 119,8 m²
450000 €450.000 €
3.756 €/m²
4 Zimmer • 119,8 m²
Neu errichtete DH-Hälfte mit Garten freut sich auf Sie als Bewohner: innen
"Langenzersdorf, eine Stadt die für ihre idyllische Lage und ihre Nähe zu Wien bekannt ist"
Hier präsentieren wir Ihnen ein neues Wohnprojekt das perfekt für Familien und Paare geeignet ist, die auf der Suche nach modernem und komfortablem Wohnraum sind. In Grünruhelage von Langenzersdorf wird auf einem Baurechtsgrund vom Chorherrenstift Klosterneuburg ein Wohnprojekt mit idealer Raumplanung errichtet.
Beschreibung des Wohnprojekts
Die Häuser werden von einem österreichischen Traditions-Bauunternehmen-VARIO-Haus, welches seit über 40 Jahren im speziellen im Bereich Holz-Bauweise erfolgreich am Markt tätig ist, errichtet. Auch diese Wohnhausanlage wird in hochwertiger und nachhaltiger Holzbauweise gebaut. Die förderbare Niedrigenergiebauweise ist der Klassiker in Österreich. Robuste Wände aus nachwachsendem Rohstoff. Holz bietet nicht nur Wärme und Nachhaltigkeit, sondern auch eine Vielfalt von Gestaltungsmöglichkeiten. Das Material verfügt über eine gute Speicherfähigkeit für Wärme und stellt damit eine ausgezeichnete Grundlage für energieeffizientes Wohnen dar.
Eine Holzrahmenbauweise hat einen hohen Vorfertigungsgrad im österreichischen Werk mit Sitz in Wiener Neustadt. Dank seiner akustischen, brandschutztechnischen, seismischen und thermischen Eigenschaften stellt Holz die ideale und nachhaltigste Alternative zu Beton und Stahl dar. Inkludiert werden auch modernste Technik, umfassender Service und absolute Zuverlässigkeit bei der Durchführung Ihrer Traum-Immobilie.
Wir stehen Ihnen von der ersten Anfrage bis zur Übergabe Ihres Hauses zur Seite!
Vereinbaren Sie einen unverbindlichen Beratungstermin und lassen Sie sich von diesen Häusern begeistern. Ich freue mich darauf, Sie kennenzulernen!
Fakten im Überblick
Die Wohnadresse ist perfekt für Menschen geeignet, die auf der Suche nach modernem, nachhaltigem und komfortablem Wohnraum sind.
* 4 Doppelhäuser- acht Wohneinheiten
* jedes Haus weist 4- 5 Zimmer auf
* Raumhöhen: im EG 2,70m / im OG 2,50 m
* Belagsfertige Ausführung
* Baubeginn Q1-Q2 2026
* Fertigstellung/Übergabe Q1-Q2 2027
* auf einem Baurechtsgrund errichtet
* geringer Baurechtszins p/m² Wohn-Nutzfläche
* 16 PKW-Stellplätze im Freien (2 p/Wohneinheit)
Ausstattung & Besonderheiten
* Holzrahmenbauweise
* ökonomischer Energieverbrauch durch sehr gute bauphysikalische Eigenschaften
* Fassade-Wärmedämmverbundsystem
* optimale Grundrissgestaltung und Nutzbarkeit
* Luft-Wärmepumpe von Vaillant Aro-Therm inkl. 180 Liter Warmwasserspeicher
* Fußbodenheizung
* hocheffiziente Kunststoff-ALU-Fenster mit 3-Scheiben-Isolierverglasung
* außenliegende und elektrisch betriebene Rollläden im EG & OG
* Massivholz-Eingangstüre mit Mehrfachverriegelung
* inkl. Eingangsvordach
* Großzügige Terrassen-Hebe-Schiebetüre
Beschreibung der belagsfertigen Immobilie mit sonnigem Garten
Haus 2
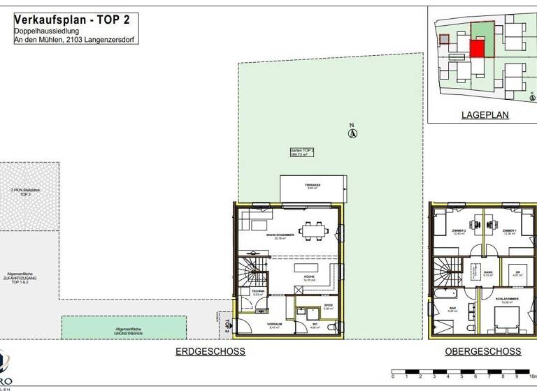
Die zweigeschossige Doppelhaus-Hälfte mit einer Wohn-Nutzfläche von ca. 119,80 m² bietet Ihnen nicht nur ausreichend Platz, sondern auch einen sonnigen ca. 189,73 m² großen Garten, der für Erholung und schöne Stunden mit Familie und Freunden sorgt. Hier erwartet SIE ein perfektes wie auch nachhaltiges Wohnambiente.
Sie betreten das Haus durch den geräumigen Vorraum und gelangen direkt zu ihrem Gäste-Bad. Linkerhand befindet sich der Technik- und Abstellraum. Vom Flur gelangen Sie weiters in die geräumige, offene Küche, mit einer separaten "Speis" und einem Essbereich ausgestattet. Vom Wohnbereich kommen Sie direkt auf die sonnige Terrasse und in den großen Garten. Die Ausrichtung verspricht viele sonnige Stunden und der Grün- und Außenbereich bietet viel Platz für gemütliche Grillabende mit Freunden und Familie. Zum "Garteln" oder auch zum Spielen mit den Kindern.
Erdgeschoss:
* Vorraum ca. 8,47 m²
* offene Küche mit Essbereich ca. 14,35 m²
* Speis ca. 3,55 m²
* Wohn-Essbereich ca. 25,18 m²
* Terrasse ca. 9,20 m²
* Garten ca. 189,73 m²
* Gäste Bad ca. 4,66 m² (Dusche+ Toilette)
* Technik-Abstellraum ca. 5,53 m²
Obergeschoss:
Auf dieser Etage befinden sich drei geräumige Zimmer, die mit großen Fensterflächen für viel Licht und eine angenehme Atmosphäre sorgen. Das Tageslicht Badezimmer ist mit Anschlüssen für eine Badewanne, Dusche, Doppel-Waschtisch und einer Toilette ausgestattet, so dass Sie hier jeden Tag aufs Neue ein entspannendes Wellness-Erlebnis genießen können. Weiters finden Sie im Master-bedroom einen geräumigen Schrankraum vor. Auch die weiteren zwei Schlafräume weisen die ideale Größe auf.
* Gang ca. 5,72 m²
* 1. Zimmer ca. 12,50 m²
* 2. Zimmer ca. 12,43 m²
* 3. Zimmer/Master-bedroom ca. 13,08 m² mit begehbarem Schrankraum ca. 4,91 m²
* großes Tageslicht Bad ca. 9,43 m²
Zwei inkludierte KFZ-Stellplätze mit ca. 25 m² runden dieses Angebot perfekt ab!
Belagsfertige- oder auch Schlüsselfertige Ausführung gegen gesonderte Zahlung gerne möglich- ganz nach Ihren Bedürfnissen und Wünschen! Wir informieren Sie umfassend.
Förderung Leistbar & förderungswürdig - ideal für junge Familien!
Das Wohnprojekt "Sunside-living" ist nicht nur ein grünes, familienfreundliches Wohnprojekt mit bester Infrastruktur - es ist auch leistbar und förderungswürdig für zukünftige Eigenheimbesitzer: innen. Das Land Niederösterreich unterstützt Bau- und Kaufvorhaben mit attraktiven Wohnbauförderungen, die gerade für junge Familien und Ersterwerber enorme Vorteile bringen: günstige Landesdarlehen, Bonuspunkte für familiengerechte und energieeffiziente Bauweise sowie die Möglichkeit, Fördermittel für Eigenheime und Reihenhäuser zu beantragen.
?? Mehr Informationen zur Wohnbauförderung in Niederösterreich finden Sie auf der offiziellen Seite des Landes: Wohnbauförderung Niederösterreich - Neubau & Eigenheimförderung (offizielle Seite).
Dort bekommen Sie die Details zu Fördervoraussetzungen, Antragsunterlagen, Einkommensgrenzen und Möglichkeiten für Jungfamilien - ein wertvoller Vorteil, um den Traum vom eigenen Doppelhaus zu verwirklichen.
Infrastruktur-, Freizeit-, Anbindung- und Schulen
Öffentliche Anbindung
* S-Bahn (S3/S4) ab dem Bahnhof Langenzersdorf sowie der Haltestelle Bisamberg mit direkter Verbindung in die Wiener Innenstadt über die Stammstrecke.
* Buslinie 850 verbindet Langenzersdorf regelmäßig mit Wien-Floridsdorf (U6, Schnellbahn) sowie mit Korneuburg.
Damit ist eine hervorragende öffentliche Anbindung sowohl Richtung Wien als auch in die umliegenden Bezirkszentren gegeben.
Freizeit & Erholung
* Erholungsgebiet Seeschlacht: großzügiger Naturbadeteich mit Badeanlagen, Spielplätzen, Pumptrack und Gastronomie.
* Bisamberg: beliebtes Naherholungsgebiet mit Wanderwegen, Aussichtspunkten und Spielplätzen.
* Radwege: direkter Anschluss an die Donauinsel sowie an die Marchfeldkanal-Radroute.
* Kultur: Das Langenzersdorf Museum widmet sich u. a. den Bildhauern Anton Hanak und Siegfried Charoux sowie der Keramikkunst.
* Sport: Golfanlage Tuttendörfl (9-Loch-Anlage) und die Indoor-Karthalle "Daytona Raceways".
Gastronomie
* Terrassenheuriger Trimmel mit großem Gastgarten am Bisamberg, familienfreundlich und klassisch niederösterreichisch.
* Restaurant Rhodos in der Ortsmitte mit griechischer Küche und Terrasse.
* Wolke7 Seeschlacht, ein modernes Beach- und Indoor-Restaurant direkt am Badeteich.
* Zahlreiche Heurige und Weingüter im Ort, beispielsweise der Heuriger Laimer, sorgen für authentische Weinviertler Gastronomie.
Einkaufsmöglichkeiten
* SPAR an der Wiener Straße
* HOFER an der Wiener Straße
* BILLA am Hauptplatz
* Marien-Apotheke am Hauptplatz
* Für größere Einkäufe befinden sich das Shopping-Center Nord (SCN) in Wien-Floridsdorf und das G3 Shopping Resort Gerasdorf nur wenige Autominuten entfernt.
Schulen & Kinderbetreuung
* Volksschule Langenzersdorf (Steyrergasse)
* Neue Mittelschule Langenzersdorf (Klosterneuburger Straße)
* Landeskindergarten I (An der Bahn)
* Landeskindergarten II (Alleestraße)
* Kleinstkinderbetreuung "KIGA mini" (Alleestraße)
* Montessori Kinderhaus (Wiener Straße)
* Musikschule der Marktgemeinde Langenzersdorf (Schulstraße)
Was bedeutet das Baurecht überhaupt?
Das Baurecht ist in Österreich ein rechtlich klar geregeltes Modell, das es ermöglicht, auf einem fremden Grundstück zu bauen und zu wohnen - fast wie im klassischen Eigentum. Das Grundstück bleibt im Besitz des Stifts Klosterneuburg und Sie sind Eigentümer Ihrer Immobilie und das mit allen Rechten:
* Sie können das Objekt verkaufen
* vermieten
* vererben
* oder Ihre Immobilie belasten (z.B. zur Finanzierung).
Das Baurecht ist im Grundbuch eingetragen - Ihre Rechte sind voll umfänglich gesichert, genau wie bei klassischem Eigentum. Der geringe monatliche Baurechtszins ist halbjährlich an das Chorherrenstift Klosterneuburg zu bezahlen.
Gute Gründe für das Baurecht
* Wegfall des Grundstückerwerbs und somit deutlich geringere Anschaffungskosten. Dies führt zu einer Reduktion des Eigenkapitalanteils, sowie etwaiger Finanzierungskosten
* Das Stift Klosterneuburg als institutioneller Vertragspartner bietet Sicherheit und Kontinuität!
* Ihre Rechte sind auch bei Vererbung gesichert
Weiterführende Informationen und Nebenkosten
Anschlusskosten der Behörden: (Wasser, Kanal, Strom), die zählerabhängige Anmeldegebühr, sowie die Anmeldegebühren von Telefon und Kabelsignal sind durch den neuen Eigentümer zu tragen. Die Kosten für diverse Anschlüsse seitens der Behörden (Wasser, Kanal, Strom) belaufen sich auf € 7.980. Diese sind separat zu entrichten.
Vertragserrichterin
Frau Mag. Marlene Krüger
Streichergasse 10/6, 1030 Wien
Kosten:
1,5% zzgl. 20% MwSt. beinhaltet Kaufvertrag, Geldwäscheprüfung, Treuhandschaft. Pfandrechtliche Sicherstellungen für die finanzierende Bank werden gesondert verrechnet, sofern diese notwendig sind.
Wir weisen ausdrücklich auf unser wirtschaftliches Naheverhältnis mit dem Abgeber/der Abgeberin hin! Irrtum und Änderungen vorbehalten. Die angeführten Bilder sind zurzeit noch Visualisierungen. Abänderungen zur tatsächlichen Ausführung können resultieren. Die in den Plänen dargestellten Küchen sowie Mobiliar, stellen einen Möblierungsvorschlag des gesamten Architekten- sowie Planungsteams dar und sind nicht Gegenstand der Ausführung bzw. des Kaufvertrages. Die auf den Bildern ersichtlichen Einrichtungsgegenstände und Accessoires werden nicht mit verkauft. Eventuelle Änderungen der vorliegenden Baubeschreibung und Planung, die sich auf Grund von behördlichen Auflagen, Höherer Gewalt, Lieferengpässe, Kundenwünschen oder sonst notwendigen technischen Gründen ergeben, bleiben vorbehalten. Die ursprünglich ausgeschriebene Qualitätsnorm wird jedoch gewährleistet. Alle Angaben ohne Gewährleistungsanspruch! Die Angaben innerhalb des Exposees erfolgen im Auftrag unseres Auftraggebers/Bauträgers. Für die Richtigkeit und Vollständigkeit der uns zur Verfügung gestellten Unterlagen/Auskünfte durch Veräußerer, Behörden usw. übernehmen wir keine Gewähr. Eigene Haftung ist ausgeschlossen. Anfragen können nur mit vollständiger Angabe Ihrer Kontaktdaten (Name, Adresse, E-Mail, Mobilnummer) bearbeitet werden, da wir gegenüber dem Eigentümer: in nachweispflichtig sind. Ihre Anfrage wird binnen 24 Stunden bearbeitet!
Hinweis gemäß Energieausweisvorlagegesetz: Ein Energieausweis wurde vom Eigentümer bzw. Verkäufer, nach unserer Aufklärung über die generell geltende Vorlagepflicht, sowie Aufforderung zu seiner Erstellung noch nicht vorgelegt. Daher gilt zumindest eine dem Alter und der Art des Gebäudes entsprechende Gesamtenergieeffizienz als vereinbart. Wir übernehmen keinerlei Gewähr oder Haftung für die tatsächliche Energieeffizienz der angebotenen Immobilie.
Wir weisen darauf hin, dass zwischen dem Vermittler und dem zu vermittelnden Dritten ein familiäres oder wirtschaftliches Naheverhältnis besteht.
Der Vermittler ist als Doppelmakler tätig.
Infrastruktur / Entfernungen
Gesundheit
Arzt <1.000m
Apotheke <1.000m
Klinik <5.500m
Krankenhaus <2.000m
Kinder & Schulen
Schule <1.000m
Kindergarten <1.000m
Universität <3.500m
Höhere Schule <6.500m
Nahversorgung
Supermarkt <1.000m
Bäckerei <1.000m
Einkaufszentrum <3.000m
Sonstige
Bank <1.000m
Geldautomat <1.000m
Post <1.000m
Polizei <1.500m
Verkehr
Bus <500m
Straßenbahn <4.000m
U-Bahn <7.500m
Bahnhof <1.000m
Autobahnanschluss <2.000m
Angaben Entfernung Luftlinie / Quelle: OpenStreetMap
Hier präsentieren wir Ihnen ein neues Wohnprojekt das perfekt für Familien und Paare geeignet ist, die auf der Suche nach modernem und komfortablem Wohnraum sind. In Grünruhelage von Langenzersdorf wird auf einem Baurechtsgrund vom Chorherrenstift Klosterneuburg ein Wohnprojekt mit idealer Raumplanung errichtet.
Beschreibung des Wohnprojekts
Die Häuser werden von einem österreichischen Traditions-Bauunternehmen-VARIO-Haus, welches seit über 40 Jahren im speziellen im Bereich Holz-Bauweise erfolgreich am Markt tätig ist, errichtet. Auch diese Wohnhausanlage wird in hochwertiger und nachhaltiger Holzbauweise gebaut. Die förderbare Niedrigenergiebauweise ist der Klassiker in Österreich. Robuste Wände aus nachwachsendem Rohstoff. Holz bietet nicht nur Wärme und Nachhaltigkeit, sondern auch eine Vielfalt von Gestaltungsmöglichkeiten. Das Material verfügt über eine gute Speicherfähigkeit für Wärme und stellt damit eine ausgezeichnete Grundlage für energieeffizientes Wohnen dar.
Eine Holzrahmenbauweise hat einen hohen Vorfertigungsgrad im österreichischen Werk mit Sitz in Wiener Neustadt. Dank seiner akustischen, brandschutztechnischen, seismischen und thermischen Eigenschaften stellt Holz die ideale und nachhaltigste Alternative zu Beton und Stahl dar. Inkludiert werden auch modernste Technik, umfassender Service und absolute Zuverlässigkeit bei der Durchführung Ihrer Traum-Immobilie.
Wir stehen Ihnen von der ersten Anfrage bis zur Übergabe Ihres Hauses zur Seite!
Vereinbaren Sie einen unverbindlichen Beratungstermin und lassen Sie sich von diesen Häusern begeistern. Ich freue mich darauf, Sie kennenzulernen!
Fakten im Überblick
Die Wohnadresse ist perfekt für Menschen geeignet, die auf der Suche nach modernem, nachhaltigem und komfortablem Wohnraum sind.
* 4 Doppelhäuser- acht Wohneinheiten
* jedes Haus weist 4- 5 Zimmer auf
* Raumhöhen: im EG 2,70m / im OG 2,50 m
* Belagsfertige Ausführung
* Baubeginn Q1-Q2 2026
* Fertigstellung/Übergabe Q1-Q2 2027
* auf einem Baurechtsgrund errichtet
* geringer Baurechtszins p/m² Wohn-Nutzfläche
* 16 PKW-Stellplätze im Freien (2 p/Wohneinheit)
Ausstattung & Besonderheiten
* Holzrahmenbauweise
* ökonomischer Energieverbrauch durch sehr gute bauphysikalische Eigenschaften
* Fassade-Wärmedämmverbundsystem
* optimale Grundrissgestaltung und Nutzbarkeit
* Luft-Wärmepumpe von Vaillant Aro-Therm inkl. 180 Liter Warmwasserspeicher
* Fußbodenheizung
* hocheffiziente Kunststoff-ALU-Fenster mit 3-Scheiben-Isolierverglasung
* außenliegende und elektrisch betriebene Rollläden im EG & OG
* Massivholz-Eingangstüre mit Mehrfachverriegelung
* inkl. Eingangsvordach
* Großzügige Terrassen-Hebe-Schiebetüre
Beschreibung der belagsfertigen Immobilie mit sonnigem Garten
Haus 2
Die zweigeschossige Doppelhaus-Hälfte mit einer Wohn-Nutzfläche von ca. 119,80 m² bietet Ihnen nicht nur ausreichend Platz, sondern auch einen sonnigen ca. 189,73 m² großen Garten, der für Erholung und schöne Stunden mit Familie und Freunden sorgt. Hier erwartet SIE ein perfektes wie auch nachhaltiges Wohnambiente.
Sie betreten das Haus durch den geräumigen Vorraum und gelangen direkt zu ihrem Gäste-Bad. Linkerhand befindet sich der Technik- und Abstellraum. Vom Flur gelangen Sie weiters in die geräumige, offene Küche, mit einer separaten "Speis" und einem Essbereich ausgestattet. Vom Wohnbereich kommen Sie direkt auf die sonnige Terrasse und in den großen Garten. Die Ausrichtung verspricht viele sonnige Stunden und der Grün- und Außenbereich bietet viel Platz für gemütliche Grillabende mit Freunden und Familie. Zum "Garteln" oder auch zum Spielen mit den Kindern.
Erdgeschoss:
* Vorraum ca. 8,47 m²
* offene Küche mit Essbereich ca. 14,35 m²
* Speis ca. 3,55 m²
* Wohn-Essbereich ca. 25,18 m²
* Terrasse ca. 9,20 m²
* Garten ca. 189,73 m²
* Gäste Bad ca. 4,66 m² (Dusche+ Toilette)
* Technik-Abstellraum ca. 5,53 m²
Obergeschoss:
Auf dieser Etage befinden sich drei geräumige Zimmer, die mit großen Fensterflächen für viel Licht und eine angenehme Atmosphäre sorgen. Das Tageslicht Badezimmer ist mit Anschlüssen für eine Badewanne, Dusche, Doppel-Waschtisch und einer Toilette ausgestattet, so dass Sie hier jeden Tag aufs Neue ein entspannendes Wellness-Erlebnis genießen können. Weiters finden Sie im Master-bedroom einen geräumigen Schrankraum vor. Auch die weiteren zwei Schlafräume weisen die ideale Größe auf.
* Gang ca. 5,72 m²
* 1. Zimmer ca. 12,50 m²
* 2. Zimmer ca. 12,43 m²
* 3. Zimmer/Master-bedroom ca. 13,08 m² mit begehbarem Schrankraum ca. 4,91 m²
* großes Tageslicht Bad ca. 9,43 m²
Zwei inkludierte KFZ-Stellplätze mit ca. 25 m² runden dieses Angebot perfekt ab!
Belagsfertige- oder auch Schlüsselfertige Ausführung gegen gesonderte Zahlung gerne möglich- ganz nach Ihren Bedürfnissen und Wünschen! Wir informieren Sie umfassend.
Förderung Leistbar & förderungswürdig - ideal für junge Familien!
Das Wohnprojekt "Sunside-living" ist nicht nur ein grünes, familienfreundliches Wohnprojekt mit bester Infrastruktur - es ist auch leistbar und förderungswürdig für zukünftige Eigenheimbesitzer: innen. Das Land Niederösterreich unterstützt Bau- und Kaufvorhaben mit attraktiven Wohnbauförderungen, die gerade für junge Familien und Ersterwerber enorme Vorteile bringen: günstige Landesdarlehen, Bonuspunkte für familiengerechte und energieeffiziente Bauweise sowie die Möglichkeit, Fördermittel für Eigenheime und Reihenhäuser zu beantragen.
?? Mehr Informationen zur Wohnbauförderung in Niederösterreich finden Sie auf der offiziellen Seite des Landes: Wohnbauförderung Niederösterreich - Neubau & Eigenheimförderung (offizielle Seite).
Dort bekommen Sie die Details zu Fördervoraussetzungen, Antragsunterlagen, Einkommensgrenzen und Möglichkeiten für Jungfamilien - ein wertvoller Vorteil, um den Traum vom eigenen Doppelhaus zu verwirklichen.
Infrastruktur-, Freizeit-, Anbindung- und Schulen
Öffentliche Anbindung
* S-Bahn (S3/S4) ab dem Bahnhof Langenzersdorf sowie der Haltestelle Bisamberg mit direkter Verbindung in die Wiener Innenstadt über die Stammstrecke.
* Buslinie 850 verbindet Langenzersdorf regelmäßig mit Wien-Floridsdorf (U6, Schnellbahn) sowie mit Korneuburg.
Damit ist eine hervorragende öffentliche Anbindung sowohl Richtung Wien als auch in die umliegenden Bezirkszentren gegeben.
Freizeit & Erholung
* Erholungsgebiet Seeschlacht: großzügiger Naturbadeteich mit Badeanlagen, Spielplätzen, Pumptrack und Gastronomie.
* Bisamberg: beliebtes Naherholungsgebiet mit Wanderwegen, Aussichtspunkten und Spielplätzen.
* Radwege: direkter Anschluss an die Donauinsel sowie an die Marchfeldkanal-Radroute.
* Kultur: Das Langenzersdorf Museum widmet sich u. a. den Bildhauern Anton Hanak und Siegfried Charoux sowie der Keramikkunst.
* Sport: Golfanlage Tuttendörfl (9-Loch-Anlage) und die Indoor-Karthalle "Daytona Raceways".
Gastronomie
* Terrassenheuriger Trimmel mit großem Gastgarten am Bisamberg, familienfreundlich und klassisch niederösterreichisch.
* Restaurant Rhodos in der Ortsmitte mit griechischer Küche und Terrasse.
* Wolke7 Seeschlacht, ein modernes Beach- und Indoor-Restaurant direkt am Badeteich.
* Zahlreiche Heurige und Weingüter im Ort, beispielsweise der Heuriger Laimer, sorgen für authentische Weinviertler Gastronomie.
Einkaufsmöglichkeiten
* SPAR an der Wiener Straße
* HOFER an der Wiener Straße
* BILLA am Hauptplatz
* Marien-Apotheke am Hauptplatz
* Für größere Einkäufe befinden sich das Shopping-Center Nord (SCN) in Wien-Floridsdorf und das G3 Shopping Resort Gerasdorf nur wenige Autominuten entfernt.
Schulen & Kinderbetreuung
* Volksschule Langenzersdorf (Steyrergasse)
* Neue Mittelschule Langenzersdorf (Klosterneuburger Straße)
* Landeskindergarten I (An der Bahn)
* Landeskindergarten II (Alleestraße)
* Kleinstkinderbetreuung "KIGA mini" (Alleestraße)
* Montessori Kinderhaus (Wiener Straße)
* Musikschule der Marktgemeinde Langenzersdorf (Schulstraße)
Was bedeutet das Baurecht überhaupt?
Das Baurecht ist in Österreich ein rechtlich klar geregeltes Modell, das es ermöglicht, auf einem fremden Grundstück zu bauen und zu wohnen - fast wie im klassischen Eigentum. Das Grundstück bleibt im Besitz des Stifts Klosterneuburg und Sie sind Eigentümer Ihrer Immobilie und das mit allen Rechten:
* Sie können das Objekt verkaufen
* vermieten
* vererben
* oder Ihre Immobilie belasten (z.B. zur Finanzierung).
Das Baurecht ist im Grundbuch eingetragen - Ihre Rechte sind voll umfänglich gesichert, genau wie bei klassischem Eigentum. Der geringe monatliche Baurechtszins ist halbjährlich an das Chorherrenstift Klosterneuburg zu bezahlen.
Gute Gründe für das Baurecht
* Wegfall des Grundstückerwerbs und somit deutlich geringere Anschaffungskosten. Dies führt zu einer Reduktion des Eigenkapitalanteils, sowie etwaiger Finanzierungskosten
* Das Stift Klosterneuburg als institutioneller Vertragspartner bietet Sicherheit und Kontinuität!
* Ihre Rechte sind auch bei Vererbung gesichert
Weiterführende Informationen und Nebenkosten
Anschlusskosten der Behörden: (Wasser, Kanal, Strom), die zählerabhängige Anmeldegebühr, sowie die Anmeldegebühren von Telefon und Kabelsignal sind durch den neuen Eigentümer zu tragen. Die Kosten für diverse Anschlüsse seitens der Behörden (Wasser, Kanal, Strom) belaufen sich auf € 7.980. Diese sind separat zu entrichten.
Vertragserrichterin
Frau Mag. Marlene Krüger
Streichergasse 10/6, 1030 Wien
Kosten:
1,5% zzgl. 20% MwSt. beinhaltet Kaufvertrag, Geldwäscheprüfung, Treuhandschaft. Pfandrechtliche Sicherstellungen für die finanzierende Bank werden gesondert verrechnet, sofern diese notwendig sind.
Wir weisen ausdrücklich auf unser wirtschaftliches Naheverhältnis mit dem Abgeber/der Abgeberin hin! Irrtum und Änderungen vorbehalten. Die angeführten Bilder sind zurzeit noch Visualisierungen. Abänderungen zur tatsächlichen Ausführung können resultieren. Die in den Plänen dargestellten Küchen sowie Mobiliar, stellen einen Möblierungsvorschlag des gesamten Architekten- sowie Planungsteams dar und sind nicht Gegenstand der Ausführung bzw. des Kaufvertrages. Die auf den Bildern ersichtlichen Einrichtungsgegenstände und Accessoires werden nicht mit verkauft. Eventuelle Änderungen der vorliegenden Baubeschreibung und Planung, die sich auf Grund von behördlichen Auflagen, Höherer Gewalt, Lieferengpässe, Kundenwünschen oder sonst notwendigen technischen Gründen ergeben, bleiben vorbehalten. Die ursprünglich ausgeschriebene Qualitätsnorm wird jedoch gewährleistet. Alle Angaben ohne Gewährleistungsanspruch! Die Angaben innerhalb des Exposees erfolgen im Auftrag unseres Auftraggebers/Bauträgers. Für die Richtigkeit und Vollständigkeit der uns zur Verfügung gestellten Unterlagen/Auskünfte durch Veräußerer, Behörden usw. übernehmen wir keine Gewähr. Eigene Haftung ist ausgeschlossen. Anfragen können nur mit vollständiger Angabe Ihrer Kontaktdaten (Name, Adresse, E-Mail, Mobilnummer) bearbeitet werden, da wir gegenüber dem Eigentümer: in nachweispflichtig sind. Ihre Anfrage wird binnen 24 Stunden bearbeitet!
Hinweis gemäß Energieausweisvorlagegesetz: Ein Energieausweis wurde vom Eigentümer bzw. Verkäufer, nach unserer Aufklärung über die generell geltende Vorlagepflicht, sowie Aufforderung zu seiner Erstellung noch nicht vorgelegt. Daher gilt zumindest eine dem Alter und der Art des Gebäudes entsprechende Gesamtenergieeffizienz als vereinbart. Wir übernehmen keinerlei Gewähr oder Haftung für die tatsächliche Energieeffizienz der angebotenen Immobilie.
Wir weisen darauf hin, dass zwischen dem Vermittler und dem zu vermittelnden Dritten ein familiäres oder wirtschaftliches Naheverhältnis besteht.
Der Vermittler ist als Doppelmakler tätig.
Infrastruktur / Entfernungen
Gesundheit
Arzt <1.000m
Apotheke <1.000m
Klinik <5.500m
Krankenhaus <2.000m
Kinder & Schulen
Schule <1.000m
Kindergarten <1.000m
Universität <3.500m
Höhere Schule <6.500m
Nahversorgung
Supermarkt <1.000m
Bäckerei <1.000m
Einkaufszentrum <3.000m
Sonstige
Bank <1.000m
Geldautomat <1.000m
Post <1.000m
Polizei <1.500m
Verkehr
Bus <500m
Straßenbahn <4.000m
U-Bahn <7.500m
Bahnhof <1.000m
Autobahnanschluss <2.000m
Angaben Entfernung Luftlinie / Quelle: OpenStreetMap
Merkmale
- offene Küche
- 2 Stellplätze: 2 Außen-Stellplätze
- Gäste-WC
- Terrasse
- Badezimmer: Badewanne, Bad mit Dusche, Bad mit Fenster
- Bodenbelag: Estrich
Grundrisse
Grundrisse
1 / 2
Realisiere Dein Projekt
Bausubstanz und Energie
Möchtest du Details zum Energieverbrauch?

- Baujahr2026
- Zustand der ImmobilieNeubau, Erstbezug
- HeizungsartFußbodenheizung
- EnergieträgerLuft-/Wasser-Wärmepumpe
Preisdetails
Kaufpreis
450000 €450.000 €
3.756,26 €/m²
Provision für Käufer
provisionsfrei; Provision bezahlt der Abgeber.
Weitere Preisinformationen
2 Stellplätze
Lage

Langenzersdorf (2103)
Am Fuße des Bisambergs gelegen, bietet die Gemeinde Langenzersdorf Erholungsraum und ein reichhaltiges Kultur-, wie auch Freizeitangebot in nächster Umgebung zu Wien. Langenzersdorf markiert den Beginn der südlichen Weinstraße im Weinviertel, die bis ins Marchfeld verläuft. Aufgrund der direkten und herrlichen Radweganbindung nach Wien bzw. auf die Donauinsel, sowie zum Marchfeldkanal-Radwanderweg kann Langenzersdorf von Wien aus wunderbar mit dem Fahrrad erreicht werden. Im Naturbad "Seeschlacht" finden Sie einen Fußball- und Street-Soccer-Platz vor. Ebenso eine Schwimminsel und verschiedene Gastronomische Angebote. Ein Beachvolleyballplatz und ein separater Eltern-Kind-Bereich mit eigenem Spielplatz versehen, rundet dieses Bad perfekt ab.
Die "Golf Range Tuttendörfl" bietet allen Golfbegeisterten eine ausgewogene Kombination von berühmten Par 3 und Par 4 Löchern. Sie können somit im Weinviertel wie auf den schönsten Golfplätzen der USA und England spielen. "Herz was willst DU mehr"
Aufgrund der Nähe zu Wien, der hervorragenden Infrastruktur und des hohen Freizeitwertes ist Langenzersdorf ein beliebter Ort im Einzugsgebiet der Hauptstadt. Ein kurzer Spaziergang führt Sie direkt in den Ortskern mit allen Geschäften des täglichen Bedarfs, wie auch zu beliebten Heurigenlokalen, Cafés und diversen Restaurants. Auch Ärzte und Apotheken, Kindergärten und Schulen befinden sich in der nahen Umgebung. Die Verkehrsanbindung ist ebenfalls sehr gut. Eine Bushaltestelle ist nur wenige Gehminuten entfernt und der Bahnhof Langenzersdorf sowohl mit dem Auto als auch mit dem Rad nur 5 Minuten entfernt. Von Langenzersdorf sind Sie mit dem REX3 in 20 min. am Wiener Praterstern. Somit sind Sie auch schnell und bequem in Wien.
Die "Golf Range Tuttendörfl" bietet allen Golfbegeisterten eine ausgewogene Kombination von berühmten Par 3 und Par 4 Löchern. Sie können somit im Weinviertel wie auf den schönsten Golfplätzen der USA und England spielen. "Herz was willst DU mehr"
Aufgrund der Nähe zu Wien, der hervorragenden Infrastruktur und des hohen Freizeitwertes ist Langenzersdorf ein beliebter Ort im Einzugsgebiet der Hauptstadt. Ein kurzer Spaziergang führt Sie direkt in den Ortskern mit allen Geschäften des täglichen Bedarfs, wie auch zu beliebten Heurigenlokalen, Cafés und diversen Restaurants. Auch Ärzte und Apotheken, Kindergärten und Schulen befinden sich in der nahen Umgebung. Die Verkehrsanbindung ist ebenfalls sehr gut. Eine Bushaltestelle ist nur wenige Gehminuten entfernt und der Bahnhof Langenzersdorf sowohl mit dem Auto als auch mit dem Rad nur 5 Minuten entfernt. Von Langenzersdorf sind Sie mit dem REX3 in 20 min. am Wiener Praterstern. Somit sind Sie auch schnell und bequem in Wien.
Weitere Informationen
Stichworte
Stellplatz vorhanden, Nord-West-Balkon/Terrasse, Rolladen, Anzahl der Badezimmer: 2, Anzahl der separaten WCs: 2, Anzahl Terrassen: 1, Balkon-Terrassen-Fläche: 9,20 m², Gartenfläche: 189,73 m², Bundesland: Niederösterreich, 2 Etagen
Sonstiges: Neubaustandard
Weitere Services
Lust auf eine Besichtigung?
Eine Frage zur Immobilie?
Über den Anbieter
Bero Immobilien GmbHMaklerbüro
Elisabethstraße 22/ Top 2, 1010 WIEN
Partnerschaft
Frau Beatrix FötschDein Kontakt
Online-ID: 25PBI16R8MQD
Referenznummer: OBGC2026021011503805277dc4ca6a2

Bero Immobilien GmbH
Wie zufrieden bist du mit dieser Seite (nicht mit der Immobilie selbst)?