Version: 8.25.1Navigation überspringen
560.000 €
10 Zimmer  •  194 m²  •  527 m² Grundstück
Immowelt logo

Einfamilienhaus zum Kauf
560000 €
2.887 €/m²
10 Zimmer  •  194 m²  •  527 m² Grundstück

Einfamilienhaus mit 194 m² / 10 Zimmer +ERSTBEZUG nach SANIERUNG+

Adresse: 2231 Strasshof, Flugfeldstraße 56

Dieses Haus befindet sich in grüner Siedlungslage, besticht durch seine großzügige Raumaufteilung im Erdgeschoß und der offene Wohnküche mit Zugang zur Terrasse, welche direkt in den Garten mündet. Das Haus verfügt über 10 Zimmer, zwei Bäder, drei WCs, eine Wohnnutzfläche (EG und OG) von ca. 194m², einem ca. 102m² großen Keller, einer Terrasse, einer Garage und einem großzügigen Garten. Das Grundstück mit seinen ca. 527m², seinem großen Garten und das Haus mit den lichtdurchfluteten Räumen, schafft eine Oase des Lebensgefühls mit einer Infrastruktur, die ihresgleichen sucht.

Besonderheiten:
+ Siedlungslage
+ Großzügige Raumaufteilung
+ 10 Zimmer
+ 2 Bäder
+ 3 WCs
+ Offener Wohnküchenbereich mit direktem Zugang auf die Terrasse
+ Terrasse ca. 20m²
+ Garten ca. 330m³
+ Garage mit neuem Seiten-Sektionaltor
+ Teilsanierung inklusive "Baumit open air KlimaschutzFassade" 

 

 

 Flächen- und Raumaufteilung:
+ Grundstück: ca. 527 m²
+ Wohnnutzfläche: ca. 194 m²
+ Keller: ca. 102 m²
+ Terrasse: ca. 20 m²
+ Garage: ca. 19 m²

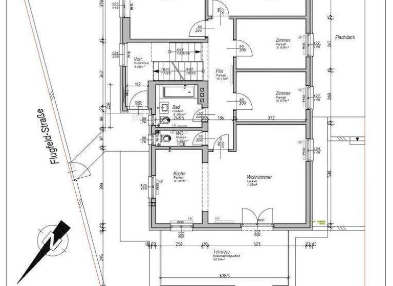
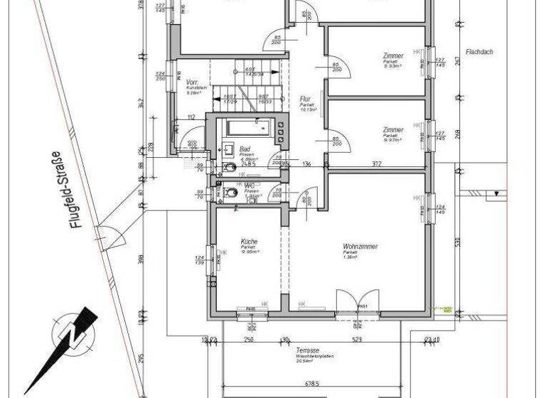
Erdgeschoss:
1 Vorzimmer, ca. 10 m²
1 Bad mit Badewanne und WC, ca. 5 m²
1 WC, ca. 2 m²
1 Wohn- und Küchenbereich, ca. 48 m²
1 Zimmer, ca. 10 m²
1 Zimmer, ca. 10 m²
1 Zimmer, ca. 13 m²
1 Schlafzimmer, ca. 15 m²

Dachgeschoss:
1 Vorraum, ca. 4,8 m²
1 Bad mit Dusche, ca. 6,5 m²
1 WC, ca. 2 m²
1 Raum, ca. 12 m² Bodenfläche und eingeschränkter Raumhöhe
1 Raum, ca. 12 m² Bodenfläche und eingeschränkter Raumhöhe
1 Raum, ca. 11 m² Bodenfläche und eingeschränkter Raumhöhe
1 Raum, ca. 11 m² Bodenfläche und einer Garderobe mit ca. 8 m² Bodenfläche und eingeschränkter Raumhöhe
1 Raum, ca. 10 m² Bodenfläche und eingeschränkter Raumhöhe

Keller:
- 4 Räume
- 1 Waschküche und 1 WC
- 1 Technikraum
- Zugang zur Garage

Ausstattung des Hauses:
Dieses Haus wurde 1971 in Massivbauweise, einem Walmdach inklusive Wärmedämmung zwischen den Sparren und Deckung mit Dachschindeln, errichtet. 1998 wurde das Dachgeschoss ausgebaut und 2007 wurden alle Fenster mit Zweifachverglasung in Kunststoff (Farbe Weiß) erneuert. Ende 2023 wurden das Erdgeschoss, das Dachgeschoss, der Keller, die Terrasse und die Fassade (10cm Baumit "open air KlimaschutzFassade") teilsaniert. Die Küche wurde geöffnet, damit verfügt das Haus über einen großzügigen, hellen Wohnküchenbereich. Alle Bäder und WC´s wurden in modernem Design ausgeführt. Die Wohn- und Schlafräume verfügen über helle Massivparkettböden und die Nutzflächen sind verfliest. Heizung- und Warmwasseraufbereitung erfolgt über die im Technikraum installierte Gastherme und dem Warmwasserboiler.

 

 

 

 

Kaufkonditionen:

Verfügbar: ab sofort

Monatliche Kosten:

-Grundsteuer und Kanalbenützungsgebühr: ca. 57,03 € brutto pro Monat

-Müll (G.V.U. Gänserndorf) / Restmüll, Altpapier und Bio: ca. 14,10 € brutto im Halbjahr

Kaufpreis: 560.000,0 €

Vertragserrichtung:
Notar Mag. Reinhard Wittmann
Vertragserrichtung und Beglaubigung:
1,1% vom Kaufpreis, zuzüglich 20% USt. und Barauslagen für Gerichtsgebühren

Grunderwerbssteuer: 3,5% vom Kaufpreis
Grundbucheintragung: 1,1% vom Kaufpreis

Abgaben gemäß gesetzlicher Erfordernisse:
HWB: 63 kWh/m²a / Klasse C
fGEE: 1,14 / Klasse C
Der Energieausweis ist bis 24.08.2033 gültig.

Öffentliche Anbindung:

Arzt: 3 Gehminuten
Apotheke: 4 Autominuten
Supermarkt: 9 Gehminuten
Kindergarten: 7 Gehminuten
Volksschule: 10 Gehminuten
Strasshof/Nordbahn Bahnhof: 4 Autominuten
Freizeitpark Gänserndorf: 8 Autominuten
Deutsch-Wagram: 10 Autominuten
Einkaufszentrum Gerasdorf: 23 Autominuten
Stadtgrenze Wien: 23 Autominuten

Lage / Infrastruktur:

Strasshof an der Nordbahn ist eine Marktgemeinde mit 11.361 Einwohnern im Bezirk Gänserndorf und liegt im Marchfeld. Das Marchfeld fungiert traditionell als Gemüselieferant Wiens und "Kornkammer Österreichs". Architektonisch bedeutsam ist das Marchfeld unter anderem durch mehrere Barockkirchen und Stadtplätze. Die Flugfeldstraße in Strasshof erinnert an ein ehemaliges Flugfeld, das sich während des Ersten Weltkrieges dort befand.

 

 

 

Auf unserer Homepage www.netmakler.at steht Ihnen unter der Eingabe der Objektnummer 1858/6629 ein Exposé mit allen relevanten Informationen inkl. Fotos und Grundrisse zur Verfügung.

Kontaktperson: Rudolf Lackner

Falls Sie weitere Informationen zum Objekt benötigen oder einen Besichtigungstermin vereinbaren möchten, können Sie mich gerne per Mail unter Lackner@netmakler.at oder telefonisch +43 699/10422336 kontaktieren.

Im Erfolgsfall unserer Vermittlungstätigkeit erlauben wir uns eine Provision in Höhe von 3% des Kaufpreises zzgl. 20% USt. zu verrechnen.

 

Infrastruktur / Entfernungen

Gesundheit
Arzt <1.000m
Apotheke <2.000m
Klinik <6.500m

Kinder & Schulen
Kindergarten <500m
Schule <1.000m

Nahversorgung
Supermarkt <1.000m
Bäckerei <2.000m

Sonstige
Bank <1.500m
Geldautomat <1.500m
Post <2.000m
Polizei <6.000m

Verkehr
Bus <500m
Bahnhof <1.500m

Angaben Entfernung Luftlinie / Quelle: OpenStreetMap

Merkmale

  • Bezug: Sofort
  • WG-geeignet
  • 527 m² Grundstück
  • voll erschlossen
  • Garten
  • Außen-Stellplatz
  • Kabelanschluss

Grundrisse

Grundrisse
1 / 3

Realisiere Dein Projekt

Bausubstanz und Energie

Heizwärmebedarf (HWB)

C

Gesamtenergieeffizienz (fGEE)

C
  • Baujahr1971
  • Zustand der Immobilieneuwertig
  • EnergieträgerGas
Immowelt logo

Preisdetails

Kaufpreis
560000 €
2.886,60 €/m²
Provision für Käufer
3.0% plus 20.0% USt.
Weitere Preisinformationen
1 Stellplatz

Lage

address-icon
Strasshof an der Nordbahn (2231)
Der Anbieter hat die genaue Adresse nicht freigegeben
Stadtrand/Ortsrand, Wohngebiet, Toplage, Ruhelage, Gute Verkehrslage, Nähe öffentliche Verkehrsmittel

Weitere Informationen

Stichworte Garage vorhanden, Gesamtfläche: 194,00 m², Anzahl der Badezimmer: 2, Anzahl der separaten WCs: 3, Balkon-Terrassen-Fläche: 20,00 m², Kellerfläche: 102,00 m², Bundesland: Niederösterreich, 2 Etagen

Weitere Services

Lust auf eine Besichtigung?
Eine Frage zur Immobilie?
Nachricht hinzufügen
Mit der Nutzung der oben angegebenen Telefonnummer oder durch Klicken auf „Kontaktieren“ akzeptierst Du die Allgemeinen Nutzungsbedingungen, denen Du jederzeit widersprechen kannst. Weitere Informationen zum Datenschutz

Über den Anbieter

Netmakler
NetmaklerMaklerbüro
Bergmillergasse 3/3, 1140 WIEN
partner badge
Partnerschaft
Rudolf LacknerDein Kontakt
Online-ID: 251CU5XU9FMX
Referenznummer: OBGC202602260747578666d1c360441
Netmakler
Netmakler
Nachricht hinzufügen
Mit der Nutzung der oben angegebenen Telefonnummer oder durch Klicken auf „Kontaktieren“ akzeptierst Du die Allgemeinen Nutzungsbedingungen, denen Du jederzeit widersprechen kannst. Weitere Informationen zum Datenschutz
Wie zufrieden bist du mit dieser Seite (nicht mit der Immobilie selbst)?