Version: 8.24.0Navigation überspringen
Kreis-Sparkasse Northeim
595.000 €
10 Zimmer  •  337,4 m²  •  639 m² Grundstück

Mehrfamilienhaus zum Kauf
595000 €
1.764 €/m²
10 Zimmer  •  337,4 m²  •  639 m² Grundstück

Stilvolles Wohnhaus in naturnaher Lage-Ideal für Familien nahe Northeim!

Zum Verkauf steht ein massives Ein- bis Zweifamilienhaus in idyllischer Lage am Ortsrand von Hohnstedt, einem kleinen, aber charmanten Ort nahe Northeim. Das 1975 erbaute Haus wurde über die Jahre liebevoll modernisiert und bietet sowohl als großzügiges Einfamilienhaus als auch als Zweifamilienhaus mit separaten Wohneinheiten vielseitige Nutzungsmöglichkeiten. Der Dachgeschossausbau und ein Anbau aus dem Jahr 2002 verleihen dem Haus einen modernen Charakter und bieten zusätzlichen Wohnraum.
Das Haus befindet sich in einer landschaftlich reizvollen Lage, umgeben von viel Grün und Natur, und dennoch nur wenige Minuten von Northeim und Einbeck entfernt. Hier genießen Sie die Ruhe des ländlichen Lebens, während Sie gleichzeitig von der guten Anbindung an die Städte und die Region profitieren. Ideal für Familien, die sowohl viel Platz als auch eine naturnahe Umgebung suchen.
Das Grundstück ist liebevoll angelegt und umfasst einen Garten mit einem praktischen Gartenhaus, das zusätzliche Stauraummöglichkeiten oder als gemütlicher Rückzugsort genutzt werden kann. Ein Freisitz lädt zu entspannten Stunden im Freien ein. Weiterhin gibt es eine Garage und zwei Stellplätze für Autos.

Merkmale

  • 639 m² Grundstück
  • Einbauküche
  • Keller
  • 3 Stellplätze
  • Gäste-WC
  • Balkon
  • Garten
  • Terrasse

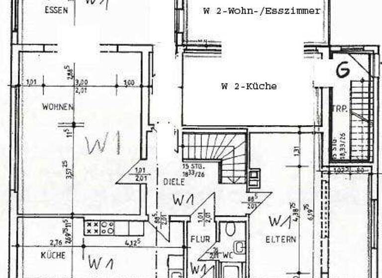
Grundrisse

Grundrisse
1 / 3

Realisiere Dein Projekt

Bausubstanz und Energie

Energieausweis

D
  • Baujahr1975
  • Zustand der ImmobilieMassivhaus
  • HeizungsartZentralheizung
  • EnergieträgerÖl

Preisdetails

Kaufpreis
595000 €
1.763,59 €/m²
Provision für Käufer
2,975 % inkl. MwSt.
Geschätzte Gesamtkosten
654.381 €1
Kaufpreis
595.000 €
Notarkosten (1,5%)
8.925 €
Grunderwerbsteuer (5%)
29.750 €
Provision für Käufer (2,98%)
17.731 €
Grundbucheintrag (0,5%)
2.975 €
1Der angezeigte Wert ist eine automatisch berechnete Schätzung von immowelt.
2Bei den Angaben handelt es sich um ortsübliche Werte. Individuelle Kosten können abweichen.

Lage

address-icon
HohnstedtNortheim (37154)
Der Anbieter hat die genaue Adresse nicht freigegeben
Hohnstedt ist ein kleiner Ort im südlichen Niedersachsen, der zur Stadt Northeim gehört. Er liegt etwa 10 km südlich des Northeimer Stadtzentrums im Landkreis Northeim. Die Region gehört zur Südharzvorland und ist von einer eher ländlichen, hügeligen Landschaft umgeben, mit Wäldern und Feldern, die typisch für das Harzvorland sind.

Hohnstedt befindet sich am Rand des Naturschutzgebietes "Northeimer Wald", was der Gegend eine besonders idyllische und naturnahe Atmosphäre verleiht. Die Umgebung ist von landwirtschaftlich genutzten Flächen geprägt, aber auch kleine Wälder und Bäche finden sich hier.

Die Anbindung an den öffentlichen Verkehr ist über die nahegelegene Stadt Northeim gut, wo sowohl Zug- als auch Busverbindungen bestehen. Über die nahegelegene Bundesstraße 241 ist Hohnstedt ebenfalls gut zu erreichen. Die Lage bietet eine ruhige ländliche Lebensqualität, bei gleichzeitig relativ guter Erreichbarkeit von Northeim und Einbeck in der Region.

Hohnstedt ist also ein kleines, aber ruhiges Dorf, das in einer schönen Naturlandschaft liegt, mit guter Verkehrsanbindung und der Nähe zu größeren Städten.

Weitere Informationen

Sonstiges . Grundabgaben: 579,18 EUR / Jahr
. Wohngebäudeversicherung: 1.033,45 EUR / Jahr

Dieses gepflegte Haus bietet nicht nur eine hervorragende Substanz und eine hochwertige Ausstattung, sondern auch vielfältige Nutzungsmöglichkeiten durch die flexible Aufteilung in zwei Wohneinheiten. Ob für eine große Familie oder als Zwei-Generationenhaus, hier findet jeder seinen Platz. Genießen Sie die ruhige, naturnahe Lage und das moderne Wohnambiente - ein perfektes Zuhause für die Zukunft.

Interessiert?
Vereinbaren Sie noch heute einen Besichtigungstermin und lassen Sie sich von diesem einzigartigen Angebot begeistern!
VERBRAUCHERINFO
1. Maklerleistung ist der Nachweis der Gelegenheit zum Abschluss eines Vertrages bzw. Vermittlung eines Vertrages über eine Immobilie gegen die Courtagezahlungspflicht des Kunden
2. Unternehmer,Anschrift,Beschwerdeadressat
LBSi NordWest, Himmelreichallee 40, 48149 Münster, Tel:0251/973233-997, eMail:info@lbsi-nw.de
GF:Martin Englert, Volker Goldbeck
3. Es besteht ein Widerrufsrecht
4. Weitere Infos: verbraucherinfo.lbsi-nordwest.de

Verbraucherinformationen - http://verbraucherinfo.lbsi-nordwest.de Stichworte Garage vorhanden, Stellplatz vorhanden, Nutzfläche: 89,67 m², Anzahl der Schlafzimmer: 7, Anzahl der Badezimmer: 2, Anzahl der separaten WCs: 1, Anzahl Balkone: 1, Anzahl Terrassen: 1, Bundesland: Niedersachsen, 1 Etagen

Weitere Services

Lust auf eine Besichtigung?
Eine Frage zur Immobilie?
Nachricht hinzufügen
Mit der Nutzung der oben angegebenen Telefonnummer oder durch Klicken auf „Kontaktieren“ akzeptierst Du die Allgemeinen Nutzungsbedingungen, denen Du jederzeit widersprechen kannst. Weitere Informationen zum Datenschutz

Über den Anbieter

Am Münster 28, 37154 Northeim
partner badge
Partnerschaft
Herr Oliver Kirch
Herr Oliver KirchDein Kontakt
Online-ID: 2mejg5q
Referenznummer: 4226
Kreis-Sparkasse Northeim
title
Kreis-Sparkasse Northeim
Bewertung: 4,6 von 5 Sternen
Nachricht hinzufügen
Mit der Nutzung der oben angegebenen Telefonnummer oder durch Klicken auf „Kontaktieren“ akzeptierst Du die Allgemeinen Nutzungsbedingungen, denen Du jederzeit widersprechen kannst. Weitere Informationen zum Datenschutz
Wie zufrieden bist du mit dieser Seite (nicht mit der Immobilie selbst)?