Version: 8.25.1Navigation überspringen
353.266 €
3 Zimmer  •  75,4 m²  •  278 m² Grundstück
Immowelt logo

Einfamilienhaus zum Kauf - Erstbezug • provisionsfrei
353266 €
4.686 €/m²
3 Zimmer  •  75,4 m²  •  278 m² Grundstück

NEUBAUPROJEKT I T-Cube I Moderne Holzmodulhäuser in Ernsgaden

In Ernsgaden entsteht eine moderne Cube-Siedlung mit hochwertigen, in Deutschland gefertigten Holzmodulhäusern. Die vielseitigen Cubes verbinden nachhaltige Bauweise, flexible Planung und maximale Mobilität. Sie sind in vielen Größen und Varianten erhältlich – vom kompakten Modul bis zur großzügigen Wohnlösung – und können schlüsselfertig erworben oder individuell konzipiert werden.

Dank ihrer Installation auf Schraubfundamenten sind die Cubes nicht fest im Boden verankert, besonders ressourcenschonend und jederzeit leicht versetzbar.

Ob als modernes Eigenheim, stilvolles Ferienhaus oder nachhaltige Wohnalternative – die Cubes überzeugen durch ihre modulare Bauweise, hochwertigen Materialien und ihr zeitloses Design.

Die Terrasse fließt mit 50 % in die Berechnung der Wohnfläche ein.

Auf Wunsch kann der Cube inklusive Einrichtung in einer von drei Farblinien gewählt werden: Blau, Olivgrün oder klassischem Grau.

---

Der Gesamtpreis setzt sich zusammen aus dem Kaufpreis für den Cube in Höhe von 200.000 € sowie dem anteiligen Grundstückspreis.
Die private Grundstücksfläche beträgt 191 m² zuzüglich 87,67 m² anteiliger Zufahrts- und Stellplatzfläche (insgesamt 278,67 m²) zum Preis von 550 €/m².

Grundstückspreis: 153.266 €
Gesamtkaufpreis (Grundstück + Cube): 353.266 €

Merkmale

  • 278 m² Grundstück
  • Kein Keller
  • 2 Stellplätze: Außen-Stellplatz
  • Garten
  • Terrasse
  • Badezimmer: Bad mit Dusche, Bad mit Fenster
  • voll klimatisiert
  • Bodenbelag: Fliesen

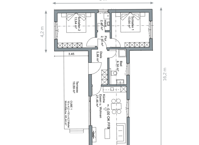
Grundrisse

Grundrisse
1 / 1

Virtueller Rundgang

Video

Realisiere Dein Projekt

Bausubstanz und Energie

Möchtest du Details zum Energieverbrauch?info_energy_calculation-icon
  • Baujahr2026
  • Zustand der ImmobilieNeubau, Erstbezug
  • HeizungsartFußbodenheizung
  • EnergieträgerLuft-/Wasser-Wärmepumpe
Immowelt logo

Preisdetails

Kaufpreis
353266 €
4.686,47 €/m²
Provision für Käufer
provisionsfrei
Geschätzte Gesamtkosten
372.695 €1
Kaufpreis
353.266 €
Notarkosten (1,5%)
5.299 €
Grunderwerbsteuer (3,5%)
12.364 €
Grundbucheintrag (0,5%)
1.766 €
1Der angezeigte Wert ist eine automatisch berechnete Schätzung von immowelt.
2Bei den Angaben handelt es sich um ortsübliche Werte. Individuelle Kosten können abweichen.

Lage

address-icon
Ringstraße 11Ernsgaden (85119)
Ernsgaden ist eine familienfreundliche Gemeinde im oberbayerischen Landkreis Pfaffenhofen an der Ilm und liegt nur rund 15 km vom Stadtzentrum Ingolstadts entfernt.

Die Lage bietet den idealen Mix aus Ruhe, Dorfidylle und gleichzeitig kurzer Anbindung an wichtige Arbeitgeber und urbane Infrastruktur. Damit eignet sich Ernsgaden perfekt für Pendler sowie für Familien, die stadtnah wohnen möchten, ohne auf ein grünes und entspanntes Umfeld zu verzichten.

In unmittelbarer Nähe befinden sich:
Apotheke und Ärzte
Bäcker, Metzger und Lebensmittelhandel
Restaurants und Cafés
Postfiliale
Friseure
Banken und weiterer Einzelhandel

Wichtige Ziele der Region:
Ingolstadt Stadtzentrum: ca. 15 km
Audi AG: ca. 18 km
Ingolstadt Village: ca. 13 km
Klinikum Kösching: ca. 13 km
Klinikum Ingolstadt: ca. 18 km
München: ca. 77 km

Weitere Informationen

Sonstiges Eigenes Grundstück?
Gerne planen wir Ihr Wunschhaus und /oder Cube individuell auf Ihr Grundstück zugeschnitten und führen die gesamten Bauphasen bis zur Schlüsselübergabe aus. Dabei achten wir auf natürliche Baustoffe und arbeiten in ökologischer Bauweise.

Informieren Sie sich unter:
www.ligo-cube.de


Besichtigungstermine
Gerne vereinbaren wir mit Ihnen einen Besichtungstermin.

Stichworte
Sonstiges/Wohnen: seniorengerechtes Wohnen
Serviceleistungen: Hausmeister
Sonstiges: ISDN Energiequelle: Solarenergie

Weitere Services

Lust auf eine Besichtigung?
Eine Frage zur Immobilie?
Nachricht hinzufügen
Mit der Nutzung der oben angegebenen Telefonnummer oder durch Klicken auf „Kontaktieren“ akzeptierst Du die Allgemeinen Nutzungsbedingungen, denen Du jederzeit widersprechen kannst. Weitere Informationen zum Datenschutz

Über den Anbieter

Niederfelderstrasse 15, 85053 Ingolstadt
Daniel StähliDein Kontakt
Online-ID: 263GX9WXYI76
Referenznummer: Ernsgaden; T-Cube, 75,38 qm
Innovationsfabrik GmbH
Innovationsfabrik GmbH
Bewertung: 5 von 5 Sternen
Nachricht hinzufügen
Mit der Nutzung der oben angegebenen Telefonnummer oder durch Klicken auf „Kontaktieren“ akzeptierst Du die Allgemeinen Nutzungsbedingungen, denen Du jederzeit widersprechen kannst. Weitere Informationen zum Datenschutz
Wie zufrieden bist du mit dieser Seite (nicht mit der Immobilie selbst)?