Version: 8.22.4Navigation überspringen
Zefi Immobilien GmbH
13,32 €

Büro zur Miete
13,32 Euro pro Quadratmeter

Vielseitig nutzbare Gewerbefläche in zentraler Lage von Wörgl zu mieten!

Exklusiv bei Zefi Immobilien - Vielseitig nutzbare Gewerbefläche in zentraler Lage von Wörgl

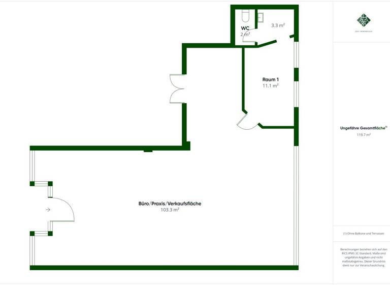
Zur Vermietung steht eine attraktive, vielseitig nutzbare Gewerbefläche mit ca. 128 m², ideal geeignet für Praxisräume, Büros oder Studio-Konzepte im Gesundheits- und Schönheitsbereich.

Die Räumlichkeiten befinden sich in zentraler Lage an der Fritz-Atzl-Straße, direkt gegenüber dem Gesundheitszentrum Wörgl - ein Standort mit hoher Frequenz und Sichtbarkeit.

Die großen Fensterfronten sorgen für viel Tageslicht und eine freundliche, einladende Atmosphäre. Der helle Fliesenboden und die moderne Fußbodenheizung schaffen ein angenehmes Raumklima und unterstreichen den gepflegten, zeitgemäßen Eindruck der Immobilie.

Die Fläche bietet einen separaten kleinen Raum, der sich ideal als Behandlungsraum, Besprechungszimmer oder Lager eignet. Ein WC ist selbstverständlich vorhanden.

Highlights im Überblick:

*
ca. 128 m² Gesamtfläche

*
Heller, gepflegter Fliesenboden

*
Fußbodenheizung

*
Große Fensterfronten, helle Räume

*
Separater Raum + WC

*
Zentrale Lage in Wörgl, direkt gegenüber dem Gesundheitszentrum

*
Öffentliche Verkehrsmittel (Bus/Bahn) fußläufig erreichbar

*
Parkmöglichkeiten in der Nähe

Nutzungsmöglichkeiten:
Diese Fläche eignet sich ideal für:

*
Massage- oder Physiotherapie

*
Beauty-/Kosmetikstudios

*
Yoga-/Therapie-/Coachingsräume

*
Büros für Dienstleister

*
Schulungsräume u.v.m.

Lage:
Die zentrale Lage bietet optimale Erreichbarkeit für Kunden und Mitarbeitende - sei es mit dem Auto, per Bus oder Bahn. In unmittelbarer Umgebung befinden sich zahlreiche Gesundheitseinrichtungen, Praxen und Einkaufsmöglichkeiten.

Kontaktieren Sie uns gerne für einen Besichtigungstermin!
Entdecken Sie das Potenzial dieser ansprechenden Gewerbefläche und verwirklichen Sie Ihr Geschäftsvorhaben in bester Lage von Wörgl.

Noch nichts gefunden? Wir informieren Sie über geeignete Immobilienangebote noch vor allen anderen.
Legen Sie jetzt Ihren individuellen Suchagenten unter folgendem Link an. Wir schicken Ihnen passende Immobilien exklusiv vorab zu.
Suchagent anlegen [https://zefi-immobilien.service.immo/registrieren/de] - https://zefi-immobilien.service.immo/registrieren/de

Wir weisen darauf hin, dass zwischen dem Vermittler und dem zu vermittelnden Dritten ein familiäres oder wirtschaftliches Naheverhältnis besteht.

Der Vermittler ist als Doppelmakler tätig.

Infrastruktur / Entfernungen

Gesundheit
Arzt <500m
Apotheke <500m
Klinik <500m

Kinder & Schulen
Schule <1.000m
Kindergarten <500m

Nahversorgung
Supermarkt <500m
Bäckerei <500m
Einkaufszentrum <500m

Sonstige
Bank <500m
Geldautomat <500m
Post <1.000m
Polizei <500m

Verkehr
Bus <500m
Autobahnanschluss <1.000m
Bahnhof <500m
Flughafen <10.000m

Angaben Entfernung Luftlinie / Quelle: OpenStreetMap

Merkmale

  • Bezug: ab sofort
  • Raumaufteilung flexibel
  • Bodenbelag: Fliesen

Grundrisse

Grundrisse
1 / 1

Realisiere Dein Projekt

Bausubstanz und Energie

Der Anbieter hat keine Informationen zum Energieverbrauch bereit gestellt.
  • Zustand der ImmobilieNeubau, Massivhaus, Gepflegt
  • HeizungsartFußbodenheizung
MediumRectangleTop

Mietkosten

Nettokaltmiete
13,32 €/m²
1.595 €
Betriebskosten
320 €
Provision für Mieter
6.894,00 € inkl. 20% USt.
Kaution
3 Bruttomonatsmieten
Weitere Preisinformationen
Nettokaltmiete: 1.595,00 EUR

Lage

address-icon
Wörgl (6300)
Die Gewerbefläche befindet sich in hervorragender Lage an der Fritz-Atzl-Straße in Wörgl, direkt gegenüber dem Gesundheitszentrum - einem stark frequentierten Anlaufpunkt für medizinische und therapeutische Dienstleistungen. Dadurch ergibt sich eine ideale Nachbarschaft für Branchen im Gesundheits-, Wellness- oder Dienstleistungsbereich.

Die zentrale Lage innerhalb von Wörgl bietet eine ausgezeichnete Infrastruktur und optimale Erreichbarkeit: Der Bahnhof Wörgl sowie mehrere Busverbindungen sind nur wenige Gehminuten entfernt. Für Kunden und Mitarbeitende stehen in der näheren Umgebung ausreichend Parkmöglichkeiten zur Verfügung.

In unmittelbarer Umgebung befinden sich zahlreiche Einrichtungen des täglichen Bedarfs, Cafés, Apotheken sowie weitere Dienstleister, was die Attraktivität dieses Standorts zusätzlich unterstreicht.

Durch die Nähe zu überregionalen Verkehrsachsen wie der Inntalautobahn (A12) ist auch die Anbindung für überregionale Kundschaft oder Partner ideal gegeben.

Kurz zusammengefasst:

Zentrale Lage in Wörgl

Direkt gegenüber dem Gesundheitszentrum

Sehr gute öffentliche Verkehrsanbindung (Bahnhof & Bus in Gehweite)
Parkmöglichkeiten in der Nähe
Gute Sichtbarkeit und Kundenfrequenz
Vielfältige Infrastruktur im direkten Umfeld
Diese Lage vereint Erreichbarkeit, Sichtbarkeit und ein professionelles Umfeld - ideale Voraussetzungen für ein erfolgreiches Geschäft.

Weitere Informationen

Stichworte Nutzfläche: 119,70 m², Verkaufsfläche: 119,70 m², Bundesland: Tirol

Weitere Services

Lust auf eine Besichtigung?
Eine Frage zur Immobilie?
Nachricht hinzufügen
Mit der Nutzung der oben angegebenen Telefonnummer oder durch Klicken auf „Kontaktieren“ akzeptierst Du die Allgemeinen Nutzungsbedingungen, denen Du jederzeit widersprechen kannst. Weitere Informationen zum Datenschutz

Über den Anbieter

Josef-Speckbacher-Str. 12, 6300 WÖRGL
partner badge
3 Jahre Partnerschaft
Herr Mike RettkowskiDein Kontakt
Online-ID: 2lkj45p
Referenznummer: OBGC20250728112814083d2b16f9aed
Zefi Immobilien GmbH
Zefi Immobilien GmbH
Bewertung: 5 von 5 Sternen
Nachricht hinzufügen
Mit der Nutzung der oben angegebenen Telefonnummer oder durch Klicken auf „Kontaktieren“ akzeptierst Du die Allgemeinen Nutzungsbedingungen, denen Du jederzeit widersprechen kannst. Weitere Informationen zum Datenschutz
MediumRectangleTop
MediumRectangleBottom
MediumRectangleTop
Wie zufrieden bist du mit dieser Seite (nicht mit der Immobilie selbst)?