Version: 8.26.0Navigation überspringen
1.180.000 €
7 Zimmer  •  102,2 m²  •  2.740 m² Grundstück
Immowelt logo

Villa zum Kauf
1180000 €
11.546 €/m²
7 Zimmer  •  102,2 m²  •  2.740 m² Grundstück

Elegante Villa mit spektakulärem Seeblick und großem Grundstück

In einer exklusiven Panoramalage mit atemberaubendem Blick auf den See steht diese wunderschöne, freistehende Villa zum Verkauf. Sie erstreckt sich über zwei oberirdische Etagen.

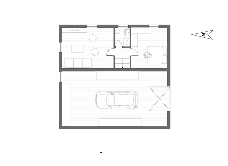
Im Erdgeschoss befinden sich eine großzügige 60 m² große Garage, eine gemütliche Taverne, ein helles Schlafzimmer und ein Badezimmer mit Fenster.

Das Obergeschoss beeindruckt mit einem eleganten Wohnbereich und offener Küche - perfekt für gesellige Momente. Der Schlafbereich umfasst drei Schlafzimmer - zwei geräumige Doppelzimmer und ein Einzelzimmer - sowie ein weiteres Badezimmer mit Fenster.

Das Anwesen ist von einem weitläufigen Grundstück von ca. 2.700 m² umgeben, ideal für entspannte Stunden im Freien mit Familie und Freunden - stets begleitet von einem unvergleichlichen Blick auf den See.

Die Kombination aus Privatsphäre, Großzügigkeit und exklusiver Lage macht diese Villa zu einem außergewöhnlichen Wohntraum.

Eine einmalige Gelegenheit für alle, die Eleganz, Komfort und einen spektakulären Seeblick suchen!

Merkmale

  • Bezug: sofort
  • 2.740 m² Grundstück
  • Keller
  • 2 Stellplätze: 2 Garagen
  • Balkon
  • Garten
  • Terrasse
  • teilweise möbliert

Grundrisse

Grundrisse
1 / 2

Bausubstanz und Energie

Möchtest du Details zum Energieverbrauch?info_energy_calculation-icon
  • Baujahr1970
  • Zustand der ImmobilieGepflegt
  • HeizungsartOfen
Immowelt logo

Preisdetails

Kaufpreis
1180000 €
11.545,99 €/m²
Provision für Käufer
4% zzgl. MwSt.
Weitere Preisinformationen
2 Garagenstellplätze

Lage

address-icon
Via Ca dei Danni 17San Zeno Di Montagna (37010)
San Zeno di Montagna ist eine charmante Gemeinde im Hinterland des Gardasees, die auf einem Hügel etwa 500 Meter über dem See liegt. Der Ort bietet atemberaubende Panoramablicke auf den Gardasee und die umliegenden Berge. Diese ruhige Lage ist besonders beliebt bei Naturliebhabern und Wanderfreunden, da sie eine Fülle von Wander- und Radwegen durch eine unberührte Landschaft bietet.
Trotz der friedlichen und abgelegenen Atmosphäre ist San Zeno di Montagna gut an den Gardasee und die umliegenden Städte angebunden, wie zum Beispiel Bardolino, das nur eine kurze Fahrt entfernt ist. Die Nähe zum See ermöglicht es den Bewohnern, die vielfältigen Freizeitmöglichkeiten wie Bootsfahrten, Wassersport und den Besuch der malerischen Uferstädte zu genießen, während sie gleichzeitig die Ruhe und den frischen Bergwind von San Zeno erleben können.
San Zeno di Montagna ist ideal für diejenigen, die eine perfekte Mischung aus Natur, Ruhe und Nähe zu den Annehmlichkeiten des Gardasees suchen.

Weitere Informationen

Stichworte Garage vorhanden, Fahrradraum, Verkaufsfläche: 250,00 m², Anzahl der Schlafzimmer: 4, Anzahl der Badezimmer: 2, Anzahl Balkone: 1, Anzahl Terrassen: 1, Gartenfläche: 2.600,00 m², Kellerfläche: 1,00 m², 2 Etagen

Weitere Services

Lust auf eine Besichtigung?
Eine Frage zur Immobilie?
Nachricht hinzufügen
Mit der Nutzung der oben angegebenen Telefonnummer oder durch Klicken auf „Kontaktieren“ akzeptierst Du die Allgemeinen Nutzungsbedingungen, denen Du jederzeit widersprechen kannst. Weitere Informationen zum Datenschutz

Über den Anbieter

Trattengasse 7, 37042 Brixen (BZ)
partner badge
6 Jahre Partnerschaft
Firma Castellanum LaziseDein Kontakt
Online-ID: 25Y86IBBJC7N
Referenznummer: G00367
Wie zufrieden bist du mit dieser Seite (nicht mit der Immobilie selbst)?