Version: 8.25.1Navigation überspringen
PlanetHome Group GmbH
1.980.000 €
11 Zimmer  •  365 m²  •  830 m² Grundstück

Stadthaus zum Kauf
1980000 €
5.425 €/m²
11 Zimmer  •  365 m²  •  830 m² Grundstück

Charmante Herrenhaushälfte mit Waldblick in Berlin-Westend sanierungsbedürftig

Der Energieausweis ist in Arbeit. Für das hier vorliegende Objekt gibt es aktuell keinen gültigen Energieausweis. Dieser ist bereits vom Eigentümer beantragt.
Diese historische Haushälfte ca. aus dem Jahr 1920 befindet sich in einer der exklusivsten und grünsten Lagen in Berlin Westend. Das Gebäude ist nach Süden in Richtung Wald ausgerichtet, sodass sich aus den meisten Räumen ein unverbauter Blick ins Grüne bietet. Das Objekt ist sanierungsbedürftig und bietet dem zukünftigen Eigentümer die Möglichkeit, die Immobilie nach eigenen Vorstellungen zu modernisieren und zu gestalten. Auf dem ca. 830 m² großen Grundstück finden Sie ein Haus mit großzügigem, lichtdurchflutetem Wohnambiente mit direktem Bezug zur Natur vor.

Keyfacts:
Baujahr: ca. 1920/ Grundstück: ca. 830 m²
Zustand: sanierungsbedürftig, mit hohem Modernisierungspotenzial
Heizung: Ölheizung im Keller, zentrale Warmwasseraufbereitung
Fenster: Holz- Einfachverglasung und Doppelkastenfenster
Dach: ca. 1992 neu gedeckt, Balken und Dachsparren saniert, vier isolierverglaste Dachfenster, vollständige Dämmung
Fassade: ca. 1992 instandgesetzt und gestrichen

Highlights:
Südausrichtung mit unverbaubarem Blick in den angrenzenden Wald
Großzügiges Grundstück in einer der exklusivsten Straßen Westends
Historische Bausubstanz mit saniertem Dach (ca. 1992) und instandgesetzter Fassade
Vielfältige Nutzungsmöglichkeiten (Familienhaus, Atelier, Büro)
Wunderschöne Details eines Berliner Altbaus (Parkettböden, Flügel- und Schiebetüren mit Glaseinsätzen, großzügige Räume)

Flächenübersicht (die Flächen wurden grob ermittelt und sind daher ohne Gewähr):
Erdgeschoss ca. 130 m²
Obergeschoss ca. 130 m²
Mansardgeschoss ca. 105 m²
Dachboden (begehbar) ca. 30 m²
Keller ca. 130 m²
Garage (beheizt) ca. 25 m²

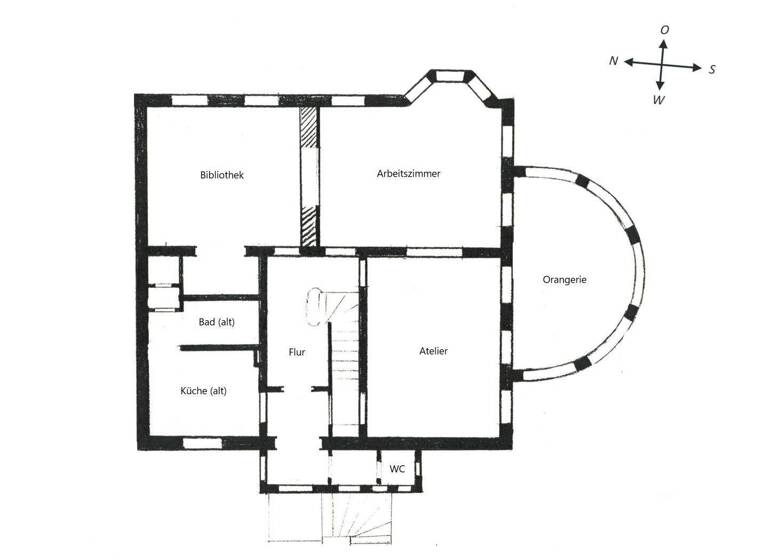
Raumaufteilung (die jeweilige Lage der Räume entnehmen Sie bitte den beigefügten Grundrissen):
Erdgeschoss
Atelier, Arbeitszimmer, Bibliothek, Orangerie, Gäste-WC
Der großzügige Flurbereich empfängt hier Bewohner und Gäste
Die ehemalige Küche und das ehemalige Badezimmer wurden als Wirtschaftsraum genutzt

Obergeschoss
Wohn- und Esszimmer mit je einem Austritt auf die halbrunde Terrasse
Küche, Schlafzimmer, Badezimmer (vom Flur und Schlafzimmer aus begehbar)

Mansardgeschoss
Badezimmer, 5 Zimmer unterschiedlicher Größe
Dachschrägen als Kammern mit Türen abgeteilt bieten zusätzlichen Stauraum

Der Dachboden ist ausgebaut und bietet auf der großzügigen, ca. 35 m² großen Grundfläche eine vielseitige Nutzbarkeit.

Der Keller bietet mit seinen ca. 130 m², verteilt auf 6 Räume zzgl. Nebenflächen, ausreichend Platz für Lagerung oder zur Hobbynutzung. Neben Lagerräumen gibt es hier einen Werkstattraum, eine Waschküche, einen ehem. Luftschutzraum sowie den Heizungsraum. Eine Toilette ist ebenfalls im Keller vorhanden.

Fazit: ein herrschaftliches Haus in grüner und optimal angebundener Lage Berlins mit großem Potenzial für Ihre eigenen Vorstellungen und Nutzungswünsche.
Lassen Sie das Haus bei einer individuellen Besichtigung auf sich wirken. Wir freuen uns auf Ihre Kontaktaufnahme.

Merkmale

  • 830 m² Grundstück
  • Einbauküche
  • Keller
  • Stellplatz
  • Gäste-WC
  • Balkon

Grundrisse

Grundrisse
1 / 4

Realisiere Dein Projekt

Bausubstanz und Energie

Möchtest du Details zum Energieverbrauch?info_energy_calculation-icon
  • Baujahr1920
  • Zustand der ImmobilieMassivhaus
  • HeizungsartZentralheizung
  • EnergieträgerÖl
MediumRectangleTop

Preisdetails

Kaufpreis
1980000 €
5.424,66 €/m²
Provision für Käufer
3,57 % inkl. MwSt.
Geschätzte Gesamtkosten
2.209.086 €1
Kaufpreis
1.980.000 €
Notarkosten (1,5%)
29.700 €
Grunderwerbsteuer (6%)
118.800 €
Provision für Käufer (3,57%)
70.686 €
Grundbucheintrag (0,5%)
9.900 €
1Der angezeigte Wert ist eine automatisch berechnete Schätzung von immowelt.
2Bei den Angaben handelt es sich um ortsübliche Werte. Individuelle Kosten können abweichen.

Lage

address-icon
WestendBerlin (14055)
Der Anbieter hat die genaue Adresse nicht freigegeben
Die Immobilie befindet sich in der Insterburgallee im begehrten Berliner Ortsteil Westend (Bezirk Charlottenburg-Wilmersdorf) - einer der elegantesten und ruhigsten Wohnlagen der Hauptstadt. Das Umfeld ist geprägt von repräsentativen Villen, gepflegten Gärten und altem Baumbestand, was der Straße einen besonders charmanten und exklusiven Charakter verleiht.

Westend wurde ursprünglich als Villenkolonie angelegt und zählt heute zu den gehobenen, klassischen Wohnadressen im Berliner Westen. Die Lage verbindet Ruhe, Natur und Nähe zum urbanen Leben auf ideale Weise.

In unmittelbarer Umgebung finden sich zahlreiche Grün- und Erholungsflächen, darunter der Grunewald, der Teufelsberg und der Olympiapark - perfekte Orte zum Spazieren, Joggen oder Entspannen.

Die Infrastruktur ist hervorragend: Einkaufsmöglichkeiten, Cafés, Restaurants sowie Schulen und Kindergärten sind schnell erreichbar. Der beliebte Theodor-Heuss-Platz mit seiner U-Bahn-Station (U2) liegt nur wenige Minuten entfernt und bietet eine direkte Anbindung in die Berliner City (z. B. Zoologischer Garten, Potsdamer Platz, Alexanderplatz).

Auch mit dem Auto ist die Lage optimal: Die A100 und A115 sind in wenigen Minuten erreichbar, sodass sowohl das Berliner Zentrum als auch das Umland komfortabel erreichbar sind.

Zusammenfassung der Lagevorteile:
Exklusive und ruhige Wohnlage in Berlin-Westend
Villenviertel mit gewachsenem, grünem Umfeld
Nähe zu Grunewald, Olympiapark und Teufelsberg
Sehr gute ÖPNV- und Autobahnanbindung
Gepflegte Nachbarschaft, hohe Lebensqualität

Weitere Informationen

Energiepass Energieausweis wird bei Besichtigung vorgelegt. Stichworte Garage vorhanden, Nutzfläche: 160,00 m², Anzahl der Badezimmer: 3, Anzahl der separaten WCs: 1, Anzahl Balkone: 1, 3 Etagen, modernisiert: 1992

Weitere Services

Lust auf eine Besichtigung?
Eine Frage zur Immobilie?
Nachricht hinzufügen
Mit der Nutzung der oben angegebenen Telefonnummer oder durch Klicken auf „Kontaktieren“ akzeptierst Du die Allgemeinen Nutzungsbedingungen, denen Du jederzeit widersprechen kannst. Weitere Informationen zum Datenschutz

Über den Anbieter

Feringastraße 11, 85774 Unterföhring
partner badge
10 Jahre Partnerschaft
Sebastian DeichselDein Kontakt
Online-ID: 25UTAPYGL812
Referenznummer: 720177
PlanetHome Group GmbH
PlanetHome Group GmbH
Nachricht hinzufügen
Mit der Nutzung der oben angegebenen Telefonnummer oder durch Klicken auf „Kontaktieren“ akzeptierst Du die Allgemeinen Nutzungsbedingungen, denen Du jederzeit widersprechen kannst. Weitere Informationen zum Datenschutz
MediumRectangleTop
MediumRectangleTop
Wie zufrieden bist du mit dieser Seite (nicht mit der Immobilie selbst)?