Version: 8.24.0Navigation überspringen
509.000 €
4 Zimmer  •  113,9 m²
Immowelt logo

Wohnung zum Kauf - Erstbezug
509000 €
4.470 €/m²
4 Zimmer  •  113,9 m²

Geräumige Obergeschosswohnung mit Sonnenterrasse

In zentraler Wohnlage von Mainaschaff entsteht ein zeitgemäßes Neubauprojekt mit drei attraktiven Wohnungen. Das Ensemble besticht durch eine klare, moderne Architektur, hochwertige Materialien und eine energieeffiziente Bauweise gemäß den Vorgaben des Gebäudeenergiegesetzes 2024. Das Haus entsteht auf einem einladenden Eckgrundstück aus einem harmonischen Zusammenspiel von Komfort und Stil. Das Bauvorhaben befindet sich derzeit bereits in der Umsetzung und wird voraussichtlich bis Frühjahr 2027 fertiggestellt sein.
Der Bau erfolgt in Massivbauweise und überzeugt mit durchdachten Grundrissen sowie großzügigen Wohnflächen. Zahlreiche Fenster mit Dreifachverglasung sorgen für angenehm helle Räume. Beheizt wird das Gebäude über eine Luft-Wasser-Wärmepumpe in Verbindung mit einer komfortablen Fußbodenheizung, was zu einem behaglichen Wohnklima und niedrigen Energiekosten beiträgt. Die Wohnungen werden schlüsselfertig übergeben. Das Projekt vereint hochwertige Bauqualität, moderne Technik und eine ruhige, familienfreundliche Umgebung - ideal für alle, die in Mainaschaff ein stilvolles Zuhause mit Zukunft suchen.

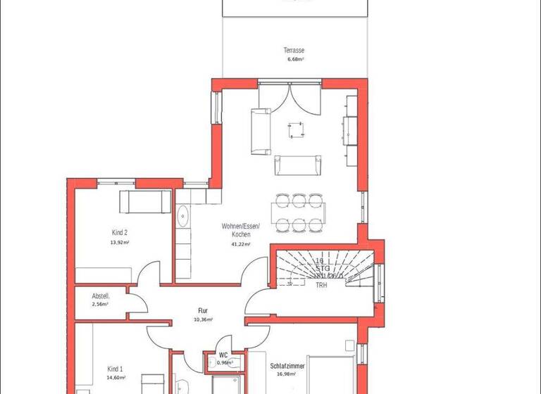
Obergeschosswohnung mit Sonnenterrasse
Diese großzügige Wohnung im ersten Obergeschoss überzeugt durch durchdachte Planung. Der Grundriss trennt den Wohn- und Essbereich samt Küche geschickt von den Schlafzimmern, ohne dabei an Nutzfläche zu verlieren. Beim Betreten gelangen Sie in einen zentralen Flur, von dem aus alle Räume erschlossen werden. Neben einem Tageslichtbad finden Sie hier außerdem ein Gäste-WC. Zur Wohnung gehört ein Kellerraum, ergänzt durch einen zusätzlichen Abstellraum innerhalb der Wohnung.
Der offene Kochbereich verfügt über ein Fenster und lässt vielfältige Gestaltungsmöglichkeiten zu. Ob eine klassische L-Küche, eine U-förmige Variante oder sogar eine Kücheninsel - alles ist denkbar. Der Essbereich bildet eigenständig einen klaren Bereich, fügt sich aber harmonisch an die Küche an. Der großzügig bemessene Wohnbereich erstreckt sich über den restlichen Raum und hat direkten Zugang zur Terrasse. Die Doppel-Terrassentür ermöglicht einen nahtlosen Übergang und vergrößert so den Raum noch einmal optisch.

Die drei Schlafzimmer überzeugen durch Helligkeit und eine angenehme Größe. Jedes Zimmer bietet eine private Rückzugsmöglichkeit, bleibt aber dennoch gut in den Wohnbereich eingebunden. Zudem stehen zwei Stellplätze in einer Doppelparker-Garage zur Verfügung, die separat erworben werden müssen.
Insgesamt präsentiert sich dieses Bauprojekt als ein Wohnensemble mit einer überschaubaren Eigentümergemeinschaft, in der man sich rundum wohlfühlen kann.

Merkmale

  • Kelleranteil
  • 2 Stellplätze: 2 Duplex-Stellplätze
  • Garten
  • Terrasse
  • Bodenbelag: Fliesen
- bezugsfertige Übergabe, inkl. Malervlies
- Tageslichtbad
- Gäste-WC
- moderne Fliesen
- Bodenbeläge nach Wahl des Käufers bis 25,- €/m²
- 3-Fach verglaste Kunststofffenster
- elektrische Rollläden
- Video-Sprechanlage
- Luft-Wasser-Wärmepumpe
- Fußbodenheizung

Grundrisse

Grundrisse
1 / 1

Realisiere Dein Projekt

Bausubstanz und Energie

Der Anbieter hat keine Informationen zum Energieverbrauch bereit gestellt.
  • Baujahr2026
  • Zustand der ImmobilieMassivhaus, Erstbezug
  • HeizungsartFußbodenheizung
  • EnergieträgerLuft-/Wasser-Wärmepumpe
Immowelt logo

Preisdetails

Kaufpreis
509000 €
4.470,40 €/m²
Preis pro Stellplatz
14500 €
Provision für Käufer
Bitte beachte, das Angebot kann bei Vertragsabschluss die Zahlung einer Provision beinhalten. Weitere Informationen erhältst Du vom Anbieter.
Weitere Preisinformationen
2 Duplex-Stellplätze, Kaufpreis je: 14.500,00 EUR
Geschätzte Gesamtkosten
555.166 €1
Kaufpreis
509.000 €
Notarkosten (1,5%)
7.635 €
Grunderwerbsteuer (3,5%)
17.815 €
Provision für Käufer (3,57%)
18.171 €
Grundbucheintrag (0,5%)
2.545 €
1Der angezeigte Wert ist eine automatisch berechnete Schätzung von immowelt.
2Bei den Angaben handelt es sich um ortsübliche Werte. Individuelle Kosten können abweichen.

Lage

address-icon
Mainaschaff (63814)
Der Anbieter hat die genaue Adresse nicht freigegeben
Im unterfränkischen Landkreis Aschaffenburg liegt die Gemeinde Mainaschaff mit rund 8.600 Einwohnern direkt am Main und profitiert von einer äußerst günstigen Verkehrsanbindung. Dank Autobahnanschluss, einem gut vernetzten Bahnhof und der Nähe zur Natur eignet sich der Ort besonders als Wohnort für Familienpendler. Ein Highlight der Gemeinde ist der Mainparksee mit eigenem Campingplatz, Bistro und Saunagarten - insbesondere im Sommer beliebt.

Im Ort gibt es mehrere Kindergärten sowie eine Grund- und Mittelschule. Weiterführende Schulen und eine Hochschule befinden sich in der unmittelbar angrenzenden Stadt Aschaffenburg. Alle lebenswichtigen Einrichtungen, Restaurants und Bars sind vor Ort vorhanden. Ein besonderes Highlight bildet das Mainparkcenter "Am Glockenturm" mit zahlreichen Einkaufsmöglichkeiten und einem Ärztezentrum; hier ist außerdem die KFZ-Zulassungsstelle des Landkreises Aschaffenburg ansässig. Die Innenstadt von Aschaffenburg liegt lediglich etwa 7 Autominuten entfernt und ist zudem hervorragend an Bus und Bahn angebunden.

Für Ihre Freizeit bietet sich der Gemeindewald sowie der Naturpark Spessart zu Wanderungen und Radtouren an. Auch in Mainaschaff selbst stehen vielfältige Freizeitmöglichkeiten zur Verfügung: Im Sommer sorgt der Badesee für eine willkommene Abkühlung, die man nach einem Saunagang im Röder Thermen Mainparksee genießen kann. Zudem warten Sportplätze, ein Hundeplatz, eine Bibliothek, ein Marionettentheater sowie Spiel- und Grillplätze. Darüber hinaus finden regelmäßig kulturelle Veranstaltungen in der Maintalhalle statt. Mehr als 50 Vereine offerieren sportliche und freizeitliche Aktivitäten, sodass für jeden Geschmack etwas dabei ist.

Durch die direkte Lage an der Bundesstraße B8 sowie die unmittelbare Anbindung an die Autobahnen A3 und A45 ist eine hervorragende Verkehrsanbindung in alle Richtungen gewährleistet. Der Frankfurter Flughafen ist nur rund 35 Autominuten entfernt. Der ÖPNV ist durch den Bahnhof im Ort und mehrere Buslinien gut erreichbar, was Mainaschaff nicht nur eine exzellente Verbindung zum Zentrum von Aschaffenburg, sondern auch zu den umliegenden Gemeinden und Städten des Rhein-Main-Gebiets sowie nach Würzburg ermöglicht.

Weitere Informationen

Sonstiges Aurelion & Company wurde exklusiv vom Eigentümer mit der Vermarktung dieser Immobilie beauftragt. Gerne stehen wir Ihnen für Ihre Rückfragen zur Verfügung. Für eine Besichtigung vereinbaren Sie mit uns einen Termin.

Alle Angaben stammen vom Eigentümer bzw. Dritten. Diese wurden von uns sorgfältig geprüft und nach bestem Wissen und Gewissen bearbeitet. Alle Angaben sind somit ohne Gewähr auf Vollständigkeit und Richtigkeit.
Der Zwischenverkauf, die Zwischenvermietung, Fehler und Irrtümer bleiben uns vorbehalten. Stichworte Grundstücksfläche: 302,00 m², Anzahl der Schlafzimmer: 3, Anzahl der Badezimmer: 1, Anzahl der separaten WCs: 1, Anzahl Terrassen: 1, Anzahl der Wohneinheiten: 3, Distanz zum Kindergarten: 0.20, Distanz zur Grundschule: 0.35, Distanz zur Realschule: 0.35, Distanz zum Gymnasium: 4.20, Distanz zur Autobahn: 2.00, Distanz vom Zentrum: 0.50

Weitere Services

Lust auf eine Besichtigung?
Eine Frage zur Immobilie?
Nachricht hinzufügen
Mit der Nutzung der oben angegebenen Telefonnummer oder durch Klicken auf „Kontaktieren“ akzeptierst Du die Allgemeinen Nutzungsbedingungen, denen Du jederzeit widersprechen kannst. Weitere Informationen zum Datenschutz

Über den Anbieter

Würzburger Str.172, 63743 Aschaffenburg
partner badge
Partnerschaft
Frau Diana DittmarDein Kontakt
Online-ID: 2n5k45g
Referenznummer: LW235
Aurelion & Company GmbH
Aurelion & Company GmbH
Bewertung: 4,3 von 5 Sternen
Nachricht hinzufügen
Mit der Nutzung der oben angegebenen Telefonnummer oder durch Klicken auf „Kontaktieren“ akzeptierst Du die Allgemeinen Nutzungsbedingungen, denen Du jederzeit widersprechen kannst. Weitere Informationen zum Datenschutz
Wie zufrieden bist du mit dieser Seite (nicht mit der Immobilie selbst)?