Version: 8.22.4Navigation überspringen
579.000 €
5 Zimmer  •  113,4 m²
Immowelt logo

Doppelhaushälfte zum Kauf - Erstbezug
579000 €
5.105 €/m²
5 Zimmer  •  113,4 m²

ERSTBEZUG | Moderne Doppelhaushälfte | 5 Zimmer | Weitblick | schlüsselfertige Ausführung | Rechte Steinzeile (Haus 1/1)

Zum Verkauf gelangen acht schlüsselfertige Doppelhaushälften in herrlicher Hanglage mit unvergleichbarem Weitblick über den Schneeberg bis über die umliegenden Weinberge!

Diese modernen Doppelhaushälften vereinen stilvolle Architektur mit einer hochwertigen Ausstattung und bieten viel Platz für die ganze Familie. Bei dem Projekt wurde auf offene und helle Grundrisse gesetzt - lichtdurchflutete Wohnträume werden Realität. Terrassen, Balkone als auch Eigengärten schaffen eine Oase der Entspannung.

Die ruhige und naturnahe Umgebung von Großhöflein bietet Erholung pur und gleichzeitig eine hervorragende Anbindung: Über die nahegelegene Autobahn A3 sowie den Bahnhof Müllendorf erreichen Sie rasch Mattersburg, Eisenstadt, Wiener Neustadt oder Wien. Hier finden Sie die richtige Balance aus Ruhe, Natur und urbaner Nähe - ein idealer Lebensmittelpunkt für alle, die modernes Wohnen mit höchstem Komfort schätzen.

_Haus 1/1:_

_*** LINK zur VIDEOBESICHTIGUNG ***_ [https://storage.justimmo.at/video/1080p/1TrNzpqkA9tapRJXosv75e.mp4]

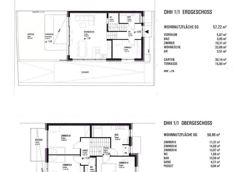
Es stehen Ihnen ca. 113,5 m² Wohnnutzfläche, sowie 15 m² Terrasse, ung. 33 m² Garten sowie ca. 6,5 m² Balkon zur Verfügung - aufgeteilt auf 2 Ebenen.

Zur Raumaufteilung:

Erdgeschoss (ca. 57 m²):

* Vorraum

* Offene & lichtdurchflutete Wohnküche

* mit Ausgang auf die Terrasse / in den Eigengarten (Ausrichtung S)

* Zimmer
* Badezimmer mit WC, Dusche, Waschbecken und Fenster
* Abstellraum

1. OG (ca. 57 m²)

* 3 Zimmer

* eines davon mit Ausgang auf einen eigenen Balkon

* Tageslicht Badezimmer mit Doppelwaschbecken, Dusche, Badewanne, WC und WM/TR-Anschluss (ca. 10 m²)
* Separate Toilette mit Handwaschbecken

Ausstattungshighlights:

* Hochwertiger Eichenparkettboden in den Wohnbereichen
* In den Bädern sowie im Eingangsbereich und in den Fluren graue Bodenfließen aus Feinsteinzeug und Wandfließen in Weiß
* Großzügige Bäder mit bodenbündiger Dusche und/oder Badewanne
* Armaturen aus Hansgrohe und Badmöbel von Laufen
* 3-fach isolierverglaste Fenster und Balkontüren und Aluminiumdeckschale
* Elektrische Rollläden und Raffstores als außenliegender Sonnenschutz
* Wohnungseingangstüren mit Mehrfachverriegelung
* Luftwärmepumpe von Daikin zur Heizung und Warmwasserbereitung
* Fußbodenheizung in allen Räumen
* Klimavorbereitung in Wohn- und Schlafbereichen
* Leerverrohrung für Photovoltaik am Dach vorhanden
* Tiefgaragenstellplätze
* Vorbereitung für eine E-Ladestation in der Tiefgarage

_* Pro Doppelhaus sind zwei Kfz-Stellplätze verpflichtend zu erwerben. Bei den Häusern 1/1 bis 3/2 handelt es sich um Tiefgaragenstellplätze mit einem Gesamtwert von € 40.000 (entspricht € 20.000 pro Stellplatz). Diese sind im Kaufpreis noch nicht inkludiert._

 

_Hier kommen Sie zur Übersicht der verfügbaren Doppelhäuser auf unserer Homepage ** Klick **._ [https://www.rinareal.at/wohnbauprojekt/15375202]

 

Für nähere Informationen, sowie für Ihren persönlichen Besichtigungstermin erreichen Sie mich am besten unter: +43 664 14 24 164 [tel:+436641424164] oder katharina@rinareal.at - Katharina Hlawaty, MA

_Die Angaben erfolgen aufgrund der Informationen und Unterlagen, die uns vom Eigentümer und/oder Dritten zur Verfügung gestellt wurden und sind ohne Gewähr. _

Wir weisen darauf hin, dass zwischen dem Vermittler und dem zu vermittelnden Dritten ein familiäres oder wirtschaftliches Naheverhältnis besteht.

Der Vermittler ist als Doppelmakler tätig.

Infrastruktur / Entfernungen

Gesundheit
Arzt <1.000m
Apotheke <4.000m
Klinik <5.500m
Krankenhaus <3.500m

Kinder & Schulen
Schule <1.500m
Kindergarten <1.000m
Universität <4.000m
Höhere Schule <5.500m

Nahversorgung
Supermarkt <500m
Bäckerei <3.000m
Einkaufszentrum <4.500m

Sonstige
Bank <1.500m
Geldautomat <4.000m
Post <1.000m
Polizei <4.000m

Verkehr
Bus <500m
Autobahnanschluss <1.500m
Bahnhof <1.000m

Angaben Entfernung Luftlinie / Quelle: OpenStreetMap

Merkmale

  • 2 Stellplätze: 2 Außen-Stellplätze
  • Gäste-WC
  • Balkon
  • Terrasse
  • Badezimmer: Badewanne, Bad mit Dusche, Bad mit Fenster
  • Bodenbelag: Fliesen, Parkett

Grundrisse

Grundrisse
1 / 3

Virtueller Rundgang

Video

Realisiere Dein Projekt

Bausubstanz und Energie

Heizwärmebedarf (HWB)

B

Gesamtenergieeffizienz (fGEE)

A+
  • Baujahr2025
  • Zustand der ImmobilieNeubau, Erstbezug
  • HeizungsartFußbodenheizung
  • EnergieträgerLuft-/Wasser-Wärmepumpe
Immowelt logo

Preisdetails

Kaufpreis
579000 €
5.105,37 €/m²
Provision für Käufer
3% des Kaufpreises zzgl. 20% USt.
Weitere Preisinformationen
2 Stellplätze

Lage

address-icon
Großhöflein (7051)
Großhöflein ist eine idyllische Marktgemeinde im Bezirk Eisenstadt-Umgebung im Burgenland. Eingebettet in die Hügellandschaft am Fuße des Leithagebirges verbindet der Ort ruhiges Wohnen im Grünen mit einer hervorragenden Anbindung an die Landeshauptstadt Eisenstadt, die in wenigen Fahrminuten erreichbar ist.

Dank der ausgezeichneten Verkehrsanbindung über die B50 sowie die Schnellstraße S31 und die A3 Richtung Wien ist Großhöflein sowohl mit dem Auto als auch mit öffentlichen Verkehrsmitteln schnell erreichbar. Der nahegelegene Bahnhof Müllendorf sorgt zusätzlich für eine bequeme Anbindung für Pendler.

Die Infrastruktur in der Marktgemeinde ist bestens ausgebaut. Nahversorger, Gastronomie, Kindergarten, Volksschule sowie zahlreiche Freizeit- und Sportmöglichkeiten stehen direkt vor Ort zur Verfügung. Weiterführende Schulen, medizinische Versorgung und ein vielfältiges Kulturangebot finden sich in unmittelbarer Nähe in Eisenstadt.

Großhöflein überzeugt zudem durch seine hohe Lebensqualität. Die umliegenden Weinberge, Rad- und Wanderwege laden zur Erholung in der Natur ein, während traditionelle Heurige für genussvollen Augenblicke sorgen.

Weitere Informationen

Stichworte Tiefgarage vorhanden, Süd-Balkon/Terrasse, Anzahl der Badezimmer: 2, Anzahl der separaten WCs: 3, Anzahl Balkone: 1, Anzahl Terrassen: 1, Balkon-Terrassen-Fläche: 21,46 m², Gartenfläche: 30,14 m², Bundesland: Burgenland

Weitere Services

Lust auf eine Besichtigung?
Eine Frage zur Immobilie?
Nachricht hinzufügen
Mit der Nutzung der oben angegebenen Telefonnummer oder durch Klicken auf „Kontaktieren“ akzeptierst Du die Allgemeinen Nutzungsbedingungen, denen Du jederzeit widersprechen kannst. Weitere Informationen zum Datenschutz

Über den Anbieter

Betriebsstraße II/ Objekt 3B, 2482 MÜNCHENDORF
partner badge
6 Jahre Partnerschaft
Frau Katharina HlawatyDein Kontakt
Online-ID: 2lg225r
Referenznummer: OBGC2025091520381844506ed3d8acd
RINAREAL Immobilien Entwicklungs- und Vermarktungsgesellschaft mbH
RINAREAL Immobilien Entwicklungs- und Vermarktungsgesellschaft mbH
Nachricht hinzufügen
Mit der Nutzung der oben angegebenen Telefonnummer oder durch Klicken auf „Kontaktieren“ akzeptierst Du die Allgemeinen Nutzungsbedingungen, denen Du jederzeit widersprechen kannst. Weitere Informationen zum Datenschutz
Wie zufrieden bist du mit dieser Seite (nicht mit der Immobilie selbst)?