+ architektonisch anspruchsvoll gestaltetes 4-geschossiges Bu?rogebäude mit integrierten Hallen + ökologisch wertvolles Gru?ndach (gute Dämmwirkung) + die Flächen liegen im 1. Obergeschoss mit gemeinschaftlichen Nebenflächen + alle Leitungsarten (EDV, Kommunikation, Strom, Ver- und Entsorgung) im Doppelboden verlegbar, soweit nicht schon vorhanden + Anzahl der Stellplätze können variabel dazugemietet werden. Pro Stellplatz beträgt die Miete 30 €/mtl. zzgl. NK und 19 % MwSt.
Die jeweilige Gesamtmiete wird zzgl. 19% MwSt. berechnet.
Merkmale
frei ab 01.06.2026
Personenaufzug
Bodenbelag: Teppich
+ Aufzug + Video-Überwachung der Eingangsbereiche + schlu?ssellose Zugangstechnik (Zugangskontrolle möglich) + EDV-Arbeitsplatz-gerechte Beleuchtung + Doppelboden mit ortsveränderbaren Bodentanks mit Steckdosen fu?r 240 V-Netz, EDV und Kommunikation, belegt mit hochwertigem Nadelfilz- Teppichboden + Sonnenschutz-Jalousien + das Gebäude ist an das öffentliche Glasfaser- Kommunikationsnetz angeschlossen (Highspeed-Internet + Wärmedämm-Fassade + verbrauchsabhängige und damit genaueste Nebenkostenabrechnung (Wasserzähler, Wärmemengenzähler und elektronische Heizkostenverteiler) + Stellplätze zur Anmietung vorhanden
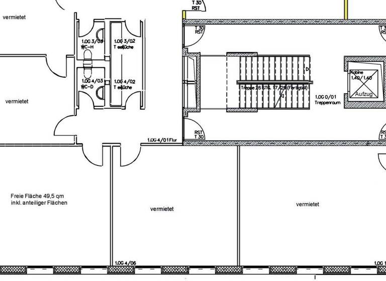
Grundrisse
Grundrisse
1 / 1
Realisiere Dein Projekt
Bausubstanz und Energie
Möchtest du Details zum Energieverbrauch?
Baujahr2003
Zustand der Immobilieneuwertig
Mietkosten
Warmmiete
705 €
Nettomiete
495 €
Nebenkosten
180 €
Heizkosten
in Warmmiete enthalten
Provision für Mieter
provisionsfrei
Kaution
2409.75 €2.409,75 €
Weitere Preisinformationen
Nettokaltmiete: 495,00 EUR
Lage
Hilden (40721)
Der Anbieter hat die genaue Adresse nicht freigegeben
+ in der Mitte des Städte-Dreiecks Du?sseldorf/Wuppertal/Köln in einem ruhigen Gewerbegebiet in Hilden in Innenstadt-Nähe gelegen + ca. 5 Fahrminuten zum Autobahnkreuz Hilden (A46/A3) + ca. 5 Fahrminuten zum Autobahnkreuz Du?sseldorf-Su?d (A46/A59) + öffentliche Verkehrsmittel ca. 5 Gehminuten + interessanter Mietermix (verschiedene Ingenieurbüros, Pflegedienst Vermögensberatung, Physiotherapeutische Praxis, Ergotherapeutische Praxis, Facility-Management-Unternehmen) + ca. 3 Fahrminuten von der Innenstadt
Weitere Informationen
Sonstiges
Alle Preise sind zzgl. 19% MwSt.
Kaution: 3-Bruttomonatsmieten inkl. 19% MwSt. Die Kaution erhöht sich bei der Anmietung von Stellplätzen entsprechend der Anzahl.
+weitere gegebenenfalls noch verfügbare Büroräume sind im vorgenannten Grundrissplan mit den dazugehörigen Mietpreisen gekennzeichnet + bei der hier angebotenen Bu?rofläche handelt es sich um einen Bu?roraum mit der Raum-Nr. 1.OG 4/07 des unter den Objektfotos zu findenden Grundrissplans (PDF-Datei) + in der angegebenen Fläche des Raums ist ein Flächenanteil Flur, Teeküche und WC enthalten + weitere gegebenenfalls noch verfu?gbare Bu?roräume sind im vorgenannten Grundrissplan mit den dazugehörigen Mietpreisen gekennzeichnet + der Flurbereich, die WC-Räume, sowie die Teeku?che, welche vollständig eingerichtet ist (Unterschränke, Ku?hlschrank, Mikrowelle, Spu?lmaschine), werden gemeinsam mit den Mietern der u?brigen Bu?roräume gemäß des vorgenannten Grundrissplans genutzt
Stichworte
Gesamtfläche: 49,50 m²