Version: 8.26.0Navigation überspringen
174.000 €
2 Zimmer  •  54 m²
Immowelt logo

Wohnung zum Kauf
174000 €
3.222 €/m²
2 Zimmer  •  54 m²

Charismatische 2-Zimmer-Dachgeschosswohnung in Stockach

Zum Verkauf steht die Dachgeschosswohnung Nr. 2a im Stockacher Stadtteil Hindelwangen.
Das Gebäude wurde im Jahr 1854 errichtet und im Jahr 2001 umfassend saniert.
Die Wohnung befindet sich im Dachgeschoss und vermittelt ein eigenständiges, ruhiges Wohngefühl, da sich keine weitere Wohneinheit darüber befindet – ein spürbarer Vorteil im täglichen Wohnkomfort.

Die 2-Zimmer-Wohnung verfügt über eine Wohnfläche von ca. 53,8 m². Die Raumaufteilung ist funktional, klar und gut nutzbar.
Die Wohnung steht leer und ist sofort bezugsbereit, ein direkter Bezug ist ohne Übergangszeit möglich.

Der offene Wohn- und Essbereich mit integrierter Küche bildet das Herzstück der Wohnung. Das verlegte Eichenholzparkett sorgt hier für eine warme, wohnliche Atmosphäre. Ein sichtbarer Holzpfeiler gliedert den Raum dezent und unterstreicht den individuellen Charakter der Wohnung.

Auch im geräumigen Schlafzimmer setzt sich der hochwertige Parkettboden fort und schafft ein ruhiges, wertiges Wohngefühl.
Das hell gehaltene Tageslichtbad ist über den Wohnbereich erreichbar und fügt sich funktional in den Grundriss ein.

Ergänzend besteht die Möglichkeit zur Nutzung der gemeinschaftlichen Gartenfläche. Zusätzlich stehen den Bewohnern eine gemeinschaftlich genutzte Waschküche zur Verfügung.
Die monatlichen Nebenkosten betragen ca. 250 €.

Highlight dieser Wohnung
Eichenholzparkett, sichtbarer Holzpfeiler und Dachgeschosslage – eine Kombination, die Charakter und Charisma erzeugt und sich deutlich von standardisierten Wohnungen abhebt.
Hier wirkt nichts beliebig, sondern bewusst erhalten und stimmig.

Das spricht für diese Wohnung
• Charismatische Dachgeschosslage
• 2 Zimmer auf ca. 53,8 m²
• Leerstehend und sofort bezugsbereit
• Offener Wohn-/Essbereich mit Eichenholzparkett
• Sichtbarer Holzpfeiler als gestalterisches Element
• Tageslichtbad
• Möglichkeit zur Gartennutzung
• Gemeinschaftliche Waschküche
• Lage in Stockach / Hindelwangen
• Nutzbarer Bestand, kein Sanierungsprojekt
• Separate Garage vorhanden

Merkmale

  • Bezug: Sofort
  • Dachgeschoss
  • Einbauküche
  • Garage
  • Garten
  • Badezimmer: Bad mit Dusche, Bad mit Fenster
  • Bodenbelag: Parkett

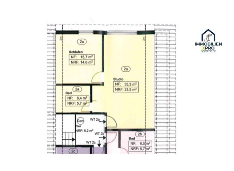
Grundrisse

Grundrisse
1 / 1

Bausubstanz und Energie

Energieausweis

D
  • Baujahr1854
  • HeizungsartEtagenheizung
  • EnergieträgerÖl
Immowelt logo

Preisdetails

Kaufpreis
174000 €
3.222,22 €/m²
Hausgeld
250 €
Provision für Käufer
Die vom Käufer zu zahlende Maklerprovision beträgt 2,38 % inkl. gesetzlicher Mehrwertsteuer.
Geschätzte Gesamtkosten
190.321 €1
Kaufpreis
174.000 €
Notarkosten (1,5%)
2.610 €
Grunderwerbsteuer (5%)
8.700 €
Provision für Käufer (2,38%)
4.141 €
Grundbucheintrag (0,5%)
870 €
1Der angezeigte Wert ist eine automatisch berechnete Schätzung von immowelt.
2Bei den Angaben handelt es sich um ortsübliche Werte. Individuelle Kosten können abweichen.

Lage

address-icon
HindelwangenStockach (78333)
Der Anbieter hat die genaue Adresse nicht freigegeben
Die Wohnung befindet sich in Stockach/Hindelwangen, einem gefragten und gewachsenen Stadtteil mit ruhigem Wohncharakter. Hindelwangen verbindet eine entspannte Wohnatmosphäre mit der Nähe zur Stockacher Innenstadt.
Einkaufsmöglichkeiten des täglichen Bedarfs, Schulen, Ärzte sowie öffentliche Einrichtungen sind gut erreichbar. Die Anbindung an den regionalen Verkehr sowie die Nähe zum Bodensee machen den Standort zusätzlich attraktiv.
Die Dachgeschosslage sorgt für zusätzliche Ruhe und ein abgeschirmtes Wohngefühl.

Weitere Informationen

Garage Zur Wohnung gehört eine separate Garage. Gerade in dieser Lage stellt eine Garage einen klaren Mehrwert dar – funktional wie wirtschaftlich. Sonstiges Sonstiges
Alle im Exposé genannten Angaben beruhen auf Informationen des Eigentümers.
Änderungen und Irrtum vorbehalten.
Eine Haftung unsererseits ist ausgeschlossen. Kontakt & Besichtigung Diese charismatische Dachgeschosswohnung eignet sich ideal für Käufer, die eine sofort bezugsbereite Immobilie mit Atmosphäre und Substanz suchen.
Gerne stellen wir Ihnen weitere Informationen zur Verfügung

Weitere Services

Lust auf eine Besichtigung?
Eine Frage zur Immobilie?
Nachricht hinzufügen
Mit der Nutzung der oben angegebenen Telefonnummer oder durch Klicken auf „Kontaktieren“ akzeptierst Du die Allgemeinen Nutzungsbedingungen, denen Du jederzeit widersprechen kannst. Weitere Informationen zum Datenschutz

Über den Anbieter

Pommerschestraße 21, 78224 Singen
partner badge
Partnerschaft
Herr Sükrü Turan
Herr Sükrü TuranDein Kontakt
Online-ID: 26JMG1XFL92Y
Wie zufrieden bist du mit dieser Seite (nicht mit der Immobilie selbst)?