Version: 8.22.4Navigation überspringen
IM Lifestyle Properties GmbH
1.800.000 €
7 Zimmer  •  264,2 m²  •  995 m² Grundstück

Einfamilienhaus zum Kauf
1800000 €
6.813 €/m²
7 Zimmer  •  264,2 m²  •  995 m² Grundstück

Charmante Villa mit idyllischem Garten

_Im Falle der Notwendigkeit einer Fremdfinanzierung Ihrer Wunschimmobilie ermittelt unser Wohnbau-Finanzierungsexperte gerne die optimale Finanzierungslösung und findet das passende Zins- und Konditionsangebot für Sie. Er vergleicht die aktuellen Angebote aller relevanten Banken und Bausparkassen. Der Angebotsvergleich kann aus einem Portfolio von über 120 Banken erfolgen. Das Erstgespräch ist für Sie kostenfrei und unverbindlich, gerne auch bei Ihnen vor Ort. So sparen Sie Ihre wertvolle Zeit und erhalten eine professionelle und unabhängige Finanzierungslösung vom Spezialisten. Sprechen Sie uns wegen eines Termins gerne an!_

 

Zum Verkauf gelangt eine traumhafte Villa in Mauer nahe dem Lainzer Tiergarten.

Die einzigartige Villa mit einer Wohnfläche von ca. 262 m2 befindet sich auf einem Grundstück von knapp 995 m2. Diese stilvolle Villa wurde 2011 erbaut. Aufgrund der Größe und der Vielzahl an Zimmer bietet dieses Objekt die Möglichkeit alle Wohnträume zu verwirklichen. Ebenso gibt es mehrere Balkone und Terrassen, sowie einen großen Garten. Die Räumlichkeiten teilen sich auf in zwei Regelgeschoße. Beim Bau der Villa wurde auf sehr auf Qualität geachtet. Beheizt wird das Haus mittels einer Gasetagenheizung und Fußbodenheizung. Zusätzlich bietet Ihnen diese Immobilie eine praktische Garage.

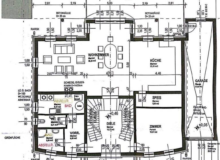
Beim Betreten der Villa gelangen Sie in das Erdgeschoß und einen einladenden Vorraum, welcher Sie in die Räumlichkeiten dieser Etage führt. Zunächst befindet sich rechterhand ein helles ca. 19 m² großes Arbeitszimmer, welches aber auch wunderbar als Gästezimmer genutzt werden kann. Direkt gegenüber befindet sich ein kleiner Vorraum, der Sie zu dem ersten Badezimmer, einem separatem WC und einem Abstellraum führt. Gegenüber der Eingangstüre gelangen Sie in den geräumigen und großzügigen Wohnessbereich, welcher mit einer Größe von knapp 56 m2 besticht. Hier befindet sich außerdem die ca. 23 m2 große offene Küche. Der Wohnbereich bietet ausreichend Platz für einen einladenden Esstisch und ein großes gemütliches Sofa. Von hier aus gelangen Sie auf die knapp 46 m2 große Terrasse, welche Sie auch in den eigenen und ruhigen Garten führt.

Über den Eingangsbereich gelangt man in die obere Etage, welche sich in vier Zimmer, einen Technikraum und zwei Badezimmer aufteilt. Der Flur bringt Sie zentral in alle Räumlichkeiten. Ein traumhafter ca. 16 m² großer Balkon, welcher über den Garten blickt, befindet sich ebenfalls auf dieser Etage. Zwei kleinere ca. 7 m² große Balkone liegen auf der gegenüberliegenden Seite des Hauses.
Über eine ausziehbare Dachbodentreppe erreichen Sie den großzügigen Dachboden.

Ein Nebengebäude mit einer Nutzfläche von ca. 41 m² befindet sich ebenfalls auf dem Grundstück.

Die Lage der Immobilie kann als sehr gut bewertet werden. Diverse Geschäfte des täglichen Bedarfs finden Sie in der unmittelbaren Umgebung vor. Die Anbindung an den öffentlichen Verkehr ist über die Straßenbahnlinie 60, sowie die Buslinie 56A, 60A und N60, N61 befinden sich nur wenige Gehminuten entfernt. Mit dem Auto gelangen Sie in ca. 25 Minuten in die Wiener Innenstadt.
Der nahe gelegene Lainzer Tiergarten, aber auch der Schlosspark Schönbrunn laden zu langen und ausgiebigen Spaziergängen an der frischen Luft ein.  

Für nähere Informationen zur Infrastruktur, fordern Sie bitte unser Exposé an.

Überzeugen Sie sich selbst von dieser attraktiven Immobilie.

Für Besichtigungen und nähere Informationen stehen wir Ihnen gerne zur Verfügung!

Mag. Viola Wasmuth
national - Tel: 0670 4039361 [tel:06704039361]
international - Tel: +43 670 4039361 [/+436704039361]
e-mail: wasmuth@lifestyle-properties.at

 

 

Wir weisen darauf hin, dass zwischen dem Vermittler und dem zu vermittelnden Dritten ein familiäres oder wirtschaftliches Naheverhältnis besteht.

Der Vermittler ist als Doppelmakler tätig.

 

 

Infrastruktur / Entfernungen

Gesundheit
Arzt <500m
Apotheke <500m
Klinik <2.000m
Krankenhaus <1.500m

Kinder & Schulen
Schule <500m
Kindergarten <500m
Universität <3.500m
Höhere Schule <5.500m

Nahversorgung
Supermarkt <500m
Bäckerei <500m
Einkaufszentrum <2.000m

Sonstige
Geldautomat <500m
Bank <500m
Post <500m
Polizei <2.500m

Verkehr
Bus <500m
U-Bahn <3.500m
Straßenbahn <500m
Bahnhof <2.000m
Autobahnanschluss <4.000m

Angaben Entfernung Luftlinie / Quelle: OpenStreetMap

Merkmale

  • 995 m² Grundstück
  • offene Küche
  • Garage
  • Gäste-WC
  • Balkon
  • Terrasse
  • Badezimmer: Badewanne, Bad mit Dusche, Bad mit Fenster
  • Bodenbelag: Marmor, Parkett

Grundrisse

Grundrisse
1 / 3

Realisiere Dein Projekt

Bausubstanz und Energie

Der Anbieter hat keine Informationen zum Energieverbrauch bereit gestellt.
  • Baujahr2011
  • Zustand der ImmobilieNeubau, Massivhaus
  • HeizungsartEtagenheizung: Fußbodenheizung
  • EnergieträgerGas

Preisdetails

Kaufpreis
1800000 €
6.812,76 €/m²
Provision für Käufer
3% des Kaufpreises zzgl. 20% USt.
Weitere Preisinformationen
1 Garagenstellplatz

Lage

address-icon
Wien (1230)

Weitere Informationen

Stichworte Garage vorhanden, Anzahl der Badezimmer: 3, Anzahl der separaten WCs: 2, Anzahl Balkone: 3, Anzahl Terrassen: 1, Balkon-Terrassen-Fläche: 73,54 m², Bundesland: Wien, 2 Etagen

Weitere Services

Lust auf eine Besichtigung?
Eine Frage zur Immobilie?
Nachricht hinzufügen
Mit der Nutzung der oben angegebenen Telefonnummer oder durch Klicken auf „Kontaktieren“ akzeptierst Du die Allgemeinen Nutzungsbedingungen, denen Du jederzeit widersprechen kannst. Weitere Informationen zum Datenschutz

Über den Anbieter

Stock-im-Eisen-Platz 3/26, 1010 WIEN
Frau Viola WasmuthDein Kontakt
Online-ID: 2m6nh5r
Referenznummer: OBGC202405131401107526548edccf1
IM Lifestyle Properties GmbH
IM Lifestyle Properties GmbH
Nachricht hinzufügen
Mit der Nutzung der oben angegebenen Telefonnummer oder durch Klicken auf „Kontaktieren“ akzeptierst Du die Allgemeinen Nutzungsbedingungen, denen Du jederzeit widersprechen kannst. Weitere Informationen zum Datenschutz
Wie zufrieden bist du mit dieser Seite (nicht mit der Immobilie selbst)?