




1 / 9



1 / 9

Wohnung zum Kauf • provisionsfrei216720 €216.720 €3.900 €/m²2,5 Zimmer • 55,6 m² • 1. Geschoss
216720 €216.720 €
3.900 €/m²
2,5 Zimmer • 55,6 m² • 1. Geschoss
Wohnen mit Service - Neubauwohnung in der Tagespflege
WOHNEN mit SERVICE
Dieses Neubauprojekt in Oberdachstetten bietet Ihnen die Möglichkeit, eine zukunftssichere, barrierefreie Neubauwohnung zu erwerben, die speziell auf die Bedürfnisse des modernen Wohnens mit Service zugeschnitten ist.
Mit effizienten KfW 40 Standard umfasst insgesamt 12 Wohnungen, die sich durch eine durchdachte Architektur und erstklassiger Bauqualität auszeichnen.
Regenerative Energieträger wie eine Photovoltaik-Anlage mit Speicher, die Nahwärmeversorgung oder die Lüftungsanlage mit Wärmerückgewinnung sind die Wohnungen als zukunftssicher und unabhängig zu bezeichnen.
Die Einheiten bieten eine attraktive Auswahl an 1-Zimmer- und 2,5-Zimmer Wohnungen.
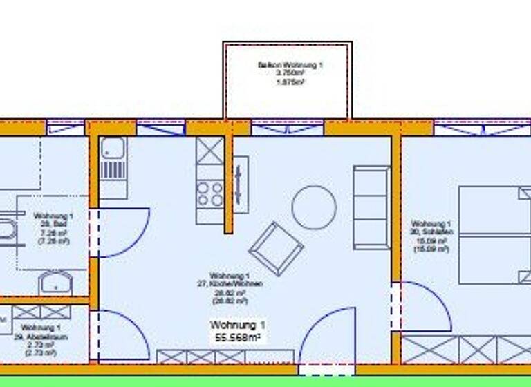
Die projektierten Einheiten vereinen modernen Wohnkomfort mit funktionalen Serviceleistungen, die das Leben angenehm und sicher machen. Die angebotene Etagenwohnung umfasst eine Wohnfläche von ca. 55,57 m² und überzeugt mit einer klar strukturierten Raumaufteilung.
Das Herzstück der Wohnung ist der großzügige, lichtdurchflutete Wohn- und Essbereich, welcher durch den direkten Zugang zum Balkon Raum für entspannte Stunden im Freien schafft. Große Fensterflächen sorgen für eine angenehme Tageslichtatmosphäre und ein offenes Raumgefühl.
Die Küche ist offen in den Wohnbereich integriert und lässt individuelle Gestaltungsmöglichkeiten zu.
Das Schlafzimmer bietet ausreichend Platz für erholsame Nächte und ist aufgrund der barrierefreien Bauweise optimal erreichbar und nutzbar, ebenso wie das moderne Badezimmer mit ebenerdiger Dusche. Hochwertige Materialien sorgen hier für eine angenehme Haptik und pflegeleichte Oberflächen.
Besondere Aufmerksamkeit wurde auf die Zugänglichkeit und Alltagstauglichkeit gelegt: Ein Aufzug verbindet sämtliche Etagen, sodass die Wohnung vollständig barrierefrei erreichbar ist. Die gesamte Bauweise ist seniorengerecht konzipiert. Optional stehen Ihnen PKW-Stellplätze zur Verfügung. Alle Wohneinheiten erhalten zusätzlichen Stauraum in den Fahrradboxen.
Der Servicecharakter des Gebäudes ist ein zentrales Element dieses Neubauprojekts: Ein Hausnotrufsystem ist das ganze Jahr über rund um die Uhr aktiv, sodass Sie sich auf schnelle Hilfe im Bedarfsfall verlassen können. Ein professionelles Pflegepersonal und Hausverwaltung stehen ebenfalls bereit. Weiterhin wird ein Verpflegungsangebot für die Bewohner organisiert.
Zudem ist bereits die Entwicklung einer Nahversorgung im Gewerbegebiet in Oberdachstetten in Planung.
Das Gesamtpaket dieser Wohnung besticht durch umfassende Serviceleistungen, eine zeitgemäße, barrierefreie Neubauqualität und die ruhige, dennoch gut angebundene Lage.
Hausnotruf - 365 Tage im Jahr
Ein Knopfdruck genügt, und Sie erhalten innerhalb kürzester Zeit Unterstützung - durch Nachbarn, Angehörige, Ihren Pflegedienst / Rettungsdienst.
Flexible Verpflegungsangebote
Für Ihr leibliches Wohl ist gesorgt: Es stehen verschiedene Essensoptionen zur Verfügung - frisch gekochte Mahlzeiten bis hin zu vorbereiteten Gerichten zum Aufwärmen.
Komplette Hausverwaltung
Reparaturen, Wartungen und alltägliche Anliegen.
Pflegepersonal in unmittelbarer Nähe
Durch die angeschlossene Tagespflege ist während der Öffnungszeiten fachkundiges Pflegepersonal vor Ort.
Bürgerbus für Ihre Mobilität
Unser Bürgerbus bringt Sie sicher und bequem zu Einkäufen und Arztbesuchen.
Aktives Dorfleben
Zahlreiche Seniorennachmittage im Ort bieten Gelegenheit für Begegnung, Unterhaltung und Gemeinschaft.
Barrierefreie Anbindung
Der Bahnhof in Oberdachstetten ist barrierefrei und nur rund 200 Meter von Ihrer Wohnung entfernt.
Ebenso in Planung ist eine Nahversorgung direkt vor Ort. Ein Supermarkte sowie eine Arztpraxis.
Ein Baubeginn ist in 2026 vorgesehen.
Haben wir Ihre Neugier geweckt? Vereinbaren Sie jetzt einen Beratungstermin mit uns.
Dieses Neubauprojekt in Oberdachstetten bietet Ihnen die Möglichkeit, eine zukunftssichere, barrierefreie Neubauwohnung zu erwerben, die speziell auf die Bedürfnisse des modernen Wohnens mit Service zugeschnitten ist.
Mit effizienten KfW 40 Standard umfasst insgesamt 12 Wohnungen, die sich durch eine durchdachte Architektur und erstklassiger Bauqualität auszeichnen.
Regenerative Energieträger wie eine Photovoltaik-Anlage mit Speicher, die Nahwärmeversorgung oder die Lüftungsanlage mit Wärmerückgewinnung sind die Wohnungen als zukunftssicher und unabhängig zu bezeichnen.
Die Einheiten bieten eine attraktive Auswahl an 1-Zimmer- und 2,5-Zimmer Wohnungen.
Die projektierten Einheiten vereinen modernen Wohnkomfort mit funktionalen Serviceleistungen, die das Leben angenehm und sicher machen. Die angebotene Etagenwohnung umfasst eine Wohnfläche von ca. 55,57 m² und überzeugt mit einer klar strukturierten Raumaufteilung.
Das Herzstück der Wohnung ist der großzügige, lichtdurchflutete Wohn- und Essbereich, welcher durch den direkten Zugang zum Balkon Raum für entspannte Stunden im Freien schafft. Große Fensterflächen sorgen für eine angenehme Tageslichtatmosphäre und ein offenes Raumgefühl.
Die Küche ist offen in den Wohnbereich integriert und lässt individuelle Gestaltungsmöglichkeiten zu.
Das Schlafzimmer bietet ausreichend Platz für erholsame Nächte und ist aufgrund der barrierefreien Bauweise optimal erreichbar und nutzbar, ebenso wie das moderne Badezimmer mit ebenerdiger Dusche. Hochwertige Materialien sorgen hier für eine angenehme Haptik und pflegeleichte Oberflächen.
Besondere Aufmerksamkeit wurde auf die Zugänglichkeit und Alltagstauglichkeit gelegt: Ein Aufzug verbindet sämtliche Etagen, sodass die Wohnung vollständig barrierefrei erreichbar ist. Die gesamte Bauweise ist seniorengerecht konzipiert. Optional stehen Ihnen PKW-Stellplätze zur Verfügung. Alle Wohneinheiten erhalten zusätzlichen Stauraum in den Fahrradboxen.
Der Servicecharakter des Gebäudes ist ein zentrales Element dieses Neubauprojekts: Ein Hausnotrufsystem ist das ganze Jahr über rund um die Uhr aktiv, sodass Sie sich auf schnelle Hilfe im Bedarfsfall verlassen können. Ein professionelles Pflegepersonal und Hausverwaltung stehen ebenfalls bereit. Weiterhin wird ein Verpflegungsangebot für die Bewohner organisiert.
Zudem ist bereits die Entwicklung einer Nahversorgung im Gewerbegebiet in Oberdachstetten in Planung.
Das Gesamtpaket dieser Wohnung besticht durch umfassende Serviceleistungen, eine zeitgemäße, barrierefreie Neubauqualität und die ruhige, dennoch gut angebundene Lage.
Hausnotruf - 365 Tage im Jahr
Ein Knopfdruck genügt, und Sie erhalten innerhalb kürzester Zeit Unterstützung - durch Nachbarn, Angehörige, Ihren Pflegedienst / Rettungsdienst.
Flexible Verpflegungsangebote
Für Ihr leibliches Wohl ist gesorgt: Es stehen verschiedene Essensoptionen zur Verfügung - frisch gekochte Mahlzeiten bis hin zu vorbereiteten Gerichten zum Aufwärmen.
Komplette Hausverwaltung
Reparaturen, Wartungen und alltägliche Anliegen.
Pflegepersonal in unmittelbarer Nähe
Durch die angeschlossene Tagespflege ist während der Öffnungszeiten fachkundiges Pflegepersonal vor Ort.
Bürgerbus für Ihre Mobilität
Unser Bürgerbus bringt Sie sicher und bequem zu Einkäufen und Arztbesuchen.
Aktives Dorfleben
Zahlreiche Seniorennachmittage im Ort bieten Gelegenheit für Begegnung, Unterhaltung und Gemeinschaft.
Barrierefreie Anbindung
Der Bahnhof in Oberdachstetten ist barrierefrei und nur rund 200 Meter von Ihrer Wohnung entfernt.
Ebenso in Planung ist eine Nahversorgung direkt vor Ort. Ein Supermarkte sowie eine Arztpraxis.
Ein Baubeginn ist in 2026 vorgesehen.
Haben wir Ihre Neugier geweckt? Vereinbaren Sie jetzt einen Beratungstermin mit uns.
Merkmale
- 1. Geschoss
- Barrierefrei
- Personenaufzug
- Kelleranteil
- Balkon
- Garten
- Außen-Stellplatz
- Betreutes Wohnen
Wohnen mit Service:
Hausnotruf - 365 Tage im Jahr
Sicherheit steht an erster Stelle: Mit unserem Hausnotruf sind Sie rund um die Uhr bestens versorgt.
Ein Knopfdruck genügt, und Sie erhalten innerhalb kürzester Zeit Unterstützung - sei es durch Nachbarn, Angehörige, Ihren Pflegedienst oder den Rettungsdienst.
Flexible Verpflegungsangebote
Für Ihr leibliches Wohl ist gesorgt: Es stehen verschiedene Essensoptionen zur Verfügung - von frisch gekochten Mahlzeiten bis hin zu vorbereiteten Gerichten zum Aufwärmen.
So haben Sie stets die Möglichkeit, eine passende Versorgung zu wählen. (Kommt drauf an, wer uns zukünftig beliefert)
Komplette Hausverwaltung
Um Reparaturen, Wartungen und alltägliche Anliegen müssen Sie sich nicht kümmern - die ortsansässige Hausverwaltung steht Ihnen zuverlässig zur Seite.
Pflegepersonal in unmittelbarer Nähe
Durch die angeschlossene Tagespflege ist während der Öffnungszeiten fachkundiges Pflegepersonal vor Ort, das bei Bedarf für die Bewohner der Wohnungen ansprechbar ist.
Bürgerbus für Ihre Mobilität
Unser Bürgerbus bringt Sie sicher und bequem zu Einkäufen, Arztbesuchen oder anderen Terminen.
Neben Fahrten im Ort werden auch überregionale Ziele angefahren - von Montag bis Freitag zwischen 08:00 und 17:00 Uhr.
Aktives Dorfleben
Zahlreiche Seniorennachmittage im Ort bieten Gelegenheit für Begegnung, Unterhaltung und Gemeinschaft.
Barrierefreie Anbindung
Der Bahnhof in Oberdachstetten ist barrierefrei und nur rund 200 Meter von Ihrer Wohnung entfernt - so bleiben Sie auch überregional mobil.
Ebenso in Planung ist eine Nahversorgung direkt vor Ort.
Geplant wird der Bau eines Supermarktes sowie einer Arztpraxis in Oberdachstetten. Damit werden wichtige Einrichtungen des täglichen Lebens direkt in Ihrer Nähe verfügbar sein.
Hausnotruf - 365 Tage im Jahr
Sicherheit steht an erster Stelle: Mit unserem Hausnotruf sind Sie rund um die Uhr bestens versorgt.
Ein Knopfdruck genügt, und Sie erhalten innerhalb kürzester Zeit Unterstützung - sei es durch Nachbarn, Angehörige, Ihren Pflegedienst oder den Rettungsdienst.
Flexible Verpflegungsangebote
Für Ihr leibliches Wohl ist gesorgt: Es stehen verschiedene Essensoptionen zur Verfügung - von frisch gekochten Mahlzeiten bis hin zu vorbereiteten Gerichten zum Aufwärmen.
So haben Sie stets die Möglichkeit, eine passende Versorgung zu wählen. (Kommt drauf an, wer uns zukünftig beliefert)
Komplette Hausverwaltung
Um Reparaturen, Wartungen und alltägliche Anliegen müssen Sie sich nicht kümmern - die ortsansässige Hausverwaltung steht Ihnen zuverlässig zur Seite.
Pflegepersonal in unmittelbarer Nähe
Durch die angeschlossene Tagespflege ist während der Öffnungszeiten fachkundiges Pflegepersonal vor Ort, das bei Bedarf für die Bewohner der Wohnungen ansprechbar ist.
Bürgerbus für Ihre Mobilität
Unser Bürgerbus bringt Sie sicher und bequem zu Einkäufen, Arztbesuchen oder anderen Terminen.
Neben Fahrten im Ort werden auch überregionale Ziele angefahren - von Montag bis Freitag zwischen 08:00 und 17:00 Uhr.
Aktives Dorfleben
Zahlreiche Seniorennachmittage im Ort bieten Gelegenheit für Begegnung, Unterhaltung und Gemeinschaft.
Barrierefreie Anbindung
Der Bahnhof in Oberdachstetten ist barrierefrei und nur rund 200 Meter von Ihrer Wohnung entfernt - so bleiben Sie auch überregional mobil.
Ebenso in Planung ist eine Nahversorgung direkt vor Ort.
Geplant wird der Bau eines Supermarktes sowie einer Arztpraxis in Oberdachstetten. Damit werden wichtige Einrichtungen des täglichen Lebens direkt in Ihrer Nähe verfügbar sein.
Grundrisse
Grundrisse
1 / 1
Realisiere Dein Projekt
Bausubstanz und Energie
Energieausweis
A+
- Baujahr2025
- Zustand der ImmobilieHolzhaus, Projektiert
- EnergieträgerLuft-/Wasser-Wärmepumpe
Preisdetails
Kaufpreis
216720 €216.720 €
3.899,95 €/m²
Preis pro Stellplatz
7500 €7.500 €
Provision für Käufer
provisionsfrei
Weitere Preisinformationen
1 Stellplatz, Kaufpreis: 7.500,00 EUR
Geschätzte Gesamtkosten
228.640 €1
Kaufpreis
216.720 €
Kaufnebenkosten
11.920 €
2Notarkosten (1,5%)
3.251 €
Grunderwerbsteuer (3,5%)
7.585 €
Grundbucheintrag (0,5%)
1.084 €
1Der angezeigte Wert ist eine automatisch berechnete Schätzung von immowelt.
2Bei den Angaben handelt es sich um ortsübliche Werte. Individuelle Kosten können abweichen.
Lage

Oberdachstetten (91617)
Der Anbieter hat die genaue Adresse nicht freigegeben
Oberdachstetten liegt am nördlichen Rand des Landkreises Ansbach im Regierungsbezirk Mittelfranken, wo sich B13 und die "Hochstraße", der alte Handelsweg von Rothenburg o.d.T. nach Nürnberg, kreuzen. Aufgrund dieser verkehrsgünstigen Lage sind von Oberdachstetten aus die weiteren Sehenswürdigkeiten des Naturparks Frankenhöhe und der Städte Rothenburg o.d.T., Bad Windsheim und Ansbach gut zu erreichen.
Verkehrsgünstig unmittelbar an der B13 (Würzburg - München) gelegen, sind von Oberdachstetten aus die nächstgrößeren Städte gut zu erreichen (Nürnberg 55 km, Würzburg 59 km, Ansbach 18 km, Rothenburg o.d.T. 23 km - nächste BAB-Auffahrt (Bad Windsheim, A7) 15 km)
Oberdachstettens Bahnhof liegt an der DB-Hauptstrecke Würzburg - München mit täglich jeweils über 20 Zügen von und nach Ansbach (11 Minuten) und Würzburg (50 Minuten). Vom Bahnhof fahren auch die Buslinien nach Ansbach und Rothenburg o.d.T. ab.
Zur Deckung des täglichen Bedarfs sind Bäcker und Metzger vorhanden. Die Praxiseröffnung eines Allgemeinarztes ist naher Zukunft geplant. Oberdachstetten verfügt über eine Kindertagesstätte und eine Kinderkrippe und eine Grundschule. Weiterführende Schulen befinden sich in Lehrberg und Ansbach.
Oberdachstetten bietet zahlreiche Freizeitmöglichkeiten wie zahlreiche Rad- und Wanderwege, einen Badeweiher mit Jugendzeltplatz und pflegt ein vielfältiges Vereinsleben wie z. B. Gesangs- und Schützenverein, Posaunenchor und Fußballclub
Verkehrsgünstig unmittelbar an der B13 (Würzburg - München) gelegen, sind von Oberdachstetten aus die nächstgrößeren Städte gut zu erreichen (Nürnberg 55 km, Würzburg 59 km, Ansbach 18 km, Rothenburg o.d.T. 23 km - nächste BAB-Auffahrt (Bad Windsheim, A7) 15 km)
Oberdachstettens Bahnhof liegt an der DB-Hauptstrecke Würzburg - München mit täglich jeweils über 20 Zügen von und nach Ansbach (11 Minuten) und Würzburg (50 Minuten). Vom Bahnhof fahren auch die Buslinien nach Ansbach und Rothenburg o.d.T. ab.
Zur Deckung des täglichen Bedarfs sind Bäcker und Metzger vorhanden. Die Praxiseröffnung eines Allgemeinarztes ist naher Zukunft geplant. Oberdachstetten verfügt über eine Kindertagesstätte und eine Kinderkrippe und eine Grundschule. Weiterführende Schulen befinden sich in Lehrberg und Ansbach.
Oberdachstetten bietet zahlreiche Freizeitmöglichkeiten wie zahlreiche Rad- und Wanderwege, einen Badeweiher mit Jugendzeltplatz und pflegt ein vielfältiges Vereinsleben wie z. B. Gesangs- und Schützenverein, Posaunenchor und Fußballclub
Weitere Informationen
Sonstiges
Es liegt ein Energieverbrauchsausweis vor.
Dieser ist gültig bis 20.8.2035.
Endenergieverbrauch beträgt 9.90 kwh/(m²*a).
Wesentlicher Energieträger der Heizung ist Luft/wasser Wärmepumpe.
Das Baujahr des Objekts lt. Energieausweis ist 2025.
Die Energieeffizienzklasse ist A+.
GELDWÄSCHE: Als Immobilienmaklerunternehmen ist die von Poll Immobilien GmbH nach § 2 Abs. 1 Nr. 14 und § 11 Abs. 1, 2 Geldwäschegesetz (GwG) dazu verpflichtet, bei der Begründung einer Geschäftsbeziehung die Identität des Vertragspartners festzustellen und zu überprüfen, bzw. sobald ein ernsthaftes Interesse an der Durchführung des Immobilienkaufvertrages besteht. Hierzu ist es erforderlich, dass wir nach § 11 Abs. 4 GwG die relevanten Daten Ihres Personalausweises festhalten (wenn Sie als natürliche Person handeln) - beispielsweise mittels einer Kopie. Bei einer juristischen Person benötigen wir eine Kopie des Handelsregisterauszugs, aus welchem der wirtschaftlich Berechtigte hervorgeht. Das Geldwäschegesetz sieht vor, dass der Makler die Kopien bzw. Unterlagen fünf Jahre aufbewahren muss. Als unser Vertragspartner haben Sie auch eine Mitwirkungspflicht nach § 11 Abs. 6 GwG.
HAFTUNG: Wir weisen darauf hin, dass die von uns weitergegebenen Objektinformationen, Unterlagen, Pläne etc. vom Verkäufer bzw. Vermieter stammen. Eine Haftung für die Richtigkeit oder Vollständigkeit der Angaben übernehmen wir daher nicht. Es obliegt daher unseren Kunden, die darin enthaltenen Objektinformationen und Angaben auf ihre Richtigkeit hin zu überprüfen. Alle Immobilienangebote sind freibleibend und vorbehaltlich Irrtümer, Zwischenverkauf- und Vermietung oder sonstiger Zwischenverwertung.
UNSER SERVICE FÜR SIE ALS EIGENTÜMER:
Planen Sie den Verkauf oder die Vermietung Ihrer Immobilie, so ist es für Sie wichtig, deren Marktwert zu kennen. Lassen Sie kostenfrei und unverbindlich den aktuellen Wert Ihrer Immobilie professionell durch einen unserer Immobilienspezialisten einschätzen. Unser bundesweites und internationales Netzwerk ermöglicht es uns, Verkäufer bzw. Vermieter und Interessenten bestmöglich zusammenzuführen. Stichworte Anzahl der Schlafzimmer: 1, Anzahl der Badezimmer: 1, Anzahl Balkone: 1, Bundesland: Bayern, 3 Etagen Sonstiges/Wohnen: seniorengerechtes Wohnen
Dieser ist gültig bis 20.8.2035.
Endenergieverbrauch beträgt 9.90 kwh/(m²*a).
Wesentlicher Energieträger der Heizung ist Luft/wasser Wärmepumpe.
Das Baujahr des Objekts lt. Energieausweis ist 2025.
Die Energieeffizienzklasse ist A+.
GELDWÄSCHE: Als Immobilienmaklerunternehmen ist die von Poll Immobilien GmbH nach § 2 Abs. 1 Nr. 14 und § 11 Abs. 1, 2 Geldwäschegesetz (GwG) dazu verpflichtet, bei der Begründung einer Geschäftsbeziehung die Identität des Vertragspartners festzustellen und zu überprüfen, bzw. sobald ein ernsthaftes Interesse an der Durchführung des Immobilienkaufvertrages besteht. Hierzu ist es erforderlich, dass wir nach § 11 Abs. 4 GwG die relevanten Daten Ihres Personalausweises festhalten (wenn Sie als natürliche Person handeln) - beispielsweise mittels einer Kopie. Bei einer juristischen Person benötigen wir eine Kopie des Handelsregisterauszugs, aus welchem der wirtschaftlich Berechtigte hervorgeht. Das Geldwäschegesetz sieht vor, dass der Makler die Kopien bzw. Unterlagen fünf Jahre aufbewahren muss. Als unser Vertragspartner haben Sie auch eine Mitwirkungspflicht nach § 11 Abs. 6 GwG.
HAFTUNG: Wir weisen darauf hin, dass die von uns weitergegebenen Objektinformationen, Unterlagen, Pläne etc. vom Verkäufer bzw. Vermieter stammen. Eine Haftung für die Richtigkeit oder Vollständigkeit der Angaben übernehmen wir daher nicht. Es obliegt daher unseren Kunden, die darin enthaltenen Objektinformationen und Angaben auf ihre Richtigkeit hin zu überprüfen. Alle Immobilienangebote sind freibleibend und vorbehaltlich Irrtümer, Zwischenverkauf- und Vermietung oder sonstiger Zwischenverwertung.
UNSER SERVICE FÜR SIE ALS EIGENTÜMER:
Planen Sie den Verkauf oder die Vermietung Ihrer Immobilie, so ist es für Sie wichtig, deren Marktwert zu kennen. Lassen Sie kostenfrei und unverbindlich den aktuellen Wert Ihrer Immobilie professionell durch einen unserer Immobilienspezialisten einschätzen. Unser bundesweites und internationales Netzwerk ermöglicht es uns, Verkäufer bzw. Vermieter und Interessenten bestmöglich zusammenzuführen. Stichworte Anzahl der Schlafzimmer: 1, Anzahl der Badezimmer: 1, Anzahl Balkone: 1, Bundesland: Bayern, 3 Etagen Sonstiges/Wohnen: seniorengerechtes Wohnen
Weitere Services
Lust auf eine Besichtigung?
Eine Frage zur Immobilie?
Über den Anbieter
Karlstraße 9, 91522 Ansbach
Partnerschaft
Firma VON POLL IMMOBILIEN Shop AnsbachDein Kontakt
Online-ID: 25IC4X3TUV18
Referenznummer: 25208754

VON POLL IMMOBILIEN Ansbach - Wittmann Real Estate GmbH
4,8/5Bewertung: 4,8 von 5 Sternen
Wie zufrieden bist du mit dieser Seite (nicht mit der Immobilie selbst)?