Hier ist Ihre Traumimmobilie am Stadtrand von Bernburg!
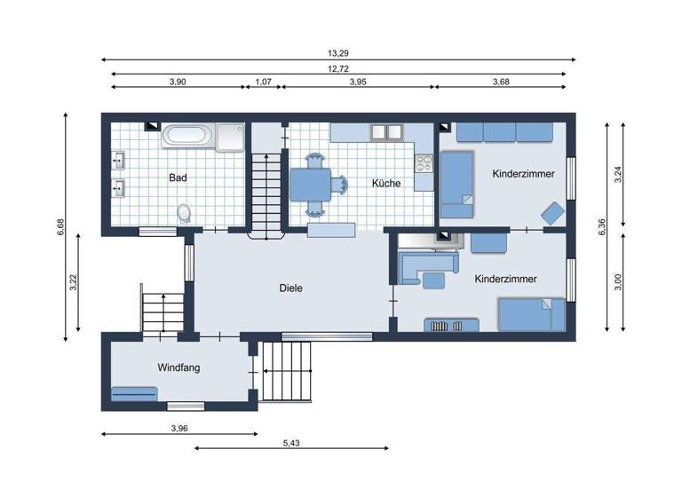
Diese gepflegte Doppelhaushälfte in klassischer Massivbauweise aus dem Jahr 1932 und Erweiterungsbau im Jahr 1986 vereint den besonderen Charme vergangener Jahrzehnte mit den Annehmlichkeiten eines gut instand gehaltenen Wohnhauses. Auf einer großzügigen Wohnfläche von rund 136 m², verteilt auf eineinhalb Etagen und insgesamt sechs Zimmern, bietet dieses Objekt ideale Voraussetzungen für Familien, die Platz zum Wohnen, Arbeiten und Entfalten suchen. Die Doppelhaushälfte ernöglicht vielfältige Nutzungsmöglichkeiten. Ob Kinderzimmer, Schlafzimmer, großer offener Wohnbereich oder ein separates Arbeitszimmer für das Home Office - die Raumaufteilung lässt sich flexibel an die individuellen Bedürfnisse Ihrer Familie anpassen. Das Badezimmer ist mit einer ebenerdigen, bodengleichen Dusche ausgestattet, die sowohl modernen Komfort als auch Barrierefreiheit gewährleistet. Badmöbel und Einbauschränke sorgen für ein aufgeräumtes Erscheinungsbild, während ein Handtuchheizkörper für wohlige Wärme nach dem Duschen sorgt. Die Bodenbeläge im Haus variieren je nach Raum und umfassen Fliesen, Laminat, Vinyl- bzw. Teppichboden - so entsteht in jedem Bereich die passende Atmosphäre. Beheizt wird das Haus über eine Gaszentralheizung, die für eine zuverlässige und gleichmäßige Wärmeversorgung in allen Räumen sorgt. Das großzügige Grundstück mit einer Fläche von rund 645 m² ist ein echtes Highlight dieser Immobilie. Der eingezäunte Garten bietet Kindern einen sicheren Raum zum Spielen und Toben, während Erwachsene die Ruhe und den Grünblick genießen können. Eine überdachte Terrasse lädt zum Verweilen ein - ob beim Frühstück im Freien, beim Grillen mit Freunden oder an gemütlichen Sommerabenden. Ein Gartenhaus bzw. Geräteschuppen bietet zusätzlichen Stauraum für Gartengeräte, Fahrräder und saisonale Ausstattung. Zur Immobilie gehört außerdem eine Garage und üppiges Nebengelass inkl. Werkstatt.
Merkmale
Bezug: nach Vereinbarung!
645 m² Grundstück
Keller
Terrasse
- Terrasse mit Überdachung - Garage mit elektrischem Torweg - Teilunterkellert - Zentralheizung und zentrale Warmwasseraufbereitung - modernisierte Gasheizung mittels einer Brennwerttherme im Jahr 2019 - Einbau neuer Kunststofffenster (1994 im EG und 2000 im OG) mit Isolierverglasung und Rollläden (bis auf die Wohnzimmerfenster) - 2019 Fassadenanstrich - 2019 komplette Modernisierung und Umgestaltung des Bades
Grundrisse
Grundrisse
1 / 2
Realisiere Dein Projekt
Bausubstanz und Energie
Energieausweis
C
Baujahr1932
Zustand der ImmobilieMassivhaus, Gepflegt
HeizungsartZentralheizung
EnergieträgerGas
Preisdetails
Kaufpreis
249000 €249.000 €
1.830,88 €/m²
Provision für Käufer
3,57 %
Geschätzte Gesamtkosten
275.319 €1
Kaufpreis
249.000 €
Kaufnebenkosten
26.319 €
2
Notarkosten (1,5%)
3.735 €
Grunderwerbsteuer (5%)
12.450 €
Provision für Käufer (3,57%)
8.889 €
Grundbucheintrag (0,5%)
1.245 €
1Der angezeigte Wert ist eine automatisch berechnete Schätzung von immowelt.
2Bei den Angaben handelt es sich um ortsübliche Werte. Individuelle Kosten können abweichen.
Lage
Bernburg (06406)
Der Anbieter hat die genaue Adresse nicht freigegeben
Diese charmante Doppelhaushälfte befindet sich in einer attraktiven Wohngegend von Bernburg, im Ortsteil Neuborna, einer historischen Stadt in Sachsen-Anhalt. Die Umgebung besticht durch eine harmonische Mischung aus städtischem Komfort und naturnaher Erholung. In der Nähe finden Sie malerische Grünflächen sowie das Schwimmbad Saaleperle, ideal für Entspannung und Freizeitaktivitäten im Freien. Ein nahegelegener Radweg entlang der Saale bietet zudem perfekte Möglichkeiten für Radtouren. Alltägliche Einrichtungen wie Einkaufsmöglichkeiten, Schulen und Ärzte sind bequem erreichbar, was den Standort besonders familienfreundlich macht. Die hervorragende Anbindung an den öffentlichen Nahverkehr sorgt dafür, dass Sie schnell und bequem in das Stadtzentrum und umliegende Gebiete gelangen. Entdecken Sie die perfekte Balance zwischen entspannter Wohnkultur und urbanem Lebensstil. Über die nahe gelegene B185 sowie die B6n ist Bernburg gut an das überregionale Straßennetz angebunden. Die Auffahrt zur A14 (Richtung Halle/Leipzig bzw. Magdeburg) ist in rund 15 Minuten erreichbar. Der Bahnhof Bernburg bietet regionale Zugverbindungen nach Halle (Saale), Magdeburg und Aschersleben. Im Stadtgebiet verkehren mehrere Buslinien, die eine Anbindung an das Zentrum und umliegende Ortsteile sicherstellen. Die Landeshauptstadt Magdeburg ist etwa 45 km entfernt, Halle (Saale) rund 40 km.
Weitere Informationen
Sonstiges
Alle Angaben basieren auf Aussagen Dritter, vorhandene Unterlagen sowie einer Objektbesichtigung. Eine Gewähr für die Richtigkeit und Vollständigkeit kann daher nicht übernommen werden. Dieses Exposé möchten Sie bitte als freibleibendes, unverbindliches Angebot betrachten.
Zum angebotenen Objekt liegen folgende Unterlagen vor: - ausführliches Exposé - Grundbuchauszug - Flurkarte - Energieausweis - Grundrisse - Wohngebäudeversicherung -Marktwerteinschätzung
Stichworte
Garage vorhanden, Anzahl der Badezimmer: 1, Anzahl Terrassen: 1, Bundesland: Sachsen-Anhalt, 2 Etagen, Distanz zum Kindergarten: 0.20, Distanz zur Grundschule: 1.80, Distanz zur Realschule: 2.10, Distanz zur nächsten Einkaufsmöglichkeit: 1.70, Distanz zum Gymnasium: 2.50, Distanz zum Flughafen: 64.00, Distanz zur Autobahn: 9.00, Distanz zum Bus: 0.10, Distanz vom Zentrum: 2.10