Version: 8.22.6Navigation überspringen
199.900 €
1 Zimmer  •  43,2 m²  •  2. Geschoss  •  frei ab sofort
Immowelt logo

Studio zum Kauf • provisionsfrei
199900 €
4.623 €/m²
1 Zimmer  •  43,2 m²  •  2. Geschoss  •  frei ab sofort

Attraktive 1-Zimmer - Dachgeschosswohnung in Weichering - Erstbezug in ruhiger Wohnanlage!

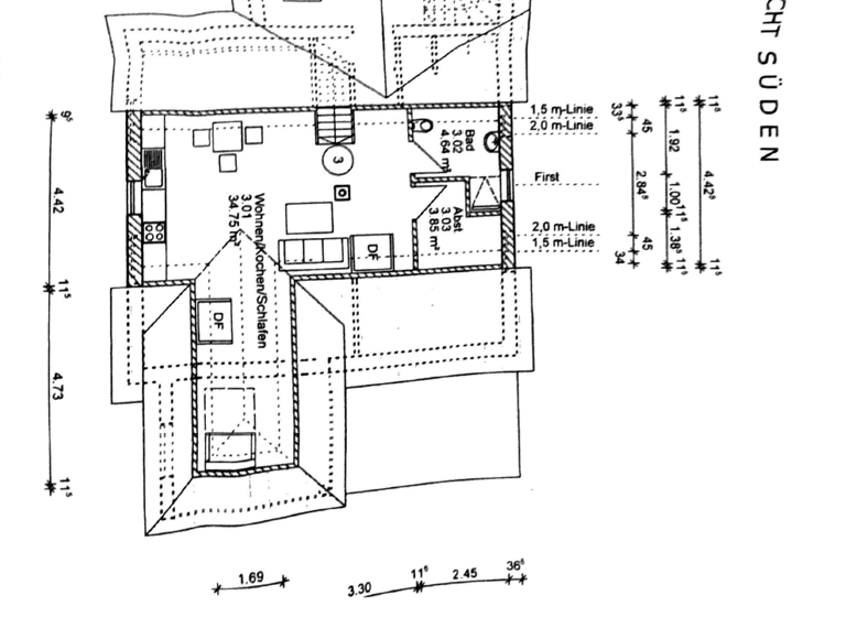
Zum Verkauf steht eine moderne 1-Zimmer-Eigentumswohnung im Dachgeschoss eines gepflegten Mehrfamilienhauses (Baujahr 2016) in ruhiger Wohnanlage von Weichering. Die Wohnung befindet sich gemäß Teilungserklärung im Sondereigentum und bietet eine Wohnfläche von ca. 43,24 m². Die Wohnung überzeugt durch einen großzügig geschnittenen, offenen Wohn-, Koch- und Schlafbereich, der vielfältige Gestaltungsmöglichkeiten bietet und ein angenehmes Raumgefühl schafft – ideal für eine Person. Das moderne Badezimmer ist mit hellen, ansprechenden Fliesen ausgestattet und verfügt über eine Dusche sowie ein WC. Im Zuge der Fertigstellung wird das Badezimmer vollständig mit WC, Armaturen und allen sanitären Einrichtungen übergeben. Es handelt sich um einen Erstbezug. Die Wohnung wurde bislang nicht bewohnt, befindet sich in einem neuwertigen Zustand und wird aktuell noch fertiggestellt.

Merkmale

  • frei ab sofort
  • Dachgeschoss, 2. Geschoss
  • Einbauküche
  • Außen-Stellplatz
  • Badezimmer: Bad mit Dusche, Bad mit Fenster
  • Bodenbelag: Fliesen
  • Fenster: Kunststoff
Ausstattung im Überblick: - Baujahr 2016 - Erstbezug / neuwertiger Zustand - Dachgeschosslage - Offener Wohn-, Schlaf- und Kochbereich - Moderne Fenster und Türen - Heller braun-grauer Vinylboden - Modernes Badezimmer mit Dusche (bei Übergabe vollständig ausgestattet) - Einbauküche vorhanden - Eigener Kellerraum - Zwei Außenstellplätz

Grundrisse

Grundrisse
1 / 1

Realisiere Dein Projekt

Bausubstanz und Energie

Der Anbieter hat keine Informationen zum Energieverbrauch bereit gestellt.
  • Baujahr2016
  • EnergieträgerLuft-/Wasser-Wärmepumpe
Immowelt logo

Preisdetails

Kaufpreis
199900 €
4.623,03 €/m²
Provision für Käufer
provisionsfrei
Geschätzte Gesamtkosten
210.896 €1
Kaufpreis
199.900 €
Notarkosten (1,5%)
2.999 €
Grunderwerbsteuer (3,5%)
6.997 €
Grundbucheintrag (0,5%)
1.000 €
1Der angezeigte Wert ist eine automatisch berechnete Schätzung von immowelt.
2Bei den Angaben handelt es sich um ortsübliche Werte. Individuelle Kosten können abweichen.

Lage

address-icon
Weichering (86706)
Der Anbieter hat die genaue Adresse nicht freigegeben
Das Gebäude befindet sich in einem schönen, ruhigen Wohngebiet, das überwiegend von Ein- und Zweifamilienhäusern geprägt ist. Die Wohnstraße ist eine verkehrsarme, innerörtliche Erschließungsstraße mit geringem Verkehrsaufkommen. In Weichering finden Sie Einkaufsmöglichkeiten für den täglichen Bedarf, Bäckereien und weitere Einrichtungen. Schulen, Ärzte und zahlreiche weitere Versorgungsmöglichkeiten sind in wenigen Minuten im nahegelegenen Ingolstadt erreichbar. Die Verkehrsanbindung ist sehr gut: Schnelle Verbindung nach Ingolstadt - Nähe zu den Bundesstraßen Bundesstraße 13 und Bundesstraße 16 - Die Autobahn Bundesautobahn 9 (München–Nürnberg) ist in kurzer Fahrzeit erreichbar - Gute Anbindung an öffentliche Verkehrsmittel in die umliegenden Ortschaften

Weitere Informationen

Sonstiges Grundstück Das Grundstück weist eine nahezu rechteckige Form auf und ist vollständig an die öffentlichen Versorgungsnetze (Wasser, Abwasser, Strom und Telefon) angeschlossen. Die Erschließungskosten sind vollständig abgerechnet. Hinweise auf Altlasten oder Bodenverunreinigungen liegen nicht vor. Diese moderne Dachgeschosswohnung eignet sich ideal für Eigennutzer oder Kapitalanleger, die Wert auf eine ruhige Lage, eine zeitgemäße Ausstattung und eine gute Anbindung legen. Gerne stellen wir Ihnen weitere Informationen zur Verfügung oder vereinbaren einen Besichtigungstermin.

Weitere Services

Lust auf eine Besichtigung?
Eine Frage zur Immobilie?
Nachricht hinzufügen
Mit der Nutzung der oben angegebenen Telefonnummer oder durch Klicken auf „Kontaktieren“ akzeptierst Du die Allgemeinen Nutzungsbedingungen, denen Du jederzeit widersprechen kannst. Weitere Informationen zum Datenschutz

Über den Anbieter

Finanzwerk UG
Finanzwerk UGMaklerbüro
Nürnberger Straße 58, 85055 Ingolstadt
partner badge
Partnerschaft
Dipl.-Ing. (Bau) Martin HochwartDein Kontakt

Weitere Unterlagen

Online-ID: 2nspg5k
Finanzwerk UG
Finanzwerk UG
Nachricht hinzufügen
Mit der Nutzung der oben angegebenen Telefonnummer oder durch Klicken auf „Kontaktieren“ akzeptierst Du die Allgemeinen Nutzungsbedingungen, denen Du jederzeit widersprechen kannst. Weitere Informationen zum Datenschutz
Wie zufrieden bist du mit dieser Seite (nicht mit der Immobilie selbst)?