

Penthouse zum Kauf250000 €2.632 €/m²2,5 Zimmer • 95 m² • 3. Geschoss • frei ab sofort
250000 €
2.632 €/m²
2,5 Zimmer • 95 m² • 3. Geschoss • frei ab sofort
Dachgeschosswohnung im Rohbau, direkt am Lago Maggiore in Verbania Intra, ideal als Investition
Merkmale
- Dachgeschoss, 3. Geschoss
- offene Küche
- Personenaufzug
- Badezimmer: Bad mit Dusche, Bad mit Fenster
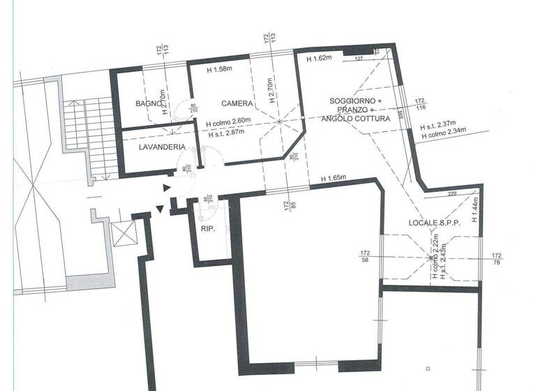
Grundrisse
Grundrisse
1 / 1
Realisiere Dein Projekt
Bausubstanz und Energie
Der Anbieter hat keine Informationen zum Energieverbrauch bereit gestellt.
- Baujahr1900
- EnergieträgerGas
Preisdetails
Kaufpreis
250000 €
2.631,58 €/m²
Provision für Käufer
Bitte beachte, das Angebot beinhaltet bei Vertragsabschluss die Zahlung einer Provision. Weitere Informationen erhältst Du vom Anbieter.
Lage

Verbania Intra
Der Anbieter hat die genaue Adresse nicht freigegeben
Weitere Informationen
Weitere Services
Lust auf eine Besichtigung?
Eine Frage zur Immobilie?
Über den Anbieter
Città Ideale & Prestige S.r.l.Maklerbüro
Corso San Babila, 20122 Milano
Partnerschaft

Herr Fabrizio PaganelliDein Kontakt
Online-ID: 2mqmn5y
Referenznummer: AA.4358-P54


Città Ideale & Prestige S.r.l.
Bewertung: 5 von 5 Sternen
Wie zufrieden bist du mit dieser Seite (nicht mit der Immobilie selbst)?

