Version: 8.26.0Navigation überspringen
1.300.000 €
4 Zimmer  •  230 m²  •  1.447 m² Grundstück
Immowelt logo

Haus zum Kauf
1300000 €
5.652 €/m²
4 Zimmer  •  230 m²  •  1.447 m² Grundstück

Villa 230m2 zum Kauf - Porec, Porec

Modernes Haus mit Schwimmbad in der Nähe von Porec

Ein neueres modernes Haus zum Verkauf in der Nähe von Porec, das Haus hat eine Gesamtfläche von 230 m2, besteht aus einem sonnigen Wohnzimmer, Esszimmer, Küche, überdachter Terrasse mit Sommerküche, Eingangshalle, Schlafzimmer mit Bad und Sauna , und ein größeres Zimmer mit Einbauschränken, Heizung und utility im Erdgeschoss des Hauses und zwei Schlafzimmer mit Badezimmern mit Ausgängen zur Terrasse im ersten Stock des Hauses. Vom ersten Stock führt eine Treppe auf die Dachterrasse, die einen Blick in die Natur und auf das Meer bietet. Das Haus wurde 2018 aus 25 cm dicken Ziegeln gebaut, es ist mit 15 cm dicker Steinwolle gedämmt, alle Fenster haben drei Scheiben, elektrische Jalousien und Moskitonetze, somit hat das Haus einen A+ Energieausweis. Das Haus wird über eine Wärmepumpe beheizt und gekühlt, in allen Räumen gibt es Fußbodenheizung und alles ist separat regelbar, Warmwasser wird über Sonnenkollektoren bereitgestellt und in einem Boiler mit 600 Liter gespeichert. Das Haus wird möbliert verkauft, es hat einen Alarm, Videoüberwachung mit 6 Kameras, die Böden sind aus Eichenparkett, die Terrassen sind mit istrischem Stein gepflastert, während der 12x4 Meter große Swimmingpool mit Mosaik gepflastert ist. Das Haus steht auf einem Grundstück mit einer Fläche von 1.477 m2, es sind 4 Parkplätze vorhanden, davon zwei überdacht, der Garten ist liebevoll gestaltet und dekoriert, mit mediterranen Pflanzen bepflanzt und ebenfalls hundertjährig -alte Eiche, die an den heißesten Tagen Schatten spendet, der Rasen wird automatisch bewässert und das Wasser wird aus einem Brunnen auf dem Grundstück selbst bereitgestellt. Im Garten befindet sich auch ein Technikraum, der den Maschinenraum des Pools beherbergt und als Abstellraum für Gartengeräte dient.
Das Haus ist sehr hochwertig gebaut und ausgestattet, es wird ausschließlich von den Eigentümern genutzt, es wurde nie vermietet, es liegt ca. 6 km von Porec und ca. 4 km vom Meer/Strand entfernt.

Merkmale

  • 1 Geschoss
  • 1.447 m² Grundstück

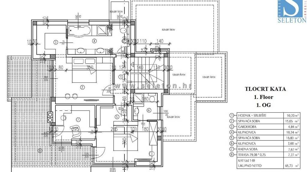
Grundrisse

Verschaffe dir einen genauen Überblick über die Raumaufteilung.selection_property_house-icon

Bausubstanz und Energie

Möchtest du Details zum Energieverbrauch?info_energy_calculation-icon
  • Baujahr2018
Immowelt logo

Preisdetails

Kaufpreis
1300000 €
5.652,17 €/m²
Provision für Käufer
Bitte beachte, das Angebot kann bei Vertragsabschluss die Zahlung einer Provision beinhalten. Weitere Informationen erhältst Du vom Anbieter.

Lage

address-icon
Porec
Der Anbieter hat die genaue Adresse nicht freigegeben

Weitere Informationen

Stichworte Anzahl der Schlafzimmer: 3, Anzahl der Badezimmer: 4, 2 Etagen

Weitere Services

Lust auf eine Besichtigung?
Eine Frage zur Immobilie?
Nachricht hinzufügen
Mit der Nutzung der oben angegebenen Telefonnummer oder durch Klicken auf „Kontaktieren“ akzeptierst Du die Allgemeinen Nutzungsbedingungen, denen Du jederzeit widersprechen kannst. Weitere Informationen zum Datenschutz

Über den Anbieter

Crozilla.com - Das Immobilienportal in Kroatien, Bitte kontaktieren Sie den Ansprechpartner
partner badge
Partnerschaft
Seleton d.o.o.Dein Kontakt
Online-ID: 23RW8ZSIHN65
Referenznummer: 13755092_55
Wie zufrieden bist du mit dieser Seite (nicht mit der Immobilie selbst)?