Version: 8.25.1Navigation überspringen
Niklas Kotte Immobilien
78.500 €
2 Zimmer  •  56 m²  •  2. Geschoss

Wohnung zum Kauf
78500 €
1.402 €/m²
2 Zimmer  •  56 m²  •  2. Geschoss

++ Kapitalanlage oder Eigennutzung: 2-Raum-Wohnung in historischer Villa mit Balkon & Stellplatz ++

VIDEO - RUNDGANG => https://youtu.be/zG_Vhj8gXgQ

Diese charmante 2-Raum-Wohnung befindet sich im Dachgeschoss einer stilvollen, denkmalgeschützten Altbau-Villa in ruhiger und begehrter Wohnlage von Chemnitz-Grüna. Das gepflegte Gebäude liegt auf einem großzügigen, parkähnlich angelegten Grundstück und vermittelt ein angenehmes, repräsentatives Wohnambiente.

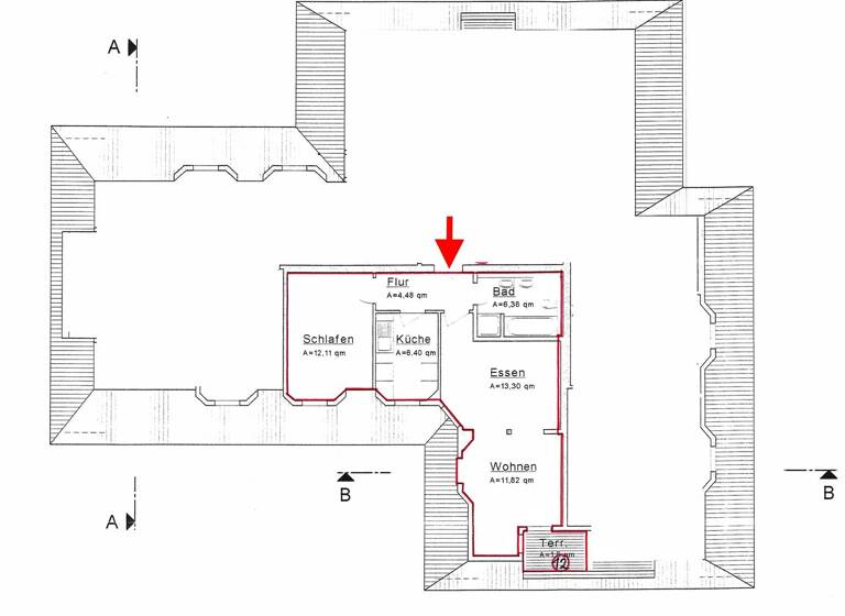
Die Wohnung verfügt über ca. 56 m² Wohnfläche und überzeugt durch eine funktionale Raumaufteilung. Sie bietet ein helles Wohnzimmer mit Zugang zur gemütlichen Dachterrasse, ein separates Schlafzimmer, eine Küche mit Fenster, einen Flur sowie ein großzüges Badezimmer mit Badewanne und Dusche. Die Dachgeschosslage sorgt für ein besonderes Wohngefühl und eine freundliche, lichtdurchflutete Atmosphäre.

Ein echtes Highlight ist die Dachterrasse mit Blick in die parkähnliche Gartenanlage des Grundstücks - ideal für entspannte Stunden im Freien. Ein Außenstellplatz direkt auf dem Grundstück ist im Angebot enthalten und erhöht den Wohnkomfort zusätzlich.

Die Wohnung befindet sich in einem gepflegten Zustand und ist lediglich leicht renovierungsbedürftig (vorrangig Malerarbeiten). Die vorhandenen Laminatböden sind gut erhalten. Ein separater, trockener Kellerraum sowie ein gemeinschaftlicher Waschraum mit eigenem Waschmaschinenstellplatz stehen zur Verfügung. Die Beheizung erfolgt über eine neue Gas-Zentralheizung (Einbau 2023).

Die Wohnung ist aktuell mietfrei und eignet sich ideal zur sofortigen Eigennutzung. Gleichzeitig bietet sie auch eine attraktive Perspektive für Kapitalanleger: Die Wohnung war zuvor langjährig vermietet und ist nachhaltig gut vermietbar. Bei einer marktüblichen Neuvermietung zu ca. 7,50 €/m² ergibt sich eine monatliche Kaltmiete von rund 420 €. Dies entspricht einer Bruttorendite von ca. 6,4 % p.a. (bezogen auf den Kaufpreis).

Eine vielseitig nutzbare Immobilie mit Altbaucharme, ruhiger Lage und solider Perspektive. Wir freuen uns auf Ihre Anfrage.

Merkmale

  • Bezug: nächstmöglich
  • Dachgeschoss, 2. Geschoss
  • Badezimmer: Badewanne, Bad mit Dusche
  • Keller
  • Bodenbelag: Fliesen, Laminat
  • Balkon
  • Garten
  • Außen-Stellplatz
- 2-Raum-Wohnung im Dachgeschoss einer denkmalgeschützten Altbau-Villa
- Wohnfläche ca. 56 m²
- gepflegtes Gebäude auf großzügigem, parkähnlich angelegtem Grundstück
- funktionaler und gut vermietbarer Grundriss
- helles Wohnzimmer mit Zugang zur Dachterrasse
- gemütliche Dachterrasse mit Blick ins Grüne
- separates Schlafzimmer
- Küche mit Fenster
- innenliegendes Badezimmer mit Dusche und Badewanne
- Bodenbeläge: Laminat und Fliesen
- neue Gas-Zentralheizung (Einbau 2023)
- Wohnung leicht renovierungsbedürftig (Malerarbeiten)
- Laminatboden in gutem, nutzbarem Zustand
- separater, trockener Kellerraum
- gemeinschaftlicher Waschraum mit eigenem Waschmaschinenstellplatz
- gepflegtes Treppenhaus und Gemeinschaftsflächen
- persönlicher Außenstellplatz direkt auf dem Grundstück, fest zur Wohnung gehörend
- Wohnung aktuell mietfrei
- sofort beziehbar oder kurzfristig zu marktüblichen Konditionen vermietbar

Grundrisse

Grundrisse
1 / 1

Virtueller Rundgang

Video

Realisiere Dein Projekt

Bausubstanz und Energie

Energieausweis

Ein Energieausweis ist für diesen Gebäudetyp nicht notwendig.
  • Baujahr1922
  • Zustand der ImmobilieGepflegt
  • HeizungsartZentralheizung
  • EnergieträgerGas
MediumRectangleTop

Preisdetails

Kaufpreis
78500 €
1.402,04 €/m²
Hausgeld
97.62 €
Provision für Käufer
3.500,00 € (zzgl. der gesetzlichen MwSt.) inkl. MwSt.
Weitere Preisinformationen
1 Stellplatz
Geschätzte Gesamtkosten
84.389 €1
Kaufpreis
78.500 €
Notarkosten (1,5%)
1.178 €
Grunderwerbsteuer (5,5%)
4.318 €
Grundbucheintrag (0,5%)
393 €
1Der angezeigte Wert ist eine automatisch berechnete Schätzung von immowelt.
2Bei den Angaben handelt es sich um ortsübliche Werte. Individuelle Kosten können abweichen.

Lage

address-icon
Chemnitzer Str. 180GrünaChemnitz (09224)
Der Stadtteil Grüna liegt im beliebten Westen von Chemnitz und zählt zu den gefragtesten Wohnlagen der Stadt. Die Kombination aus urbaner Nähe, guter wirtschaftlicher Anbindung und naturnahem Umfeld macht Grüna besonders attraktiv für Eigennutzer wie auch Kapitalanleger. Als Teil einer dynamischen Großstadt mit wachsender Bedeutung profitiert der Stadtteil von einer kontinuierlichen Entwicklung und stabilen Nachfrage am Wohnungsmarkt.

Grüna überzeugt durch eine gewachsene, angenehme Wohnstruktur mit überwiegend aufgelockerter Bebauung, viel Grün und einem hohen Maß an Ruhe. Wälder, Wiesen und Spazierwege prägen das direkte Umfeld und bieten einen hohen Freizeit- und Erholungswert. Gleichzeitig sind Einkaufsmöglichkeiten, ärztliche Versorgung, Kindergärten, Schulen sowie gastronomische Angebote bequem erreichbar. Das ausgeprägte Vereins- und Gemeinschaftsleben sorgt für eine hohe Wohnqualität und ein gutes nachbarschaftliches Miteinander.

Ein besonderer Standortvorteil ist die exzellente Verkehrsanbindung. Die Autobahn A4 ist in wenigen Minuten erreichbar und ermöglicht schnelle Wege in Richtung Dresden, Leipzig, Erfurt sowie in das gesamte überregionale Autobahnnetz. Der öffentliche Personennahverkehr ist ebenfalls gut ausgebaut: Busverbindungen und der nahegelegene Bahnanschluss gewährleisten eine zügige Anbindung an die Chemnitzer Innenstadt und umliegende Stadtteile - ideal für Pendler und Berufstätige.

Durch die gefragte Lage, die hervorragende Infrastruktur und das angenehme Wohnumfeld erfreut sich Grüna einer konstant hohen Nachfrage nach Wohnraum. Der Stadtteil spricht Familien, Paare und Berufspendler gleichermaßen an und bietet dadurch sehr gute Voraussetzungen für eine nachhaltige Vermietbarkeit. Gleichzeitig unterstreicht die stabile Entwicklung des Quartiers das langfristige Wertpotenzial der Immobilie.

Weitere Informationen

Sonstiges VIDEO - RUNDGANG => https://youtu.be/zG_Vhj8gXgQ

Das ausgewiesene Hausgeld (Stand: Wirtschaftsplan 2026) von mtl. 97,62 € beinhaltet die nicht umlagefähigen Kosten und den Beitrag in die Erhaltungsrücklage. Die auf den Mieter umlegbaren Kosten belaufen sich aktuell auf mtl. 175,95 €.

Das denkmalgeschützte Gebäude ist beim Verkauf von der Energieausweispflicht nach dem Gebäudeenergiegesetz ausgenommen.

Die Maklerprovision für den Käufer beträgt 3.500,00 € (zzgl. der gesetzlichen MwSt.). Das Exposé ist lediglich eine Information. Verpflichtungen ergeben sich einzig aus dem beurkundeten Kaufvertrag. Stichworte Anzahl der Schlafzimmer: 1, Anzahl der Badezimmer: 1, Anzahl Balkone: 1, 3 Etagen

Weitere Services

Lust auf eine Besichtigung?
Eine Frage zur Immobilie?
Nachricht hinzufügen
Mit der Nutzung der oben angegebenen Telefonnummer oder durch Klicken auf „Kontaktieren“ akzeptierst Du die Allgemeinen Nutzungsbedingungen, denen Du jederzeit widersprechen kannst. Weitere Informationen zum Datenschutz

Über den Anbieter

Nordplatz 2, 04105 Leipzig
Herr Niklas Kotte
Herr Niklas KotteDein Kontakt
Online-ID: 26IJHYNPFJBF
Referenznummer: 2026-03-49039
Niklas Kotte Immobilien
title
Niklas Kotte Immobilien
Bewertung: 4,7 von 5 Sternen
Nachricht hinzufügen
Mit der Nutzung der oben angegebenen Telefonnummer oder durch Klicken auf „Kontaktieren“ akzeptierst Du die Allgemeinen Nutzungsbedingungen, denen Du jederzeit widersprechen kannst. Weitere Informationen zum Datenschutz
MediumRectangleTop
MediumRectangleBottom
MediumRectangleTop
Wie zufrieden bist du mit dieser Seite (nicht mit der Immobilie selbst)?