
BBI Berlin-Brandenburg-Immobilien GmbH
Frau Sophia Krohn
030 ···
Nr. anzeigenPreise & Kosten
Provision für Käufer
7,14 %
Die Provision in Höhe von 7,14 % (inkl. 19 % USt.) des beurkundeten Kaufpreises ist mit notarieller Beurkundung vom Käufer an BBI Immobilien GmbH zu zahlen. Weitere Informationen siehe Provisionshinweis.
Lage
- im nördlichen Ortsteil Falkenhain
- attraktive, familienfreundliche Wohnlage, umgeben von Wäldern und Seen
- Geschäfte aller Art in der nahen Umgebung
- "Havelpark" ca. 7 km entfernt
- direkte Verbindung nach Berlin-Spandau mittels Regionalbahn oder Bus
- gute, verkehrstechnische Anbindung...
Das Grundstück
Details
Objektbeschreibung
- baureifes Grundstück, bestehend aus 2 Flurstücken
- Baugenehmigung für ein 2-geschossiges Wohngebäude inklusive
- alternativ könnten auch 2 separate Einfamilienhäuser hergestellt werden
- barrierefreier Zugang zum Haus über eine rollstuhlgerechte Rampe
Ausstattung
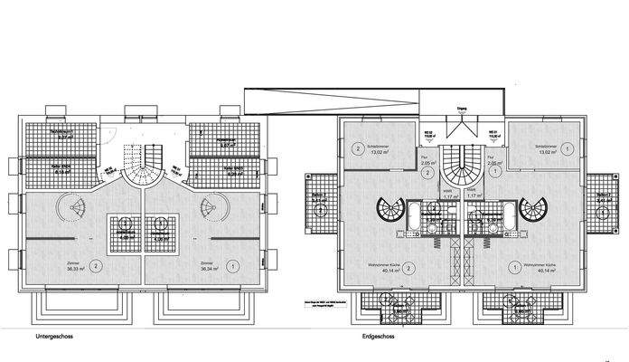
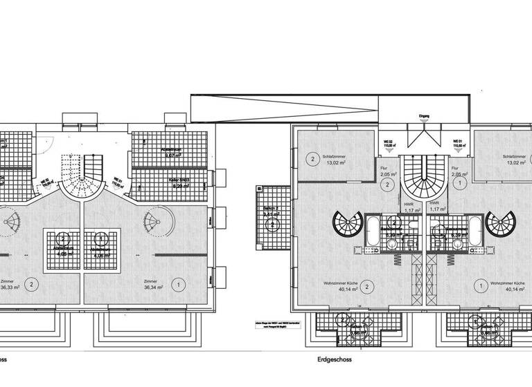
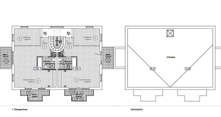
- die Planung sieht 4 Wohneinheiten mit 2 bzw. 3 Zimmern und jeweils 2 Balkonen vor
- 8 Außenstellplätze und 12 Fahrradstellplätze
Preisinformation
4 Stellplätze
Weitere Informationen
Provisionshinweis
7,14 %
Die Provision in Höhe von 7,14 % (inkl. 19 % USt.) des beurkundeten Kaufpreises ist mit notarieller Beurkundung vom Käufer an BBI Immobilien GmbH zu zahlen. Alle Angaben ohne Gewähr und nach Auskunft des Eigentümers. Irrtum vorbehalten! Das Angebot ist nur für den Empfänger bestimmt. Bei einer...
Anbieter der Immobilie
BBI Berlin-Brandenburg-Immobilien GmbH
Kurfürstendamm 178-179, 10707 Berlin
Online-ID: 2mqbs5h
Referenznummer: 192210
Finde Angebote wie dieses
Hier geht es zu unserem Impressum, den Allgemeinen Geschäftsbedingungen, den Hinweisen zum Datenschutz und nutzungsbasierter Online-Werbung.