Premium Baugrundstück in der Stadt Neusäß bei Augsburg, Neubau KFW 40 möglich, Top Lage!
Seltene Chance: Großes Baugrundstück für exklusiven Neubau in begehrter Lage!
In einer der beliebtesten Wohnlagen von Neusäß bei Augsburg wartet eine Gelegenheit, die am Markt selten ist: 1.081 m² Grundstücksfläche mit hervorragender Basis für den Neubau eines modernen Einfamilienhauses. Das Grundstück liegt in einem begehrten Wohngebiet und ist aktuell noch mit einem Einfamilienhaus (Baujahr 1969) bebaut (Abriss erforderlich). Es handelt sich um einen Standort mit Mehrwert mit flexibler Nutzungsperspektive wie z. B. Wohnen plus Office/Atelier/Büro oder Praxis im Haus möglich (nach Abstimmung/Genehmigung). Ideal für alle, die Wohnen und Arbeiten kombinieren möchten. Perfekt auch für Unternehmer und Selbständige.
Wer heute neu baut, will nicht "irgendwo" bauen - sondern in einer Lage, die langfristig überzeugt. Genau dafür steht dieses Baugrundstück in Neusäß: Lebensqualität, Infrastruktur, Natur und Augsburger-Citynähe in idealer Kombination.
Neubau-Perspektive: vorausschauend vorbereitet
Die Bebauungsmöglichkeit wurde vorab mit der Stadt Neusäß geklärt - ein wertvoller Vorteil für alle, die nicht bei null starten möchten (vorbehaltlich finaler Genehmigungen).
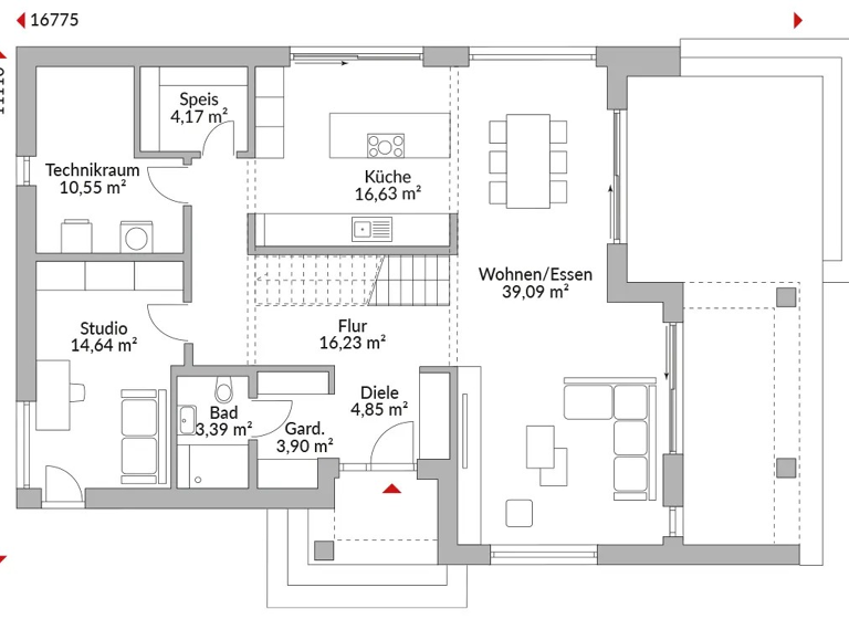
Neubau-Vorschlag einer renommierten Baufirma: modern, architektonisch ansprechend und zukunftssicher, energieeffizient (KfW 40).
Damit Sie nicht nur ein Grundstück kaufen, sondern sofort eine konkrete Vision haben, liegt bereits ein Neubau-Konzept einer erfahrenen, qualitätsorientierten Baufirma vor - passend für alle, die ein hochwertiges, energieeffizientes Einfamilienhaus in Neusäß / Augsburg Umgebung realisieren möchten.
Auf Wunsch kann die Planung - je nach Programmvoraussetzungen - potenziell förderfähig umgesetzt werden (z. B. mit QNG-Zertifizierung und entsprechenden Förderprogrammen - KFW-Programme 300, 297, 298).
Beispielkonzept (inspirierend & anpassbar):
. Einfamilienhaus in KfW-40-Ausführung
. ca. 217 m² Nettogrundfläche nach DIN 277
Ausstattung (Beispiel):
. hochwertige Vinyl- und Fliesenböden
. Luxusbäder: insgesamt drei bodengleiche Duschen, zusätzliche Handtuchheizkörper
. Fußbodenheizung
. elektrische Rollläden im ganzen Haus
. nachhaltige Haustechnik: Erdwärmepumpe inkl. Erdkörben
Optional möglich (Auszug): Smart-Home, Carport mit Geräteanbau (Details auf Anfrage).
Hinweis: Das Neubaukonzept dient als Orientierung. Grundriss, Stil und Ausstattung sind individuell planbar.
Besonderes Extra: Pool vorhanden - Ihre private Sommer-Oase
Auf dem Grundstück befindet sich ein vorhandener Pool, der hergerichtet und wieder nutzbar gemacht werden könnte. Ob Familiennachmittage, Abkühlung im Sommer oder entspannte Abende am Wasser: Dieses Extra macht den Garten zu einem echten Lifestyle-Highlight.
Auf einen Blick
. Grundstück in Neusäß (nahe Augsburg)
. Grundstücksfläche: ca. 1.081 m²
. Neubau-Perspektive: vorab mit Stadt Neusäß geklärt (Genehmigung vorbehalten)
. Plus: Pool vorhanden (Reaktivierung möglich)
. ideal für: Neubau Einfamilienhaus, energieeffizient bauen, KfW40-Haus
Unterlagen & Details auf Anfrage.
Gerne stellen wir Ihnen weitere Informationen bereit - insbesondere zum Neubau-Konzept-Beispiel einer etablierten Baufirma sowie ergänzende Objektunterlagen.
Interesse? Schreiben Sie uns - und entdecken Sie, wie sich auf 1.081 m² in Neusäß ein Zuhause realisieren lässt, das nicht nur gebaut, sondern gelebt wird.
Energieausweis (Bestandsgebäude)
Verbrauchsausweis, ausgestellt: 21.10.2024, gültig bis: 21.10.2034, Baujahr: 1969, Energieträger: Öl, Endenergieverbrauch: 234,42 kWh/(m²·a), Energieeffizienzklasse: G