Wohnung zum Kauf - Erstbezug459000 €459.000 €7.926 €/m²2 Zimmer • 57,9 m² • 3. Geschoss
459000 €459.000 €
7.926 €/m²
2 Zimmer • 57,9 m² • 3. Geschoss
VERKAUFSSTART - PREMIUM 2-ZIMMER-WOHNUNG MIT SCHÖNER LOGGIA!
EXKLUSIVES WOHNEN MIT WEITBLICK UND MEHRWERT
Am Rande von Dornbach, dem exklusiven und charmanten Stadtteil am westlichen Stadtrand von Wien, steht ein einzigartiges Neubauprojekt kurz vor der Fertigstellung. Genießen Sie eine urbane Oase mit perfekter Infrastruktur und Verkehrsanbindung und die Nähe zu den schönsten Grünoasen Wiens mit all seinen Freizeitmöglichkeiten. Die "SANDLEITEN - Signature Homes" liegen in unmittelbarer Nähe zum wunderschönen Kongresspark und verbinden energieeffiziente Bauweise, modernes Design, exklusive Ausstattung und durchdachte Raumkonzepte mit höchster Wohnqualität zu einem harmonischen Gesamtbild.
WOHNVIELFALT MIT FREIRAUM FÜR JEDES LEBENSKONZEPT
Insgesamt entstehen 29 hochwertige Eigentumswohnungen mit großzügigen Freiflächen von bis zu 80 m², sowie ein kleines Geschäftslokal. Die den oberen Geschoße begeistern mit einem beeindrucken Fernblick.
Die Bandbreite der Wohnungen reicht von kompakten 2-Zimmerr-Einheiten ab ca. 45 m² bis hin zu großzügigen 5-Zimmer-Familienwohnungen mit bis zu 130 m² Wohnfläche - ein durchdachtes Angebot für Singles, Paare und Familien gleichermaßen.
Jeder Wohnung ist ein eigener Einlagerungsraum zugeordnet. Für zusätzlichen Komfort stehen den Bewohnern ein Fahrradraum, ein Kinderwagenabstellraum sowie ein Kleinkinderspielplatz zur gemeinschaftlichen Nutzung zur Verfügung.
Die Kaufpreise beginnen bei EUR 349.000 für eine 2-Zimmer-Wohnung und reichen bis EUR 1.633.000 für das exklusive Dachgeschoss-Penthouse.
13 Tiefgaragenstellplätze im Haus - mit E-Ladevorbereitung
Bei Bedarf kann ein Pkw-Stellplatz in der hauseigenen Tiefgarage zum Kaufpreis von EUR 45.000 erworben werden.
Insgesamt stehen 13 Stellplätze zur Verfügung. Sämtliche Stellplätze sind bereits für die Installation einer E-Ladestation vorbereitet.
ENERGIEEFFIZIENTE BAUWEISE & HOCHWERTIGE AUSSTATTUNG - DIE FAKTEN ÜBERZEUGEN
* Tiefgarage mit modernen E-Ladestationen für nachhaltige Mobilität
* Fußbodenheizung und Warmwasseraufbereitung mit energieeffizienter Luft-Wasser-Wärmepumpe.
* Photovoltaikanlage, die den allgemeinen Stromverbrauch umweltfreundlich deckt
* Vorbereitung für Klimaanlage, die selbst an heißen Tagen ein angenehmes Raumklima schafft
* Großzügige und bodentiefe Fensterfronten für lichtdurchflutete und einzigartige Räume
* 3-fach verglaste Wärmeschutzfenster mit Aludeckschale in bronze- maximale Energieeffizienz und langlebige Qualität
* Elektrische, außenliegende Raffstores in bronze und solargesteuerte Außenbeschattung bei Dachflächenfenstern
* Sicherheitstüren der Klasse WK III - reduziert Risiko und Versicherungskosten
* Videotürsprechanlage mit App-Steuerung
* exklusive Innentüren - flächenbündig mit Holzzargen - Klimaklasse A, und einer Höhe von 2,20 m
* hochwertiger Mehrschicht Markenparkett "Landhausdiele" in Eiche
* hochwertige und stilvolle Sanitärausstattung, die sich deutlich vom Standard abhebt
* WC-System von Fa. Tece - d.h. vorbereitet für WC-Dusche als Alternative zu Bidet uvm.
* Terrassengeländer aus Echtglas mit Edelstahlprofilen
* Innenwände mit doppelten Gipskartonplatten für bessere Geräuschdämmung und Stabilität
* Video-Gegensprechanlage
ALLES AUS EINER HAND - FÜR MEHR QUALITÄT, FLEXIBILITÄT UND SICHERHEIT
Dem Bauträger ist es ein Anliegen, sich deutlich von allen anderen Anbietern zu unterscheiden und Ihnen das Beste zu bieten. Hier vereinen sich die höchsten Ansprüche an Qualität, Design und Funktionalität mit nachhaltiger und energieeffizienter Bauweise. Die Referenzprojekte sprechen für sich.
Durch die Integration der Bauleistung in das eigene Unternehmen bestehen ein hohes Eigeninteresse an einer mängelfreien und termingerechten Umsetzung und viele weitere Vorteile für die Kunden:
* Mehrwert durch höhere Ausstattungsqualität zu konkurrenzfähigen Preisen
* Qualitätssicherung durch kontinuierlicher Bauüberwachung
* Mehr Klarheit bei Verantwortlichkeit und Haftung
* Mehr Flexibilität und einen Ansprechpartner bei allfälligen Sonderwünschen (nur noch kurze Zeit möglich!)
* Sichtbare Expertise - Referenzobjekte des Bauträgers ermöglichen auch die Prüfung der Qualität der tatsächlichen Bauausführung bei früheren Projekten
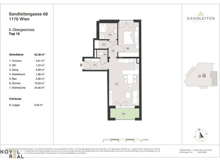
PREMIUM 2-ZIMMER-WOHNUNG MIT SCHÖNER LOGGIA!
Top 15
Die Wohnung bietet eine kompakte und zugleich durchdachte Raumaufteilung, ideal für Singles oder Paare. Der zentrale Vorraum verbindet alle Bereiche und schafft einen klaren Zugang zu den einzelnen Räumen. Das Schlafzimmer ist ruhig gelegen und mit Parkettboden ausgestattet, ebenso wie der großzügige Wohnbereich mit integrierter Küche. Die Küche ist funktional entlang der Wand angeordnet und öffnet sich zum Wohnraum, der durch große Türen direkten Zugang zur Loggia bietet - ein geschützter Balkonbereich, perfekt für entspannte Stunden im Freien. Das Badezimmer verfügt über Dusche, Waschbecken und WC, während ein separates WC zusätzlichen Komfort bietet. Ein kleiner Abstellraum ergänzt das Raumangebot und sorgt für praktischen Stauraum. Die Wohnung ist mit modernen Installationen ausgestattet und bietet ein angenehmes Wohngefühl auf kompaktem Raum.
Fakten:
* ein Schlafzimmer: mit Parkettboden, ruhig gelegen
* Wohnküche: offen gestaltet, mit Zugang zur Loggia
* Loggia: überdachter Balkon, direkt vom Wohnbereich erreichbar
* Badezimmer: mit Dusche, Waschbecken
* Separates WC
* Vorraum: zentraler Eingangsbereich mit Verbindung zu allen Räumen
* Abstellraum: kompakt, ideal für Lagerung
_Aus rechtlichen Gründen und aufgrund der großen Nachfragen bitten wir um Verständnis, dass wir nur Anfragen per Mail beantworten, wenn Sie uns Ihren vollständigen Namen samt Mailadresse und Mobilnummer bekanntgeben._
Alle Angaben basieren alleinig auf Informationen, die uns von unserem Auftraggeber übermittelt wurden. Trotz aller Sorgfalt können wir für die Richtigkeit, Vollständigkeit und Aktualität dieser Angaben keine Gewähr übernehmen. Jegliche Weitergabe der übermittelten Daten an Dritte ist nicht gestattet. Der Maklervertrag kommt durch schriftliche Vereinbarung oder Inanspruchnahme unserer Maklertätigkeit zustande. Der Makler kann als Doppelmakler tätig werden. Sollte das von uns nachgewiesene Objekt bereits bekannt sein, teilen sie uns dies bitte unverzüglich mit.
Die Maklergebühr ist ausschließlich bei Zustandekommen eines gültigen Rechtsgeschäfts fällig. Es wird ausdrücklich auf die Nebenkostenübersicht hingewiesen. Bei den Visualisierungen und Abbildungen der Immobilie (insbesondere von Inneneinrichtungen) kann es sich um Symbolfotos bzw. fototechnisch optimierte Fotos handeln. Hiermit weisen wir auf das Bestehen eines familiären und/oder wirtschaftlichen Naheverhältnisses zum Vermieter/Verkäufer hin.
Für die Vereinbarung eines Termins kontaktieren Sie Frau Vassilena Valkova telefonisch unter +43 650 58 70011 oder per E-Mail: vv@novel-real.at
Infrastruktur / Entfernungen
Gesundheit
Arzt <500m
Apotheke <500m
Klinik <1.500m
Krankenhaus <1.000m
Kinder & Schulen
Schule <500m
Kindergarten <500m
Universität <2.000m
Höhere Schule <2.000m
Nahversorgung
Supermarkt <500m
Bäckerei <500m
Einkaufszentrum <500m
Sonstige
Geldautomat <500m
Bank <500m
Post <500m
Polizei <1.000m
Verkehr
Bus <500m
U-Bahn <1.000m
Straßenbahn <500m
Bahnhof <1.000m
Autobahnanschluss <5.000m
Angaben Entfernung Luftlinie / Quelle: OpenStreetMap
Am Rande von Dornbach, dem exklusiven und charmanten Stadtteil am westlichen Stadtrand von Wien, steht ein einzigartiges Neubauprojekt kurz vor der Fertigstellung. Genießen Sie eine urbane Oase mit perfekter Infrastruktur und Verkehrsanbindung und die Nähe zu den schönsten Grünoasen Wiens mit all seinen Freizeitmöglichkeiten. Die "SANDLEITEN - Signature Homes" liegen in unmittelbarer Nähe zum wunderschönen Kongresspark und verbinden energieeffiziente Bauweise, modernes Design, exklusive Ausstattung und durchdachte Raumkonzepte mit höchster Wohnqualität zu einem harmonischen Gesamtbild.
WOHNVIELFALT MIT FREIRAUM FÜR JEDES LEBENSKONZEPT
Insgesamt entstehen 29 hochwertige Eigentumswohnungen mit großzügigen Freiflächen von bis zu 80 m², sowie ein kleines Geschäftslokal. Die den oberen Geschoße begeistern mit einem beeindrucken Fernblick.
Die Bandbreite der Wohnungen reicht von kompakten 2-Zimmerr-Einheiten ab ca. 45 m² bis hin zu großzügigen 5-Zimmer-Familienwohnungen mit bis zu 130 m² Wohnfläche - ein durchdachtes Angebot für Singles, Paare und Familien gleichermaßen.
Jeder Wohnung ist ein eigener Einlagerungsraum zugeordnet. Für zusätzlichen Komfort stehen den Bewohnern ein Fahrradraum, ein Kinderwagenabstellraum sowie ein Kleinkinderspielplatz zur gemeinschaftlichen Nutzung zur Verfügung.
Die Kaufpreise beginnen bei EUR 349.000 für eine 2-Zimmer-Wohnung und reichen bis EUR 1.633.000 für das exklusive Dachgeschoss-Penthouse.
13 Tiefgaragenstellplätze im Haus - mit E-Ladevorbereitung
Bei Bedarf kann ein Pkw-Stellplatz in der hauseigenen Tiefgarage zum Kaufpreis von EUR 45.000 erworben werden.
Insgesamt stehen 13 Stellplätze zur Verfügung. Sämtliche Stellplätze sind bereits für die Installation einer E-Ladestation vorbereitet.
ENERGIEEFFIZIENTE BAUWEISE & HOCHWERTIGE AUSSTATTUNG - DIE FAKTEN ÜBERZEUGEN
* Tiefgarage mit modernen E-Ladestationen für nachhaltige Mobilität
* Fußbodenheizung und Warmwasseraufbereitung mit energieeffizienter Luft-Wasser-Wärmepumpe.
* Photovoltaikanlage, die den allgemeinen Stromverbrauch umweltfreundlich deckt
* Vorbereitung für Klimaanlage, die selbst an heißen Tagen ein angenehmes Raumklima schafft
* Großzügige und bodentiefe Fensterfronten für lichtdurchflutete und einzigartige Räume
* 3-fach verglaste Wärmeschutzfenster mit Aludeckschale in bronze- maximale Energieeffizienz und langlebige Qualität
* Elektrische, außenliegende Raffstores in bronze und solargesteuerte Außenbeschattung bei Dachflächenfenstern
* Sicherheitstüren der Klasse WK III - reduziert Risiko und Versicherungskosten
* Videotürsprechanlage mit App-Steuerung
* exklusive Innentüren - flächenbündig mit Holzzargen - Klimaklasse A, und einer Höhe von 2,20 m
* hochwertiger Mehrschicht Markenparkett "Landhausdiele" in Eiche
* hochwertige und stilvolle Sanitärausstattung, die sich deutlich vom Standard abhebt
* WC-System von Fa. Tece - d.h. vorbereitet für WC-Dusche als Alternative zu Bidet uvm.
* Terrassengeländer aus Echtglas mit Edelstahlprofilen
* Innenwände mit doppelten Gipskartonplatten für bessere Geräuschdämmung und Stabilität
* Video-Gegensprechanlage
ALLES AUS EINER HAND - FÜR MEHR QUALITÄT, FLEXIBILITÄT UND SICHERHEIT
Dem Bauträger ist es ein Anliegen, sich deutlich von allen anderen Anbietern zu unterscheiden und Ihnen das Beste zu bieten. Hier vereinen sich die höchsten Ansprüche an Qualität, Design und Funktionalität mit nachhaltiger und energieeffizienter Bauweise. Die Referenzprojekte sprechen für sich.
Durch die Integration der Bauleistung in das eigene Unternehmen bestehen ein hohes Eigeninteresse an einer mängelfreien und termingerechten Umsetzung und viele weitere Vorteile für die Kunden:
* Mehrwert durch höhere Ausstattungsqualität zu konkurrenzfähigen Preisen
* Qualitätssicherung durch kontinuierlicher Bauüberwachung
* Mehr Klarheit bei Verantwortlichkeit und Haftung
* Mehr Flexibilität und einen Ansprechpartner bei allfälligen Sonderwünschen (nur noch kurze Zeit möglich!)
* Sichtbare Expertise - Referenzobjekte des Bauträgers ermöglichen auch die Prüfung der Qualität der tatsächlichen Bauausführung bei früheren Projekten
PREMIUM 2-ZIMMER-WOHNUNG MIT SCHÖNER LOGGIA!
Top 15
Die Wohnung bietet eine kompakte und zugleich durchdachte Raumaufteilung, ideal für Singles oder Paare. Der zentrale Vorraum verbindet alle Bereiche und schafft einen klaren Zugang zu den einzelnen Räumen. Das Schlafzimmer ist ruhig gelegen und mit Parkettboden ausgestattet, ebenso wie der großzügige Wohnbereich mit integrierter Küche. Die Küche ist funktional entlang der Wand angeordnet und öffnet sich zum Wohnraum, der durch große Türen direkten Zugang zur Loggia bietet - ein geschützter Balkonbereich, perfekt für entspannte Stunden im Freien. Das Badezimmer verfügt über Dusche, Waschbecken und WC, während ein separates WC zusätzlichen Komfort bietet. Ein kleiner Abstellraum ergänzt das Raumangebot und sorgt für praktischen Stauraum. Die Wohnung ist mit modernen Installationen ausgestattet und bietet ein angenehmes Wohngefühl auf kompaktem Raum.
Fakten:
* ein Schlafzimmer: mit Parkettboden, ruhig gelegen
* Wohnküche: offen gestaltet, mit Zugang zur Loggia
* Loggia: überdachter Balkon, direkt vom Wohnbereich erreichbar
* Badezimmer: mit Dusche, Waschbecken
* Separates WC
* Vorraum: zentraler Eingangsbereich mit Verbindung zu allen Räumen
* Abstellraum: kompakt, ideal für Lagerung
_Aus rechtlichen Gründen und aufgrund der großen Nachfragen bitten wir um Verständnis, dass wir nur Anfragen per Mail beantworten, wenn Sie uns Ihren vollständigen Namen samt Mailadresse und Mobilnummer bekanntgeben._
Alle Angaben basieren alleinig auf Informationen, die uns von unserem Auftraggeber übermittelt wurden. Trotz aller Sorgfalt können wir für die Richtigkeit, Vollständigkeit und Aktualität dieser Angaben keine Gewähr übernehmen. Jegliche Weitergabe der übermittelten Daten an Dritte ist nicht gestattet. Der Maklervertrag kommt durch schriftliche Vereinbarung oder Inanspruchnahme unserer Maklertätigkeit zustande. Der Makler kann als Doppelmakler tätig werden. Sollte das von uns nachgewiesene Objekt bereits bekannt sein, teilen sie uns dies bitte unverzüglich mit.
Die Maklergebühr ist ausschließlich bei Zustandekommen eines gültigen Rechtsgeschäfts fällig. Es wird ausdrücklich auf die Nebenkostenübersicht hingewiesen. Bei den Visualisierungen und Abbildungen der Immobilie (insbesondere von Inneneinrichtungen) kann es sich um Symbolfotos bzw. fototechnisch optimierte Fotos handeln. Hiermit weisen wir auf das Bestehen eines familiären und/oder wirtschaftlichen Naheverhältnisses zum Vermieter/Verkäufer hin.
Für die Vereinbarung eines Termins kontaktieren Sie Frau Vassilena Valkova telefonisch unter +43 650 58 70011 oder per E-Mail: vv@novel-real.at
Infrastruktur / Entfernungen
Gesundheit
Arzt <500m
Apotheke <500m
Klinik <1.500m
Krankenhaus <1.000m
Kinder & Schulen
Schule <500m
Kindergarten <500m
Universität <2.000m
Höhere Schule <2.000m
Nahversorgung
Supermarkt <500m
Bäckerei <500m
Einkaufszentrum <500m
Sonstige
Geldautomat <500m
Bank <500m
Post <500m
Polizei <1.000m
Verkehr
Bus <500m
U-Bahn <1.000m
Straßenbahn <500m
Bahnhof <1.000m
Autobahnanschluss <5.000m
Angaben Entfernung Luftlinie / Quelle: OpenStreetMap
Merkmale
- Bezug: 1. Quartal 2027
- 3. Geschoss
- offene Küche
- Personenaufzug
- Garage
- Gäste-WC
- Barrierefrei
Grundrisse
Grundrisse
1 / 1
Bausubstanz und Energie
Heizwärmebedarf (HWB)
A
Gesamtenergieeffizienz (fGEE)
A
- Baujahr2026
- Zustand der ImmobilieNeubau, Massivhaus, Erstbezug
- HeizungsartFußbodenheizung
- EnergieträgerLuft-/Wasser-Wärmepumpe
Preisdetails
Kaufpreis
459000 €459.000 €
7.926,09 €/m²
Provision für Käufer
3% des Kaufpreises zzgl. 20% USt.
Weitere Preisinformationen
1 Garagenstellplatz
Lage

Wien (1170)
DORNBACH / KONGRESSPARK
Weitere Informationen
Stichworte
Garage vorhanden, Fahrradraum, Nutzfläche: 57,91 m², Anzahl der Badezimmer: 1, Anzahl der separaten WCs: 1, Anzahl Loggias: 1, Balkon-Terrassen-Fläche: 5,53 m², Bundesland: Wien, 7 Etagen
Sonstiges/Wohnen: seniorengerechtes Wohnen
Weitere Services
Lust auf eine Besichtigung?
Eine Frage zur Immobilie?
Über den Anbieter
Dorotheergasse 6-8/8-9, 1010 Wien
Partnerschaft
Frau Vassilena ValkovaDein Kontakt
Online-ID: 26YLSA9V3YC6
Referenznummer: OBGC2025103010215274154210002ff
Wie zufrieden bist du mit dieser Seite (nicht mit der Immobilie selbst)?
