Version: 8.26.0Navigation überspringen
480.000 €
10 Zimmer  •  390 m²  •  392 m² Grundstück
Immowelt logo

Gewerbeobjekt zum Kauf • als Kapitalanlage geeignet
480000 €
1.231 €/m²
10 Zimmer  •  390 m²  •  392 m² Grundstück

Attraktives Wohn- und Geschäftshaus in bester Lage von Möhnesee-Körbecke!

Kapitalanlage mit Entwicklungspotenzial in bester Lage

In absolut zentraler Lage von Möhnesee-Körbecke präsentieren wir Ihnen dieses gepflegte Wohn- und Geschäftshaus aus dem Baujahr 2000. Die Immobilie überzeugt durch ihre vielseitige Nutzungsmöglichkeit, solide Bauweise und attraktives Wertsteigerungspotenzial.

Objektdaten
Baujahr: 2000
Grundstück: Möglichkeit zur Errichtung von PKW-Stellplätzen
Heizung: Gasbrennwertheizung (niedrige Heizkosten)

Flächenaufteilung
Erdgeschoss (ca. 150 m²)
Großzügige Ladenfläche mit guter Sichtbarkeit und hoher Frequenz

Obergeschoss (ca. 150 m² Gewerbefläche)
Flexible Gewerbefläche mit vielseitigen Nutzungsmöglichkeiten.
Wird zum 01.06.2026 frei und bietet dadurch erhebliches Mietsteigerungspotenzial.
Alternativ besteht die Möglichkeit, die Fläche in attraktive Wohneinheiten umzubauen.

Dachgeschoss (ca. 90 m² Wohnfläche)
Gut geschnittene Wohnung bestehend aus:
Wohnzimmer, zwei Schlafzimmern, Küche, großzügiger Loggia
Die Wohnung bietet ein angenehmes Wohnambiente in zentraler Lage.

Highlights auf einen Blick
Sehr gute, zentrale Lage innerhalb von Körbecke
Solide Kapitalanlage mit Potenzial zur Mietanpassung
Flexible Nutzungsmöglichkeiten (Gewerbe oder Wohnen)
Freie Gewerbefläche ab 04/2026
Niedrige Heizkosten durch moderne Gasbrennwerttechnik
Entwicklungspotenzial durch mögliche Stellplatzerrichtung
Option zur Umnutzung des Obergeschosses in Wohnraum

Diese Immobilie eignet sich hervorragend für Kapitalanleger, die eine sichere Einnahmequelle mit zusätzlichem Wertsteigerungspotenzial suchen. Die zentrale Lage, die flexible Nutzbarkeit sowie die perspektivisch frei werdende Gewerbefläche machen dieses Objekt besonders attraktiv.

Merkmale

  • 392 m² Grundstück
  • Teeküche
  • Kein Keller
  • Balkon
  • Bad mit Fenster
  • Waschraum
  • Fenster: Kunststoff

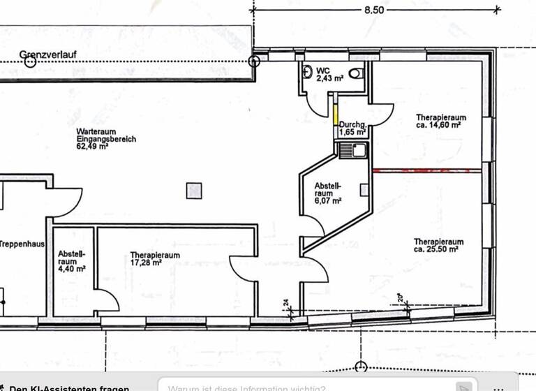
Grundrisse

Grundrisse
1 / 3

Bausubstanz und Energie

Möchtest du Details zum Energieverbrauch?info_energy_calculation-icon
  • Baujahr2000
  • Zustand der ImmobilieNeubau, Massivhaus, Gepflegt
  • HeizungsartZentralheizung
  • EnergieträgerGas
Immowelt logo

Preisdetails

Kaufpreis
480000 €
1.230,77 €/m²
Provision für Käufer
Nach Abschluss des Kaufvertrages ist an uns eine Provision von 3,57% des Kaufpreises zu entrichten.
Weitere Preisinformationen
Ist-Mieteinnahmen pro Jahr: 20.796,00 EUR
Geschätzte Gesamtkosten
537.936 €1
Kaufpreis
480.000 €
Notarkosten (1,5%)
7.200 €
Grunderwerbsteuer (6,5%)
31.200 €
Provision für Käufer (3,57%)
17.136 €
Grundbucheintrag (0,5%)
2.400 €
1Der angezeigte Wert ist eine automatisch berechnete Schätzung von immowelt.
2Bei den Angaben handelt es sich um ortsübliche Werte. Individuelle Kosten können abweichen.

Lage

address-icon
KörbeckeMöhnesee (59519)
Der Anbieter hat die genaue Adresse nicht freigegeben
Die Immobilie befindet sich in zentraler und sehr attraktiver Lage im Ortsteil Körbecke der Gemeinde Möhnesee, einer der beliebtesten Wohn- und Freizeitregionen im Kreis Soes. Körbecke ist der größte Ortsteil und administrative Mittelpunkt der Gemeinde Möhnesee mit einer lebendigen Infrastruktur und hohen Wohnqualität.

Die Lage zeichnet sich durch ihre direkte Anbindung an den Ortskern aus und liegt in fußläufiger Nähe zu lokalen Versorgungseinrichtungen und Dienstleistungen: diverse Fachgeschäfte, Supermärkte, Bäckereien sowie Gastronomie- und Dienstleistungsbetriebe sind bequem zu erreichen. Öffentliche Verkehrsmittel mit regelmäßigen Busverbindungen verbinden Körbecke mit umliegenden Gemeinden und dem Bahnhof in Soest.

In unmittelbarer Umgebung befinden sich zudem wichtige Einrichtungen des täglichen Bedarfs wie Apotheke, Allgemein- und Fachärzte, was die Lage besonders attraktiv für Mieter oder Eigennutzer macht.

Die Lage profitiert zusätzlich von der hervorragenden Mischung aus urbaner Versorgung und naturnaher Erholung: Der Möhnesee - auch als "Westfälisches Meer" bekannt - mit seinen Freizeitangeboten, Wander- und Radwegen sowie Wassersportmöglichkeiten liegt nur wenige Minuten entfernt.

Durch die Position im Kernbereich Körbeckes bietet die Lage sowohl hohe Sichtbarkeit für Laden- oder Gewerbeflächen als auch attraktive Adressen für Wohnnutzung - ideal für Investoren und Mieter, die kurze Wege zu Einkauf, Gastronomie, Freizeit und Verkehr schätzen.

Weitere Informationen

Stichworte Sonstiges/Wohnen: Dachboden

Weitere Services

Lust auf eine Besichtigung?
Eine Frage zur Immobilie?
Nachricht hinzufügen
Mit der Nutzung der oben angegebenen Telefonnummer oder durch Klicken auf „Kontaktieren“ akzeptierst Du die Allgemeinen Nutzungsbedingungen, denen Du jederzeit widersprechen kannst. Weitere Informationen zum Datenschutz

Über den Anbieter

Nöttenstr. 20, 59494 Soest
partner badge
Partnerschaft
Immobilien Jablonski GmbHDein Kontakt
Online-ID: 26E1ARTU7AIS
Referenznummer: 839 (1/839)
Wie zufrieden bist du mit dieser Seite (nicht mit der Immobilie selbst)?