Version: 8.22.4Navigation überspringen
Heimat Österreich gemeinnützige Wohnungs- u. Siedlungsges. mbH
139.952 €
3 Zimmer  •  87,5 m²

Wohnung zum Kauf • provisionsfrei
139952 €
1.600 €/m²
3 Zimmer  •  87,5 m²

Ihr neues Zuhause in Gresten - Sonnige 3-Zimmer-Maisonette-Wohnung mit Galeriecharakter

Willkommen in dieser charmanten und gepflegten Wohnung in 3264 Gresten, Niederösterreich! Auf ca. 87,47 m² erwartet Sie ein modernes, lichtdurchflutetes Ambiente, das durch den einzigartigen Galeriecharakter noch zusätzlich an Attraktivität gewinnt.

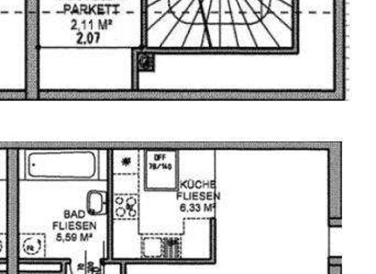
Die Wohnung bietet Ihnen viel Platz zum Wohnen und Wohlfühlen: Im ersten Stock finden Sie ein großzügiges Wohnzimmer, einen abgetrennten Küchenbereich, ein gemütliches Schlafzimmer sowie einen praktischen Abstellraum. Das moderne Badezimmer ist mit einer Badewanne, einem Handwaschbecken und einem Waschmaschinenanschluss ausgestattet. Das separate WC ist direkt neben dem Bad angeordnet.

Über eine wunderschöne Holztreppe gelangen Sie ins Obergeschoss, wo ein weiteres Zimmer und ein Abstellraum, der auch als Schrankraum genutzt werden kann, auf Sie warten. Die Wohnung ist außerdem mit hochwertigen Parkettböden versehen, die für ein stilvolles Wohngefühl sorgen. Ein Kellerabteil rundet das Angebot ab, und auch für Ihren PKW ist mit einem Abstellplatz gesorgt (Kaufpreis: € 10.000,--).

Geheizt wird die Wohnung umweltfreundlich über Fernwärme.

Lage:
Die Wohnung befindet sich in zentraler Lage in Gresten, nur einen Katzensprung entfernt von Einkaufsmöglichkeiten, Kindergarten, Volksschule, Arzt und Bank - alles ist bequem fußläufig erreichbar. Für Freizeitaktivitäten ist das Voralpenbad in der Nähe, das mit einem solargeheizten Schwimm- und Sprungbecken, einer Wasserrutsche, einem Kinderbecken sowie einer großen Liegewiese zum Entspannen einlädt. Tischtennis und Beachvolleyball runden das Freizeitangebot ab.

Mit dem Auto erreichen Sie in ca. 15 Minuten Scheibbs und in ca. 30 Minuten Amstetten.

Kaufpreis:
Wohnung: € 139.952,--
Stellplatz: € 10.000,--
Bezugsfertig: ab sofort

Energiekennzahlen:
Laut Energieausweis vom 17.08.2020 beträgt der Heizwärmebedarf 56,14 kWh/m²a (Klasse C) und der Gesamtenergieeffizienz-Faktor 1,93 (Klasse D).

_Nutzen Sie die Gelegenheit, sich dieses wunderschöne Zuhause zu sichern! Kontaktieren Sie uns noch heute - wir freuen uns auf Ihren Anruf und stehen Ihnen für weitere Informationen gerne zur Verfügung._

Noch nichts gefunden? Wir informieren Sie über geeignete Immobilienangebote noch vor allen anderen.
Legen Sie jetzt Ihren individuellen Suchagenten unter folgendem Link an. Wir schicken Ihnen passende Immobilien exklusiv vorab zu.
Suchagent anlegen [https://heimat-oesterreich.service.immo/registrieren/de] - https://heimat-oesterreich.service.immo/registrieren/de

Infrastruktur / Entfernungen

Gesundheit
Arzt <500m
Apotheke <1.000m

Kinder & Schulen
Schule <750m
Kindergarten <750m
Universität <7.500m
Höhere Schule <7.500m

Nahversorgung
Supermarkt <500m
Bäckerei <500m

Sonstige
Bank <500m
Geldautomat <750m
Post <250m
Polizei <750m

Verkehr
Bus <500m
Bahnhof <7.250m

Angaben Entfernung Luftlinie / Quelle: OpenStreetMap

Merkmale

  • Bezug: sofort
  • Außen-Stellplatz
  • Badewanne
  • Bodenbelag: Fliesen, Parkett

Grundrisse

Grundrisse
1 / 1

Realisiere Dein Projekt

Bausubstanz und Energie

Heizwärmebedarf (HWB)

C

Gesamtenergieeffizienz (fGEE)

D
  • Baujahr2005
  • Zustand der ImmobilieNeubau, Gepflegt
  • EnergieträgerFernwärme

Preisdetails

Kaufpreis
139952 €
1.600 €/m²
Provision für Käufer
Provisionsfrei
Weitere Preisinformationen
1 Stellplatz

Lage

address-icon
Oberer MarktGresten (3264)
Gresten liegt im niederösterreichischen Bezirk Scheibbs. Unsere Liegenschaft besticht durch ihre zentrale Lage - egal ob Kindergarten, Schule, Einkaufen, Arzt, Bank oder div. Freizeitangebote - alles einen Katzensprung entfernt. Im Grünen lässt es sich herrlich entspannen, wandern, spazieren und auch Rad fahren.

Weitere Informationen

Stichworte Stellplatz vorhanden, Anzahl der Badezimmer: 1, Anzahl der separaten WCs: 1, Bundesland: Niederösterreich, Wohnungsnr.: 4

Weitere Services

Lust auf eine Besichtigung?
Eine Frage zur Immobilie?
Nachricht hinzufügen
Mit der Nutzung der oben angegebenen Telefonnummer oder durch Klicken auf „Kontaktieren“ akzeptierst Du die Allgemeinen Nutzungsbedingungen, denen Du jederzeit widersprechen kannst. Weitere Informationen zum Datenschutz

Über den Anbieter

Plainstr. 55, 5020 Salzburg
Herr Christian VollmannDein Kontakt

Weitere Unterlagen

Online-ID: 2mxuh5y
Referenznummer: OBGC202504041018165011382a4cfcb
Heimat Österreich gemeinnützige Wohnungs- u. Siedlungsges. mbH
Heimat Österreich gemeinnützige Wohnungs- u. Siedlungsges. mbH
Bewertung: 4,2 von 5 Sternen
Nachricht hinzufügen
Mit der Nutzung der oben angegebenen Telefonnummer oder durch Klicken auf „Kontaktieren“ akzeptierst Du die Allgemeinen Nutzungsbedingungen, denen Du jederzeit widersprechen kannst. Weitere Informationen zum Datenschutz
Wie zufrieden bist du mit dieser Seite (nicht mit der Immobilie selbst)?