Version: 8.24.0Navigation überspringen
517.000 €
20 Zimmer  •  979,5 m²  •  1.414 m² Grundstück
Immowelt logo

Mehrfamilienhaus zum Kauf
517000 €
528 €/m²
20 Zimmer  •  979,5 m²  •  1.414 m² Grundstück

Sanierungsbedürftiges Mehrfamilienhaus-Ensemble im beliebten Sennewitz

Zum Verkauf steht ein sanierungsbedürftiger Mehrfamilienhaus-Komplex in Sennewitz, bestehend aus drei Gebäuden, die insgesamt 19 Wohneinheiten umfassen. Das Baujahr der Gebäude ist um ca.1928.
Alle drei Mehrfamilienhäuser sind dreigeschossig. Derzeit sind 9 Einheiten dauerhaft vermietet. Die Gebäude verfügen über eine zentrale Gasheizung, die sich in der Karl-Liebknecht-Straße 9 befindet. Zusätzlich bieten die Objekte Kellerräume sowie einen Zugang zum nicht ausgebauten Dachboden. Dieser Spitzboden kann wahlweise als Ausbaupotential genutzt werden.

Haus 1:
Karl-Liebknecht-Straße 10
- sechs Wohneinheiten
- insgesamt 292,00m² Wohnfläche
- 2-4 Raum Wohnungen
Haus 2:
Karl-Liebknecht-Straße 9
- sechs Wohneinheiten
- insgesamt 337,21,00m² Wohnfläche
- 2-4 Raum Wohnungen
Haus 3:
Köthener Straße 1
- sieben Wohneinheiten
- insgesamt 350,24m² Wohnfläche
- 2-4 Raum Wohnungen

Der Mehrfamilienhauskomplex weist derzeit eine Jahresnettokaltmiete i.H.v. 25.470,84 EUR aus.

Merkmale

  • Bezug: nach Absprache
  • vermietet
  • 1.414 m² Grundstück
  • Keller
  • Bodenbelag: Fliesen, Laminat

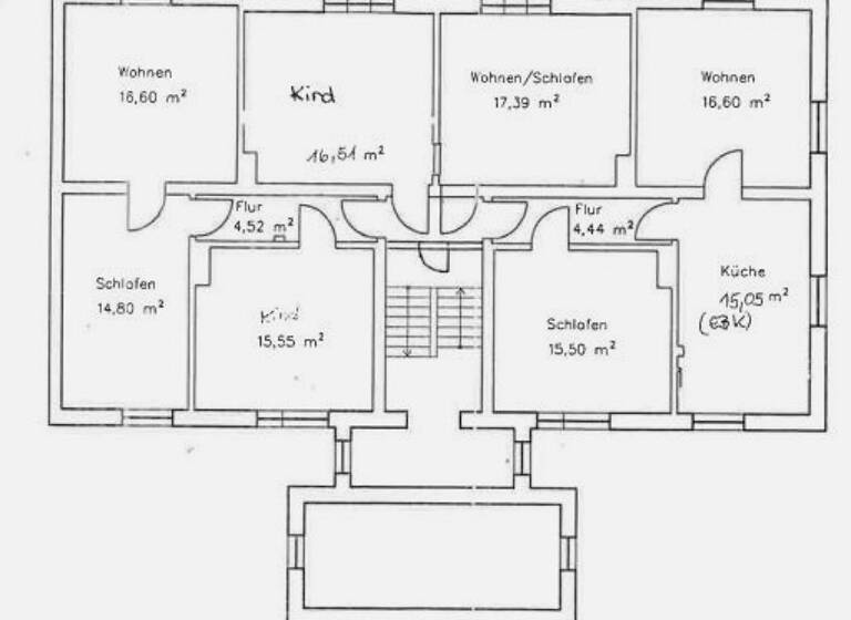
Grundrisse

Grundrisse
1 / 3

Realisiere Dein Projekt

Bausubstanz und Energie

Der Anbieter hat keine Informationen zum Energieverbrauch bereit gestellt.
  • Baujahr1928
  • Zustand der ImmobilieAltbau (bis 1945)
  • HeizungsartZentralheizung
Immowelt logo

Preisdetails

Kaufpreis
517000 €
527,85 €/m²
Provision für Käufer
6,545 %
Wir weisen der guten Ordnung halber darauf hin, dass im Falle eines Zustandekommens eines Kaufvertrages an uns eine Vermittlungsprovision in Höhe von 6,545 % vom Kaufpreis inkl. 19 % MwSt. zu entrichten ist.
Weitere Preisinformationen
Ist-Mieteinnahmen pro Jahr: 25.470,84 EUR
Geschätzte Gesamtkosten
571.647 €1
Kaufpreis
517.000 €
Notarkosten (1,5%)
7.755 €
Grunderwerbsteuer (5%)
25.850 €
Provision für Käufer (3,57%)
18.457 €
Grundbucheintrag (0,5%)
2.585 €
1Der angezeigte Wert ist eine automatisch berechnete Schätzung von immowelt.
2Bei den Angaben handelt es sich um ortsübliche Werte. Individuelle Kosten können abweichen.

Lage

address-icon
Karl-Liebknecht-Straße 9SennewitzPetersberg (06193)
Fußweg zu öffentlichen Verkehrsmitteln: ca. 3 min. Bushaltestelle
Fahrzeit zum nächsten Hauptbahnhof: ca. 15 min. (Hauptbahnhof Halle (Saale))
Fahrzeit zur nächsten BAB: ca. 8 min. (BAB 14)
Fahrzeit zum nächsten Flughafen: ca. 26 min. (Flughafen Leipzig/Halle)


Sennewitz ist ein Ortsteil der Verwaltungsgemeinschaft Petersberg im nördlichen Saalekreis und ist etwa 2 km von der Stadtgrenze von Halle (Saale) entfernt. Durch die Nähe zur Stadt Halle (Saale) und durch die landschaftlich reizvolle und historische Umgebung, die Ruhe und Erholung bietet, ist Sennewitz ein beliebter Wohnstandort. Der Ortsteil verfügt über eine gut ausgeprägte Infrastruktur und ist mit öffentlichen Verkehrsmitteln gut zu erreichen. In Sennewitz gibt es einen Kindergarten, eine Grundschule, Ärzte, Gastronomie sowie Verkaufseinrichtungen des täglichen Bedarfs. Durch die Autobahn BAB 14 mit Übergang zur BAB 9 und den gut ausgebauten Landstraßen ist eine gute Verkehrsanbindung gegeben.

Weitere Informationen

Sonstiges Ein Energieausweis liegt noch nicht vor, dieser wird derzeit erstellt.

Alle Angaben sind ohne Gewähr und basieren auf Informationen, die uns von unserem Auftraggeber zur Verfügung gestellt wurden. Wir übernehmen keine Gewähr für die Vollständigkeit, Richtigkeit und Aktualität dieser Angaben. Irrtum und Zwischenverkauf vorbehalten.

Wir weisen darauf hin, dass die Grundrisse Grundrissskizzen sind, die nicht maßstabsgerecht sind und von den tatsächlichen Gegebenheiten abweichen können. Stichworte 3 Etagen

Weitere Services

Lust auf eine Besichtigung?
Eine Frage zur Immobilie?
Nachricht hinzufügen
Mit der Nutzung der oben angegebenen Telefonnummer oder durch Klicken auf „Kontaktieren“ akzeptierst Du die Allgemeinen Nutzungsbedingungen, denen Du jederzeit widersprechen kannst. Weitere Informationen zum Datenschutz

Über den Anbieter

Große Steinstraße 21, 06108 Halle/Saale
partner badge
Partnerschaft
Phillip WenderothDein Kontakt
Online-ID: 2l6wj59
Referenznummer: 500139#8X03y
A1 Immobilien GmbH
A1 Immobilien GmbH
Bewertung: 4,7 von 5 Sternen
Nachricht hinzufügen
Mit der Nutzung der oben angegebenen Telefonnummer oder durch Klicken auf „Kontaktieren“ akzeptierst Du die Allgemeinen Nutzungsbedingungen, denen Du jederzeit widersprechen kannst. Weitere Informationen zum Datenschutz
Wie zufrieden bist du mit dieser Seite (nicht mit der Immobilie selbst)?